Verkocht

Zuidsingel 17 4611 LG Bergen op Zoom

152m2
Wonen
4
Kamers
200m2
Perceel
1935
Bouwjaar
Twee rechter handen en zin om een uniek huis helemaal naar je eigen hand te zetten? Dan hebben wij dé parel voor jou te pakken! Welkom aan de Zuidsingel 17: een charmante tussenwoning uit 1935 vol mogelijkheden én karakter, pal aan de rand van het centrum van Bergen op Zoom. Eeuwenoude gevels, een gezellige stadssfeer en alles in de buurt; als stadsmens, klusser of gezin zul je je hier beslist thuis voelen.

Met een zonnige achtertuin van maar liefst 14 meter diep is er hier plek zat voor al je plannen. Stel je voor: barbecueën met vrienden, kids die vrijuit kunnen spelen, of gewoon lekker chillen met een boek in je eigen groene oase. En ben je handig, creatief of niet vies van een lik verf? Pak die kluskofferset er maar bij, want dit huis staat te popelen om door jou onder handen genomen te worden.

Gebouwd in 1935: dat zie, voel en ruik je zodra je over de drempel stapt. Hoogwaardige details van weleer geven het huis een warme, eigen sfeer – én genoeg aanleiding om lekker creatief te worden met je eigen woonideeën. De basis van de woning is gelukkig goed. Het huis is goed onderhouden en met liefde bewoond. Een mooie lege canvas om iets prachtigs te maken. Je kunt het zo hip, strak, retro of comfortabel maken als je zelf wilt. Gooi die inspiratie maar los!

De indeling is ideaal voor gezinnen: voldoende plek voor een fijne leefkeuken, een gezellige woonkamer en meerdere slaapkamers (met mogelijkheid tot het creëren van extra kamers, hoe cool is dat?). Werk je vanuit huis?! Daar is ook al helemaal aan gedacht. Er is een kamer met een Frans Balkon, een badkamer die toegang geeft tot een dakterras en een handige bijkeuken. Het is er allemaal. Met een energielabel G is er ruimte zat voor slimme aanpassingen, zodat je het wooncomfort en duurzaamheidsgehalte een mooie boost kunt geven. Goed voor het milieu én je portemonnee.

Het gezellige stadscentrum is letterlijk om de hoek. Ontdek de gezellige cafeetjes en restaurants die de stad rijk is. Winkel gezellig je nieuwe outfit bij elkaar in een van de winkels. Wat helemaal fijn is dat het park ‘Kijk in de Pot’ ook weer om de hoek te vinden is. Ga even lekker uitwaaien, een rondje hardlopen of neem de kids mee om te picknicken op het gras. Je pakt hier direct dat echte stadsgevoel, terwijl je toch rustig woont.

Kortom... klaar om te starten? Ben jij die handige harry, enthousiaste starter of gezinsmens met lef? Grijp nu je kans en maak van deze authentieke stadswoning jouw eigen droompaleis. Kom kijken, laat je verrassen door de ruimte, de sfeer en het eindeloze potentieel. Want Zuidsingel 17 wacht op jou!

Meer weten of direct bezichtigen? Bel of mail gerust – wij zien je binnenkort graag aan de Zuidsingel!

Pluspunten:
+ Karaktervolle jaren ’30-woning!
+ Geheel naar eigen smaak te maken!
+ Mogelijkheid tot 5 slaapkamers!
+ 14 meter diepe achtertuin op het zuiden!
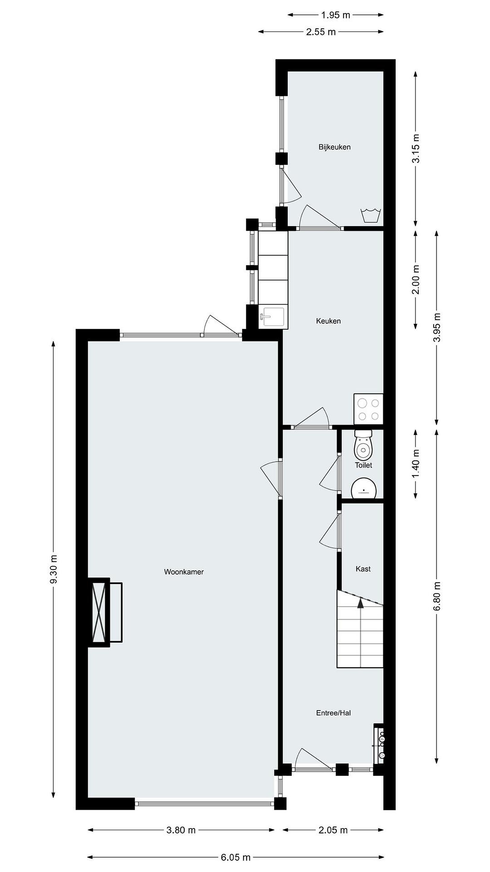
Begane grond
Entree / Hal:
Heerlijk langwerpige hal waar voldoende ruimte is om de jassen op te hangen, zonder dat deze in de weg hangen. Via het overdekte portaaltje stap je de hal binnen die direct het sfeertje van een woning laat voelen. Het bovenlicht, het nisje naaste de deur zijn allemaal leuke details. De hal geeft toegang tot de woonkamer, keuken, meterkast, trapkast, het toilet en de trapopgang naar de verdiepingsvloeren.
De ruimte is afgewerkt met vloerbedekking, gestuukte wanden met lambrisering en een gestuukt met sierlijst plafond.

Woonkamer:
Ruime doorzonwoonkamer waar je echt een heerlijke kamer van kunt maken voor het gehele gezin. Bij het raam aan de voorzijde is een vaste kast, waar de nodige boeken of speelgoed in kan worden opgeborgen. De authentiek details als het glas-in-lood zijn keurig behouden. Wat dacht je van het sierplafond een blikvanger van de woonkamer. Met een paar aanpassingen verbind je de woonkamer met de keuken en met het plaatsen van een tuindeuren maak je het binnen/buiten gevoel helemaal compleet.
De ruimte is afgewerkt met vloerbedekking, deels granol, deels lambrisering wanden en een zachtboard plafond.

Keuken:
Voor de bouwperiode een ruim opgezette keuken. Via de raampartijen kan het daglicht goed binnenstromen en is er zicht op de tuin. Zo kun je de kinderen in de gaten houden. Met het doorbreken van een muur kun je een heerlijke openkeuken creëren die met alle gemakken is voorzien. Momenteel is er een kunststof aanrechtblok met RVS-werkblad aanwezig en enkele losse kasten. Via de keuken is er toegang tot de bijkeuken.
De ruimte is afgewerkt met vloerbedekking, deels betegelde wanden en een houten schroten plafond.

Bijkeuken:
Super praktisch, een bijkeuken voor de wasmachine en de extra boodschappenvoorraad. Met de aantal vierkante meters is er veel mogelijk. De bijkeuken geeft toegang tot de tuin.
De ruimte is afgewerkt met vloerbedekking, deels betegelde wanden en een houten schroten plafond.

Toilet:
Opvallend ruime toiletruimte welke momenteel is voorzien van een duobloktoilet en fonteintje. Door het formaat kun je hier makkelijk een wandcloset plaatsen en fonteintje. Je hebt dan nog steeds lekker veel beenruimte over.
De ruimte is afgewerkt met vloerbedekking, deels behangen wanden en een gestuukte plafond.


Eerste verdieping
Overloop:
Prima overloop die toegang geeft tot drie slaapkamers, de badkamer en via een gesloten trapopgang de tweede-/zolderverdieping. De sfeermakers, zoals de paneeldeuren zijn allemaal nog aanwezig. Dit maakt dat je het karakter van de woning helemaal kunt behouden.
De ruimte is afgewerkt met vloerbedekking, gestuukte wanden en een gestuukt plafond.

Badkamer:
Een badkamer met mogelijkheden! Door de opzet van de ruimte laat de badkamer zich goed indelen. Via de badkamer is er toegang tot het dakterras, welke eventueel ook kan worden betrokken bij de badkamer. Hierdoor ontstaat er een zéér royale badkamer, waar je alles met gemak in kunt plaatsen. Ondanks de leeftijd van de badkamer verkeerd deze in goed staat. De huidige badkamer is voorzien van:
+ Enkele wastafel
+ Douchecabine
+ Duoblok toilet
De ruimte is afgewerkt met een tegelvloer, grotendeel betegelde wanden en een gestuukte plafond.

Dakterras:
Via de badkamer is er toegang tot het dakterras. Ideaal om de was te laten drogen zonder dat deze vervelend in de tuin hangt. Ook heb je de mogelijkheid om het dakterras toe te voegen aan de badkamer. Vele mogelijkheden!

Slaapkamer 1:
De hoofdslaapkamer is aan de achterzijde gelegen van de woning. Hierdoor heb je een mooi uitzicht op de tuin. De slaapkamer is oprecht royaal te noemen met bijna 16 m2. Er is veel ruimte voor een flink tweepersoonsbed en kledingkast(en). Praktisch is de vaste kast, waar je al het nodig in kwijt kunt.
De ruimte is afgewerkt met vloerbedekking, behangen wanden en een zachtboard plafond.

Slaapkamer 2:
Deze heerlijke slaapkamer met bijna 16 m2 is ook zéér ruim te noemen. De kamer is aan de voorkant van de woning gelegen en is al voorzien van een handige vaste kast. Een royaal tweepersoonsbed, kledingkast en make-up tafel passen hier met gemak in.
De ruimte is afgewerkt met vloerbedekking, behangen wanden en een zachtboard plafond.

Slaapkamer 3:
Voor de thuiswerkers onder ons is dit de ideale werkkamer. Zo houdt je werk en privé makkelijk en goed gescheiden. De kamer kan ook goed functioneren als kinderkamer. Met het (frans)balkon heb je een leuk detail in de kamer en kan de kamer worden geventileerd.
De ruimte is afgewerkt met vloerbedekking, behangen wanden en een zachtboard plafond.

Tweede verdieping
Berging:
Het extraatje van de woning. De spanten en balken zijn nog mooi in het zicht. Maak je hier een hele verdieping voor je zelf en je partner? Of breidt je (net als de beide buren) de zolder uit, waardoor je met gemak twee extra slaapkamers kunt creëren. Dit kun je allemaal met de tijd ook aanpakken. De dakkapellen zorgen voor veel lichtinval. Momenteel is er op de zolder al een kamertje gecreëerd. Er is volop ruimte voor de technische ruimte.

Tuin
Achtertuin:
De ongeveer 14 meter diepe achtertuin is voor de zonaanbieders een echt pluspunt. Dat kan ook niet anders zo op het zuiden. De tuin is zéér verzorgd aangelegd met sierbestrating en verhoogde plantenbordes. Door de lengte is de tuin ook goed in te delen met een speelgazon, overkapping en terras. Dit soort fortmaat tuinen zien je niet vaak in stadwoningen zoals deze.

Berging:
Grenzend aan de woning is de stenenberging van ruim 14m2. Het tuingereedschap en kussens kun je hier met gemak in opbergen. Ook de hobbyisten weten wel raad met deze vierkante meters. De berging is voorzien van elektra.

Lees meer

Verkoopgeschiedenis

Aangeboden sinds
20 maart 2026
Verkoopdatum
21 april 2026
Looptijd
één maand

Kenmerken

Overdracht

Prijs per m2
€ 2.434
Aangeboden sinds
20 maart 2026
Status
Verkocht
Aanvaarding
In overleg

Bouw

Soort woonhuis
Eengezinswoning, tussen woning
Soort bouw
Bestaande bouw
Bouwjaar
1935
Soort dak
Zadeldak
Staat van onderhouden binnen
Goed
Staat van onderhouden buiten
Goed

Oppervlakte en inhoud

Perceeloppervlakte
200 m2
Inhoud van de woning
542 m3
Oppervlakte externe bergruimte
14 m2

Indeling

Aantal kamers
4
Aantal slaapkamers
3
Aantal woonlagen
3
Voorzieningen
Tuin, balkon, schuur/berging, rolluiken, fransbalkon, dakraam

Buitenruimte

Balkon
Ja
Schuur/berging
Ja

Maandlasten berekenen

De maandlasten voor je woning bestaan uit meer dan alleen de hypotheeklasten. Hieronder vind je een overzicht van de bijkomende kosten en lasten. Zo weet je precies wat je huis per maand gaat kosten. En met de handige vergelijkers kun je ook nog eens snel de beste deals sluiten!

  • Kaart
  • Streetview