Verkocht

Zandstraat 37 4614 CA Bergen op Zoom

117m2
Wonen
4
Kamers
126m2
Perceel
1935
Bouwjaar
Statige jaren ‘30 woning met unieke ligging!

En ja hoor, hier komt-ie dan: jouw kans om te wonen aan de geliefde Zandstraat 37 in het bruisende Bergen op Zoom! Of je nu een starter bent met groeiambities, een gezin op zoek naar ruimte of gewoon gecharmeerd van karakteristieke huizen; deze tussenwoning doet elk hart sneller kloppen. Waarom? Omdat je hier letterlijk alles tegenkomt waar je warm van wordt!

Klassiek, maar verre van ouderwets. Bouwjaar 1935 betekent één ding: karakter. En dat spat er hier af! Denk aan hoge plafonds, mooie details zoals het vele glas-in-lood en een tijdloze uitstraling waardoor je haast voelt dat de geschiedenis je tegemoet lacht. Toch is deze woning allesbehalve stoffig. Met zo’n statig gevelbeeld geef je je vrienden bij binnenkomst gelijk wat om over na te praten.

De woning is met haar 117 m2 woonplezier verrassend ruim opgezet. Je merkt al bij binnenkomst: hier is over nagedacht. De indeling is lekker praktisch, met meer dan genoeg plek voor een gezellig samen-zijn (lees: uitgebreide etentjes, knusse filmavonden of gewoon je dagelijkse chaos). En dat zonder dat huiselijke gevoel kwijt te raken. Dat kan ook niet anders met de gezellige houtkachel en fijne keuken die beide in verbinding staan met de tuin.

Drie slaapkamers én een badkamer om van te dromen. Op de verdiepingen vind je drie heerlijke slaapkamers; licht, luchtig en voldoende groot om zowel een kinderkamer, thuiskantoor als master bedroom in te richten. Op de zolderverdieping val je onder de sterrenhemel heerlijk in slaap. Oh, en die badkamer? Echt een plaatje! Een moderne uitstraling, fijne indeling en – jawel – alles erop en eraan om ‘s ochtends fris wakker te worden, of juist na een lange dag even helemaal tot rust te komen.

Even een momentje voor jezelf? Achter het huis verrast een heerlijke achtertuin met handige achterom. Hier kun je op je gemak genieten van de avondzon, barbecueën met vrienden en kinderen laten rondrennen. Geen achterburen die je privacy verstoren, maar een prachtig vrij uitzicht over de sportvelden. Alsof je je eigen groene oase hebt, midden in de stad.

De Zandstraat staat niet voor niets bekend als één van de gezelligste plekjes van Meilust. Je woont hier in een levendige, maar toch rustige omgeving. De wijk is kindvriendelijk, scholen en winkels zijn lekker dichtbij en er zijn allerlei speeltuinen en sportfaciliteiten op loopafstand te vinden. Alles wat je nodig hebt, ligt echt binnen handbereik. Net als de bourgondische binnenstad die op nog geen 5 minuten fietsafstand te vinden is.

Zie je het al voor je? Een serenade onder het balkon, relaxen met een goed glaswijn van het avondzonnetje en alle ruimte voor nieuwe herinneringen. Klaar voor een nieuwe stap? Dan wordt dit jouw droomhuis! Nieuwsgierig geworden? Kom snel langs aan de Zandstraat 37. Wie weet, woon jij hier straks op één van de leukste plekjes van Bergen op Zoom!

Pluspunten:
+ Karaktervolle en verzorgde woning!
+ Uitvalswegen en voorzieningen om de hoek!
+ Gelegen in het geliefde Zandstraat!
+ In-stap-klaar!
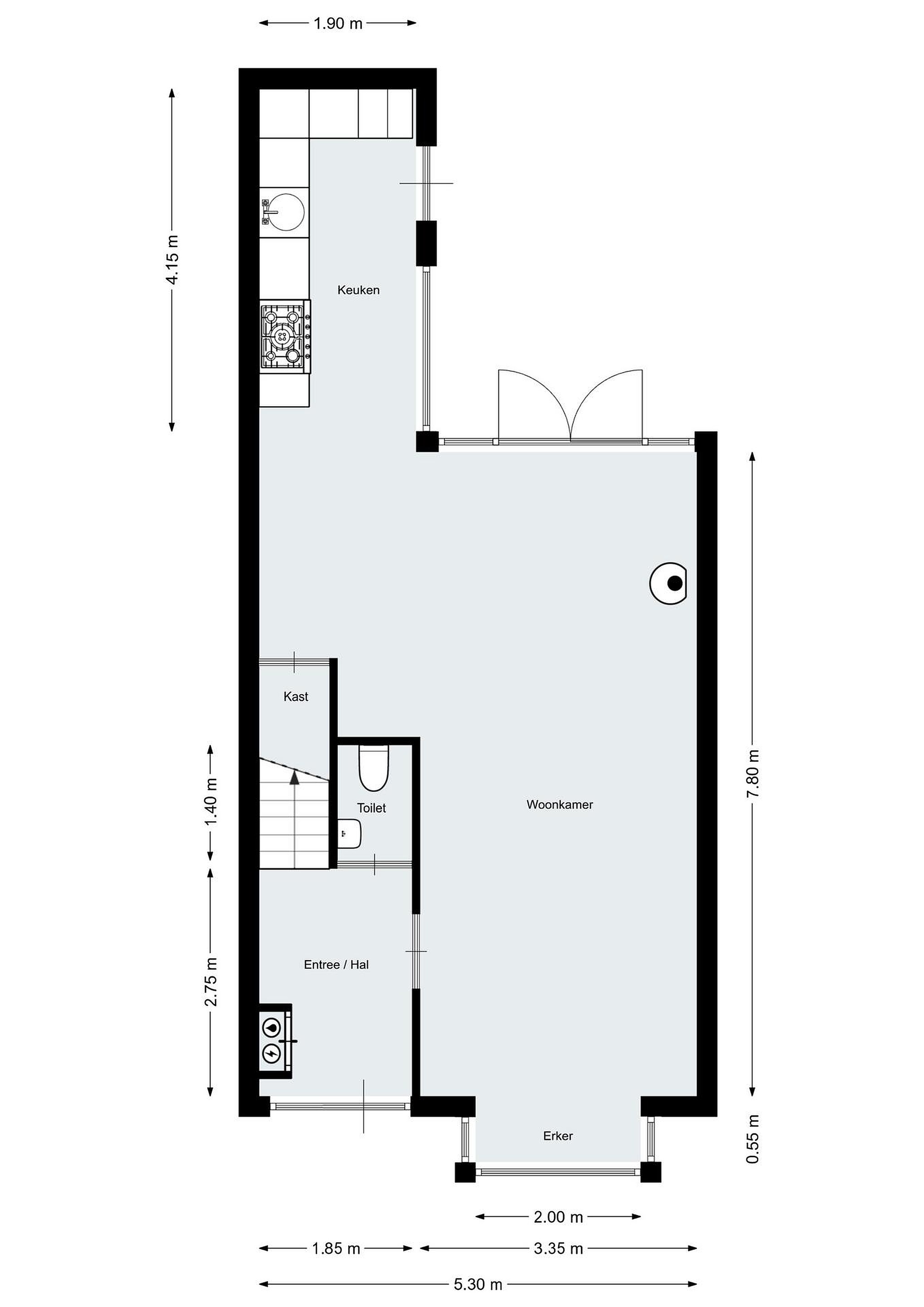
Begane grond
Entree/Hal:
Fijne binnenkomst van de woning in deze ruim opgezette hal. Direct valt het mooie afwerkingsniveau op. Authentieke details als de paneeldeuren en het glas-in-lood laten het karakter van de woning volop zien. Via de hal is er toegang tot de woonkamer, het toilet, de meterkast en de trapopgang.
De ruimte is afgewerkt met een tegelvloer, gestuukte wanden en een gestuukt plafond.

Woonkamer:
Sfeervolle woonkamer met een speelse indeling. De erker aan de voorkant geeft een mooi uitzicht over de straat en details zoals het glas-in-lood maken het plaatje compleet. Bij de houtkachel is het in de wintermaanden heerlijk vertoeven. De woonkamer staat doormiddel van de openslaande tuindeuren in verbinding met de tuin. De vaste kast zorgt voor extra opbergruimte. De kamer laat zich vrij natuurlijk inrichten met een leuke zit- en eethoek.
De ruimte is afgewerkt met een houtenvloer, gestuukte wanden en een gestuukt plafond.

Keuken:
De openkeuken - in hoekopstelling - is super praktisch om de heerlijkste maaltijden in te bereiden. Het is een lichte ruimte door het flinke raampartij en via de achterdeur is er toegang tot de tuin. Het keukenblok heeft een massief natuursteen werkblad en is van alle gemakken voorzien, zoals:
+ 5-pits gasfornuis
+ Afzuigkap
+ Enkele spoelbak
+ Koel-/Vriescombinatie
+ Oven
+ Vaatwasser
De ruimte is afgewerkt met een tegelvloer, gestuukte wanden en een gestuukt plafond.

Toilet:
Keurige toiletruimte die opvallend ruim is. Hier kun je met gemak de benen strekken. Er is een wandcloset, fonteintje en mechanische ventilatie aanwezig.
De ruimte is afgewerkt met een tegelvloer, grotendeels betegelde wanden en een gestuukt plafond.

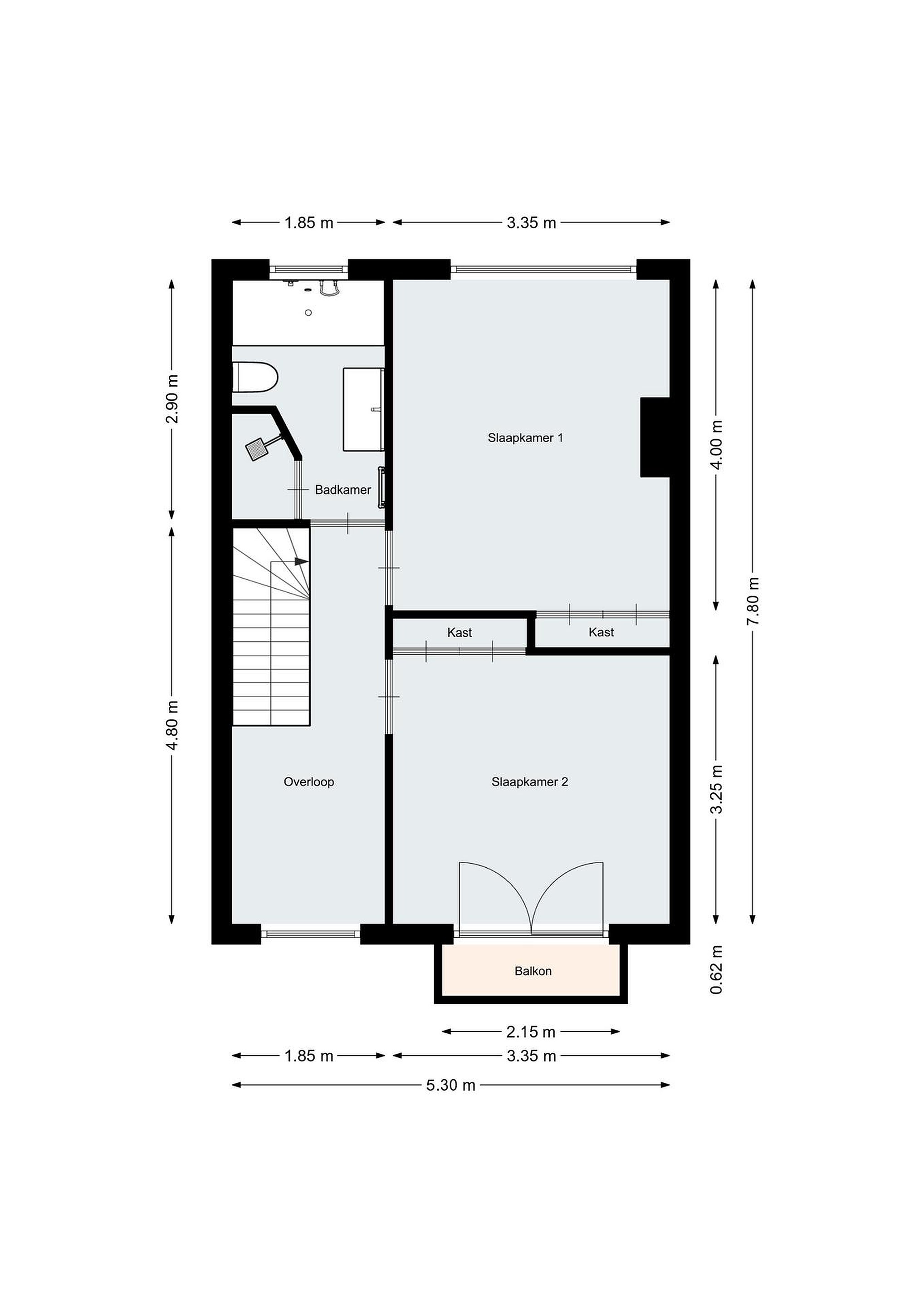
Eerste verdieping
Overloop:
Ruime overloop met een prachtig raampartij aan de voorzijde van de woning met kleurrijk glas-in-lood. Door de royale opzet is het mogelijk om hier een werkhoek te maken voor de thuiswerkers onder ons. De overloop geeft toegang tot twee slaapkamers, de badkamer en trapopgang naar de tweede-/zolderverdieping.
De ruimte is afgewerkt met een houten vloer, gestuukte wanden en een gestuukt plafond.

Slaapkamer 1:
De aan de achterzijde van de woning gelegen slaapkamer heeft een fantastische uitzicht over de sportvelden. Hierdoor heb je een mooie vrij gevoel en geen last van inkijk van achterburen. De kamer is voorzien van een tweetal vaste kasten voor de kleding. Er is ruimte genoeg voor een royaal tweepersoonsbed.
De ruimte is afgewerkt met een houtenvloer, gestuukte wanden en een gestuukt plafond.

Slaapkamer 2:
Wat een heerlijke slaapkamer zo aan de voorzijde van de woning. Via de openslaande deuren kan het daglicht goed binnenkomen. Door de bomen aan de voorzijde blijft de kamer lekker koel tijdens de warme zomerdagen. Het balkon is zeker het extraatje van deze kamer. De twee vaste kasten zorgen voor bergruimte.
De ruimte is afgewerkt met een houtenvloer, gestuukte wanden en een gestuukt plafond.

Badkamer:
Wat een plaatje van een badkamer, haast een wellness ruimte. De badkamer heeft een prettig lichtinval door het raam, die naast het vrije uitzicht ook voor natuurlijke ventilatie zorgt. De badkamer is van alle luxe voorzien die je in een hedendaagse badkamer mag verwachten, zoals:
+ Badkamermeubel met natuursteen wastafel
+ Douchecabine met regendouche
+ Ligbad
+ Vloerverwarming (elektrisch)
+ Wandcloset
De ruimte is afgewerkt met een tegelvloer, deels betegelde en gestuukte wanden en een gestuukt plafond.

Tweede verdieping
Slaapkamer:
Het zal nog lastig kiezen worden wie deze prachtige ruimte in gebruik gaat nemen. Een hele fijne en speelse ruimte met de verhogingen. Het bureau plaats je op het verhoogde gedeelte bij het dakkapel. Onder het dubbele dakraam tref je het tweepersoonsbed om heerlijk weg te dromen onder de sterrenhemel. In de kamer tref je naast de nodige handige opbergruimtes ook de combiketel en de wasmachine aansluiting.
De ruimte is afgewerkt met een houtenvloer en gestuukte wanden.

Tuin
Voortuin:
Keurige voortuin die voor de nodige privacy zorgt. De tuin is aangelegd met het nodige groen en voorzien van sierbestrating wat helemaal past bij de woning. Dat is nog een thuiskomen.

Achtertuin:
Prima achtertuin met achterom! Hoe handig is dat. De tuin is perfect van formaat. Een leuke eethoek en zitje kun je makkelijk kwijt. De nodige plantenbordes maken, naast de sierbestrating het een relaxtuin met het nodige groen. Via de tuin is er ook zicht op de speelvelden wat net een verlengstuk van de tuin lijkt. Met de ligging op het noordwesten kun je hier heerlijk geniet van de avondzon.

Berging:
De fietsen en het gereedschap kunnen allemaal in de berging worden geplaats. De ruimte is praktisch ingedeeld en voorzien van elektra.

Lees meer

Verkoopgeschiedenis

Aangeboden sinds
21 november 2025
Verkoopdatum
16 december 2025
Looptijd
25 dagen

Kenmerken

Overdracht

Prijs per m2
€ 3.752
Aangeboden sinds
21 november 2025
Status
Verkocht
Aanvaarding
In overleg

Bouw

Soort woonhuis
Eengezinswoning, tussen woning
Soort bouw
Bestaande bouw
Bouwjaar
1935
Soort dak
Zadeldak
Staat van onderhouden binnen
Uitstekend
Staat van onderhouden buiten
Uitstekend

Oppervlakte en inhoud

Perceeloppervlakte
126 m2
Inhoud van de woning
429 m3

Indeling

Aantal kamers
4
Aantal slaapkamers
3
Aantal woonlagen
3
Voorzieningen
Tuin, schuur/berging, glasvezel, dakraam

Buitenruimte

Balkon
Nee
Schuur/berging
Ja

Maandlasten berekenen

De maandlasten voor je woning bestaan uit meer dan alleen de hypotheeklasten. Hieronder vind je een overzicht van de bijkomende kosten en lasten. Zo weet je precies wat je huis per maand gaat kosten. En met de handige vergelijkers kun je ook nog eens snel de beste deals sluiten!

  • Kaart
  • Streetview