Verkocht OV

Sint-Antoniusstraat 13 4611 TA Bergen op Zoom

48m2
Wonen
2
Kamers
50m2
Perceel
1700
Bouwjaar
Beleggingspand met verhuurde status in hartje Bergen op Zoom
In het levendige stadscentrum van Bergen op Zoom bieden wij dit karakteristieke en veelzijdige beleggingspand aan, momenteel volledig verhuurd en daarmee direct interessant voor investeerders die op zoek zijn naar een stabiel rendement.

Het pand is functioneel ingedeeld over drie verdiepingen en bestaat uit:
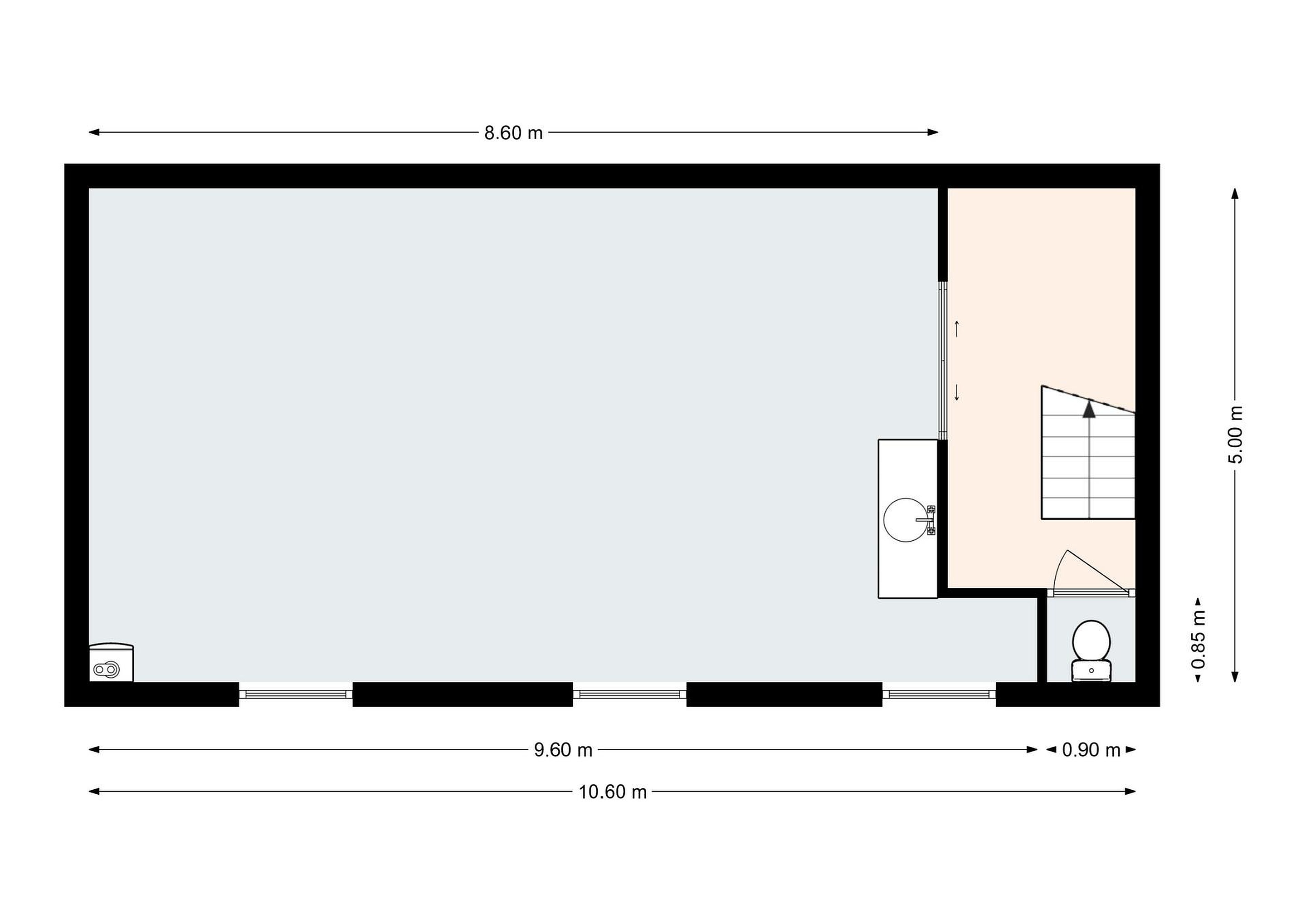
- Begane grond: Ruime opslagruimte met goede toegankelijkheid, ideaal voor logistiek, opslagdoeleinden of bedrijfs-/winkelruimte.
- Eerste verdieping: In gebruik als atelier, met veel daglicht en een open indeling die zich uitstekend leent voor creatieve of ambachtelijke activiteiten.
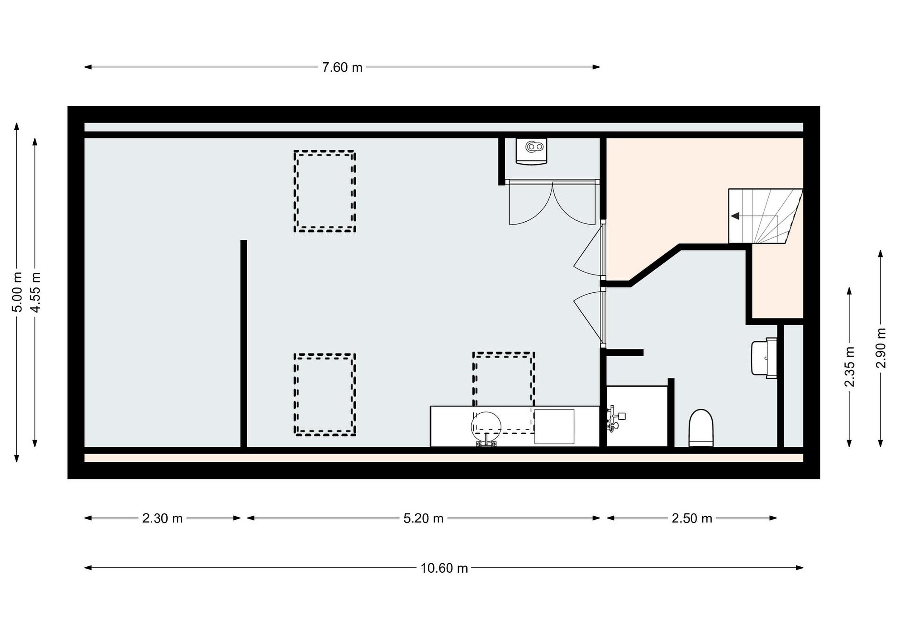
- Tweede verdieping: Ingericht als studio, geschikt voor bewoning of kleinschalig werken.

Het is het ideale pand om werk en privé te combineren. Op de begane grond een winkel-/bedrijfsruimte en de verdiepingsvloeren een leuke bovenwoning van ruim 100 m2. Maak jij je dromen hier helemaal waar?

De centrale ligging in het historische stadscentrum zorgt voor uitstekende bereikbaarheid, nabij winkels, horeca en openbaar vervoer. Deze locatie maakt het pand aantrekkelijk voor zowel huidige huurders als toekomstige exploitatiemogelijkheden.

Pluspunten:
✓ Volledig verhuurd object –direct rendement
✓ Praktische en veelzijdige indeling
✓ Gelegen op een gewilde centrum locatie

Geschikt als lange termijn belegging of herontwikkelingsobject (onder voorbehoud van vergunningen)

Bijzonderheden:
- Op deze locatie is maximaal 1 woonruimte toegestaan.
- De woning heeft als bestemming: Centrum 5
Er zijn twee combiketels aanwezig en tussenmeters om het gebruik per eenheid te kunnen bepalen.
Lees meer

Kenmerken

Overdracht

Prijs per m2
€ 4.375
Aangeboden sinds
2 april 2026
Status
Verkocht onder voorbehoud
Aanvaarding
In overleg

Bouw

Soort woonhuis
Eengezinswoning, tussen woning
Soort bouw
Bestaande bouw
Bouwjaar
1700
Soort dak
Zadeldak
Staat van onderhouden binnen
Goed
Staat van onderhouden buiten
Goed

Oppervlakte en inhoud

Perceeloppervlakte
50 m2
Inhoud van de woning
460 m3
Oppervlakte overige inpandige ruimten
117 m2

Indeling

Aantal kamers
2
Aantal slaapkamers
1
Aantal woonlagen
3
Voorzieningen
Dakraam

Buitenruimte

Balkon
Nee
Schuur/berging
Nee

Maandlasten berekenen

De maandlasten voor je woning bestaan uit meer dan alleen de hypotheeklasten. Hieronder vind je een overzicht van de bijkomende kosten en lasten. Zo weet je precies wat je huis per maand gaat kosten. En met de handige vergelijkers kun je ook nog eens snel de beste deals sluiten!

  • Kaart
  • Streetview