Verkocht

Mozartlaan 33 4614 AL Bergen op Zoom

130m2
Wonen
5
Kamers
174m2
Perceel
1962
Bouwjaar
Zoek je een fijn gezinshuis waar iedereen zijn eigen plek kan vinden en waar je eenvoudig werk, hobby en wonen kunt combineren? Dan hebben wij goed nieuws voor je. Aan het muzikale Mozartlaan 33 Bergen op Zoom staat deze verrassend ruime tussenwoning te wachten op nieuwe verhalen — misschien wel die van jou en je gezin!

Aan de buitenkant valt hij je meteen op, deze charmante woning uit 1962. Stevig gebouwd, gezellig ingedeeld en dankzij het bouwjaar voorzien van die typische fijne lichtinval. Stap naar binnen en je beleeft direct dat gevoel van thuiskomen. De leefruimte is verrijkt met grote ramen waardoor het zonlicht speels over de vloer danst, ongeacht het seizoen.

De indeling is lekker praktisch, maar biedt ook volop kansen voor wie graag woonwensen in vervulling ziet gaan. Of je nou een grootse woonkamer wenst, een speelhoek voor de kinderen, of gewoon veel kastruimte – dit huis sluit naadloos aan op het leven van nu.

Mozartlaan 33 is niet alleen een plek waar je woont, maar bovenal een plek waar je lééft: samen lachen, je even terugtrekken met een boek, huiswerk maken aan de keukentafel en weer zomers barbecueën in de tuin. Elke kamer ademt sfeer en authenticiteit uit en bovenal zijn ruim van formaat.

Met zelfs vier slaapkamers is hier ruimte voor iedereen. Iedere ochtend start je heerlijk uitgerust; geen voeten in de file naar de badkamer, want door de slimme indeling kan iedereen zich rustig klaarstomen voor een frisse dag. Een verkwikkend douche onder inloopdouche of heerlijk ontspannen in de whirlpool. Het kan hier allemaal.

Wat deze woning helemaal bijzonder maakt, is de extra aparte ruimte aan huis. Of je nou droomt van een rustige werkplek voor je thuiswerksessies, een atelier om te schilderen of een speelkamer voor de kids — aan praktische toepassingen geen gebrek. Dit is dé uitgelezen kans voor gezinnen die woon- en werkgeluk willen combineren, zonder concessies te doen op privacy of comfort.

Met een tuin van maar liefst 10 meter diep, hebben de kinderen volop ruimte om te schommelen en te ravotten. En zeg eerlijk, waar vind je tegenwoordig nog zo’n royale tuin bij een tussenwoning? Groene vingers? Ga los met bloemen of zet er een heerlijke loungehoek neer waar je tot diep in de zomer kunt genieten. In deze sfeervolle tuin kun jij heerlijk tot rust komen.

De Mozartlaan ligt in hartje Meilust Zuid, een echte gezinswijk. Hier groeten buren elkaar nog, spelen kinderen samen in de speelveldjes en ben je lopend of fietsend zo bij scholen, winkels en sportverenigingen. Bovendien zijn zowel het stadscentrum van Bergen op Zoom als de uitvalswegen makkelijk te bereiken — handig voor school, werk en ontspanning.

Samengevat: Mozartlaan 33 is een heerlijk gezinshuis waar comfort, ruimte en uiteenlopende mogelijkheden samenkomen. Ben jij klaar voor een nieuwe stap, zoek je een veelzijdige woning met karakter én een royale tuin? Dan nodigen we je van harte uit om eens langs te komen. Voel zelf hoe het is om hier thuis te zijn — wie weet, wordt dát straks jouw dagelijkse geluksmoment!

Geïnteresseerd? Bel of mail gerust voor een bezichtiging en ontdek met eigen ogen hoe jouw toekomst hier zou kunnen beginnen. Welkom aan de Mozartlaan!

Pluspunten:
+ Sfeervolle in-stap-klare woning
+ 4 ruime slaapkamers en badkamer!
+ Kantoor-/praktijk-/hobby ruimte aan huis!
+ Zéér gewilde locatie dicht bij scholen en voorzieningen!

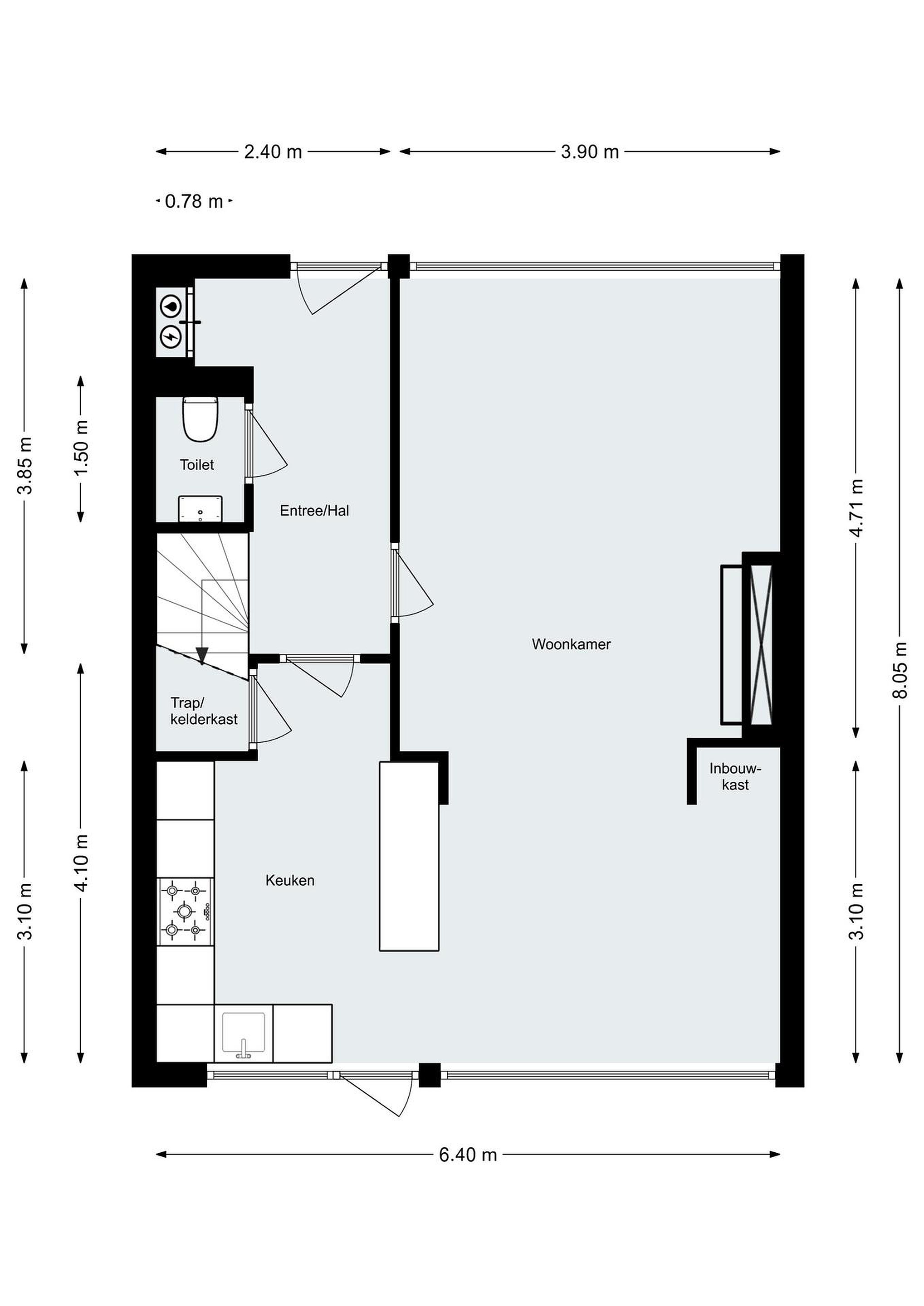
Begane grond
Hal/Entree:
Een ruime en vooral fijne binnenkomst van de woning in deze hal. Er is plaats genoeg voor het ophangen van de jassen zonder dat deze vervelend in de weg hangen. De hal geeft toegang tot de woonkamer, keuken, meterkast het toilet en de trapopgang.
De ruimte is afgewerkt met een tegelvloer, gestuukte wanden en een gestuukt plafond.

Woonkamer:
Sfeervolle doorzonwoonkamer waar het daglicht lekker kan binnen schijnen wat de kamer extra prettig doet aanvoelen. De kamer laat zich makkelijk indelen met een royale zithoek bij de openhaard en een zithoek grenzend aan de keuken. De ruim opgezette haardpartij zorgt niet alleen voor warmte, maar ook voor wat extra opbergruimte. Het balken plafond maakt het sfeertje helemaal compleet.
De ruimte is afgewerkt met een houtenvloer, gestuukte wanden en een gestuukt plafond.

Keuken:
Open keuken met schiereiland die toegang geeft tot de tuin. De L-vormige opgestelde keuken heeft voldoende bergruimte. Het granieten aanrecht biedt veel werkruimte om de heerlijkste gerechten te bereiden. Vanuit de keuken is er eveneens een mooi zicht op de tuin. Zo kun je de kinderen in de gaten houden terwijl jij staat te koken. Via de keuken is er ook toegang tot de trapkast waar de extra boodschappen voorraad kan worden bewaard.
De keuken is voorzien van:
+ 4-pits gasfornuis
+ Afzuigkap
+ Close-in-boiler
+ Koelkast
+ Oven
+ Vaatwasser
De ruimte is afgewerkt met een tegelvloer, gestuukte wanden en een houten schroten plafond.

Toilet:
Het toilet is opvallend ruim te noemen. Er is veel beenruimte en de afwerking is in een warme naturelle kleurstelling en is voor voorzien van een wandcloset, fonteintje en mechanische ventilatie.
De ruimte is afgewerkt met een tegelvloer, grotendeels betegelde wanden en een gestuukt plafond.

Eerste verdieping
Overloop:
De L-vormige ingedeelde overloop geeft toegang tot drie slaapkamers, de badkamer en de trapopgang naar de tweede-/zolderverdieping. Praktisch is de aanwezige vaste kast waar spelletjes of het linnengoed in kan worden opgeborgen.
De ruimte is afgewerkt met vloerbedekking, gestuukte wanden en een gestuukt plafond.

Badkamer:
De ruime badkamer is aan de voorzijde van de woning gelegen en van alle gemakken voorzien. Door het flinke raampartij kan het daglicht goed binnenvallen wat de ruimte nog fijner doet aanvoelen. Een fijne plek om je even op te frissen. De badkamer is in warme natuurtinten afgewerkt en voorzien van:
+ Badkamermeubel met dubbele wastafel
+ Handdoekenradiator
+ Inloopdouche
+ Wandcloset
+ Whirlpool
De ruimte is afgewerkt met een tegelvloer, betegelde wanden en een gestuukt plafond.

Slaapkamer 1:
De hoofdslaapkamer van circa 15 m2 is heerlijk ruim te noemen. Een echt kingsizes tweepersoonsbed past er met gemak in. De kamer is voorzien van twee inbouwkasten waar met gemak de nodige kleding in kan worden opgeborgen. Via het grote raampartij komt er veel licht binnen.
De ruimte is afgewerkt met een vinylvloer, spachtelputz wanden en een gestuukt plafond.

Slaapkamer 2:
Eveneens een ruime slaapkamer met een vaste kast voor een groot deel van de kleding. Een tweepersoonsbed past er met gemak in. Extra handig is het aanwezige badkamermeubel. De kamer is aan de achterzijde gelegen en geeft een mooi uitzicht over de achtertuin.
De ruimte is afgewerkt met een vinylvloer, behangen wanden en een gestuukt plafond.

Slaapkamer 3:
De perfecte kinderkamer die ook heel goed te gebruiken is als thuiskantoor. Wederom doordat de raampartij over vrijwel de geheel breedte van de kamer is gesitueerd kan het daglicht goed binnenkomen wat de kamer extra fijn doet aanvoelen. Een bed, kast en bureau het past er allemaal in.
De ruimte is afgewerkt met een vinylvloer, behangen wanden en een gestuukt plafond.


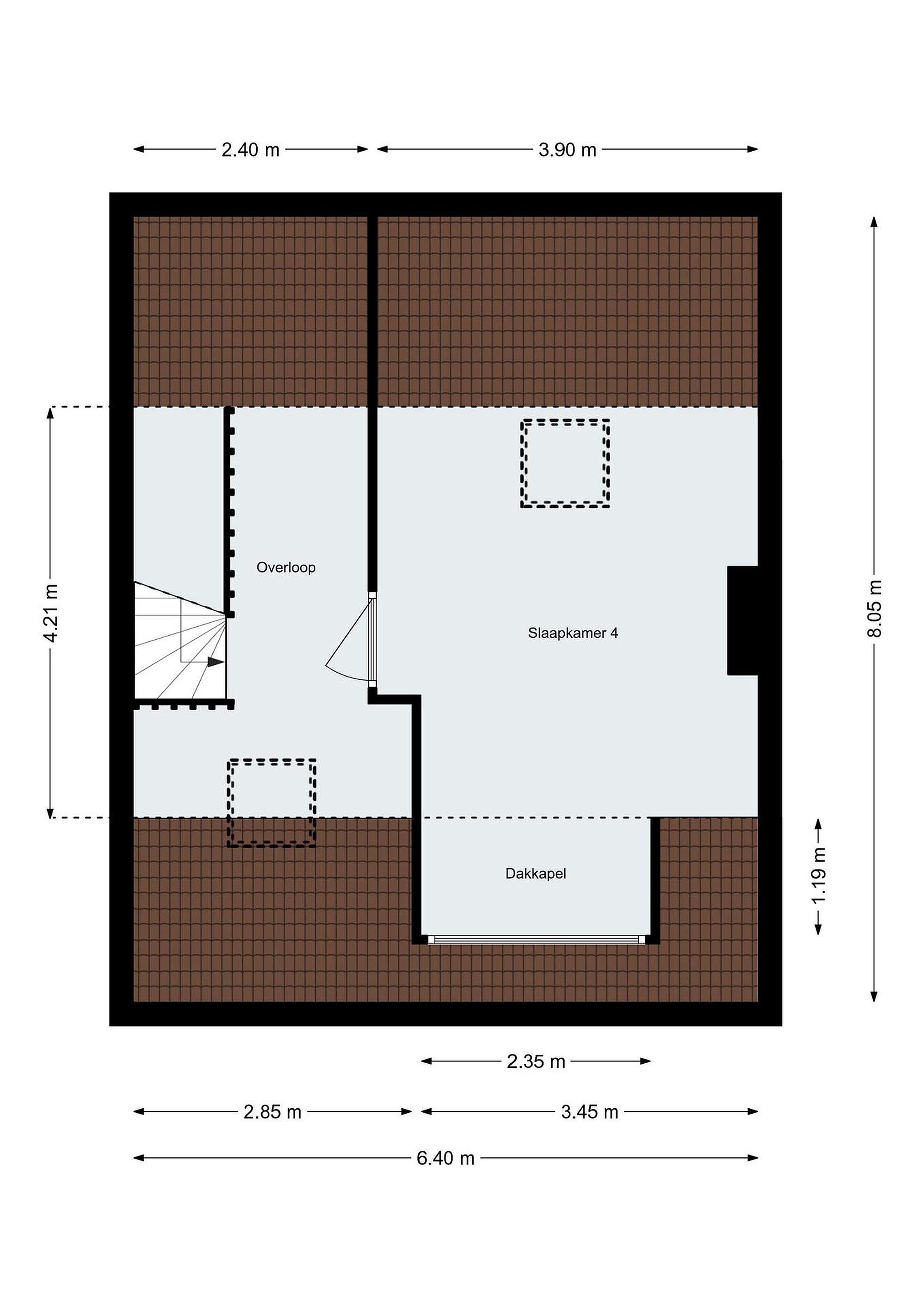
Tweede verdieping
Overloop:
Via een vaste trap komen we uit op de tweede-/zolderverdieping. Via het dakraam wordt de overloop en trapopgang voorzien van daglicht. Op de overloop treffen we de combiketel en wasmachine-aansluiting. Achter het knieschot is er opbergruimte voor de kerstversiering en vakantiekoffers.
De ruimte is afgewerkt met vloerbedekking, gestuukte wanden en een houtenschroten plafond.

Slaapkamer 4:
Gezellige slaapkamer met bedstee. Door de aanwezige dakkapel is de kamer extra groot van formaat en maakt de kamer extra fijn. Een perfecte kinder-/tienerkamer met eigen badkamermeubel. Extra berging treffen we achter de knieschotten.
De ruimte is afgewerkt met een vinylvloer, gestuukte wanden en een houtenschroten plafond.


Tuin

Tuin:
Voortuin:
De voortuin (afm. circa. 2.50 x 6,50) is netjes en gelegen op het noordoosten. De tuin heeft een gezellige uitstraling met een mooie tuinborder en sfeervolle boompjes en het nodige groen.

Achtertuin:
De achtertuin (afm. ca. 10,00 x 6,5) is gelegen op het zuidwesten en voorzien van een zonnescherm voor extra schaduw. De tuin heeft diverse borders, boompjes en best veel groen. De speels, maar vooral fraai aangelegde tuin heeft ook een mooi speelgazon en boom die zorgt voor wat schaduw. Je mag oprecht spreken van een sfeervolle tuin. Via de berging/kantoor ruimte is de achterom te bereiken wel zo praktisch.

Berging/praktijkruimte:
Het extraatje van de woning! De over de gehele breedte van het perceel geplaatste berging is verdeeld in een aantal ruimtes. Wat het totaal extra praktisch maakt. Totale vloeroppervlakte is circa 30 m2. De eerste ruimte is uitstekende te gebruiken als berging voor het tuingereedschap en de fietsen. Het portaal geeft toegang tot de kantoor/praktijk/hobbyruimte en het achterom. De vaste kasten zorgen voor de nodige bergruimte. Tot slot de multifunctionele ruimte van circa 14,5 m2 is voor de thuiswerkers onder ons haast een hebbeding. Hier kun je in alle rust werken en stiekem genieten van de tuin. Wil je misschien iets voor jezelf starten dan leent deze ruimte zich daar ook goed voor. In de vaste kast tref je een wastafel.

Lees meer

Verkoopgeschiedenis

Aangeboden sinds
4 september 2025
Verkoopdatum
27 oktober 2025
Looptijd
2 maanden

Kenmerken

Overdracht

Prijs per m2
€ 2.846
Aangeboden sinds
4 september 2025
Status
Verkocht
Aanvaarding
In overleg

Bouw

Soort woonhuis
Eengezinswoning, tussen woning
Soort bouw
Bestaande bouw
Bouwjaar
1962
Soort dak
Zadeldak
Staat van onderhouden binnen
Uitstekend
Staat van onderhouden buiten
Uitstekend

Oppervlakte en inhoud

Perceeloppervlakte
174 m2
Inhoud van de woning
440 m3
Oppervlakte gebouwgebonden buitenruimten
25 m2

Indeling

Aantal kamers
5
Aantal slaapkamers
4
Aantal woonlagen
3
Voorzieningen
Tuin, schuur/berging, glasvezel, rookkanaal, dakraam

Buitenruimte

Balkon
Nee
Schuur/berging
Ja

Maandlasten berekenen

De maandlasten voor je woning bestaan uit meer dan alleen de hypotheeklasten. Hieronder vind je een overzicht van de bijkomende kosten en lasten. Zo weet je precies wat je huis per maand gaat kosten. En met de handige vergelijkers kun je ook nog eens snel de beste deals sluiten!

  • Kaart
  • Streetview