Verkocht

Polderplein 3 2731 ER Benthuizen

100m2
Wonen
5
Kamers
139m2
Perceel
1970
Bouwjaar
English below.

Wat een ruimte heeft deze fijne eengezinswoning!

De ligging is vlakbij de karakteristieke dorpskern met diverse winkels op loopafstand en nabij de polders van het Groen Hart, het rustige Bentwoud, de golfbaan en diverse uitvalswegen naar Zoetermeer, Leiden, Alphen aan de Rijn en Utrecht.

De woning beschikt over een heerlijke tuin aan zowel de voor- als achterzijde én een enorme schuur waar je naar hartenlust kunt hobbyen, klussen of extra spullen kunt opbergen.

De voortuin is extra ruim doordat er een groot stuk snippergrond bij hoort. Dit betekent dat jij het onderhoud verzorgt, terwijl de grond eigendom blijft van de gemeente. Zo geniet je van een prachtig, groen uitzicht op jouw eigen met zorg aangelegde tuin.

Voor de exacte indeling en indicatieve maatvoering verwijzen wij je graag naar de plattegronden achter de fotoreportage.

Indeling:

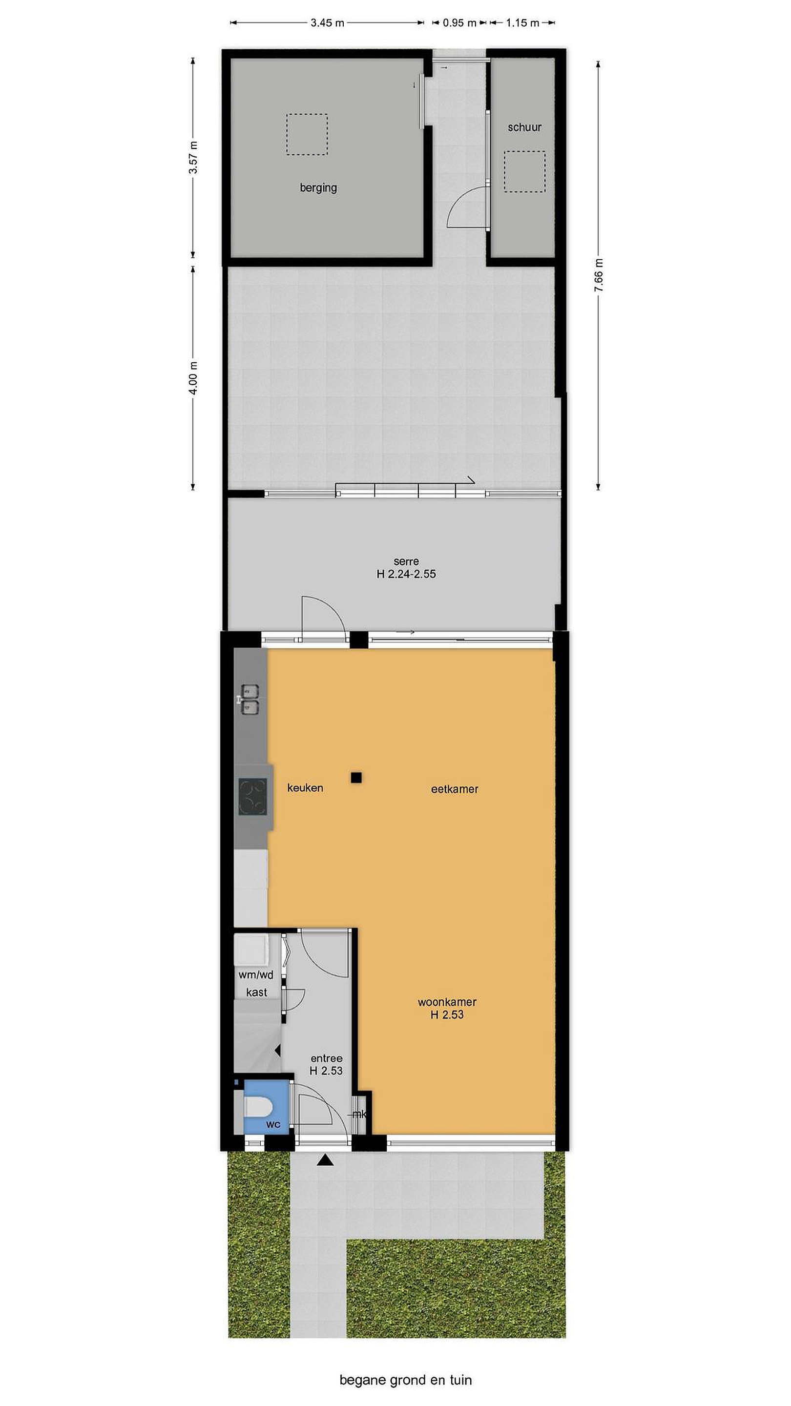
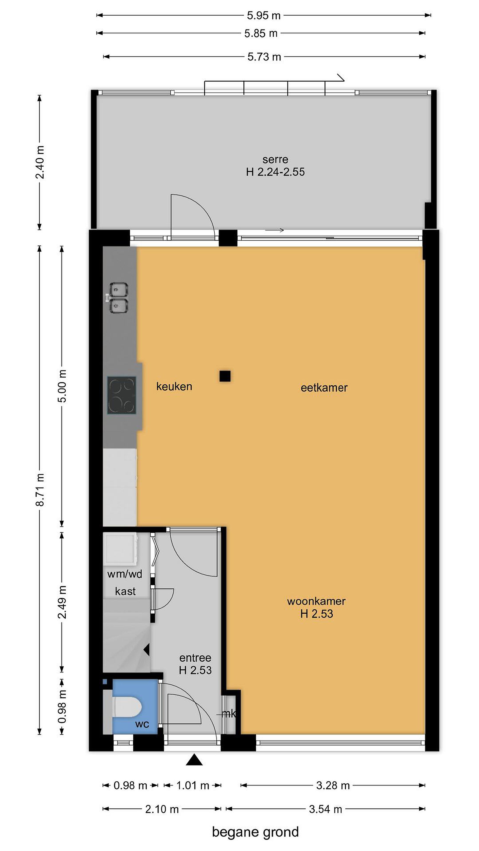
Begane grond:
Via de ruime voortuin bereik je de entree van de woning. In de hal bevinden zich het toilet en een praktische kast met de opstelling voor de wasmachine en droger.

Vanuit de hal kom je in de ruime en lichte doorzonwoonkamer met aangebouwde serre. De vloer van de woonkamer is geïsoleerd (voorzijde houten vloer, serre op beton) en afgewerkt met een fraaie parketvloer. Daarnaast is de woonkamer voorzien van airconditioning, wat zorgt voor extra comfort.

De later aangebouwde serre is bereikbaar via een schuifpui en zorgt voor veel extra licht in de woonkamer. Hier ligt een tegelvloer en heb je een mooie verbinding met de tuin.

De sfeervolle achtertuin beschikt over maar liefst twee ruime schuren, ideaal voor opslag, hobby’s of kluswerk.

De landelijke open keuken is uitgerust met diverse inbouwapparatuur, waaronder een oven (2023), inductiekookplaat (2023), afzuigkap en koelkast.

Eerste etage:

Via de overloop bereik je de kamers op deze verdieping.

Aan de achterzijde bevindt zich een kleinere slaapkamer met houten vloer.
De slaapkamer aan de voorzijde geeft tevens toegang tot de ruime master bedroom welke aan de achterzijde ligt. Deze kamer beschikt over een groot terras, een vaste kastenwand en airconditioning. Beide kamers zijn voorzien van een nette laminaatvloer.

Verder is er een eenvoudige badkamer met douche en toilet.

Tweede etage:

Op de tweede verdieping vind je een kamer en een overloop met over de volledige breedte een dakkapel aan de achterzijde, wat zorgt voor veel extra ruimte en licht.

Op de overloop bevinden zich een wastafel en de opstelling voor de CV-ketel.
Deze gehele verdieping is voorzien van een houten vloer.


Bijzonderheden:

- Bouwjaar 1970
- Eigen grond
- Energielabel A
- Vloer begane grond geïsoleerd
- Dak geïsoleerd
- 2 airco's aanwezig ( 1 in de woonkamer en 1 in de slaapkamer
- Voortuin met diverse fruitbomen heeft groot stuk snippergrond welke door de huidige bewoner keurig onderhouden wordt.
- 13 zonnepanelen aanwezig ( eigendom )
- Wasmachine/ droger opstelling in aparte kast in de hal begane grond
- Vernieuwde elektra en gasleiding
- Hard houten kozijnen ( voorzijde geschilderd in 2025, achterzijde 2024 )
- Waterpomp in de hal om de kruipruimte droog te houden
- Nefit Topline ketel 2015 eigendom
- Warm water boiler in de keuken
- Koper dient de objectinformatie met aanvullende clausules te aanvaarden
- Oplevering in overleg



De vermelde informatie is van algemene aard en is niet meer dan een uitnodiging om de woning te bezichtigen of om in onderhandeling te treden. Hoewel deze tekst en plattegrond met zorg zijn samengesteld zijn wij niet aansprakelijk voor eventuele onjuistheden. De toegepaste Meetinstructie sluit verschillen in meetuitkomsten niet volledig uit, door bijvoorbeeld interpretatieverschillen, afrondingen of beperkingen bij het uitvoeren van de meting. Aan de inhoud van deze informatie kunnen geen rechten worden ontleend.
De foto's en plattegronden zijn eigendom van De Huizenbemiddelaar Den Haag/ Verkoop

English.

What a spacious family home this lovely is!

It is located close to the characteristic village center with various shops within walking distance, and near the polders of the Groen Hart, the peaceful Bentwoud, the golf course, and various arterial roads to Zoetermeer, Leiden, Alphen aan de Rijn, and Utrecht.

The house features a delightful garden at both the front and rear, as well as a huge shed where you can indulge in hobbies, DIY projects, or store extra items to your heart's content.

The front garden is extra spacious because it includes a large piece of shared land. This means you take care of the maintenance, while the land remains the property of the municipality. This allows you to enjoy a beautiful, green view of your own carefully landscaped garden.

For the exact layout and indicative dimensions, we kindly refer you to the floor plans behind the photo report.

Layout:

Ground floor:
You reach the entrance to the house via the spacious front garden. The hall contains the toilet and a practical cupboard with space for the washing machine and dryer. From the hallway, you enter the spacious and bright living room with an attached conservatory. The living room floor is insulated (wooden floor at the front, concrete in the conservatory) and finished with beautiful parquet flooring. Additionally, the living room is equipped with air conditioning, ensuring extra comfort.

The conservatory, added later, is accessible via sliding doors and provides plenty of extra light in the living room. It features a tiled floor and offers a lovely connection to the garden.

The charming backyard features no fewer than two spacious sheds, ideal for storage, hobbies, or DIY projects.

The country-style open kitchen is equipped with various built-in appliances, including an oven (2023), induction hob (2023), extractor hood, and refrigerator.

First floor:

The rooms on this floor are accessed via the landing.

At the rear, there is a smaller bedroom with wooden flooring.
The bedroom at the front also provides access to the spacious master bedroom, which is located at the rear. This room features a large terrace, a built-in wardrobe, and air conditioning. Both rooms feature neat laminate flooring.

Furthermore, there is a simple bathroom with a shower and toilet.

Second floor:

On the second floor, you will find a room and a landing with a dormer window spanning the full width at the rear, providing plenty of extra space and light.

A washbasin and the setup for the central heating boiler are located on the landing.
This entire floor features wooden flooring. Particulars:

- Year of construction 1970
- Freehold
- Energy label A
- Ground floor insulated
- Roof insulated
- 2 air conditioners present (1 in the living room and 1 in the bedroom)
- Front garden with various fruit trees features a large area of ​​chippings which is neatly maintained by the current resident.
- 13 solar panels present (owned)
- Washing machine/dryer setup in a separate cupboard in the ground floor hallway
- Renewed electrical and gas wiring
- Hardwood window frames (front painted in 2025, rear 2024)
- Water pump in the hallway to keep the crawl space dry
- Nefit Topline boiler 2015 owned
- Hot water boiler in the kitchen
- The buyer is required to accept the property information with additional clauses
- Completion in consultation

The information provided is of a general nature and is merely an invitation to view the property or to enter into negotiations. Although this text and floor plan have been compiled with care, we are not liable for any inaccuracies. The The applied Measurement Instructions do not completely rule out differences in measurement results, for example due to differences in interpretation, rounding, or limitations in carrying out the measurement. No rights can be derived from the content of this information.

The photos and floor plans are the property of De Huizenbemiddelaar Den Haag/ Verkoop
Lees meer

Verkoopgeschiedenis

Aangeboden sinds
20 maart 2026
Verkoopdatum
14 april 2026
Looptijd
25 dagen

Kenmerken

Overdracht

Prijs per m2
€ 4.386
Aangeboden sinds
20 maart 2026
Status
Verkocht
Aanvaarding
In overleg

Bouw

Soort woonhuis
Eengezinswoning, tussen woning
Soort bouw
Bestaande bouw
Bouwjaar
1970
Soort dak
Zadeldak
Staat van onderhouden binnen
Goed
Staat van onderhouden buiten
Goed

Oppervlakte en inhoud

Perceeloppervlakte
139 m2
Inhoud van de woning
334 m3
Oppervlakte externe bergruimte
30 m2

Indeling

Aantal kamers
5
Aantal slaapkamers
4
Aantal woonlagen
3
Voorzieningen
Tuin, schuur/berging, airconditioning, schuifpui

Buitenruimte

Balkon
Nee
Schuur/berging
Ja

Maandlasten berekenen

De maandlasten voor je woning bestaan uit meer dan alleen de hypotheeklasten. Hieronder vind je een overzicht van de bijkomende kosten en lasten. Zo weet je precies wat je huis per maand gaat kosten. En met de handige vergelijkers kun je ook nog eens snel de beste deals sluiten!

  • Kaart
  • Streetview