Verkocht

Posthoorn 33 7884 PA Barger-Compascuum

90m2
Wonen
5
Kamers
314m2
Perceel
1972
Bouwjaar
**Gezinswoning om verliefd op te worden – Posthoorn 33, Barger-Compascuum**

Ben je starter op de woningmarkt of droom je als jong gezin van een eigen huis met ruimte, licht en natuur om je heen? Dan wil je dit huis aan de Posthoorn 33 écht niet missen. Deze fijne tussenwoning uit 1972 is netjes onderhouden, verrassend ruim en ligt in het hart van Barger-Compascuum. Met maar liefst vier slaapkamers, een aangebouwde overkapping/tuinkamer op het zuiden, geniet je hier elke dag van comfort, rust en vrijheid.

**Veel ruimte, veel mogelijkheden**

De woning staat op een perceel van 314 m2. Binnen valt direct de ruime indeling op. Je stapt binnen in een lichte hal die toegang geeft tot de keuken en woonkamer.
Vanuit hier loop je zo door naar de op het zuiden aangebouwde overkapping cq tuinkamer: jouw zonnige extra leefruimte waar je het hele jaar door van kunst genieten.

**Vier slaapkamers voor elk gezinslid een eigen plekje**

Met vier slaapkamers heeft iedereen zijn eigen domein. Of je nu een thuiskantoor wilt creëren, een speelkamer voor de kinderen zoekt of een logeerkamer wilt inrichten, het kan allemaal! Wat dacht je van een mooie inloopkast of zelfs een hobbykamer? Posthoorn 33 geeft je de vrijheid om je woondromen waar te maken.

**Natuur om de hoek**

Houd je van wandelen, fietsen of gewoon lekker buiten zijn? Dan zit je hier helemaal goed. Het prachtige natuurgebied Rundedal ligt op loopafstand en ook het uitgestrekte Bargerveen ligt om de hoek. Laat je honden uit in het groen, ontdek verrassende wandelpaden of geniet simpelweg van de rust en ruimte die deze omgeving je biedt.

**Starters en jonge gezinnen opgelet!**

Deze instapklare woning biedt alles wat je zoekt als starter of jong gezin. Betaalbaar wonen met alle voorzieningen in de buurt, scholen om de hoek en fijne buren. De wijk Barger-Compascuum staat bekend om zijn gemoedelijkheid en saamhorigheid. Hier voelt iedereen zich al snel thuis.

Begane grond
De indeling is als volgt:
- entree/hal
- meterkast
- toilet
- kelderkast
- keuken
- woonkamer
- overkapping / tuinkamer

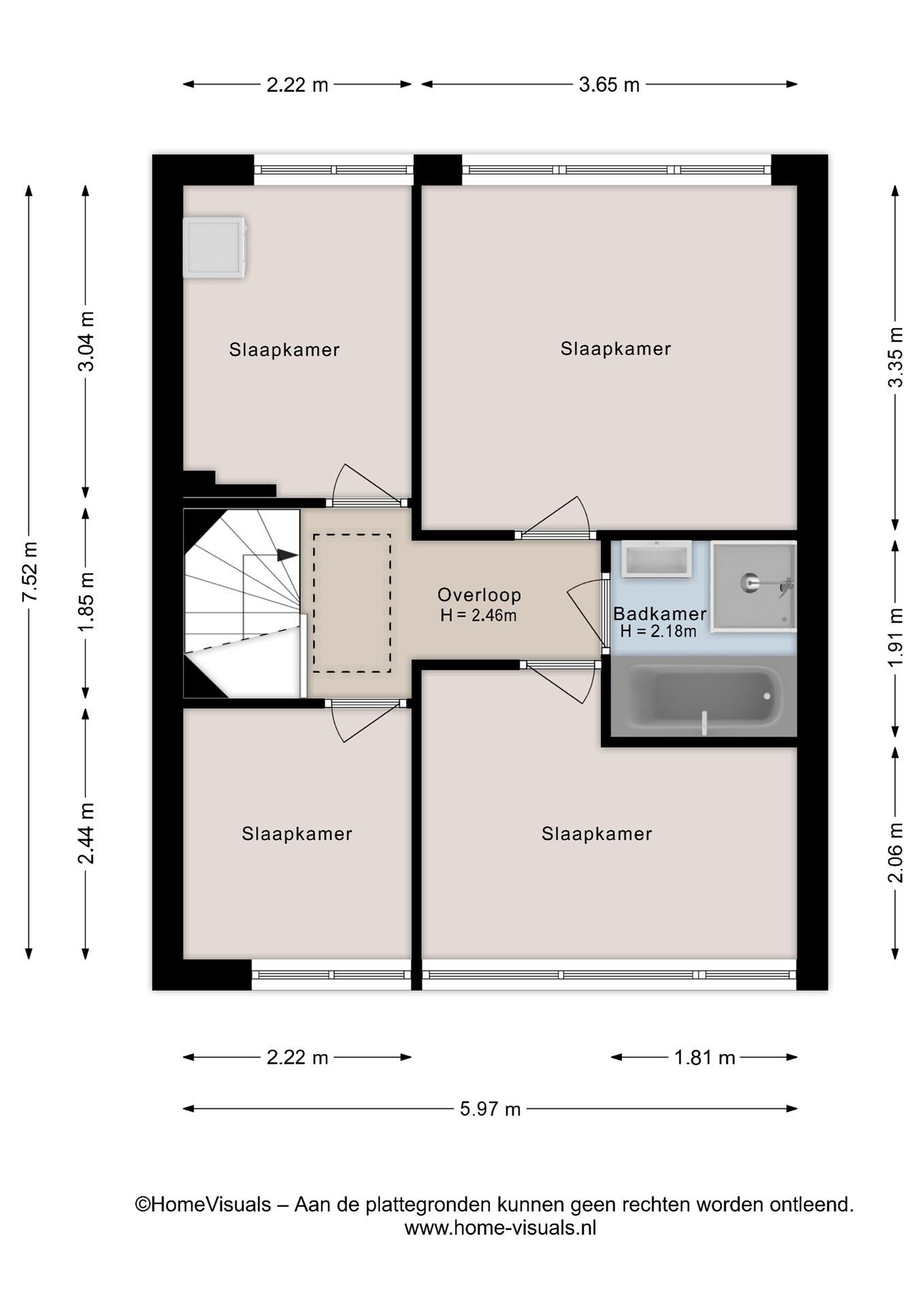
Eerste verdieping
De indeling van de eerste verdieping is:
- overloop
- 4 slaapkamers
- badkamer met wastafel, douche en ligbad

Tweede verdieping
Via vlizotrap bereikbare zolderverdieping:
- opstelplaats cv-ketel
- bergzolder

Tuin
De tuin is op het zuiden gericht en volledig bestraat.

Details
- Fijne eengezinswoning in rustige, groene omgeving
- Vier slaapkamers dus genoeg ruimte voor ieder gezinslid
- Aangebouwde overkapping cq tuinkamer
- Perceel van 314 m2
- Dicht bij prachtige natuurgebieden Rundedal en Bargerveen
- Ideaal voor starters en jonge gezinnen

Zie jij jezelf hier al helemaal wonen? Kom gerust langs en proef de sfeer! Maak snel een afspraak voor een bezichtiging en wie weet sta jij binnenkort met de sleutels in handen van dit heerlijke huis aan de Posthoorn 33 in Barger-Compascuum. Dit is dé kans om jouw eigen plek te creëren — waar je groot kunt dromen en fijn kunt leven!

Een bezichtiging plannen? Neem dan contact op met Vodoz makelaardij voor het maken van een afspraak.
Deze informatie is door ons met de nodige zorgvuldigheid samengesteld. Er wordt echter geen enkele aansprakelijkheid aanvaard voor enige onvolledigheid, onjuistheid of dan wel de gevolgen daarvan. Alle opgegeven maten en oppervlakten zijn indicatief. Van toepassing zijn de voorwaarden van Vastgoed Ned.

Lees meer

Verkoopgeschiedenis

Aangeboden sinds
2 februari 2026
Verkoopdatum
7 april 2026
Looptijd
2 maanden

Kenmerken

Overdracht

Prijs per m2
€ 2.211
Aangeboden sinds
2 februari 2026
Status
Verkocht
Aanvaarding
In overleg

Bouw

Soort woonhuis
Eengezinswoning, tussen woning
Soort bouw
Bestaande bouw
Bouwjaar
1972
Soort dak
Zadeldak
Staat van onderhouden binnen
Goed
Staat van onderhouden buiten
Goed

Oppervlakte en inhoud

Perceeloppervlakte
314 m2
Inhoud van de woning
460 m3
Oppervlakte externe bergruimte
10 m2
Oppervlakte gebouwgebonden buitenruimten
17 m2
Oppervlakte overige inpandige ruimten
19 m2

Indeling

Aantal kamers
5
Aantal slaapkamers
4
Aantal woonlagen
3
Voorzieningen
Glasvezel, dakraam

Buitenruimte

Balkon
Nee
Schuur/berging
Nee

Maandlasten berekenen

De maandlasten voor je woning bestaan uit meer dan alleen de hypotheeklasten. Hieronder vind je een overzicht van de bijkomende kosten en lasten. Zo weet je precies wat je huis per maand gaat kosten. En met de handige vergelijkers kun je ook nog eens snel de beste deals sluiten!

  • Kaart
  • Streetview