Van Pallandtvliet 21 2992 WR Barendrecht

109m2
Wonen
5
Kamers
166m2
Perceel
1984
Bouwjaar
Wauw! Wat een stijlvolle en instapklare gezinswoning op een prachtige locatie, hier woon je met luxe, ruimte én vrij uitzicht!

YESS! DIT WIL JE NIET MISSEN – DE HIGHLIGHTS OP EEN RIJ:

1 Luxe open keuken met kookeiland
2 Mooie visgraatvloer op de begane grond
3 Ruime en lichte woonkamer
4 Hoekligging met vrij uitzicht aan de voorzijde
5 Maar liefst 5 kamers, dus volop ruimte!
6 Inloopkast waar je u tegen zegt
7 Moderne afwerking, direct instapklaar
8 Fijne achtertuin met berging en achterom
9 Rustige ligging in de populaire wijk Molenvliet
10 Dichtbij winkels, scholen, openbaar vervoer en uitvalswegen

Krijg je ook dat YESS-gevoel bij het lezen van deze punten? Dan nodigen wij je heel graag uit voor een bezichtiging van deze leuke woning!

DE LIGGING:
Je woont hier in de geliefde en kindvriendelijke wijk Molenvliet in Barendrecht. Een fijne, rustige woonomgeving met veel groen en speelvoorzieningen. Op korte afstand vind je winkelcentrum Molenvliet voor de dagelijkse boodschappen, diverse scholen, sportverenigingen en openbaar vervoer (bus en tram richting Rotterdam). Ook de uitvalswegen (A15 en A29) zijn snel bereikbaar, waardoor je zo onderweg bent richting Rotterdam of Dordrecht.

DE INDELING:
Je komt binnen in de hal met toegang tot het moderne toilet, de meterkast en de trapopgang. Vanuit hier loop je door naar de royale en lichte woonkamer. Dankzij de grote raampartijen en de hoekligging geniet je hier van veel lichtinval en een vrij uitzicht aan de voorzijde. De visgraatvloer en strakke wandafwerking zorgen direct voor een luxe en warme sfeer.

Aan de achterzijde vind je de prachtige open keuken met kookeiland, dé plek waar koken en gezelligheid samenkomen. De keuken is modern uitgevoerd en voorzien van diverse inbouwapparatuur en veel kastruimte. Vanuit de keuken heb je leuk zicht op de tuin.

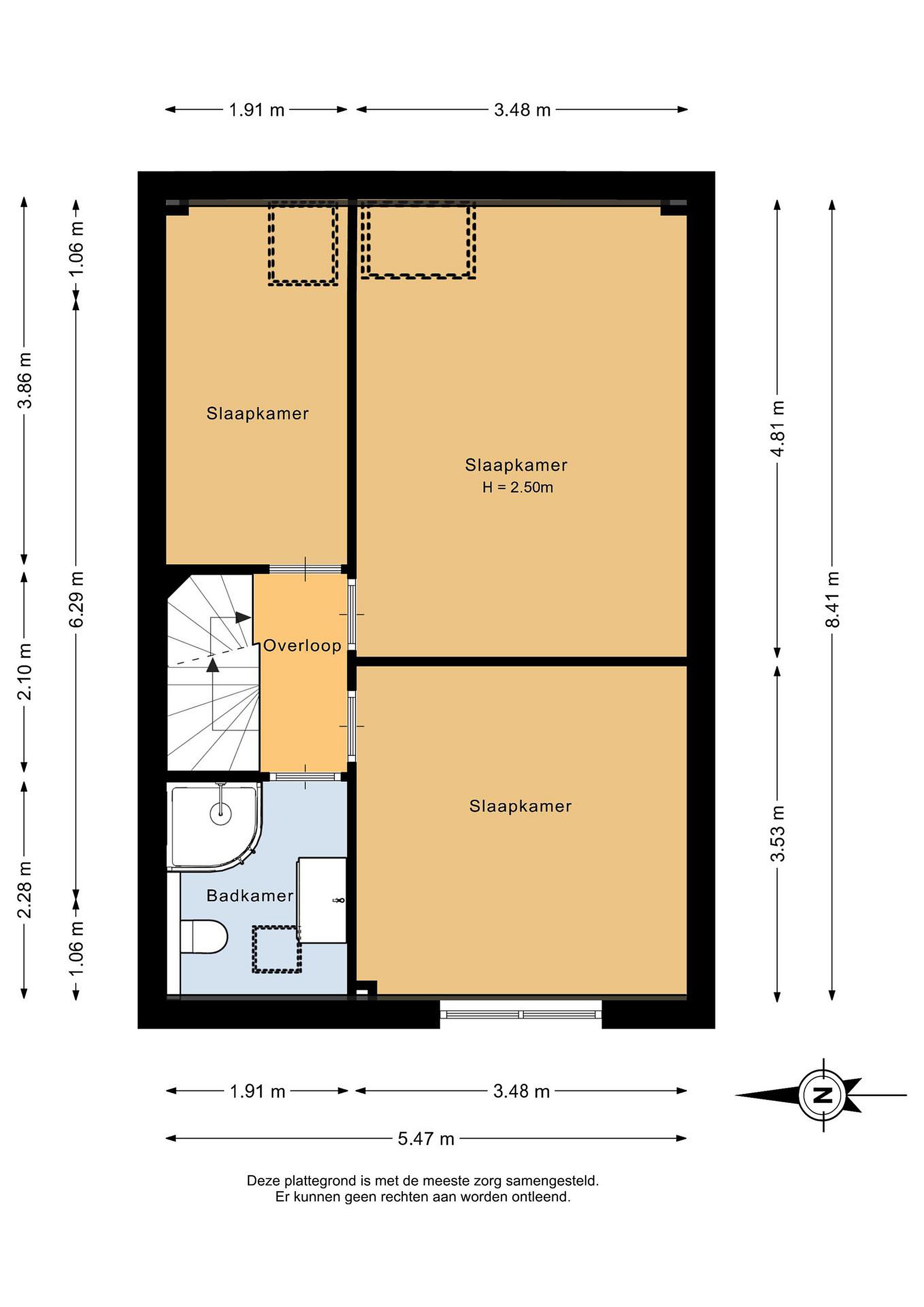
Op de eerste verdieping bevinden zich meerdere slaapkamers en de badkamer. De kamers zijn stuk voor stuk goed van formaat en multifunctioneel in te richten, bijvoorbeeld als werk- of kinderkamer met als absolute eyecatcher: de inloopkast. Hier heb je alle ruimte voor je garderobe, een droom voor velen ! De badkamer is netjes en praktisch ingericht.

De tweede verdieping biedt nog eens extra ruimte met een grote slaapkamer en de voorzolder met opstelplaats van de ketel en de wasmachine.

De achtertuin is verzorgd aangelegd en biedt voldoende ruimte om heerlijk te ontspannen. Daarnaast is er een berging aanwezig en een handige achterom.

DE AFMETINGEN:
Voor de afmetingen en indeling, zie de plattegrond.

DE BIJZONDERHEDEN:

- Hoekwoning met vrij uitzicht
- Volledig voorzien van dubbelglas
- Vailant ketel uit 2008
- Energielabel C
- Gelegen in populaire wijk Molenvliet
- Dichtbij voorzieningen en uitvalswegen
- Woonoppervlakte ca. 109 m2
- Externe bergruimte ca. 5 m2
- Bouwjaar 1984
- Oplevering in overleg

De Meetinstructie is gebaseerd op de NEN2580. De Meetinstructie is bedoeld om een meer eenduidige manier van meten toe te passen voor het geven van een indicatie van de gebruiksoppervlakte. De Meetinstructie sluit verschillen in meetuitkomsten niet volledig uit, door bijvoorbeeld interpretatieverschillen, afrondingen of beperkingen bij het uitvoeren van de meting.
Alle verstrekte informatie moet beschouwd worden als een uitnodiging tot het doen van een bod of om in onderhandeling te treden. Er kunnen geen rechten worden ontleend aan deze woninginformatie.

Ben jij net zo enthousiast als wij over deze woning? Bel, mail of app ons gerust voor een afspraak of laat je gegevens achter via deze site!
Lees meer

Kenmerken

Overdracht

Prijs per m2
€ 5.183
Aangeboden sinds
16 april 2026
Status
Beschikbaar
Aanvaarding
In overleg

Bouw

Soort woonhuis
Eengezinswoning, hoek woning
Soort bouw
Bestaande bouw
Bouwjaar
1984
Soort dak
Zadeldak
Staat van onderhouden binnen
Goed
Staat van onderhouden buiten
Goed

Oppervlakte en inhoud

Perceeloppervlakte
166 m2
Inhoud van de woning
375 m3
Oppervlakte externe bergruimte
5 m2

Indeling

Aantal kamers
5
Aantal slaapkamers
4
Aantal woonlagen
3
Voorzieningen
Tuin, ventilatie, dakraam

Buitenruimte

Balkon
Nee
Schuur/berging
Nee

Maandlasten berekenen

De maandlasten voor je woning bestaan uit meer dan alleen de hypotheeklasten. Hieronder vind je een overzicht van de bijkomende kosten en lasten. Zo weet je precies wat je huis per maand gaat kosten. En met de handige vergelijkers kun je ook nog eens snel de beste deals sluiten!

  • Kaart
  • Streetview