Olijfhout 41 2994 HV Barendrecht

166m2
Wonen
5
Kamers
89m2
Perceel
2008
Bouwjaar
YESS! Dit is er weer zo één… Een fantastische, speels ingedeelde eengezinswoning met maar liefst vier slaapkamers, moderne afwerking, een zonnig terras en een living waar je écht verliefd op wordt. Wonen en werken is hier perfect mogelijk. Hier woon je ruim, licht en luxe, midden in de geliefde wijk Vrijenburg in Barendrecht!

YESS! DIT WIL JE NIET MISSEN – DE HIGHLIGHTS OP EEN RIJ:

1. Maar liefst 4 ruime slaapkamers, waarvan 2 met inloopkasten, dress-up goals!
2. Een lichte woonkamer met prachtige parketvloer en ramen rondom;
3. Moderne keuken met vaatwasser, gaskookplaat, koelkast, vriezer, oven én koffiemachine;
4. Lichte eetkamer op de begane grond met mooi zicht op de omgeving;
5. Luxe badkamer met inloopdouche (hand- én regendouche), ligbad en toilet;
6. Grote inpandige berging én extra bergruimte door heel het huis;
7. Zonnig terras waar je heerlijk kunt loungen;
8. Begane grond én eerste verdieping voorzien van een mooie parketvloer;
9. Veel raampartijen, dus altijd een huis vol daglicht;
10. Twee privé parkeerplaatsen voor de deur;
11. Gelegen in de moderne, kindvriendelijke en gewilde wijk Vrijenburg met alle voorzieningen in de buurt;
12. Op de begane grond kan je praktijkruimte realiseren.

Krijg je ook dat YESS-gevoel bij het lezen van deze punten?
Dan nodigen wij je heel graag uit voor een bezichtiging van deze leuke woning!

DE LIGGING:

Je woont hier in Vrijenburg, één van de meest geliefde en moderne woonwijken van Barendrecht. Deze wijk staat bekend om de fijne balans tussen rust, ruimte en alle denkbare voorzieningen binnen handbereik. De straten zijn ruim opgezet, het groen is overal om je heen en de sfeer is er vriendelijk en gemoedelijk, precies wat je zoekt als je comfortabel én toekomstgericht wilt wonen.

In de directe omgeving vind je meerdere supermarkten, basisscholen, kinderopvangen en sportfaciliteiten. Of je nu de kinderen lopend naar school wilt brengen, snel even boodschappen wilt doen of graag sportief bezig bent: alles is letterlijk om de hoek. Ook aan recreatie geen gebrek. Je woont vlak bij prachtige wandel- en fietsroutes richting onder andere het Zuiderpark, de Rhoonse Grienden, de nieuw aangelegde waterpartijen en de groene singels van Vrijenburg. Een heerlijke omgeving voor een vroege wandeling, een rondje met de hond of een ontspannen weekendactiviteit.

Qua bereikbaarheid zit je hier perfect: de Tramlijn 25 richting Rotterdam stopt in de wijk, waardoor je binnen no-time in hartje stad bent! Ideaal voor werk of een dagje uit. Ook de busverbindingen, diverse uitvalswegen zoals de A15 en A29 en het nabijgelegen station Barendrecht zorgen voor uitstekende verbindingen met Rotterdam, Ridderkerk, Dordrecht en de rest van de Randstad.

DE INDELING:
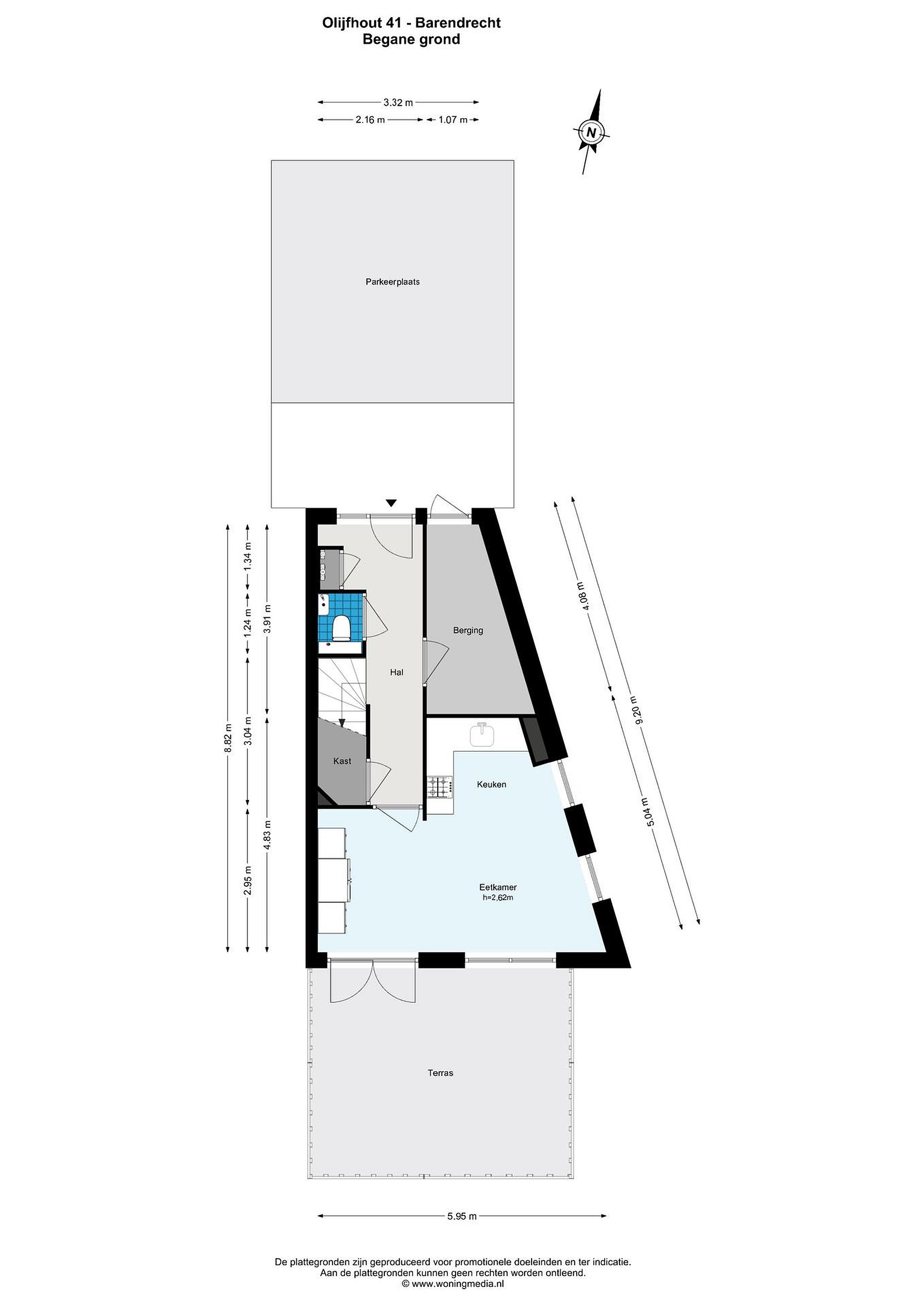
Begane grond

Welkom! Je komt binnen in een keurige, lichte hal waar meteen de fijne sfeer van het huis voelbaar wordt. Hier vind je toegang tot de ruime inpandige berging, een enorme plus die je niet vaak ziet bij woningen in deze bouwstijl. Ideaal voor bijvoorbeeld fietsen, voorraad en gereedschap. Daarnaast is er een keurig afgewerkt toilet, trapkast en de trapopgang naar de woonverdieping.

Loop je door, dan kom je in de lichte en gezellige woonkeuken/eetkamer. De grote ramen rondom zorgen hier voor een fantastische natuurlijke lichtinval. De keuken is strak vormgegeven, tijdloos wit en voorzien van alle apparatuur die je maar nodig hebt: een gaskookplaat, vaatwasser, koelkast, vriezer, Quooker, oven én een ingebouwde koffiemachine voor de perfecte start van je ochtend. Deze ruimte kan tevens ook dienen als praktijkruimte. Werk en privé kan goed gescheiden blijven.

De eetkamer biedt voldoende ruimte voor een royale eettafel ideaal voor lange diners, feestjes of gezellige avonden met vrienden. Door de open indeling en de lichte afwerking voelt dit hele niveau heerlijk ruimtelijk en warm aan.

Eerste verdieping

Via de trap bereik je de royale woonkamer en royaal is hier echt het juiste woord. Dit is zo’n verdieping waar je binnenstapt en direct denkt: wauw, dit is groot! De ruimte strekt zich breed uit en doordat de woonkamer rondom grote ramen heeft, valt het daglicht hier werkelijk van alle kanten naar binnen.

De prachtige parketvloer en de rustige kleuren zorgen voor een stijlvol geheel dat je volledig naar eigen smaak kunt aankleden. De indeling is bovendien super praktisch: je hebt voldoende mogelijkheden voor een grote zithoek, een tv-meubel, een werkplek of een speelhoek en dat zonder dat het ook maar ergens vol aanvoelt. Een heerlijke leef verdieping om écht tot rust te komen.

Tweede verdieping

Op deze verdieping bevinden zich twee ruime slaapkamers die beide een prettig formaat hebben. De grootste slaapkamer beschikt over een inloopkast, waardoor kleding en accessoires netjes kunnen worden opgeborgen en de kamer strak blijft.

De badkamer op deze verdieping is absoluut een showpiece. Luxe én compleet: hier geniet je van een ruime inloopdouche met hand- én regendouche, een comfortabel ligbad, een modern wastafelmeubel en een tweede toilet. Alles is netjes afgewerkt en dankzij de frisse kleurstelling straalt het een wellness gevoel uit. Dé plek om je dag relaxed te starten of juist af te sluiten.

Derde verdieping

Deze verdieping biedt nóg meer ruimte. Hier vind je opnieuw twee grote slaapkamers (waarvan één slaapkamer beschikt over inloopkast, echt ideaal!).

Daarnaast is er een extra kamer die je perfect kunt gebruiken als thuiswerkplek, hobbykamer, gaming room of logeerkamer. Langs de hal vind je ook nog de afzonderlijke wasruimte, waardoor je al je wasmachine en drogerzaken netjes uit het zicht hebt. Praktisch én netjes, precies zoals je het wilt.

Buiten / Terras

Via de begane grond loop je zo het heerlijke zonnige terras op. Omdat dit terras ruim is opgezet, kun je hier alle kanten op: loungen in de zon, lekker barbecueën met vrienden, een speelplekje voor de kinderen creëren of gewoon genieten van een kop koffie in de ochtend.

Door de ligging heb je hier verrassend veel privacy en rust, terwijl je toch midden in een gezellige woonwijk zit. De houten vlonder en de open uitstraling geven het buitengevoel een extra dimensie dit is echt een plek waar je graag verblijft.

DE AFMETINGEN:
Voor de afmetingen en indeling, zie de plattegrond.

DE BIJZONDERHEDEN:
- Woonoppervlakte: ca. 166,9 m2
- Terras: ca. 23,3 m2
- Mogelijkheid tot het creëren van praktijkruimte
- Actieve vereniging van eigenaren voor het onderhoud van het binnenterrein á €33.88 p/m
- Vier ruime slaapkamers
- Twee slaapkamers met inloopkast
- Moderne keuken volledig uitgerust
- Luxe badkamer met bad en inloopdouche
- Inpandige berging op de begane grond
- Begane grond en eerste verdieping met parketvloer
- Voorlopig energielabel A
- Eigen grond
- Oplevering in overleg.

De Meetinstructie is gebaseerd op de NEN2580. De Meetinstructie is bedoeld om een meer eenduidige manier van meten toe te passen voor het geven van een indicatie van de gebruiksoppervlakte. De Meetinstructie sluit verschillen in meetuitkomsten niet volledig uit, door bijvoorbeeld interpretatieverschillen, afrondingen of beperkingen bij het uitvoeren van de meting.
Alle verstrekte informatie moet beschouwd worden als een uitnodiging tot het doen van een bod of om in onderhandeling te treden. Er kunnen geen rechten worden ontleend aan deze woninginformatie.

Ben jij net zo enthousiast als wij over deze woning? Bel, mail of app ons gerust voor een afspraak of laat je gegevens achter via deze site!
Lees meer

Kenmerken

Overdracht

Prijs per m2
€ 4.164
Aangeboden sinds
28 november 2025
Status
Beschikbaar
Aanvaarding
In overleg

Bouw

Soort woonhuis
Eengezinswoning, hoek woning
Soort bouw
Bestaande bouw
Bouwjaar
2008
Soort dak
Plat dak
Staat van onderhouden binnen
Goed
Staat van onderhouden buiten
Goed

Oppervlakte en inhoud

Perceeloppervlakte
89 m2
Inhoud van de woning
599 m3
Oppervlakte gebouwgebonden buitenruimten
23 m2

Indeling

Aantal kamers
5
Aantal slaapkamers
4
Aantal woonlagen
4
Voorzieningen
Tuin, schuur/berging, ventilatie

Buitenruimte

Balkon
Nee
Schuur/berging
Ja

Maandlasten berekenen

De maandlasten voor je woning bestaan uit meer dan alleen de hypotheeklasten. Hieronder vind je een overzicht van de bijkomende kosten en lasten. Zo weet je precies wat je huis per maand gaat kosten. En met de handige vergelijkers kun je ook nog eens snel de beste deals sluiten!

  • Kaart
  • Streetview