Verkocht

Heechkamp 10 8561 JC Balk

136m2
Wonen
6
Kamers
263m2
Perceel
1999
Bouwjaar
Als je op zoek bent naar een warm, riant gezinshuis waar thuiswerken, hobby’s en gezinsleven moeiteloos samengaan, dan is deze 2/1 kapwoning met aangebouwde garage wellicht iets voor jullie.
Wat als je je gezin een lekker ruim huis kunt bieden, in een gezellige en rustige buurt, met alle ruimte om te leven, te werken én te ontspannen? Aan de Heechkamp 10 in Balk vind je zo’n kans. Een riante 2/1 kapwoning die je verwachtingen moeiteloos overtreft, met een flinke garage, een mooie hobbyruimte of kantoor, 5 slaapkamers en energielabel B.

De woning is goed onderhouden en instapklaar. De woonkamer is heerlijk licht en de moderne keuken met strak kookeiland nodigt uit om uitgebreid te kokkerellen. Alles is natuurlijk aanwezig: meer dan genoeg werkruimte, veel kastruimte en moderne apparatuur.

Maar er is meer, de ruime garage (denk aan: opslag, klusprojecten, fietsen, alles kan) wordt bekroond met een riante hobbyruimte of kantoorruimte erboven. Ideaal als je graag thuis werkt, eigen baas bent of een creatieve uitlaatklep zoekt. Studeerplek voor pubers? Atelier? Man cave? Speelkamer? Legio opties!

Nieuwsgierig geworden, bel gerust voor een bezichtiging, dan laten we alles graag zien!
Begane grond
We leiden je graag alvast rond:
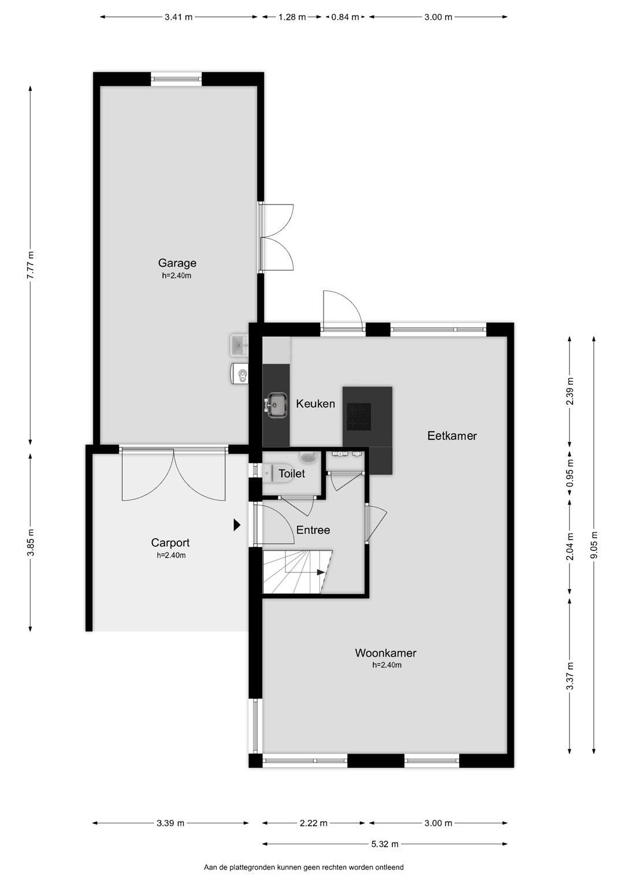
We betreden de woning via de voordeur en komen in de hal met toilet, meterkast en trapopgang, we lopen door naar de lichte L-vormige woonkamer met veel natuurlijke lichtinval en een moderne open keuken, welke nieuw geplaatst is in 2019, met kookeiland en diverse inbouwapparatuur zoals; inductie kookplaat met geïntegreerde afzuiging, koelkast, quooker en combimagnetron.

De aangebouwde stenen garage is ca. 7.75x3,40 m. (26 m2) en toegankelijk via de openslaande garagedeuren aan de voorzijde en de dubbele openslaande deuren aan de tuinzijde. De cv-installatie bevindt zich in de garage, tevens is er een spoelbak aanwezig. Aan de voorzijde van de garage is nog een carport.

De achtertuin is gelegen op het noodwesten en is zonnig en ruim.

Eerste verdieping
De overloop geeft toegang tot de 4 slaapkamers, waarvan 1 zeer ruime slaapkamer zich boven de garage bevindt, dit is ook een ideale hobby of kantoorruimte etc. In de master bedroom is een grote vaste kastenwand met schuifdeuren. De badkamer is ruim en heeft een inloopdouche, 2e toilet, wastafel en hangkast, tevens bevindt zich hier de aansluiting voor de wasmachine.
Door de dakkapellen aan zowel de voor-, als achterzijde zijn de slaapkamers mooi ruim.

Tweede verdieping
Op de zolderverdieping, welke toegankelijk is via een vaste trapopgang, is nog een ruime 5e slaapkamer.

Details
De woning is traditioneel gebouwd in 1999 en is geïsoleerd d.m.v. dak-, vloer- en spouwisolatie en geheel voorzien van HR+ beglazing in houten kozijnen, de dakkapel aan de voorzijde is van kunststof en heeft HR++ beglazing. De vloeren zijn betonvloeren. De woning wordt verwarmd d.m.v. centrale verwarming, de HR-combiketel is van 2015 en eigendom.

De Heechkamp 10 in het kort:
- riante 2/1 kapwoning
- gebouwd in 1999
- grote garage met kap
- 263 m2 perceeloppervlakte
- 136 m2 woonoppervlakte
- 5 slaapkamers
- boven garage grote hobby- of kantoorruimte etc.
- moderne keuken (2019)
- goed onderhouden
- prachtige gezinswoning
- rustige buurt
- op korte afstand van centrum van Balk
- energielabel B
- instapklaar

Wil je meer weten over het mooie Friese dorp Balk lees dan hier verder.

Balk ligt in de gemeente De Fryske Marren tussen Harich en Wijckel en telt ca. 4.000 inwoners. Balk dankt zijn ontstaan door de handel tussen Wijckel en Harich dat bij een balk over de Luts plaats vond. Op de plaats waar het pad via een balk over het water leidde, kwam er steeds meer leven in de brouwerij. Daar ontstond “vlecke Balk” aan het begin van zijn ontwikkeling sinds ongeveer 1486. De balk is later vervangen door een brug.

Balk wordt steeds meer een watersportdorp, het ligt aan het Slotermeer en door het dorp stroomt het water de Luts, waar prachtige kanotochten gemaakt kunnen worden. Maar ook zeilscholen zijn hier aanwezig en ook kunt u er een sloep huren. In de zomermaanden zijn er de Lutskedagen. Deze gezellige braderieën vinden plaats rondom de Luts in het centrum. Tevens is in augustus de feestweek van Balk met onder andere een kermis en gondelvaart.
In de wintermaanden wordt er vanuit Balk op het Slotermeer om de Berenburgcup gezeild. Deze cup gaat over het Slotermeer en start vanuit Balk.

Balk is een heel levendig dorp en beschikt over een gezellig historisch centrum, er zijn uitgebreide voorzieningen aanwezig. In Balk vind je 3 grote supermarkten zoals de Plus, Poeisz en Lidl en is het winkelaanbod heel uitgebreid, er is een Hema, Blokker, Kruidvat, Top1Toys, cadeauwinkels, kledingwinkels, bouwmarkten enz. Ook op horecagebied is Balk goed vertegenwoordigt, er zijn meerdere restaurants en cafés. Er zijn enkele basisscholen en voor het voortgezet onderwijs kun je ook in Balk terecht.

Gaasterland staat bekend om haar bos– en waterrijke woonomgeving, pittoreske plaatsjes, ruimte en natuurschoon. Dit alles maakt het gebied geliefd om te wonen, werken en recreëren. Op korte afstand (±5 km.) is een 9-holes golfbaan aanwezig. Ook zijn er in Gaasterland uitgebreide fiets– en wandelroutes en tal van watersportvoorzieningen, zoals een jachthaven aan de rand van Balk, er is zelfs een strandje. Natuurliefhebbers en watersporters zullen zich hier als een vis in het water voelen! Daarbij komt nog de gunstige ligging van het gebied nabij Lemmer met uitvalswegen richting de Randstad (A6).

Ben je ook zo enthousiast over Balk en omgeving, aarzel niet en bel ons dan meteen om een afspraak te maken om de woning te bezichtigen.

Lees meer

Verkoopgeschiedenis

Aangeboden sinds
26 januari 2026
Verkoopdatum
13 maart 2026
Looptijd
2 maanden

Kenmerken

Overdracht

Prijs per m2
€ 2.926
Aangeboden sinds
26 januari 2026
Status
Verkocht
Aanvaarding
Direct

Bouw

Soort woonhuis
Eengezinswoning, geschakelde twee-onder-een-kap woning
Soort bouw
Bestaande bouw
Bouwjaar
1999
Soort dak
Zadeldak
Staat van onderhouden binnen
Goed
Staat van onderhouden buiten
Goed

Oppervlakte en inhoud

Perceeloppervlakte
263 m2
Inhoud van de woning
560 m3
Oppervlakte gebouwgebonden buitenruimten
13 m2
Oppervlakte overige inpandige ruimten
26 m2

Indeling

Aantal kamers
6
Aantal slaapkamers
5
Aantal woonlagen
3
Voorzieningen
Tuin, schuur/berging, ventilatie, glasvezel

Buitenruimte

Balkon
Nee
Schuur/berging
Ja

Maandlasten berekenen

De maandlasten voor je woning bestaan uit meer dan alleen de hypotheeklasten. Hieronder vind je een overzicht van de bijkomende kosten en lasten. Zo weet je precies wat je huis per maand gaat kosten. En met de handige vergelijkers kun je ook nog eens snel de beste deals sluiten!

  • Kaart
  • Streetview