Verkocht

Frans Halslaan 9 3741 PC Baarn

113m2
Wonen
5
Kamers
180m2
Perceel
1952
Bouwjaar
Zodra je de deur opent, voel je het: dit is zo’n huis waar je zó in kunt trekken. Een instapklare tussenwoning met een warme, sfeervolle woonkamer met houtkachel, een moderne open keuken en verrassend veel leefruimte. De extra ruimte direct naast de keuken, ideaal als speelkamer, chillruimte of thuiswerkplek, zorgt ervoor dat je woonkamer precies blijft wat je wilt: een rustige, sfeervolle plek waar je ongestoord kunt ontspannen. Hier woon je comfortabel én praktisch. Met vier ruime slaapkamers, een complete badkamer, airco in drie slaapkamers, 8 zonnepanelen én energielabel B is deze woning helemaal klaar voor de toekomst. Je profiteert hier van comfort én energiezuinig wonen. Buiten geniet je van een riante achtertuin op het noordwesten met achterom en een grote, aangebouwde berging, ideaal voor fietsen, tuinspullen en extra opslag. Extra zekerheid wordt geboden door de uitgebreide documentatie, waaronder een recent bouwkundig rapport en het NEN 2580 meetrapport. Alle stukken zijn bij ons op te vragen. Een heerlijk huis waar sfeer, comfort, duurzaamheid en zorgeloos wonen perfect samenkomen.

Rustig wonen, alles binnen handbereik.
Je woont hier in een brede, rustige woonstraat met een prettige, open uitstraling. Een fijne plek waar je ontspannen woont, terwijl alle voorzieningen verrassend dichtbij zijn. Binnen ongeveer 6 minuten wandel je het gezellige centrum van Baarn in. Winkels, speciaalzaken en horecagelegenheden liggen letterlijk om de hoek. Even snel een boodschap doen, spontaan een terrasje pakken of uitgebreid dineren? Je loopt er zó naartoe. Restaurant Eemlust bereik je in circa 9 minuten lopen. Een bekende en geliefde plek in Baarn waar je prachtig aan het water zit met uitzicht over de Eem. Hier geniet je van lange zomeravonden, een goede lunch of een uitgebreid diner op een unieke locatie. Ook de Pekingtuin ligt op ongeveer 10 minuten lopen. Een groene, karakteristieke plek waar je heerlijk kunt wandelen, ontspannen op een bankje of genieten van verse poffertjes. Het bekende Chinese restaurant dat hier gevestigd is, is al jaren een begrip. Station Baarn ligt op slechts 5 minuten fietsen, waardoor je snel in bijvoorbeeld Utrecht, Amsterdam of Hilversum bent. Met de auto rijd je bovendien binnen enkele minuten de snelweg op richting Amsterdam, Utrecht of Amersfoort.
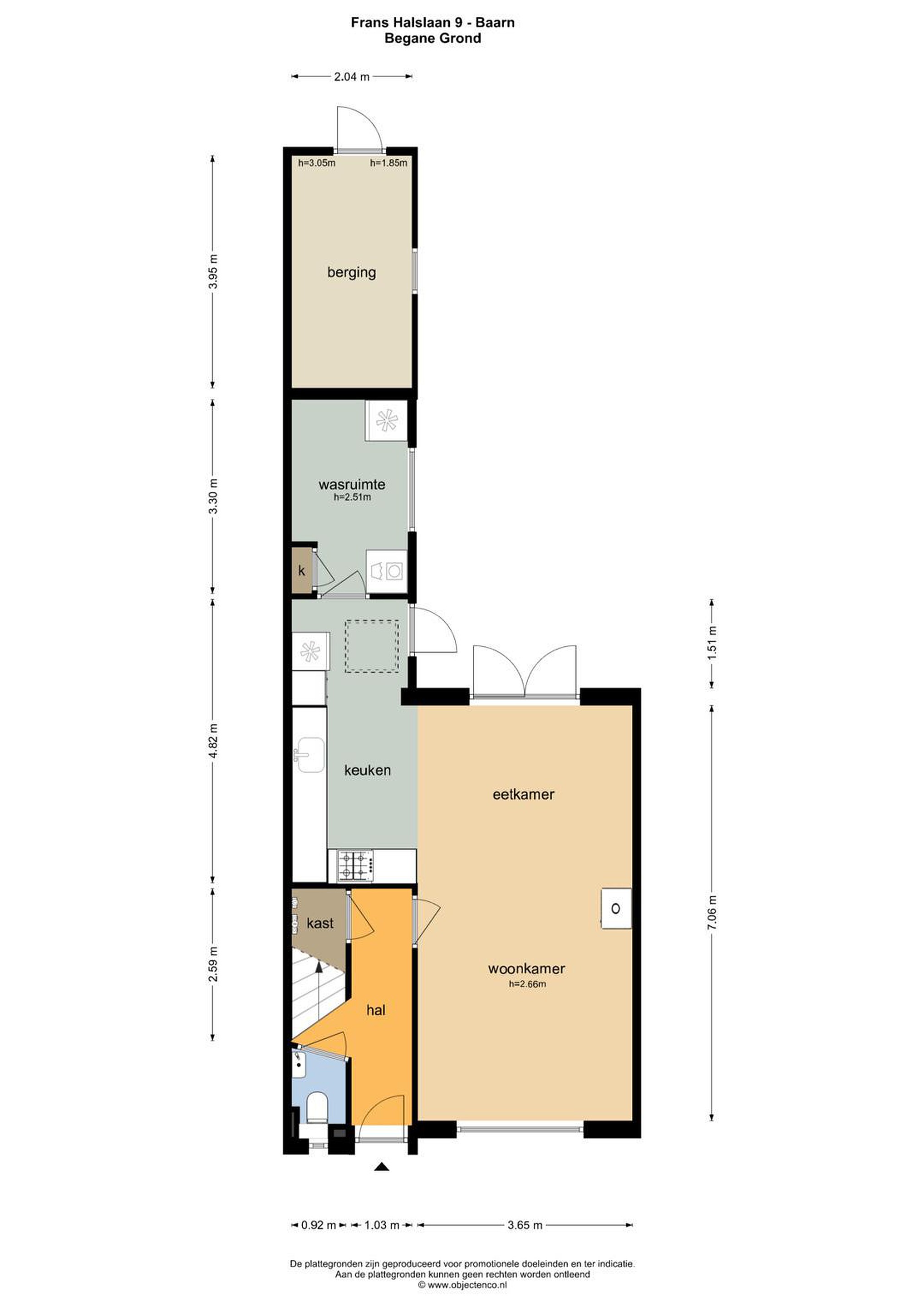
Begane grond
Via de voortuin kom je binnen in de hal. Hier vind je de meterkast, het moderne toilet met fonteintje, de trapopgang naar de eerste verdieping én een praktische trapkast. Ideaal voor voorraad, schoenen of huishoudelijke spullen. Vanuit de hal stap je de royale woonkamer binnen. De grote raampartij aan de voorzijde zorgt voor prettig daglicht en een open gevoel. De houtkachel vormt een sfeervolle blikvanger en maakt de zithoek extra warm en gezellig in de wintermaanden. Er is volop ruimte voor een comfortabele zithoek én een royale eettafel. Een echte leefruimte waar alles samenkomt.
Aan de achterzijde zorgen de openslaande deuren voor een prachtige verbinding met de tuin. Op zonnige dagen zet je ze open en loopt binnen moeiteloos over in buiten. De open keuken is uitgevoerd in een praktische L-opstelling en biedt veel werkblad en kastruimte. Dankzij de lichtkoepel valt hier extra daglicht naar binnen, wat de ruimte nog lichter en ruimtelijker maakt. De keuken is voorzien van een fornuis met oven, combimagnetron, afzuigkap, vaatwasser en een losse koelkast en vriezer. Vanuit de keuken heb je eveneens toegang tot de achtertuin. Aansluitend aan de keuken ligt de multifunctionele ruimte. Momenteel ingericht als wasruimte, maar ook perfect te gebruiken als speelkamer, thuiswerkplek of hobbyruimte. Hier bevindt zich tevens de opstelling van de cv-ketel (Intergas Kombi Kompakt HR 36/30 uit 2012) en de aansluitingen voor wasmachine en droger. De aangebouwde berging is bereikbaar via de achtertuin.

Eerste verdieping
Via de vaste trap bereik je de overloop op de eerste verdieping. Vanaf hier heb je toegang tot drie slaapkamers en de badkamer. Aan de achterzijde bevinden zich twee slaapkamers. Beide kamers zijn prettig licht dankzij de grote raampartijen en hebben een fijne maatvoering. Perfect als kinderkamer, werkkamer of logeerkamer. De derde slaapkamer ligt aan de voorzijde en is de ruimste van de drie. Hier is volop plek voor een tweepersoonsbed en een garderobekast. In de hoofdslaapkamer[MV1.1] ligt tapijt, wat zorgt voor extra comfort. Ook op beide trappen en de overloop van de eerste verdieping ligt tapijt. Meerdere slaapkamers zijn voorzien van airconditioning, wat zorgt voor een aangenaam binnenklimaat, het hele jaar door. De badkamer is modern uitgevoerd in een stijlvolle combinatie van lichte wandtegels en een donkere vloertegel. Je beschikt hier over een inloopdouche met glazen wand, een hangend toilet, een wastafelmeubel en een designradiator. Het raam zorgt voor natuurlijke ventilatie en daglicht.

Tweede verdieping
Via de vaste trap bereik je de tweede verdieping met overloop en een ruime vierde slaapkamer. Dankzij de brede dakkapel aan de achterzijde is dit een volwaardige en lichte kamer met een prettige stahoogte. Ideaal als extra slaapkamer, werkruimte of tienerkamer. De airconditioning zorgt hier bovendien voor extra comfort. Vanuit het raam kijk je vrij uit over de achterliggende tuinen.

Tuin
Voortuin
De voortuin is verzorgd aangelegd en gelegen op het zuidoosten, waardoor je hier in de ochtend en vroege middag heerlijk van de zon geniet. Het groen en de vaste beplanting zorgen voor een prettige, uitnodigende uitstraling én extra privacy. Een fijne plek om thuis te komen.

Achtertuin
De achtertuin ligt op het noordwesten en biedt een mooie balans tussen zon en schaduw gedurende de dag. Direct aan de woning bevindt zich een ruim terras waar je gezellig kunt zitten en via de openslaande deuren de woonkamer bij je buitenleven betrekt. Verderop is ruimte voor groen en speelgelegenheid, terwijl de achterom zorgt voor extra gemak. De grote, aangebouwde berging biedt volop plaats voor fietsen, tuinspullen en opslag. Een praktische en onderhoudsvriendelijke tuin waar je onbezorgd kunt genieten van het buitenleven.

Details
- Energielabel B
- 8 zonnepanelen
- Dak-, gevel- en vloerisolatie aanwezig
- Houten kozijnen met grotendeels HR++ beglazing; zolder voorzien van kunststof kozijnen met HR++
- CV-ketel Intergas Kombi Kompakt HR 36/30 (2012)
- Airconditioning in meerdere slaapkamers
- Laminaatvloer op de begane grond, eerste en tweede verdieping; tapijt in de hoofdslaapkamer en op beide trappen en overloop eerste verdieping
- Riante achtertuin op het noordwesten met achterom
- Voortuin gelegen op het zuidoosten
- Grote, aangebouwde berging
- Gelegen op loopafstand van centrum Baarn, Restaurant Eemlust, de Pekingtuin en nabij station en uitvalswegen
- Recent bouwkundig rapport aanwezig
- NEN 2580 meetrapport beschikbaar
- Alle documentatie is bij ons op te vragen

Lees meer

Verkoopgeschiedenis

Aangeboden sinds
19 februari 2026
Verkoopdatum
7 april 2026
Looptijd
2 maanden

Kenmerken

Overdracht

Prijs per m2
€ 5.088
Aangeboden sinds
19 februari 2026
Status
Verkocht
Aanvaarding
In overleg

Bouw

Soort woonhuis
Eengezinswoning, tussen woning
Soort bouw
Bestaande bouw
Bouwjaar
1952
Soort dak
Zadeldak
Staat van onderhouden binnen
Goed
Staat van onderhouden buiten
Goed

Oppervlakte en inhoud

Perceeloppervlakte
180 m2
Inhoud van de woning
430 m3
Oppervlakte overige inpandige ruimten
8 m2

Indeling

Aantal kamers
5
Aantal slaapkamers
4
Aantal woonlagen
3
Voorzieningen
Tuin, schuur/berging, glasvezel

Buitenruimte

Balkon
Nee
Schuur/berging
Ja

Maandlasten berekenen

De maandlasten voor je woning bestaan uit meer dan alleen de hypotheeklasten. Hieronder vind je een overzicht van de bijkomende kosten en lasten. Zo weet je precies wat je huis per maand gaat kosten. En met de handige vergelijkers kun je ook nog eens snel de beste deals sluiten!

  • Kaart
  • Streetview