Schaluinen 11B128 5111 HB Baarle-Nassau

134m2
Wonen
3
Kamers
575m2
Perceel
1971
Bouwjaar
Aan de Berkenlaan op bungalowpark L'Air Pur staat op een royaal perceel van maar liefst (575m2, eigen grond) deze keurig onderhouden recreatiewoning. Omgeven door groen en op korte afstand gelegen van het gezellige centrum van Baarle-Nassau, met diverse winkels, restaurants en alle benodigde voorzieningen.
Begane grond
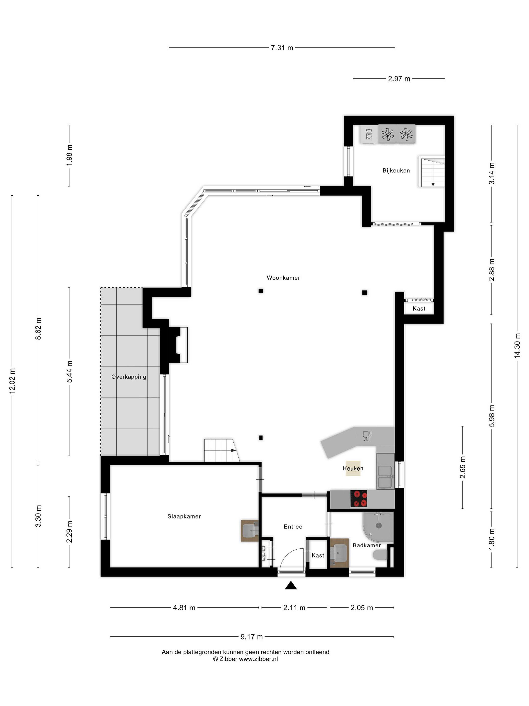
Via de entree kom je in de hal, die toegang biedt tot een badkamer met douche, wastafelmeubel en toilet. Vanuit de hal is de lichte woonkamer met open keuken te bereiken.

De woonkamer is een fijne lichte leefruimte met veel lichtinval dankzij de grote raampartijen en schuifpuien naar de tuin. De open haard zorgt voor extra sfeer en warmte. De open keuken is voorzien van een inductiekookplaat, koelkast, combi-oven/-magnetron en een vaatwasser. De woonkamer beschikt gedeeltelijk over elektrische vloerverwarming. Via de woonkamer is de bijkeuken te bereiken waar zich de opstelling voor de wasapparatuur bevindt. Via de bijkeuken is er toegang tot een ruime kelder.

Tevens is via de woonkamer de hoofdslaapkamer te bereiken. Welke is voorzien van een wastafelmeubel.

Eerste verdieping
Middels de vaste trap, met stoellift, zijn de slaapkamer, toilet en berging op de eerste verdieping te bereiken.
De slaapkamer op deze verdieping beschikt over vaste kasten en toegang tot het balkon. Daarnaast bevindt zich de berging met de opstelling voor de CV-installatie. Eventueel is deze ruimte nog in te richten als slaapkamer. Op deze verdieping is tevens een tweede toilet te vinden.

Tuin
De riante tuin ligt rondom de woning en biedt volop privacy. Dankzij de terrassen en de groene tuin is het hier optimaal genieten van het buitenleven. Op eigen terrein is parkeergelegenheid. Daarnaast bevinden zich in de tuin nog een 3-tal bergingen.

Details
- Bouwjaar 1971
- Woning gelegen op eigen grond
- Gedeeltelijk vloerverwarming in de woonkamer
- Houten kozijnen met dubbele beglazing
- Levensloop bestendig
- Tuin rondom de woning
- Parkeren op eigen terrein
- De parkkosten bedragen € 1.536,- per jaar (2026). Hierin zit onder andere inbegrepen het beheer en onderhoud van het park en onbeperkt gebruik van alle faciliteiten van het park
- Het voorschot voor het water wordt afzonderlijk in rekening gebracht. De prijs per m3 wordt per jaar vastgesteld en is een gemiddelde van het parkgebruik en het individuele gebruik incl. heffingen waaronder o.a. rioolheffing.
- Een nieuw lid is een entreebijdrage van € 375,00 verschuldigd aan het park (alle gemeenschappelijke voorzieningen zijn in eigendom van de VVE).
- Aanvaarding in overleg.

Bungalowpark L’air Pur
Bungalowpark L’Air Pur is landelijk gelegen in het buitengebied van Baarle-Nassau. Op circa 2 kilometer afstand van het centrum van Baarle-Nassau met al haar voorzieningen. Het park zelf beschikt over verschillende voorzieningen, hierbij kan je denken aan onder andere een (verwarmd) buitenzwembad met ligweide, een speeltuin, tennisbanen, een midgetgolf-baan, een dierenweide en een jeu de boules-baan.

Verkoopvoorwaarden
- Asbestclausule
Bij woningen die voor 1 juli 1993 gebouwd zijn, bestaat het risico dat er asbesthoudende materialen verwerkt zijn in o.a. (rook)kanalen, dak(beschot), scheidingswanden, gevelpanelen, nabij verwarmings- en warmwatertoestellen en in de vloerbedekking. Het eventuele risico van aanwezigheid van asbesthoudende materialen gaat na een verkoop over op de kopende partij, hetgeen wordt vastgelegd in de koopakte.

- Ouderdomsclausule
De ouderdomsclausule zal voor deze woning in de koopakte worden opgenomen omdat de onroerende zaak meer dan 50 jaar oud is, wat betekent dat de eisen die aan de bouwkwaliteit gesteld mogen worden aanzienlijk lager liggen dan bij de nieuwe woningen. Koper kan zich hierdoor niet beroepen op het feit dat deze woning afwijkt van de huidige bouwvoorschriften.

Lees meer

Kenmerken

Overdracht

Prijs per m2
€ 2.220
Aangeboden sinds
14 maart 2026
Status
Beschikbaar
Aanvaarding
In overleg

Bouw

Soort woonhuis
Eengezinswoning, vrijstaande woning
Soort bouw
Bestaande bouw
Bouwjaar
1971
Soort dak
Zadeldak
Staat van onderhouden binnen
Goed
Staat van onderhouden buiten
Uitstekend

Oppervlakte en inhoud

Perceeloppervlakte
575 m2
Inhoud van de woning
567 m3
Oppervlakte externe bergruimte
17 m2
Oppervlakte gebouwgebonden buitenruimten
12 m2
Oppervlakte overige inpandige ruimten
19 m2

Indeling

Aantal kamers
3
Aantal slaapkamers
2
Aantal woonlagen
3
Voorzieningen
Tuin, schuur/berging, open haard, airconditioning, rookkanaal, schuifpui

Buitenruimte

Balkon
Nee
Schuur/berging
Ja

Maandlasten berekenen

De maandlasten voor je woning bestaan uit meer dan alleen de hypotheeklasten. Hieronder vind je een overzicht van de bijkomende kosten en lasten. Zo weet je precies wat je huis per maand gaat kosten. En met de handige vergelijkers kun je ook nog eens snel de beste deals sluiten!

  • Kaart
  • Streetview