Nassaulaan 35 5111 XD Baarle-Nassau

150m2
Wonen
4
Kamers
427m2
Perceel
1970
Bouwjaar
Ben je op zoek naar woning op een rustige en kindvriendelijke locatie? Dan is deze woning aan de Nassaulaan wellicht iets voor jou. Deze 2/1-kapwoning heeft een woonoppervlakte van 150 m2, een bijgebouw met eigen entree van 32 m2, een inpandige garage en is gelegen op een ruim perceel van 427 m2. De woning is op de begane grond voorzien van een woonkamer, keuken, bijkeuken en een garage. Op de eerste verdieping zijn er twee slaapkamers en een badkamer met toegang tot het dakterras. Middels een vaste trap is de tweede verdieping te bereiken met een voorzolder en een derde slaapkamer. De woning heeft een perfecte ligging, dicht bij zowel de basis- als middelbare school, sportvoorzieningen en op korte afstand van de centrumvoorzieningen. Bovendien liggen de prachtige bossen op steenworp afstand, ideaal voor liefhebbers van natuur en buitenleven. Baarle is een enclavedorp waar maar liefst 30 stukjes België en Nederland in elkaar verweven zijn. Van de ca. 64 enclaves wereldwijd bevindt zich bijna de helft in dit dorp. De twee landen liggen kris kras door elkaar. Het Belgische Baarle-Hertog en het Nederlandse Baarle-Nassau hebben een hoog voorzieningenniveau met diverse supermarkten, bakkers, kledingwinkels, cafés en gezellige eetgelegenheden. Ook vind je er diverse sportverenigingen, twee basisscholen en een middelbare school. Hoewel Baarle bekend staat om haar vele enclaves, heeft het dorp een verrassend mooi buitengebied. De schitterende natuur heeft veel te bieden. Wandelend of fietsend ontdekt u de mooiste plekken die vaak goed verborgen zitten. U ervaart hier volop de rust en ruimte. De Brabantse steden zoals Breda, Tilburg en ‘s-Hertogenbosch zijn vlot bereikbaar, alsook de Belgische steden Turnhout en Antwerpen. Baarle-Nassau biedt veel natuur, rust en ruimte om te wonen met goede voorzieningen en de steden dichtbij. Kortom: een woning, met verrassend veel leefruimte en een bijgebouw/praktijkruimte met eigen ingang.
Begane grond
Entree via hal voorzien van een meterkast (12 groepen en 3 aardlekschakelaars), bergkast, garderobenis, trapopgang en toiletruimte. Vanuit de hal heb je toegang tot de woonkamer en keuken. De woonkamer is voorzien van grote raampartijen waardoor er een aangename hoeveelheid licht binnen valt. De woonkamer is voorzien van een zitgedeelte aan de voorzijde en een eetgedeelte aan de achterzijde. Hier is voldoende plek voor een grote eettafel met stoelen. Een fijne plek om te genieten van een hapje/drankje/spelletje met familie en/of vrienden. De woonkamer is voorzien van een tegelvloer. Vanuit de woonkamer is middels een schuifpui de tuin te bereiken – hierdoor is het heerlijk om in de zomer de pui open te zetten en de woonkamer en de tuin met elkaar te verbinden. De keuken is voorzien van een keukenblok in hoekopstelling met een spoelbak, een vaatwasser, 4-pits inductiekookplaat, afzuigkap, een koelkast en vriezer. Aan de overzijde bevindt zich de kastenwand met een combi-oven/magnetron. De keuken is voorzien van een tegelvloer. Vanuit de keuken is er toegang tot de bijkeuken met een extra keukenblok en de aansluiting voor de wasmachine/droger. Vanuit de bijkeuken is de achtertuin alsmede de inpandige garage te bereiken. De garage is voorzien van verwarming, water en elektra. Via de elektrische roldeur is er toegang tot de oprit.

Eerste verdieping
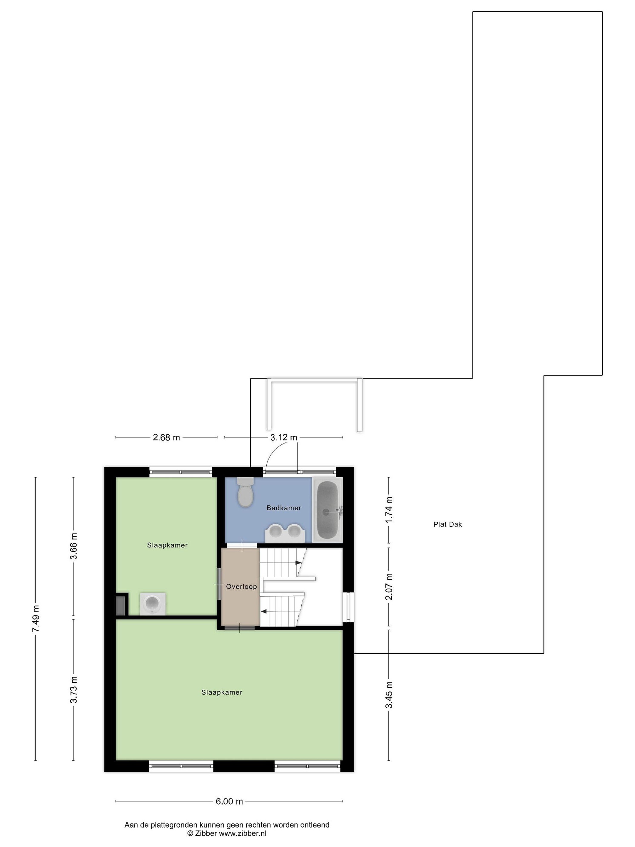
Middels een vaste trap te bereiken overloop waaraan twee slaapkamers, een royale badkamer met toegang tot het dakterras en een vaste trap naar de tweede verdieping. Slaapkamer 1 Ruime slaapkamer van circa 22 m2, gelegen over de volle breedte van de woning. De 2e slaapkamer is circa 10 m2 en gelegen aan de achterzijde van de woning. De ruime badkamer is voorzien van een ligbad, dubbele wastafel, toilet en biedt toegang tot het dakterras.

Tweede verdieping
Middels een vaste trap te bereiken voorzolder voorzien van opstelling van de cv-combiketel (Intergas, 2024) en veel lichtinval door middel van het zijraam. De zolderkamer/derde slaapkamer is voorzien van bergruimte en een dakkapel.

Tuin
De woning beschikt over een voortuin, een zijtuin en een besloten achtertuin. De tuinen zijn voorzien van bestrating, beplanting en de achtertuin beschikt over een vijver en meerdere terrassen. Altijd een plekje om heerlijk te genieten van de zon en/of schaduw.
Via de zijtuin is het bijgebouw met eigen entree te bereiken. Op dit moment is het bijgebouw verdeeld in 3 aparte ruimtes. Het bijgebouw is voorzien van elektra, warm en koud water en verwarming. Ideaal voor een praktijk aan huis of kantoor aan huis.

Details
- Energielabel C
- CV-ketel wordt op dit moment geleased
- Gelegen aan een ventweg, tegenover een plantsoen;
- Voor de afmetingen van de diverse ruimtes verwijzen wij u naar de plattegronden.

Opmerkingen - In de koopakte zal, als zekerheid voor de nakoming van de verplichtingen van koper, een bankgarantie van 10% van de koopsom opgenomen worden; In de koopovereenkomst zullen de volgende artikelen worden opgenomen: - Asbestclausule: in het object kunnen gezien het bouwjaar asbesthoudende stoffen aanwezig zijn. Bij eventuele verwijdering dienen op grond van de milieuwetgeving speciale voorzorgmaatregelen getroffen te worden. Koper verklaart hiermee bekend te zijn en vrijwaart verkoper voor eventuele aansprakelijkheid. - Ouderdomsclausule: het is aan koper bekend dat de onroerende zaak meer dan 55 jaar oud is, wat betekent dat de eisen die bij aan de bouwkwaliteit gesteld mogen worden aanzienlijk lager liggen dan bij nieuwe woningen. In afwijking van artikel 6.3 van deze koopakte en artikel 7:17 lid 1 en 2 BW komt het geheel of ten dele ontbreken van een of meer eigenschappen van de onroerende zaak voor normaal en bijzonder gebruik en het eventueel anderszins niet-beantwoorden van de zaak aan de overeenkomst voor rekening en risico van koper. -Toelichtingsclausule NEN2580: De woning is opgemeten met inachtneming van de meetinstructie welke is gebaseerd op de NEN 2580. De Meetinstructie is bedoeld om een meer eenduidige manier van meten toe te passen voor het geven van een indicatie van de gebruiksoppervlakte. Maatvoeringen t.a.v. plattegronden inhouds- en oppervlaktematen zijn bij benadering vastgesteld in een meetrapport. De meetinstructie sluit verschillen in de meetuitkomsten niet volledig uit door bijvoorbeeld interpretatieverschillen, afrondingen of beperkingen bij het uitvoeren van de meting. Uitgangspunt blijft altijd: "wat u ziet is wat u koopt" en de objectinformatie is van lagere prioriteit. Koper is in gelegenheid gesteld om deze maten op of na te meten en vrijwaart verkoper en diens makelaar van elke aansprakelijkheid wanneer hier toch afwijkingen in zouden voorkomen. - Deze informatie is door ons met de nodige zorgvuldigheid samengesteld. Onzerzijds wordt echter geen enkele aansprakelijkheid aanvaard voor enige onvolledigheid, onjuistheid of anderszins, dan wel de gevolgen daarvan. Alle opgegeven maten en oppervlakten zijn indicatief.

Lees meer

Kenmerken

Overdracht

Prijs per m2
€ 3.053
Aangeboden sinds
17 december 2025
Status
Beschikbaar
Aanvaarding
In overleg

Bouw

Soort woonhuis
Eengezinswoning, twee-onder-een-kap woning
Soort bouw
Bestaande bouw
Bouwjaar
1970
Soort dak
Zadeldak
Staat van onderhouden binnen
Goed
Staat van onderhouden buiten
Goed

Oppervlakte en inhoud

Perceeloppervlakte
427 m2
Inhoud van de woning
705 m3
Oppervlakte externe bergruimte
4 m2
Oppervlakte gebouwgebonden buitenruimten
4 m2
Oppervlakte overige inpandige ruimten
48 m2

Indeling

Aantal kamers
4
Aantal slaapkamers
3
Aantal woonlagen
3
Voorzieningen
Tuin, schuur/berging, ventilatie, open haard, glasvezel, rookkanaal, schuifpui

Buitenruimte

Balkon
Nee
Schuur/berging
Ja

Maandlasten berekenen

De maandlasten voor je woning bestaan uit meer dan alleen de hypotheeklasten. Hieronder vind je een overzicht van de bijkomende kosten en lasten. Zo weet je precies wat je huis per maand gaat kosten. En met de handige vergelijkers kun je ook nog eens snel de beste deals sluiten!

  • Kaart
  • Streetview