Zanderijweg 96 7312 LL Apeldoorn

133m2
Wonen
4
Kamers
423m2
Perceel
1931
Bouwjaar
Zanderijweg 96, 7312 LL Apeldoorn-West

Rustig gelegen vrijstaand woonhuis met een grote extra kamer op de begane grond, zeer geschikt als slaapkamer, en een multifunctioneel bijgebouw dat ideaal is voor werken aan huis, mantelzorg of een inwonend kind. Kortom: een woning met veel flexibiliteit en potentie.

Wonen met ruimte en flexibiliteit

Deze charmante vrijstaande woning is gelegen in een rustige straat in het geliefde Apeldoorn West en biedt verrassend veel ruimte, zowel binnen als buiten. Dankzij de praktische indeling is slapen op de begane grond mogelijk en is de woning geschikt voor diverse woon- en werkvormen.

Via de entree kom je in de hal met toilet. De lichte woonkamer beschikt over een houtkachel en grote raampartijen, die zorgen voor een prettige lichtinval. Aansluitend bevindt zich de royale woonkeuken, een fijne plek voor kookliefhebbers en gezellige etentjes.

Op de begane grond is daarnaast een extra ruimte aanwezig, uitstekend te gebruiken als kantoor aan huis, slaapkamer, extra woonkamer of hobbyruimte. De badkamer op de begane grond is voorzien van een ligbad/douche en een wastafel, wat gelijkvloers wonen comfortabel maakt.

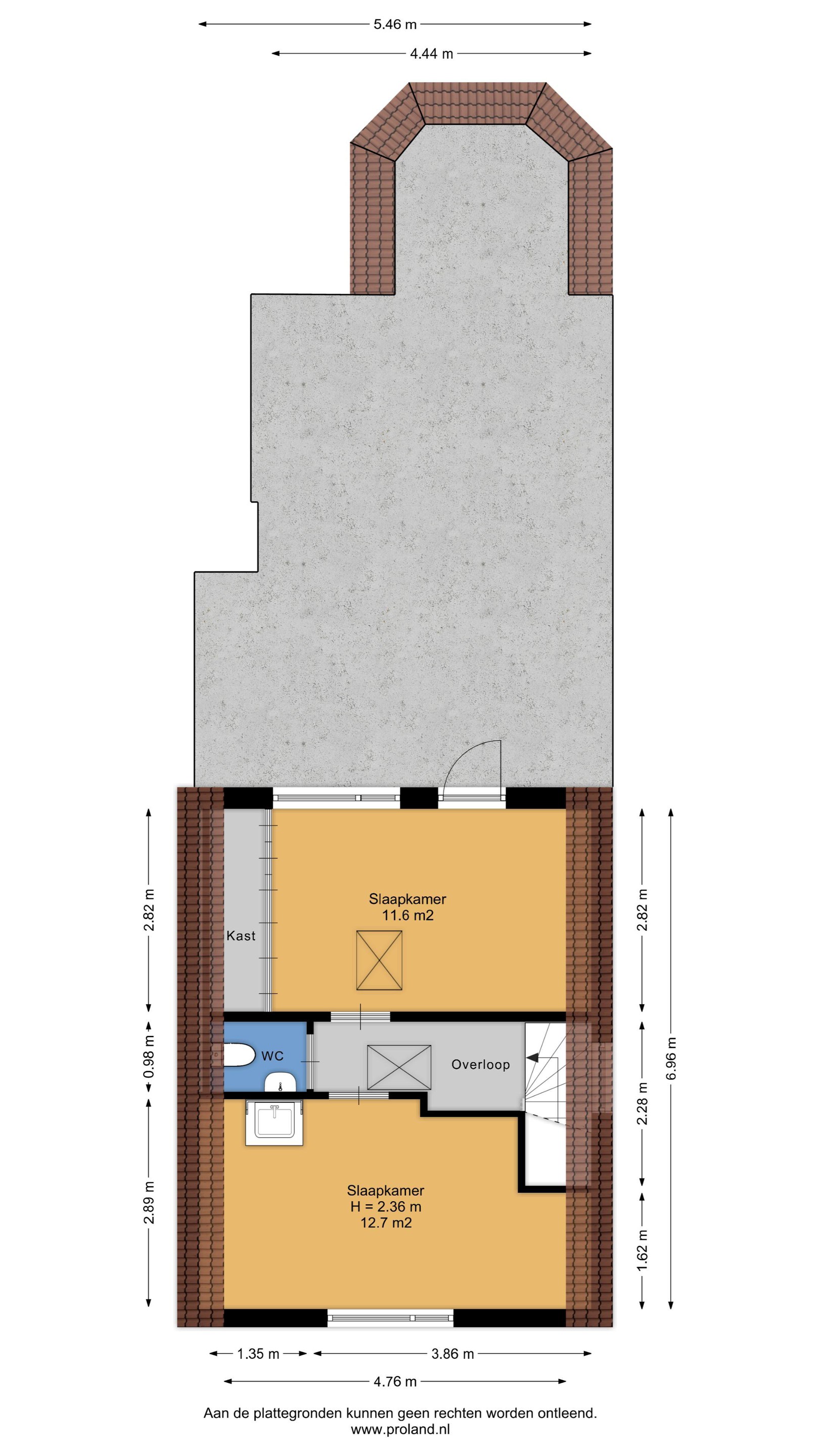
Verdieping & zolder

Op de eerste verdieping bevinden zich een tweede toilet en twee riante slaapkamers.
Via een vlizotrap is de ruime zolderkamer bereikbaar. Hier bestaat de mogelijkheid om een vaste trap te realiseren, waarmee eenvoudig een extra slaap- of werkkamer kan worden gecreëerd.

Multifunctioneel bijgebouw – wonen, werken of mantelzorg

Achter op het perceel staat een groot, verwarmd en geïsoleerd bijgebouw dat werkelijk multifunctioneel is. Het bijgebouw beschikt over een ruime woon-/werkkamer en een vaste trap naar een entresolverdieping, welke uitstekend te gebruiken is als slaapvertrek. Hierdoor is het bijgebouw zeer geschikt voor mantelzorg, een inwonend kind, een praktijk of kantoor aan huis, of als gastenverblijf.

Buitenruimte

De woning staat op een ruime kavel met een fijne tuin. Daarnaast is er een extra houten schuur met veranda, ideaal voor opslag, hobby’s of om heerlijk buiten te zitten.

Kenmerken:

Woonhuis 111m2 & Bijgebouw 22m2 plus verdieping
Vrijstaand woonhuis (bouwjaar 1931)
Gelegen in Apeldoorn West, rustige straat
Perceeloppervlakte ca. 423 m2
Parkeren op eigen terrein
Slapen en badkamer op de begane grond
Lichte woonkamer met houtkachel
Royale woonkeuken
Extra kamer op de begane grond (slaapkamer/kantoor/hobby)
Twee riante slaapkamers op de verdieping
Mogelijkheid vaste trap naar zolder (extra slaapkamer)
Groot multifunctioneel bijgebouw, verwarmd en geïsoleerd met verdieping


Vraagprijs € 625.000,- k.k.
Aanvaarding in overleg
Lees meer

Kenmerken

Overdracht

Prijs per m2
€ 4.699
Aangeboden sinds
16 december 2025
Status
Beschikbaar
Aanvaarding
In overleg

Bouw

Soort woonhuis
Eengezinswoning, vrijstaande woning
Soort bouw
Bestaande bouw
Bouwjaar
1931
Soort dak
Zadeldak
Staat van onderhouden binnen
Goed
Staat van onderhouden buiten
Goed

Oppervlakte en inhoud

Perceeloppervlakte
423 m2
Inhoud van de woning
400 m3
Oppervlakte externe bergruimte
36 m2
Oppervlakte overige inpandige ruimten
16 m2

Indeling

Aantal kamers
4
Aantal slaapkamers
3
Aantal woonlagen
3
Voorzieningen
Tuin, schuur/berging, rookkanaal

Buitenruimte

Balkon
Nee
Schuur/berging
Ja

Maandlasten berekenen

De maandlasten voor je woning bestaan uit meer dan alleen de hypotheeklasten. Hieronder vind je een overzicht van de bijkomende kosten en lasten. Zo weet je precies wat je huis per maand gaat kosten. En met de handige vergelijkers kun je ook nog eens snel de beste deals sluiten!

  • Kaart
  • Streetview