Verkocht

Het Verlaat 73 7325 HC Apeldoorn

84m2
Wonen
4
Kamers
126m2
Perceel
2001
Bouwjaar
HET VERLAAT 73 - APELDOORN

Moderne tussenwoning met energielabel A in kindvriendelijke wijk Osseveld.

In de populaire en kindvriendelijke wijk Osseveld ligt deze verzorgde tussenwoning met energielabel A. De woning is keurig onderhouden, beschikt over drie slaapkamers, een lichte woonkamer met halfopen keuken, een diepe achtertuin met overkapping én een gunstige ligging nabij scholen, winkels en station Apeldoorn-Osseveld.


Indeling:
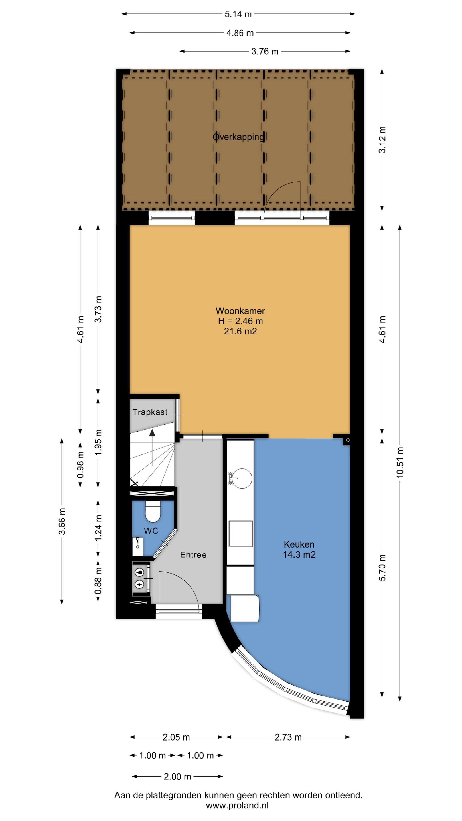
Via de hal, met meterkast, trapopgang naar de eerste verdieping en toilet, bereikt u de woonkamer. De lichte en ruime woonkamer biedt voldoende ruimte voor een comfortabele zithoek en heeft via de achterzijde toegang tot de tuin met overkapping.

De halfopen keuken bevindt zich aan de voorzijde van de woning en is voorzien van een vaatwasser, combi-oven/magnetron en elektrische kookplaat. Er is daarnaast voldoende ruimte voor een eettafel.

Op de eerste verdieping bevinden zich drie slaapkamers: twee ruime kamers en één kleinere. De badkamer is uitgerust met een ruime douche, wastafel en zwevend toilet. Op deze verdieping is tevens een opbergkast aanwezig met aansluiting voor de wasmachine en de cv-ketel (bouwjaar 2023).

De achtertuin is diep en onderhoudsvriendelijk aangelegd, met direct aan de woonkamer een overkapping waar u beschut kunt zitten. Achterin de tuin bevindt zich een achterom en de houten schuur.

Bewoners worden tevens eigenaar van mandelig achterterrein in Beheer van Vereniging van Eigenaren De Waterkamer waarvoor een maandelijkse bijdrage wordt betaald van € 15,34,- per maand. Uit deze pot wordt tevens het onderhoud van het witte stucwerk betaald.


De wijk Osseveld:

Osseveld is een moderne en groene woonwijk aan de oostkant van Apeldoorn. De wijk staat bekend om haar kindvriendelijke karakter, met diverse basisscholen, speeltuintjes en parkjes op loop- of fietsafstand. Het winkelcentrum ’t Fort met supermarkten en diverse speciaalzaken ligt op korte afstand, evenals station Apeldoorn-Osseveld en meerdere bushaltes. Ook de uitvalswegen richting de A1 en A50 zijn snel bereikbaar, wat de ligging zeer praktisch maakt.


Bijzonderhden;

-Energielabel A

-Bouwjaar 2001

-3 slaapkamers

-CV-ketel uit 2023

-Diepe achtertuin met overkapping en achterom

-Kindvriendelijke ligging in Osseveld

-Nabij scholen, winkels en station Apeldoorn-Osseveld


Vraagprijs €395.000,- k.k.
Aanvaarding: In overleg

Interesse?
Bel 055 – 760 1777 of mail

Wij plannen graag een bezichtiging voor u in!
Lees meer

Verkoopgeschiedenis

Aangeboden sinds
14 november 2025
Verkoopdatum
2 februari 2026
Looptijd
3 maanden

Kenmerken

Overdracht

Prijs per m2
€ 4.653
Aangeboden sinds
14 november 2025
Status
Verkocht
Aanvaarding
In overleg

Bouw

Soort woonhuis
Eengezinswoning, tussen woning
Soort bouw
Bestaande bouw
Bouwjaar
2001
Soort dak
Samengesteld dak
Staat van onderhouden binnen
Goed
Staat van onderhouden buiten
Goed

Oppervlakte en inhoud

Perceeloppervlakte
126 m2
Inhoud van de woning
288 m3
Oppervlakte externe bergruimte
8 m2
Oppervlakte gebouwgebonden buitenruimten
16 m2

Indeling

Aantal kamers
4
Aantal slaapkamers
3
Aantal woonlagen
2
Voorzieningen
Tuin, schuur/berging, ventilatie, kabel-tv, glasvezel, dakraam

Buitenruimte

Balkon
Nee
Schuur/berging
Ja

Maandlasten berekenen

De maandlasten voor je woning bestaan uit meer dan alleen de hypotheeklasten. Hieronder vind je een overzicht van de bijkomende kosten en lasten. Zo weet je precies wat je huis per maand gaat kosten. En met de handige vergelijkers kun je ook nog eens snel de beste deals sluiten!

  • Kaart
  • Streetview