Verkocht OV

Het Schip 124 7325 NN Apeldoorn

112m2
Wonen
5
Kamers
140m2
Perceel
1994
Bouwjaar
Heerlijk wonen in Apeldoorn – Het Schip 124

Ben je op zoek naar een comfortabele, goed onderhouden woning met verrassend veel ruimte? Dan is Het Schip 124 in Apeldoorn er één die je gezien moet hebben. Deze fijne tussenwoning uit 1994 combineert wooncomfort, energiezuinigheid en een heerlijke tuin met veranda – een plek waar je écht thuis komt.

Ruimte om te leven

Bij binnenkomst valt meteen de prettige ruimte en lichtinval op. De woonkamer voelt ruim aan en staat in open verbinding met de keuken, waardoor het een fijne plek is om samen te zijn – of dat nu aan de eettafel is of gezellig op de bank. Alles is netjes verzorgd; je merkt dat deze woning met aandacht is bewoond en onderhouden.

De achtertuin is een absoluut pluspunt. Met een diepe tuin en een veranda die fungeert als verlengstuk van de woning, is dit een plek waar je tot in de late uurtjes geniet. Barbecue aan, vrienden over de vloer, lang natafelen in de avondzon – het kan hier allemaal.

Ideaal voor jong én oud

Of je nu starter bent, een jong gezin hebt of juist op zoek bent naar een woning waar je comfortabel oud kunt worden: Het Schip 124 biedt ruimte en flexibiliteit.

Indeling

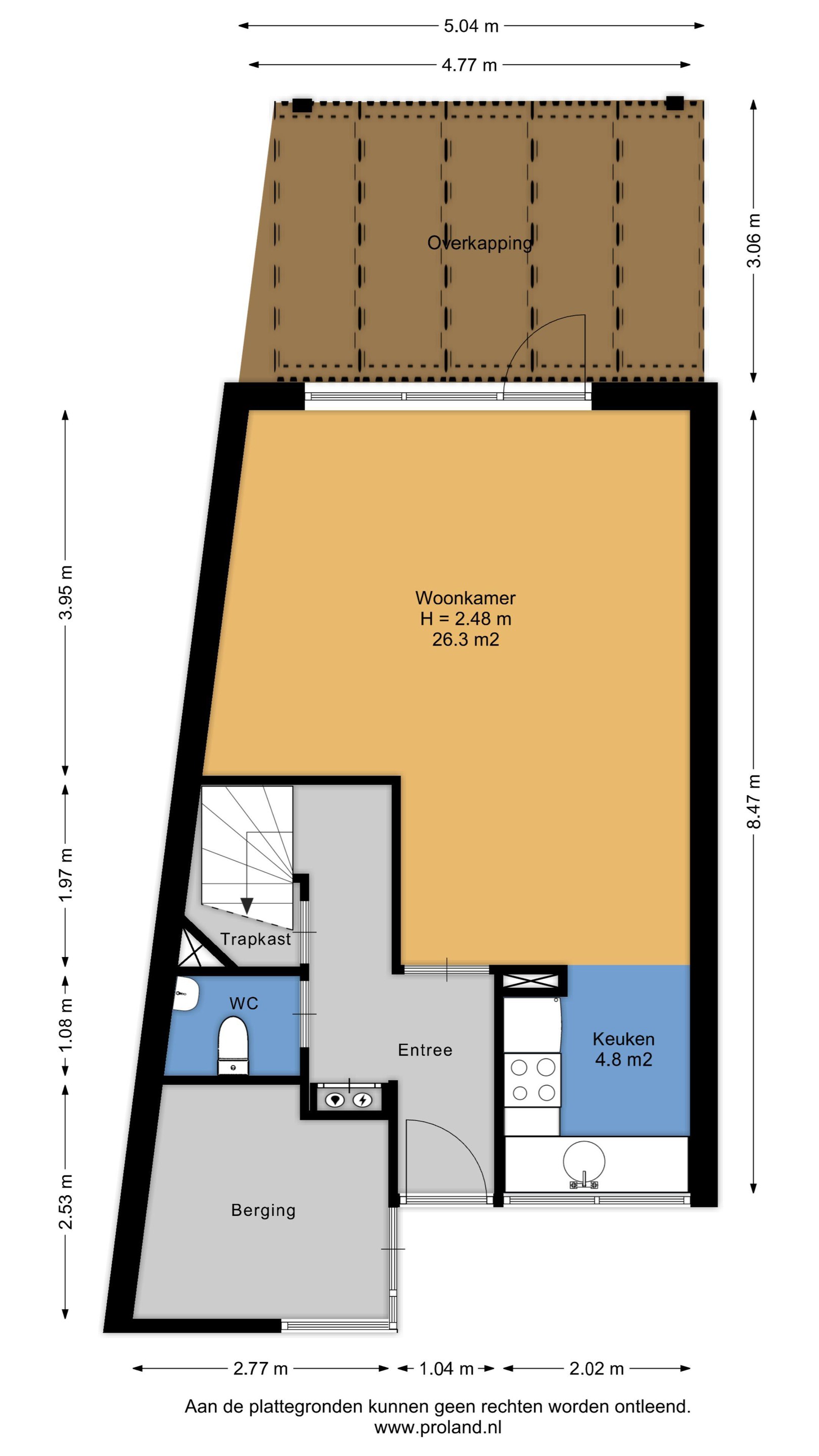
Begane grond: hal met meterkast en trapkast, toilet met fonteintje, ruime tuingerichte woonkamer met toegang tot de achtertuin en een halfopen hoekkeuken. De gehele begane grond is voorzien van een plavuizenvloer.

Eerste verdieping: ruime overloop, drie goed bemeten slaapkamers en een luxe badkamer met inloopdouche, wastafelmeubel, designradiator en tweede toilet. Afzuiging via mechanische ventilatie.

Zolderkamer mét dakterras

Op de zolderverdieping wacht een mooie verrassing: een multifunctionele zolderkamer met eigen dakterras. Ideaal als thuiswerkplek, extra slaapkamer, hobbyruimte of relaxplek. Even naar buiten voor frisse lucht? Dat doe je hier gewoon boven.

Energiezuinig en comfortabel

Met energielabel A is deze woning helemaal klaar voor de toekomst. Goede isolatie zorgt voor een aangenaam wooncomfort én lage energielasten. Het onderhoud is keurig bijgehouden, waardoor je hier zonder grote investeringen kunt starten.

Rustige wijk, alles dichtbij

De woning ligt in de populaire en kindvriendelijke wijk Woudhuis. In de directe omgeving vind je speelveldjes, scholen en winkelvoorzieningen zoals ’t Fort en De Voorwaarts. Het centrum van Apeldoorn is snel bereikbaar per fiets, station Osseveld-Woudhuis ligt op loopafstand en ook de uitvalswegen A1 en A50 zijn binnen enkele minuten te bereiken.

Bijzonderheden

Bouwjaar: 1994

Verrassend ruime woning

Zolderkamer met dakterras

Moderne badkamer

Diepe achtertuin met veranda (ca. 104 m2)

Perceeloppervlakte: 140 m2

Energielabel A

Keurig onderhouden

Rustige, groene en kindvriendelijke woonwijk

Ruim voldoende parkeergelegenheid

Vraagprijs: € 415.000 k.k.
Aanvaarding: in overleg

Nieuwsgierig geworden? Maak snel een afspraak voor een bezichtiging en ervaar zelf het wooncomfort van Het Schip 124.
Lees meer

Kenmerken

Overdracht

Prijs per m2
€ 3.705
Aangeboden sinds
19 januari 2026
Status
Verkocht onder voorbehoud
Aanvaarding
In overleg

Bouw

Soort woonhuis
Eengezinswoning, tussen woning
Soort bouw
Bestaande bouw
Bouwjaar
1994
Soort dak
Lessenaarsdak
Staat van onderhouden binnen
Goed
Staat van onderhouden buiten
Goed

Oppervlakte en inhoud

Perceeloppervlakte
140 m2
Inhoud van de woning
400 m3
Oppervlakte gebouwgebonden buitenruimten
30 m2
Oppervlakte overige inpandige ruimten
6 m2

Indeling

Aantal kamers
5
Aantal slaapkamers
4
Aantal woonlagen
3
Voorzieningen
Tuin, schuur/berging, ventilatie, kabel-tv, glasvezel

Buitenruimte

Balkon
Nee
Schuur/berging
Ja

Maandlasten berekenen

De maandlasten voor je woning bestaan uit meer dan alleen de hypotheeklasten. Hieronder vind je een overzicht van de bijkomende kosten en lasten. Zo weet je precies wat je huis per maand gaat kosten. En met de handige vergelijkers kun je ook nog eens snel de beste deals sluiten!

  • Kaart
  • Streetview