Verkocht OV

Arnhemseweg 70 7331 BN Apeldoorn

111m2
Wonen
4
Kamers
300m2
Perceel
1931
Bouwjaar
Arnhemseweg 70 – Apeldoorn

Wonen aan één van de mooiste straten van Apeldoorn? Dat kan aan de Arnhemseweg 70. Deze statige jaren ’30 woning ligt in een rustige straat met enkel bestemmingsverkeer, omzoomd door fraaie bomen en omringd door karakteristieke panden. Niet voor niets is dit huis aangemerkt als karakteristiek pand: een woning die historie, stijl en comfort moeiteloos met elkaar verbindt.

Kenmerkende jaren ’30 details

Al bij de eerste aanblik vallen de typische jaren ’30 kenmerken op: het markante overstek, de sfeervolle erker en de glas-in-loodramen. Binnen gaat de charme naadloos verder. In de hal vindt u de prachtige granito vloer en toegang tot de eetkamer met vaste kasten, paneeldeuren en een stijlvolle visgraat parketvloer. De openslaande deuren zorgen voor veel licht en een vloeiende verbinding met de tuin.

De klassieke kamer en suite met glas-in-lood schuifdeuren verbindt de eetkamer met de woonkamer. Ook hier treft u de visgraatvloer, een sfeervolle open haard en een erker die het daglicht rijkelijk binnenlaat.

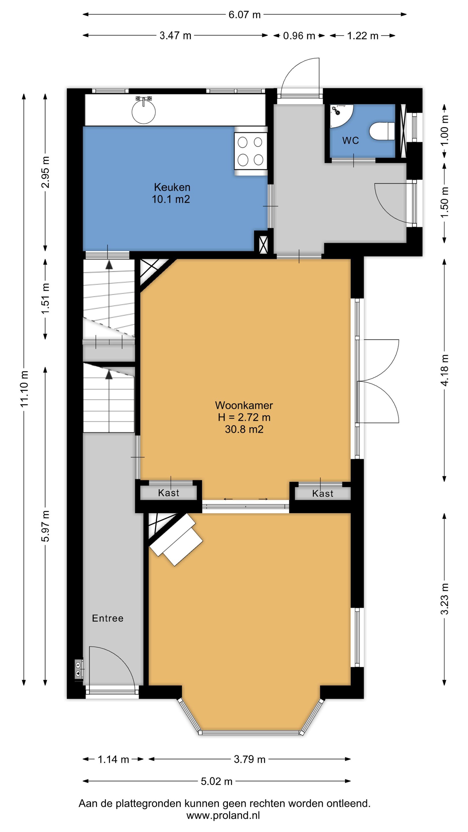
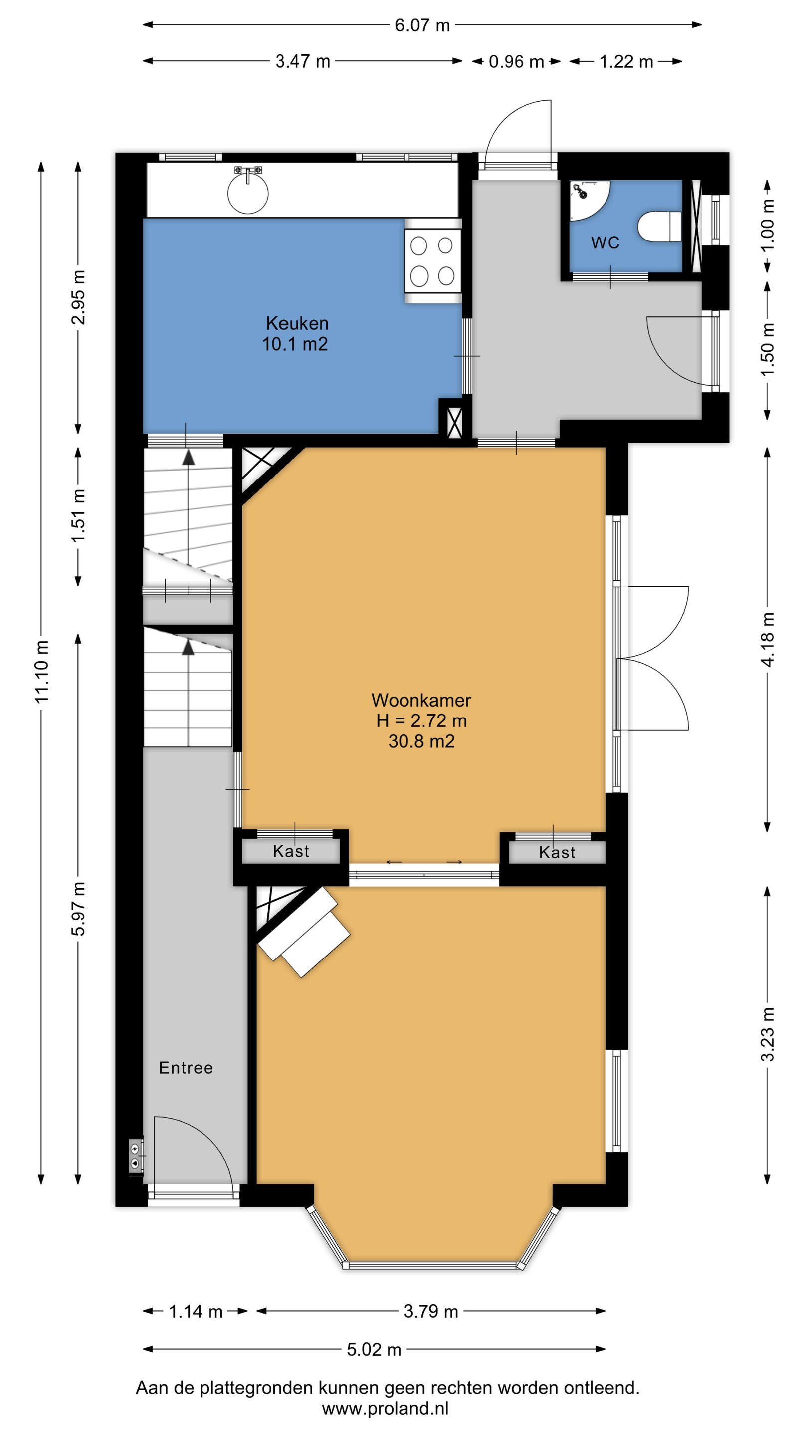
Aan de achterzijde bevindt zich de uitbouw, met een toilet, zij-entree en toegang tot de stijlvolle keuken. Deze is voorzien van een granieten aanrechtblad, diverse inbouwapparatuur en biedt toegang tot de praktische provisiekelder.

Verdiepingen

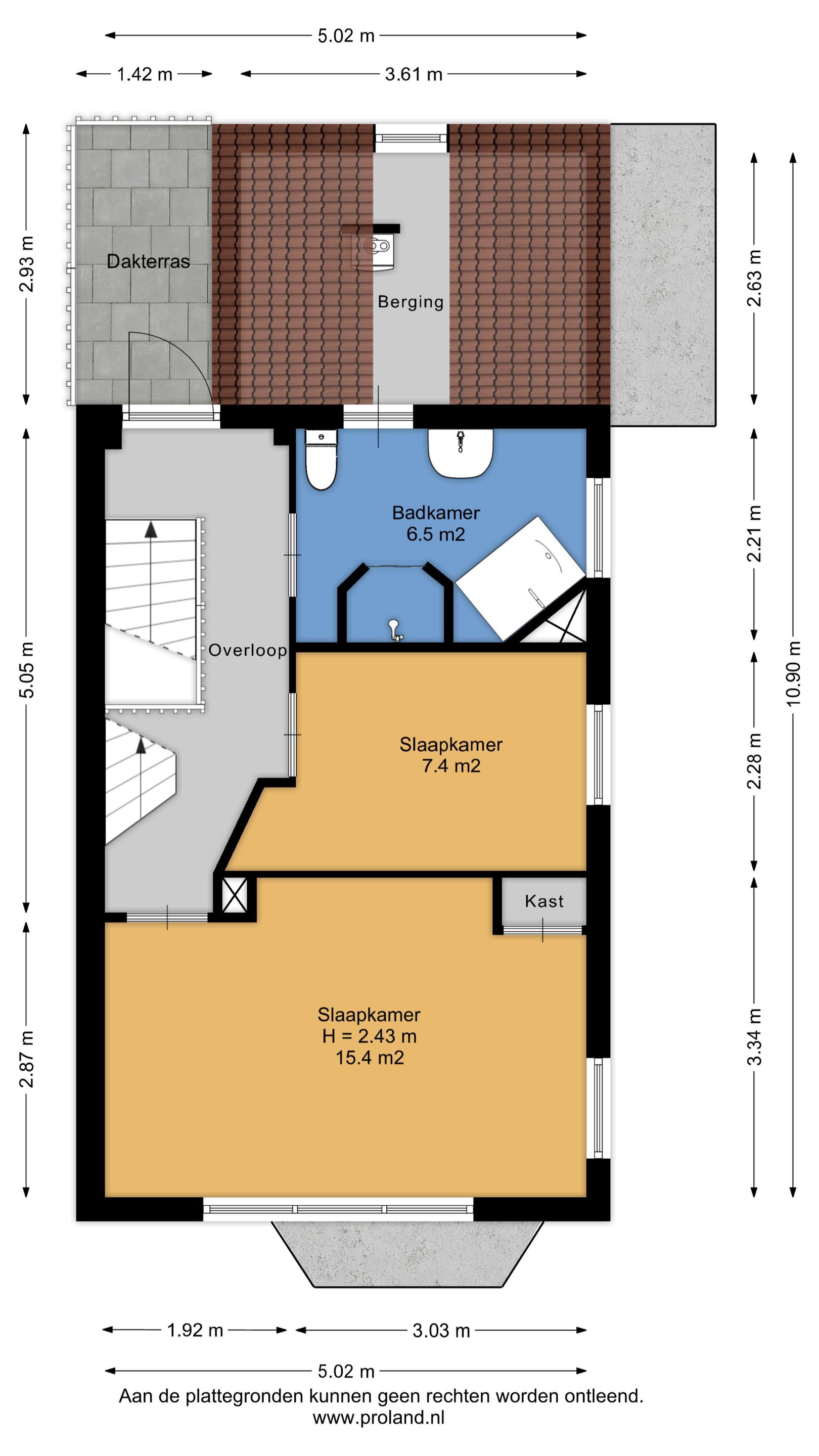
Via de elegante trap bereikt u de eerste verdieping. Op de charmante overloop met glas-in-lood vindt u een fijne kinderkamer, een ruime hoofdslaapkamer en toegang tot het platte dak. Ook is hier een stijlvolle badkamer met tweede toilet, hoekbad, inloopdouche en wastafel. Tevens bereikt u via een luik extra bergruimte. De lichtinval en details benadrukken ook op deze verdieping het karakter van de woning.

De vaste trap leidt naar de tweede verdieping, waar een royale derde slaapkamer is gerealiseerd, voorzien van twee Velux-dakramen.

Tuin & buitenruimte

De achtertuin is fraai aangelegd en biedt volop privacy en zon. Hier kunt u in alle rust genieten van het buitenleven. Als extra’s treft u een veranda en een garage, momenteel in gebruik als hobbyruimte. Parkeren kan eenvoudig op eigen terrein.

Pluspunten op een rij:

Gelegen aan één van de mooiste straten van Apeldoorn

Statig jaren ’30 huis met karakteristieke uitstraling

Glas-in-lood, erker en klassieke kamer en suite met schuifdeuren

Granito vloer en granieten aanrechtblad

Fraaie visgraat parketvloeren

3 slaapkamers, provisiekelder en zolder met vaste trap

Stijlvolle keuken met uitzicht op de tuin

Veranda, garage/hobbyruimte en parkeren op eigen terrein

Een woning met ziel, karakter en volop leefruimte, op een toplocatie in Apeldoorn.
Komt u sfeer proeven aan de Arnhemseweg 70?

Vraagprijs: € 595.000 k.k.
Aanvaarding: in overleg
Lees meer

Kenmerken

Overdracht

Prijs per m2
€ 5.341
Aangeboden sinds
17 september 2025
Status
Verkocht onder voorbehoud
Aanvaarding
In overleg

Bouw

Soort woonhuis
Eengezinswoning, twee-onder-een-kap woning
Soort bouw
Bestaande bouw
Bouwjaar
1931
Soort dak
Schilddak
Staat van onderhouden binnen
Goed
Staat van onderhouden buiten
Goed

Oppervlakte en inhoud

Perceeloppervlakte
300 m2
Inhoud van de woning
455 m3
Oppervlakte externe bergruimte
24 m2
Oppervlakte gebouwgebonden buitenruimten
4 m2
Oppervlakte overige inpandige ruimten
7 m2

Indeling

Aantal kamers
4
Aantal slaapkamers
3
Aantal woonlagen
4
Voorzieningen
Tuin, schuur/berging, open haard

Buitenruimte

Balkon
Nee
Schuur/berging
Ja

Maandlasten berekenen

De maandlasten voor je woning bestaan uit meer dan alleen de hypotheeklasten. Hieronder vind je een overzicht van de bijkomende kosten en lasten. Zo weet je precies wat je huis per maand gaat kosten. En met de handige vergelijkers kun je ook nog eens snel de beste deals sluiten!

  • Kaart
  • Streetview