Sparrendaal 17 1187 KE Amstelveen

135m2
Wonen
7
Kamers
130m2
Perceel
1994
Bouwjaar
For English see below.
Welkom in deze mooie HOEKWONING MET UITBOUW, energielabel A, met grote living, ZES slaapkamers, TWEE badkamers en een zonnige achtertuin met een schuur. Gelegen op een uitstekende locatie. Deze lichte en ruime woning is gerenoveerd. Kant-en-klaar, turnkey, zo te betrekken. Een fijn huis verdeeld over drie volwaardige etages. Kortom, heerlijk en comfortabel wonen.

woonoppervlakte ca. 135 m2
schuur ca. 7 m2
perceeloppervlakte ca. 130 m2
achtertuin ca. 54 m2 voortuin ca. 12 m2
extra vide op de zolderetage

INDELING
Een kindvriendelijke straat en hofje met in de nabijheid een speeltuintje. Voortuin keurig betegeld.

Begane grond.
Nette voordeur. Entree en hal met meterkast, garderobe, en apart een toiletruimte met zwevend toilet met wastafel.
De lichte uitgebouwde woonkamer is voorzien van een mooie nieuwe pvc vloer. Veel licht door de glazen schuifpui, lichtkoepels, het zijraam en de ramen aan de voorzijde bij de open keuken.
De schuifpui geeft toegang tot de heerlijke zonnige achtertuin (ca. 54 m2). Echt genieten. Deze tuin is lekker ruim, keurig betegeld en heeft een achterom. Deze beschikt ook over een mooi aangebouwde overkapping voor een beetje schaduw met op afstandbediening bestuurbare sunscreens. Verder een stenen schuur voor uw fietsen, etc.
De open luxe keuken is voorzien van alle apparatuur voor dagelijks comfort, o.a.: een mooi natuurstenen werkblad rondom, een fraaie inductie kookplaat, multifunctionele oven, combi microwave, vaatwasser, koelkast vries combinatie (no frost) en combi-Quooker.

Door de grote raampartijen is er veel lichtinval. De woonkamer is ruim en gezellig. De tuin is een genot. Een heerlijk huis. Een fijne plek om samen met uw gezin te zijn.

Eerste verdieping.
Vanaf de overloop is er toegang tot drie ruime slaapkamers en een nette badkamer. U zult aangenaam verrast zijn door de master bedroom aan de achterzijde. Maar ook de andere twee slaapkamer zijn goed van omvang.
De nette badkamer is gelegen aan de voorzijde van de woning en is voorzien van een wastafel, inloopdouche, badopstelling, zwevend toilet, electrische vloerverwarming en is netjes betegeld.
Op deze verdieping ligt een fraaie pvc vloer.

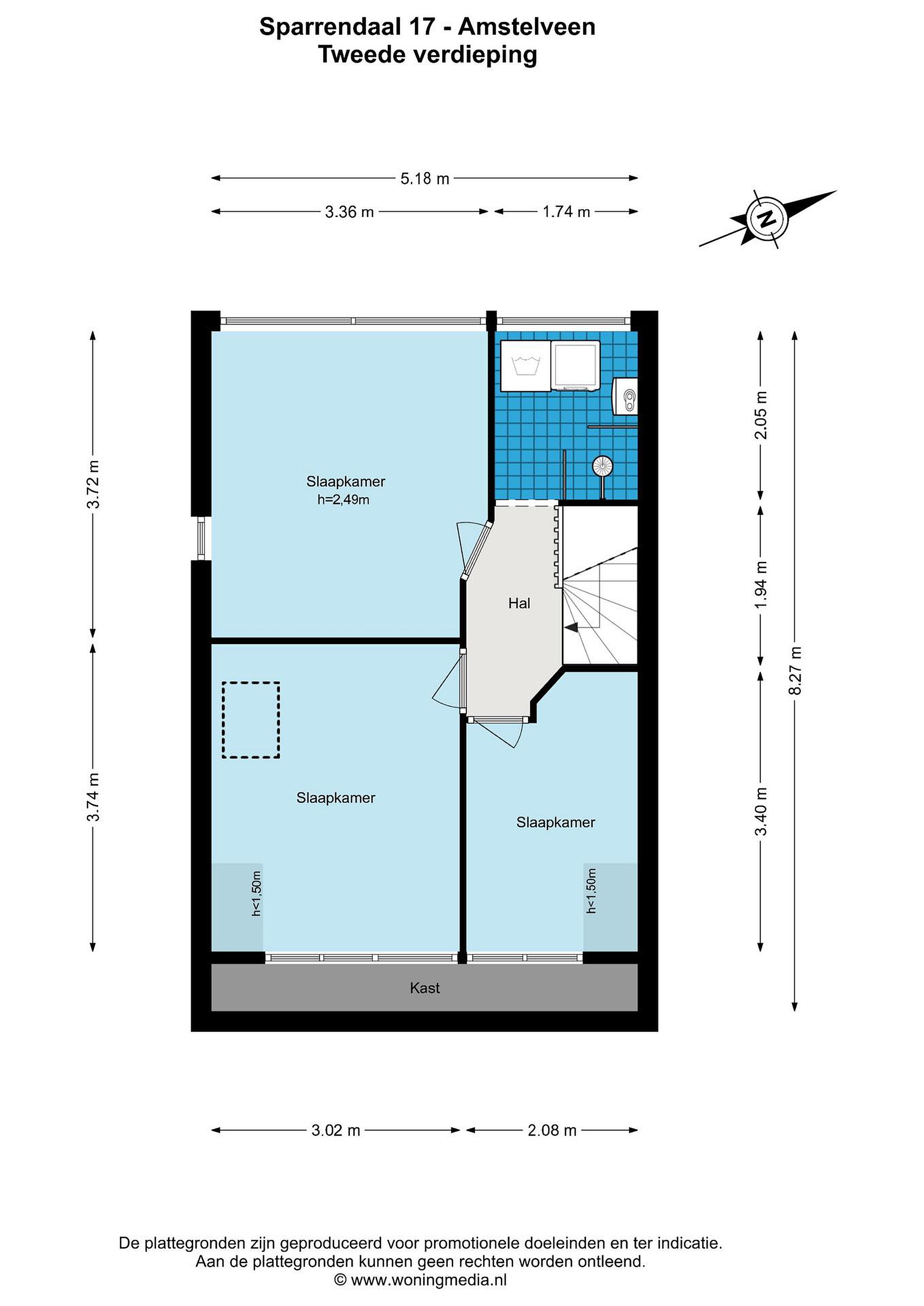
Tweede verdieping
Op de bovenste verdieping vindt u een volwaardige verdiepingsvloer met hoge nok. Aan de zijkant van de woning bevinden zich twee riante slaapkamers. Waarvan de slaapkamer aan de voorzijde ook een mooi uitzicht heeft en beschikt over een extra zijraam. Echt een beauty van een kamer! Deze kamer is voorzien van airco.
Aan de achterzijde vindt u nog een ZESDE slaapkamer en/of werkkamer.
Verder nog een bescheiden badkamer met opstelling wasmachine en droger. Hier bevindt zich ook de opstelling van de cv-ketel en mechanische ventilatie.
Tenslotte is er voldoende bergruimte met knieschotten aan de achterzijde en nog een extra vide van 5 meter breed voor berging.
Ook op deze verdieping ligt een fraaie pvc vloer.

Kortom: alle ruimte en comfort voor een optimaal woongenot. Zie de foto's en de plattegronden voor de exacte indeling van deze fraaie hoekwoning. En maak een afspraak voor een bezichtiging om zelf even te komen kijken.

LOCATIE
De omgeving is heerlijk groen met fraaie boom- en waterpartijen en speelvoorzieningen voor kinderen.
Op korte loopafstand ligt het onlangs vernieuwde en uitgebreide winkelcentrum Westwijkplein. Twee ruime supermarkten, winkels voor dagelijkse boodschappen, maar ook een apotheek, speciaal- en delicatessenwinkels en een bibliotheek.
Er is voldoende parkeergelegenheid aanwezig. De straat is autoluw.
In de omgeving bevinden zich diverse sportparken (tennis / voetbal / hockey) en niet te vergeten het Amsterdamse bos (ca. 350 meter). Zo zit u binnen 5 minuten op een fijn terras vlakbij de Poel.
Ook diverse scholen (Internationale School, lager en middelbaar) en kinderopvang liggen allemaal binnen loop- en/of fietsbereik.
De goede bereikbaarheid is te danken aan de vele uitvalswegen zoals de Beneluxbaan, de A4, A9 en A10. Op loopafstand bevindt zich openbaar vervoer, dat u eenvoudig naar Amsterdam en Schiphol brengt.
Door de centrale ligging, meerdere autowegen, busverbindingen en metrolijn 51 is zowel Schiphol als het centrum van Amsterdam gemakkelijk bereikbaar.

Absolute pluspunten:
- Energielabel A
- 8 zonnepanelen (3680 KW en wifi gestuurd)
- Een uitgebouwde hoekwoning
- Grote living met glazen schuifpui
- Zes slaapkamers
- open keuken
- Twee badkamers
- De ruime opzet en het vele daglicht door grote raampartijen en zijramen
- Gerenoveerd en keurig afgewerkt
- Heerlijke tuin met schuur en bestuurbare overkapping voor schaduw.
- Uitstekende locatie
- Kindvriendelijke buurt

Alle comfort om het woonplezier optimaal te maken!
Zie de foto’s en de plattegronden voor de exacte indeling van deze fijne woning.
U bent welkom voor een bezichtiging ook in het weekend (in overleg).


De verkoop geschiedt onder gunning eigenaar (verkoper) en uitsluitend door middel van rechtsgeldige ondertekening van de koopakte door eigenaar (verkoper) en koper onder het toeziend oog van de betreffende notaris. De koopakte en leveringsakte zullen uitsluitend worden opgemaakt volgens het model van de Koninklijke Notariële Beroepenorganisatie en het ringmodel koopcontract Amsterdam, Amstelveen, Diemen, Badhoevedorp en Hoofddorp. Het notariskantoor van keuze dient te zijn gevestigd in één van de genoemde plaatsen.

Het verkochte is gemeten met gebruikmaking van de Meetinstructie, welke is gebaseerd op de normen zoals vastgelegd in NEN 2580. De Meetinstructie is bedoeld om een meer eenduidige manier van meten toe te passen voor het geven van een indicatie van de gebruiksoppervlakte.
De Meetinstructie sluit verschillen in meetuitkomsten niet volledig uit door bijvoorbeeld interpretatieverschillen, afrondingen en beperkingen bij het uitvoeren van een meting.
De woning is gemeten door een betrouwbaar professioneel bedrijf en koper vrijwaart Heemskerk Property B.V. h.o.d.n. Gerrit Jan Heemskerk makelaardij o.g. en haar medewerkers, alsmede de verkoper, voor eventuele afwijkingen in de opgegeven maten. Koper verklaart in de gelegenheid te zijn gesteld om het verkochte zelf te (laten) meten conform NEN 2580.

DISCLAIMER
Deze informatie is door ons met de nodige zorgvuldigheid samengesteld. Onzerzijds wordt echter geen enkele aansprakelijkheid aanvaard voor enige onvolledigheid, onjuistheid of anderszins, dan wel de gevolgen daarvan. Alle opgegeven maten en oppervlakten zijn indicatief. Koper heeft zijn eigen onderzoekplicht naar alle zaken die voor hem of haar van belang zijn. Met betrekking tot deze woning is de makelaar adviseur van verkoper. Wij adviseren u een deskundige makelaar in te schakelen die u begeleidt bij het aankoopproces. Indien u specifieke wensen heeft omtrent de woning, adviseren wij u deze tijdig kenbaar te maken aan uw aankopend makelaar en hiernaar zelfstandig onderzoek te (laten) doen. Indien u geen deskundige vertegenwoordiger inschakelt, acht u zich volgens de wet deskundige genoeg om alle zaken die van belang zijn te kunnen overzien. Van toepassing zijn De Algemene Consumentenvoorwaarden van de beroepsgroep, deze voorwaarden zijn tot stand gekomen in overleg met de NVM, Vast-goedPRO, Vereniging Eigen Huis en de Consumentenbond in het kader van de Coördinatiegroep Zelfreguleringsoverleg van de Sociaal-Economische Raad.


Welcome to this beautiful CORNER HOUSE WITH EXTENSION, energy label A, featuring a large living room, SIX bedrooms, TWO bathrooms, and a sunny backyard with a shed. Situated in an excellent location. This bright and spacious house has been renovated. Turnkey, ready to move in. A lovely home spread over three full floors. In short, wonderful and comfortable living.

Living area approx. 135 m2
Shed approx. 7 m2
Plot area approx. 130 m2
Back garden approx. 54 m2
Front garden approx. 12 m2
Additional loft on the attic floor

LAYOUT
A child-friendly street and courtyard with a playground nearby. The front garden is neatly tiled.

Ground floor:
Neat front door. Entrance and hallway with meter cupboard, coat closet, and a separate toilet with a wall-hung toilet and sink.
The bright, extended living room has a beautiful new PVC floor. Plenty of light comes through the sliding glass doors, skylights, the side window, and the windows at the front of the open-plan kitchen.
The sliding doors provide access to the lovely sunny back garden (approx. 54 m2). A true delight. This garden is spacious, neatly tiled, and has rear access. It also features a beautiful attached covered area for shade with remote-controlled sunshades. There's also a stone shed for your bikes, etc.
The open-plan, luxury kitchen is equipped with all the appliances for everyday comfort, including: a beautiful natural stone worktop all around, a stylish induction cooktop, a multifunctional oven, a combination microwave, a dishwasher, a refrigerator-freezer (no frost), and a combination Quooker.

The large windows allow for abundant natural light. The living room is spacious and inviting. The garden is a delight. A wonderful home. A lovely place to spend time with your family.

First floor.
The landing provides access to three spacious bedrooms and a neat bathroom. You'll be pleasantly surprised by the master bedroom at the rear. The other two bedrooms are also well-sized.
The neat bathroom is located at the front of the house and features a sink, walk-in shower, bath, wall-hung toilet, electric underfloor heating, and is neatly tiled.
This floor has a beautiful PVC floor.

Second Floor
On the top floor, you'll find a full mezzanine floor with a high ridge. Two spacious bedrooms are located at the side of the house. The front bedroom also offers a beautiful view and an additional side window. A true beauty of a room! This room has air conditioning.
At the rear, you'll find a sixth bedroom and/or office.
There's also a modest bathroom with a washing machine and dryer. The central heating boiler and mechanical ventilation are also located here.
Finally, there's ample storage space with knee walls at the rear and an additional 5-meter-wide mezzanine for storage.
This floor also has a beautiful PVC floor.

In short: all the space and comfort you need for optimal living. See the photos and floor plans for the exact layout of this beautiful corner house. And schedule a viewing to see for yourself.

LOCATION
The surrounding area is wonderfully green with beautiful trees, water features, and play facilities for children.
The recently renovated and expanded Westwijkplein shopping center is a short walk away. It offers two large supermarkets, shops for daily groceries, as well as a pharmacy, specialty and delicatessen stores, and a library.
Ample parking is available. The street is car-free.
Several sports parks (tennis, soccer, and hockey) are located nearby, not to mention the Amsterdamse Bos (approx. 350 meters). Within 5 minutes, you can be on a pleasant terrace near the Poel.
Several schools (International School, primary and secondary schools) and childcare facilities are also within walking and/or cycling distance.
The property is easily accessible thanks to the many access roads, such as the Beneluxbaan, the A4, A9, and A10 highways. Public transport is within walking distance, providing easy access to Amsterdam and Schiphol Airport. Thanks to its central location, multiple highways, bus connections, and metro line 51, both Schiphol Airport and Amsterdam city center are easily accessible.

Definite plus points:
- Energy label A
- 8 solar panels (3680 kW and Wi-Fi controlled)
- An extended corner house
- Large living room with sliding glass doors
- Six bedrooms
- Open-plan kitchen
- Two bathrooms
- Spacious layout and abundant natural light through large windows and side windows
- Renovated and neatly finished
- Lovely garden with a shed and a controllable canopy for shade
- Excellent location
- Child-friendly neighborhood

Every comfort to maximize your living experience!
See the photos and floor plans for the exact layout of this lovely home.
You are welcome to view the house, including weekends (by arrangement).

The sale will take place subject to the consent of the owner (seller) and exclusively by means of the legally valid signing of the deed of sale by the owner (seller) and the buyer, under the supervision of the relevant civil-law notary. The deed of sale and deed of transfer will be drawn up exclusively in accordance with the model of the Royal Dutch Association of Civil-Law Notaries and the ring model purchase contract for Amsterdam, Amstelveen, Diemen, Badhoevedorp, and Hoofddorp. The notary's office of choice must be located in one of the aforementioned locations.

The property sold has been measured using the Measurement Instructions, which are based on the standards established in NEN 2580. The Measurement Instructions are intended to apply a more uniform measuring method for providing an indication of the usable area.
The Measurement Instructions do not completely eliminate differences in measurement results due to, for example, interpretation differences, rounding, and limitations in the execution of a measurement.
The property has been measured by a reliable professional company, and the buyer indemnifies Heemskerk Property B.V. trading as "H.o.d.n." Gerrit Jan Heemskerk Real Estate Agency and its employees, as well as the seller, are responsible for any deviations in the stated measurements. The buyer declares that they have been given the opportunity to measure the property themselves (or have it measured) in accordance with NEN 2580.

DISCLAIMER
This information has been compiled by us with due care. However, we accept no liability for any incompleteness, inaccuracy, or otherwise, or the consequences thereof. All stated measurements and surface areas are indicative. The buyer has the obligation to investigate all matters of importance to them. The real estate agent is acting as the seller's advisor regarding this property. We recommend that you engage an expert real estate agent to guide you through the purchase process. If you have specific wishes regarding the property, we advise you to inform your purchasing agent in a timely manner and to conduct your own independent investigation. If you do not engage an expert representative, you are legally considered sufficiently expert to be able to oversee all relevant matters. The General Consumer Terms and Conditions of the professional association apply. These terms and conditions have been drawn up in consultation with the NVM, Vast-goedPRO, Vereniging Eigen Huis and the Consumers' Association within the framework of the Self-Regulation Coordination Group of the Social and Economic Council.
Lees meer

Kenmerken

Overdracht

Prijs per m2
€ 6.289
Aangeboden sinds
16 oktober 2025
Status
Beschikbaar
Aanvaarding
In overleg

Bouw

Soort woonhuis
Eengezinswoning, hoek woning
Soort bouw
Bestaande bouw
Bouwjaar
1994
Soort dak
Zadeldak
Staat van onderhouden binnen
Goed
Staat van onderhouden buiten
Goed

Oppervlakte en inhoud

Perceeloppervlakte
130 m2
Inhoud van de woning
350 m3
Oppervlakte externe bergruimte
7 m2

Indeling

Aantal kamers
7
Aantal slaapkamers
6
Aantal woonlagen
3
Voorzieningen
Tuin

Buitenruimte

Balkon
Nee
Schuur/berging
Nee

Maandlasten berekenen

De maandlasten voor je woning bestaan uit meer dan alleen de hypotheeklasten. Hieronder vind je een overzicht van de bijkomende kosten en lasten. Zo weet je precies wat je huis per maand gaat kosten. En met de handige vergelijkers kun je ook nog eens snel de beste deals sluiten!

  • Kaart
  • Streetview