Zonnebloemweg 16 1338 LV Almere

82m2
Wonen
4
Kamers
93m2
Perceel
1989
Bouwjaar
*Vanwege de grote belangstelling plannen wij bezichtigingen uitsluitend nog in via WhatsApp. Stuur ons een bericht op ons telefoonnummer om een afspraak te maken.
*See for English below.

Ideale 4-kamer tussenwoning voor gezinnen, koppels en starters met fijne voortuin, achtertuin en berging!

In de rustige en groene Bloemenbuurt in Almere-Buiten staat deze verzorgde tussenwoning met drie slaapkamers, een moderne badkamer (2021) en een ruime tuin. De woning heeft een slimme indeling en beschikt daarnaast over een vrijstaande berging van 8 m2. Dankzij deze praktische indeling, de verzorgde staat van onderhoud en de centrale ligging is dit een woning die je zo kunt betrekken! Het huis is van de buitenkant geschilderd in 2025.

De vraagprijs van €329.500,- k.k. betreft een bieden vanaf prijs.

Indeling

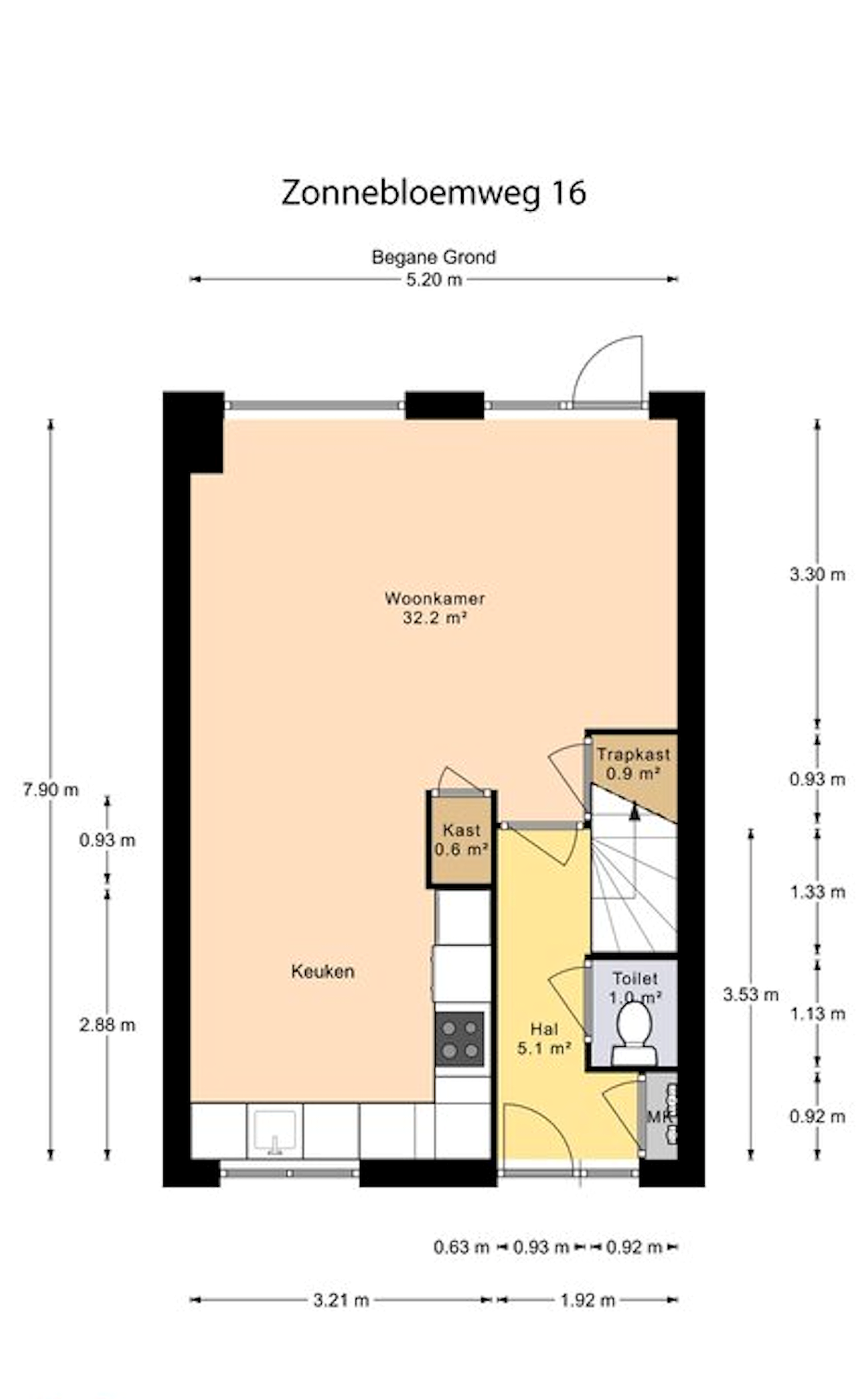
Begane grond
Bij binnenkomst kom je in de hal met de meterkast en een toilet. Vanuit de hal stap je direct de woonkamer in. Deze ruimte van ruim 32 m2 is heerlijk licht dankzij de grote ramen en biedt volop mogelijkheden om een fijne zithoek en een gezellige eethoek te creëren. De open keuken aan de voorzijde is modern ingericht en voorzien van diverse inbouwapparatuur, waaronder een inductiekookplaat, combi-oven, vaatwasser, koelkast en vriezer. Bovendien is er een praktische trapkast aanwezig die extra bergruimte biedt.

Eerste verdieping
Op de verdieping bevinden zich maar liefst drie slaapkamers van respectievelijk circa 7,4 m2, 9,4 m2 en 13,8 m2. Dit maakt de woning geschikt voor een gezin, thuiswerken of het inrichten van een logeer- of hobbykamer. De badkamer is in 2021 geheel vernieuwd en straalt luxe en comfort uit. Met een glazen douchewand, een zwevend toilet, grote wandtegels, een verlichte spiegel en een stijlvolle zwarte designradiator is dit een ruimte waar je elke dag met plezier gebruik van maakt.

Buitenruimte en berging
De woning beschikt over een ruime achtertuin, ideaal om in alle rust van het buitenleven te genieten. De tuin is voorzien van een nieuwe schutting (2025) en biedt voldoende privacy. Aan de voorzijde vind je een mooi aangelegde voortuin met zitgelegenheid, perfect voor een kop koffie in de ochtendzon. Verder is er een vrijstaande stenen berging van circa 8 m2 aanwezig, handig voor fietsen en extra opslag. Parkeren kan eenvoudig voor de deur; er zijn voldoende gratis parkeerplaatsen in de straat.

Bijzonderheden
- Schilderwerk buiten 2025
- Vrijstaande berging van 8 m2
- Voor- en achtertuin, met nieuwe schutting (2025)
- Moderne badkamer uit 2021
- Energielabel C
- Keuken voorzien van diverse inbouwapparatuur
- Rustige ligging met voldoende parkeergelegenheid

Ligging
De woning is gelegen in de Bloemenbuurt in Almere-Buiten, een rustige en kindvriendelijke wijk met veel voorzieningen in de directe omgeving. Op korte afstand vind je scholen, speeltuinen, winkels en sportfaciliteiten. Het winkelcentrum Almere Buiten en het NS-station zijn snel bereikbaar, waardoor je eenvoudig toegang hebt tot het openbaar vervoer en de vele winkels. Ook de uitvalswegen A6 en A27 liggen vlakbij, waardoor zowel Amsterdam, Utrecht als ’t Gooi goed bereikbaar zijn. De combinatie van rust, ruimte en centrale ligging maakt dit een aantrekkelijke woonomgeving.

Laat deze kans niet aan je voorbijgaan en neem snel contact met ons op voor een bezichtiging!

------------------------------------

**Due to high demand, we are now only scheduling viewings via WhatsApp. Please send us a message on our phone number to make an appointment.

Ideal 4-room house for families, couples, and first-time buyers with a lovely front and back garden and storage shed!

This well-maintained terraced house with three bedrooms, a modern bathroom (2021), and a spacious garden is located in the quiet and green Bloemenbuurt neighborhood in Almere-Buiten. The house has a smart layout and also has a storage shed of 8 m2. Thanks to this practical layout, the well-maintained condition, and the central location, this is a house you can move into right away! The exterior of the house was painted in 2025.

The asking price of €329.500 k.k. is a starting price.

Layout

Ground floor
Upon entering, you will find yourself in the hall with the meter cupboard and a toilet. From the hall, you step directly into the living room. This space of over 32 m2 is wonderfully light thanks to the large windows and offers plenty of opportunities to create a nice sitting area and a cozy dining area. The open kitchen at the front is modernly furnished and equipped with various built-in appliances, including an induction hob, combi-oven, dishwasher, refrigerator, and freezer. There is also a practical stair cupboard that offers extra storage space.

First floor
The first floor has no fewer than three bedrooms, measuring approximately 7.4 m2, 9.4 m2 and 13.8 m2 respectively. This makes the house suitable for a family, working from home or setting up a guest room or hobby room. The bathroom was completely renovated in 2021 and exudes luxury and comfort. With a glass shower wall, a floating toilet, large wall tiles, an illuminated mirror, and a stylish black designer radiator, this is a space you will enjoy using every day.

Outdoor space and storage
The house has a spacious backyard, ideal for enjoying the outdoors in peace and quiet. The garden has a new fence (2025) and offers plenty of privacy. At the front, you will find a beautifully landscaped front garden with seating, perfect for a cup of coffee in the morning sun. There is also a detached stone storage shed of approximately 8 m2, ideal for bicycles and extra storage. Parking is easy in front of the door; there are plenty of free parking spaces in the street.

Details
- Exterior painting 2025
- Detached storage shed of 8 m2
- Front and back garden, with new fence (2025)
- Modern bathroom from 2021
- Energy label C
- Kitchen equipped with various built-in appliances
- Quiet location with ample parking

Location
The house is located in the Bloemenbuurt in Almere-Buiten, a quiet and child-friendly neighborhood with many amenities in the immediate vicinity. Schools, playgrounds, shops, and sports facilities are all within walking distance. The Almere Buiten shopping center and the train station are easily accessible, giving you easy access to public transportation and many shops. The A6 and A27 highways are also nearby, making Amsterdam, Utrecht, and 't Gooi easily accessible. The combination of tranquility, space, and central location makes this an attractive place to live.

Don't miss out on this opportunity and contact us quickly for a viewing!
Lees meer

Kenmerken

Overdracht

Prijs per m2
€ 4.018
Aangeboden sinds
9 september 2025
Status
Beschikbaar
Aanvaarding
In overleg

Bouw

Soort woonhuis
Eengezinswoning, tussen woning
Soort bouw
Bestaande bouw
Bouwjaar
1989
Staat van onderhouden binnen
Goed
Staat van onderhouden buiten
Goed

Oppervlakte en inhoud

Perceeloppervlakte
93 m2
Inhoud van de woning
205 m3
Oppervlakte externe bergruimte
8 m2

Indeling

Aantal kamers
4
Aantal slaapkamers
3
Aantal woonlagen
2
Voorzieningen
Tuin, ventilatie, kabel-tv

Buitenruimte

Balkon
Nee
Schuur/berging
Nee

Maandlasten berekenen

De maandlasten voor je woning bestaan uit meer dan alleen de hypotheeklasten. Hieronder vind je een overzicht van de bijkomende kosten en lasten. Zo weet je precies wat je huis per maand gaat kosten. En met de handige vergelijkers kun je ook nog eens snel de beste deals sluiten!

  • Kaart
  • Streetview