Menuetstraat 31 1312 TX Almere

160m2
Wonen
6
Kamers
320m2
Perceel
1994
Bouwjaar
“ENGLISH TEXT BELOW”.

LUXE GERENOVEERDE TWEE ONDER EEN KAP WONING MET UITZICHT OP HET GROEN, 160 M2 WOONPLEZIER IN EEN OASE VAN RUST.

Aan de rand van de kindvriendelijk Muziekwijk-Noord, met vrij uitzicht over het groen aan de voorzijde ligt dit ruime woonhuis op een perceel van 320 m2. Een plek waar rust, ruimte en comfort samenkomen. Uitzonderlijk mooi wonen en toch met de Stad op 10 minuten fietsafstand.

De woning is uitstekend onderhouden, recent gemoderniseerd en biedt volop mogelijkheden, mede vanwege de bijgebouwen in de tuin met diverse voorzieningen en de daar aanwezige kantoorruimte, welke thans in gebruik is als gastenkamer.

De gezellige tuin is met zorg aangelegd, waar u kunt genieten van de zon, schaduw, vogels en bloemen. In het overdekt gelegen gedeelte achter de keuken hebben de huidige bewoners een verhoogde kruidentuin aangelegd.

Dankzij de eigen oprit aan de voorzijde is er altijd een plek om te parkeren op eigen terrein.

Ligging:
In de directe omgeving bevinden zich diverse voorzieningen waaronder basisscholen, een gezondheidscentrum, de Plus, Albert Heijn, diverse andere winkels, het winkelcentrum Muziekwijk met NS-station en het Muzenpark. Tevens liggen het Beatrixpark en stadsbos Pampushout op korte afstand, hier is het lekker wandelen en fietsen.

De ligging is ideaal ten opzichte van de aansluitingen naar de snelwegen. Via de Hoge Ring, welke is gelegen op 2 minuten rijafstand, bereikt u de uitvalswegen waaronder de A27 en de A6 richting Amsterdam en Lelystad.
Begane grond
Begane grond: entree, ruime hal met toiletruimte, woonkamer, eetkamer, open keuken met naastgelegen wasruimte met doorgang naar de hal. Bijkeuken voorzien van inbouw opberg- voorraadkasten, te bereiken via de hal en de serre.

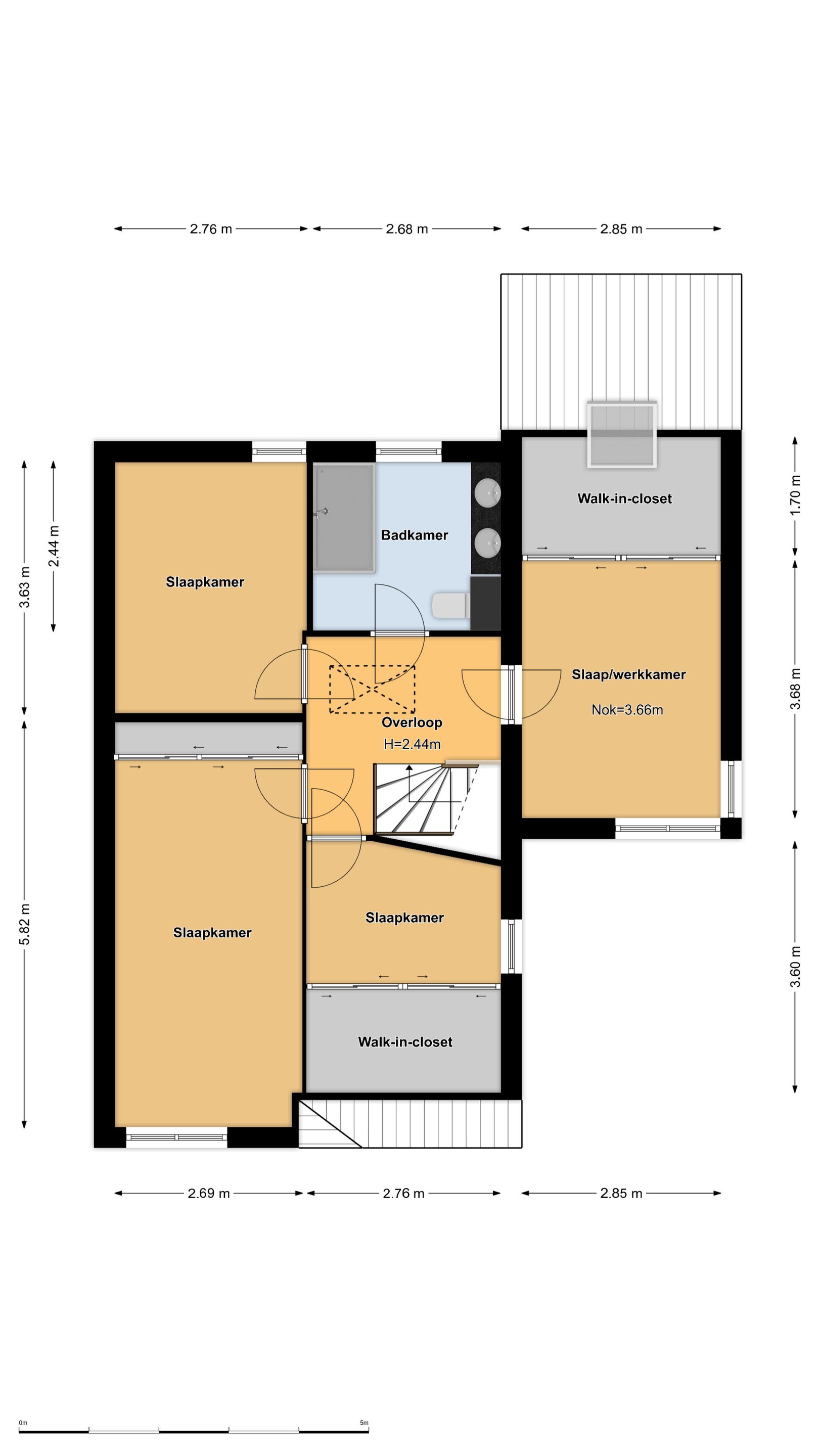
1e Verdieping: 4 slaapkamers, waarvan twee met een walk-in closet en één met een kastenwand. Eén van de slaapkamers is thans in gebruik als werkkamer.

Vliering: deze bergruimte is te bereiken vanaf de 1e verdieping middels een vlizotrap.
Op deze vliering is het mogelijk om een dakkapel te plaatsen, alsmede een vaste trap vanaf de eerste verdieping. De hiertoe benodigde vergunningen komen voor rekening en risico van de kopers.

Tuin aan de achterzijde, met serre voorzien van jacuzzi, sauna en douche. Deze serre is gedeeltelijk te openen door middel van glazen schuivende panelen. Overkapping voorzien van buitenhaard. Kantoorruimte, thans in gebruik als gastenkamer.

Tuin aan de voorzijde, hier kunt u tevens parkeren op eigen terrein.

Tuin
Tuin aan de achterzijde, ligging ZO
Tuin aan de voorzijde ligging NW

Details
Onderhoudstoestand: binnen en buiten goed.

Keuken: moderne luxe keuken uitgebouwd en verbouwd in 2021, bestaande uit meerdere keukenblokken met diverse onder- en bovenkasten, alsmede een kook- spoeleiland met een eetbar. De keuken is uitgevoerd in een mooie zachte en lichte kleur met een massief granieten black aanrechtblad. In de keuken is diverse inbouw apparatuur aanwezig, te weten een koel-vries combinatie, klimaatkast, stoomoven, combi-oven, inductie kookplaat met kookveldafzuiging, vaatwasmachine en Quooker, die ook optioneel te gebruiken is met een Co2 patroon voor bruiswater. In de keuken is een airco aanwezig en een 2e schuifpui (2021) naar de tuin.

Badkamer: zeer luxe badkamer, volledig verbouwd in 2021. In deze badkamer waan je je in een luxe spa. De doucheruimte met zitgedeelte is volledig afsluitbaar en is voorzien van een stoomfunctie. Fraai donkerbruin meubel voorzien van 2 waskommen en spiegel met led-verlichting. Een moderne toiletcombinatie die verwarmt, droogt en als bidet te gebruiken is. Op de vloer zijn keramische vloertegels aangebracht en de wanden zijn voorzien van prachtige keramische wandplaten met natuursteen.

Toilet begane grond: voorzien van een moderne toiletcombinatie die verwarmt, droogt en als bidet te gebruiken is, fonteintje, en spiegel met led-verlichting. Op de vloer zijn keramische vloertegels aangebracht en de wanden zijn voorzien van fraaie keramische wandplaten met natuursteen.

Wasmachineruimte met opstelplaats voor wasmachine en droger, een wasbak en de mogelijkheid om een extra koelkast te plaatsen.

Stoffering 2023: begane grond: mooie grote keramische vloertegels met marmer-look, 1e verdieping PVC vloer met uitzondering van de badkamer.

Dichte trap naar de eerste verdieping: in 2021 voorzien van verlichting en treden met eikenhout.

Binnendeuren begane grond uitgevoerd met stalen industriële deuren (2021).

Verwarming en warmwatervoorziening: middels Stadsverwarming geleverd door Vattenfall.

Airco’s: 4 airco’s voor verwarming en koeling geplaatst in het kantoor en de keuken op de begane grond en de master bedroom en de slaap-werkkamer op de eerste verdieping

Veiligheidsvoorzieningen: alarmsysteem, veiligheidsvoordeur op afstand te openen en te sluiten, twee camera’s en een bouwlamp. Het gehele huis is voorzien van rolluiken.

Voor- en achtertuin voorzien van meerdere stroompunten. Tevens is de achtertuin voorzien van op afstand te bedienen buitenverlichting.

Twee electrisch te bedienen zonneschermen bij de twee schuifpuien aan de achterzijde.

Zonnepanelen: 31 stuks.

Buitenschilderwerk: 2024

Eigen grond.

Bouwjaar 1994.

Parkeren op eigen terrein.

Energielabel A+

Notaris: ter keuze van koper.

Aanvaarding: in overleg met verkoper.

In het koopcontract wordt een asbest- en een ouderdomsclausule opgenomen.

Oppervlakte woning: circa 160 m2, oppervlakte serre en bijkeuken tezamen circa 51 m2, oppervlakte vliering circa 9 m2, oppervlakte overkapping circa 17 m2.

Koper wordt voor het sluiten van de overeenkomst voldoende in de gelegenheid gesteld de maatvoering zelf te (laten) controleren. Verschillen in de opgegeven maat en grootte geven geen der partijen enig recht, zo ook niet op aanpassing van de koopsom. Verkoper en diens makelaar aanvaarden geen enkele aansprakelijkheid hierin.

Het woonoppervlak GO van circa 160 m2 is gemeten door een externe partij conform de branchebrede meetinstructie (BBMI).

Een Meetrapport op basis van de branchebrede meetinstructies is aanwezig.
Een unieke combinatie van ruimte, rust en locatie.

“ENGLISH TEXT”

LUXURIOUSLY RENOVATED SEMI-DETACHED HOUSE WITH VIEWS OF GREENERY, 160 M2 OF LIVING SPACE IN AN OASIS OF TRANQUILLITY.

On the edge of the child-friendly Muziekwijk-Noord neighbourhood, with unobstructed views of the greenery at the front, this spacious house is situated on a 320 m2 plot. A place where tranquillity, space and comfort come together. Exceptionally beautiful living, yet with the city just a 10-minute bike ride away.

The house is excellently maintained, recently modernised (2021) and offers plenty of possibilities, partly due to the outbuildings in the garden with various facilities and the office space there, which is currently used as a guest room.

The cosy garden has been laid out with care, where you can enjoy the sun, shade, birds and flowers. In the area behind the kitchen, the current residents have created a herb garden.

Thanks to the private driveway at the front, there is always a place to park your car on your own property.

Location:
There are various amenities in the immediate vicinity, including primary schools, a health centre, the Plus supermarket, Albert Heijn supermarket, various other shops, the Muziekwijk shopping centre with railway station and the Muzenpark. The Beatrixpark and Pampushout city forest are also a short distance away, where you can enjoy walking and cycling.

The location is ideal in terms of connections to the motorways. Via the Hoge Ring, which is a 2-minute drive away, you can reach the A27 and A6 motorways towards Amsterdam and Lelystad.

Layout:
Ground floor: entrance hall, spacious hall with toilet, living room, dining room, very luxury open kitchen with adjacent laundry room with access to the hall. Utility room with built-in storage cupboards, accessible via the hall and the conservatory.

First floor: four bedrooms, two of which have a walk-in closet and one with a wall of cupboards. One of the bedrooms is currently used as a study.

Attic: this storage space is accessible from the first floor via a loft ladder.
It is possible to install a dormer window in this attic, as well as a fixed staircase from the first floor. The necessary permits are at the expense and risk of the buyers.

Garden at the rear, with conservatory equipped with jacuzzi, sauna and shower. This conservatory can be partially opened by means of sliding glass panels. Canopy with outdoor fireplace. Office space, currently used as a guest room.

Garden at the front, where you can also park your car on your own property.

Particularities:
- Kitchen: modern luxury kitchen extended and renovated in 2021, consisting of several kitchen units with various base and wall cabinets, as well as a cooking and washing-up island with a breakfast bar. The kitchen is finished in a beautiful soft and light colour with a solid black granite worktop. The kitchen has various built-in appliances, namely a fridge-freezer, climate cabinet, steam oven, combi-oven, induction hob with cooktop extractor, dishwasher and Quooker, which can also be used optionally with a CO2 cartridge for sparkling water. The kitchen has air conditioning and a second sliding door (2021) to the garden.
- Bathroom: very luxurious bathroom, completely renovated in 2021. This bathroom makes you feel like you are in a luxury spa. The shower room with seating area is completely lockable and has a steam function. Beautiful dark brown furniture with two washbasins and a mirror with LED lighting. A modern toilet combination that heats, dries and can be used as a bidet. The floor is covered with ceramic floor tiles and the walls are covered with beautiful ceramic wall panels with natural stone.
- Ground floor toilet: equipped with a modern toilet combination that heats, dries and can be used as a bidet, washbasin and mirror with LED lighting. The floor is covered with ceramic floor tiles and the walls are fitted with beautiful ceramic wall panels with natural stone.
- Laundry room with space for a washing machine and dryer, a sink and the possibility to install an extra refrigerator.
- Flooring 2023: ground floor: beautiful large ceramic floor tiles with a marble look, 1st floor PVC flooring with the exception of the bathroom.
- Closed staircase to the first floor: fitted with lighting and oak steps in 2021.
- Interior doors on the ground floor fitted with steel industrial doors (2021).
- Heating and hot water supply: via district heating supplied by Vattenfall.
- Air conditioning: 4 air conditioners for heating and cooling installed in the office and kitchen on the ground floor and the master bedroom and study on the first floor.
- Security features: alarm system, remote-controlled security front door, two cameras and a construction lamp. The entire house is equipped with roller shutters.
- Front and back gardens equipped with multiple power points. The back garden also has remote-controlled outdoor lighting.
- Two electrically operated sun blinds above the two sliding doors at the rear.
- Solar panels: 31 units.
- Exterior painting: 2024
- Freehold.
- Energy label A+.
- Notary: to be chosen by the buyer.
- Acceptance: in consultation with the seller.
- An asbestos and age clause will be included in the purchase contract.

Measurements:
Surface area of the house: approximately 160 m2, surface area of the conservatory and utility room together approximately 51 m2, surface area of the attic approximately 9 m2, surface area of the canopy approximately 17 m2.

Before concluding the agreement, the buyer will be given sufficient opportunity to check the dimensions themselves or have them checked. Differences in the specified dimensions and size do not entitle either party to any rights, including adjustment of the purchase price. The seller and their estate agent accept no liability in this regard.

The living area of approximately 160 m2 has been measured by an external party in accordance with the industry-wide measurement instructions (BBMI).
A measurement report based on the industry-wide measurement instructions is available.
A unique combination of space, tranquillity and location.

Lees meer

Kenmerken

Overdracht

Prijs per m2
€ 4.809
Aangeboden sinds
5 februari 2026
Status
Beschikbaar
Aanvaarding
In overleg

Bouw

Soort woonhuis
Eengezinswoning, twee-onder-een-kap woning
Soort bouw
Bestaande bouw
Bouwjaar
1994
Soort dak
Zadeldak
Staat van onderhouden binnen
Uitstekend
Staat van onderhouden buiten
Uitstekend

Oppervlakte en inhoud

Perceeloppervlakte
320 m2
Inhoud van de woning
722 m3
Oppervlakte gebouwgebonden buitenruimten
17 m2
Oppervlakte overige inpandige ruimten
60 m2

Indeling

Aantal kamers
6
Aantal slaapkamers
5
Aantal woonlagen
3
Voorzieningen
Ventilatie, alarmsysteem, kabel-tv, buitenzonwering, airconditioning, jacuzzi, stoomcabine, schuifpui, sauna

Buitenruimte

Balkon
Nee
Schuur/berging
Nee

Maandlasten berekenen

De maandlasten voor je woning bestaan uit meer dan alleen de hypotheeklasten. Hieronder vind je een overzicht van de bijkomende kosten en lasten. Zo weet je precies wat je huis per maand gaat kosten. En met de handige vergelijkers kun je ook nog eens snel de beste deals sluiten!

  • Kaart
  • Streetview