Arinnastraat 19D 1363 RB Almere

128m2
Wonen
6
Kamers
127m2
Perceel
2016
Bouwjaar
Let op! Deze woning wordt aangeboden middels een bieden vanaf prijs van €595.000 ,-K.K.

Modern en comfortabel wonen in Almerepoort- Ruime eengezinswoning uit 2016 met een nette afwerking en dakterras!

In de populaire en groene wijk Almerepoort staat deze ruime en stijlvol afgewerkte woning uit 2016. De buurt staat bekend om haar moderne uitstraling, goede voorzieningen, nabijheid van het strand van Almere Duin, uitstekende bereikbaarheid en diverse sport- en recreatiemogelijkheden. Een ideale woonomgeving voor gezinnen en iedereen die comfortabel en rustig wil wonen, maar toch dicht bij de stad en natuur. Almerepoort heeft een eigen NS-Station en goede busverbindingen. De ligging dichtbij de A6 maakt dat je snel naar Amsterdam of het Gooi kunt rijden.

Het Homeruskwartier in het stadsdeel Almere Poort is de grootste woonwijk in Nederland die door de eigen inwoners wordt ontwikkeld en gebouwd. In deze populaire woonwijk, op loopafstand van bos Pampushout en Almere Duin, staat deze ruime gezinswoning met vijf slaapkamers, een dakterras en een diepe tuin. Aan de voorzijde heb je vrij uitzicht. Kinderopvang, basisonderwijs, het Homeruspark en het winkelcentrum bevinden zich op loop-/fietsafstand. Aan de zuidkant van Almere Poort wordt gebouwd aan Almere Duin met een jachthaven, boulevard en het Almeerderstrand.

Bij binnenkomst in de entree vindt u een separaat toilet, de trapopgang naar de eerste verdieping en toegang tot zowel de keuken als de lichte, tuingerichte woonkamer. De woonkamer heeft veel raampartijen en beschikt over openslaande deuren naar de achtertuin, waardoor er een prettige verbinding ontstaat tussen binnen en buiten.

De keuken bevindt zich aan de voorzijde van de woning, met hoge ramen. De keuken( met een granieten blad) is praktisch ingedeeld en vormt een fijne plek om te koken. De opstelling en hoge kastenwand zijn uitgevoerd in een moderne stijl, met alle benodigde inbouwapparatuur: een inductie kookplaat, afzuigkap, vaatwasser, oven, combi, een vriezer en een aparte koelkast.

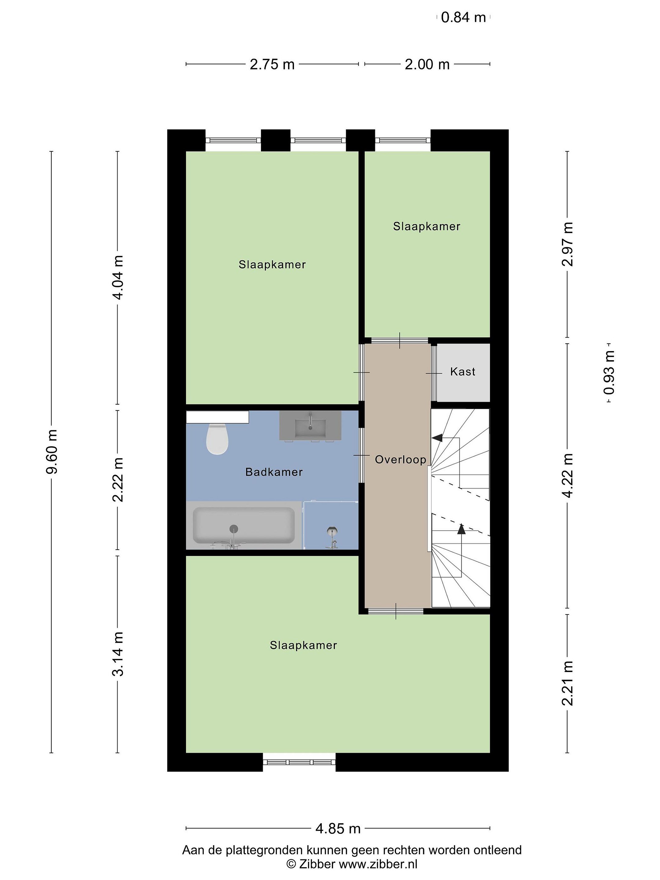
Op de eerste verdieping bevinden zich drie slaapkamers. De moderne badkamer biedt alle comfort dankzij een ligbad, badmeubel, inloopdouche en een tweede toilet.

De tweede verdieping biedt nog meer leefruimte met een lichte overloop, 2 slaapkamers, een praktische wasruimte en toegang tot een ruim dakterras. Dit dakterras is perfect om te ontspannen en te genieten van de zon. Op zolder zit er aansluiting voor het realiseren van een tweede badkamer en toilet.

Pluspunten van deze woning:
- Gelegen in het gewilde Almere Poort
- Bouwjaar 2016
- Vijf slaapkamers
- Moderne badkamer met ligbad en inloopdouche
- Zonnige achtertuin én een ruim dakterras
- Ideaal voor gezinnen
- Energielabel A+

Deze woning biedt een fijne combinatie van ruimte, comfort en een uitstekende locatie. Zeker een bezichtiging waard!
Lees meer

Kenmerken

Overdracht

Prijs per m2
€ 4.623
Aangeboden sinds
16 februari 2026
Status
Beschikbaar
Aanvaarding
In overleg

Bouw

Soort woonhuis
Eengezinswoning, tussen woning
Soort bouw
Bestaande bouw
Bouwjaar
2016
Staat van onderhouden binnen
Goed
Staat van onderhouden buiten
Goed

Oppervlakte en inhoud

Perceeloppervlakte
127 m2
Inhoud van de woning
455 m3
Oppervlakte gebouwgebonden buitenruimten
23 m2

Indeling

Aantal kamers
6
Aantal slaapkamers
5
Aantal woonlagen
3
Voorzieningen
Tuin

Buitenruimte

Balkon
Nee
Schuur/berging
Nee

Maandlasten berekenen

De maandlasten voor je woning bestaan uit meer dan alleen de hypotheeklasten. Hieronder vind je een overzicht van de bijkomende kosten en lasten. Zo weet je precies wat je huis per maand gaat kosten. En met de handige vergelijkers kun je ook nog eens snel de beste deals sluiten!

  • Kaart
  • Streetview