Verkocht

Ark 22 5502 VJ Veldhoven

134m2
Wonen
4
Kamers
257m2
Perceel
2000
Bouwjaar
Goed onderhouden, geschakelde semi-bungalow met o.a. 2 garages, 2 slaapkamers en een badkamer op de begane grond. Deze woning is rustig gelegen in Zeelst, gemeente Veldhoven, nabij diverse openbare voorzieningen zoals een school, sportgelegenheden, openbaar vervoer, horeca en het City Centrum.

Algemeen
- Goed onderhouden.
- Royale woonkamer met open keuken.
- 2 slaapkamers en badkamer op de begane grond.
- Ruime open zolderkamer met div. mogelijkheden.
- 2 garages.
- Ruime serre.
- 6 zonnepanelen á 430 wp.
- Airconditioning in de woonkamer.
- ASML en MMC op korte afstand gelegen.

Begane grond
Vanuit de overdekte hal/entree met meterkast is er toegang tot de ruime woonkamer met open keuken en de trapopgang naar de eerste verdieping. De keuken, in L-vorm, is aan de voorzijde van de woning gelegen en is v.v. diverse kasten en lades, een kunststof werkblad met spoelbak en kraan, een 4-pits gaskookplaat, afzuigkap, koelkast (2022) en vaatwasser (2024). In de woonkamer is een trapkast aanwezig wat zorgt voor extra bergruimte. Door de grote raampartijen is er veel lichtinval in de woonkamer. De woonkamer biedt toegang tot de serre/achtertuin. Vanuit de woonkamer is ook een lange gang bereikbaar van waaruit er toegang is tot twee slaapkamers (beide v.v. een kastenwand), het separaat toilet, de badkamer, een berging met wasmachineaansluiting en een bergkast. Vanuit deze gang is ook de aangebouwde garage bereikbaar. Het separaat toilet is deels betegeld en v.v. een hangend toilet met fonteintje. De badkamer is geheel betegeld en v.v. een hangend toilet, ligbad, wastafel en een douche. De vloer van de gehele begane grond is v.v. tegels met grotendeels vloerverwarming (m.u.v. de slaapkamers). De wanden zijn afgewerkt met stucwerk. De plafonds zijn v.v. spuitwerk. De kozijnen zijn van hout met dubbel glas en grotendeels v.v. rolluiken.

Eerste verdieping
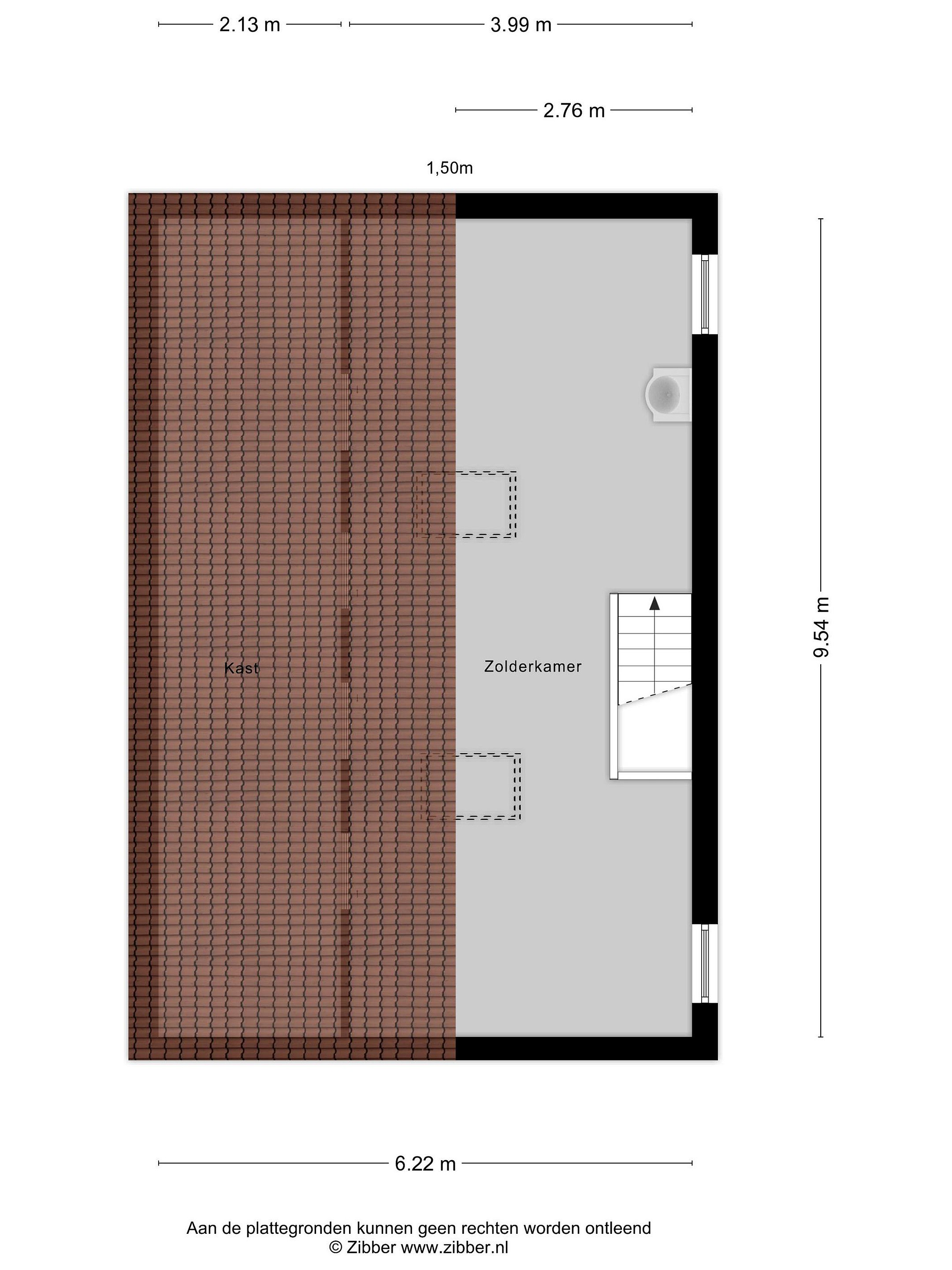
Middels een vaste trap is een ruime open zolderkamer bereikbaar. Deze ruimte biedt eventueel een mogelijkheid voor het realiseren van een extra slaapkamer. De vloer van deze verdieping is v.v. tapijt. De wanden zijn afgewerkt met stucwerk. De kozijnen zijn van hout met dubbel glas.

Buiten
Deze woning beschikt over 2 garages en een voor-en achtertuin. Beide garages zijn middels een inrit aan de voorzijde van de woning bereikbaar. De achtertuin is gelegen op het noordoosten en beschikt tevens over een royale serre. De tuin is aangelegd met sierbestrating en omringd door een groene schutting. De voortuin is gelegen op het westen en is aangelegd met sierbestrating, een stenen bloembak en een border met vaste beplanting.

Ligging
Deze woning is rustig maar toch zeer centraal gelegen nabij het centrum van Zeelst en nabij het City Centrum. Diverse openbare voorzieningen zoals winkels, scholen, sportvoorzieningen, openbaar vervoer en horeca zijn in de directe omgeving aanwezig. Tevens zijn ASML en MMC op korte afstand gelegen. Veldhoven grenst aan het stedelijke gebied van Eindhoven maar ook aan de natuur en landerijen van de Kempen regio. Door de centrale ligging zijn de uitvalswegen de N2, A2, A50, A58 en A67 zeer nabij. De bedrijvigheid in de regio is zeer goed te noemen. O.a. door grote bedrijven in de regio als ASML, Philips, Daf en High Tech Campus, staat de regio bekend door een bovengemiddelde werkgelegenheid.
Lees meer

Verkoopgeschiedenis

Aangeboden sinds
9 januari 2026
Verkoopdatum
13 maart 2026
Looptijd
2 maanden

Kenmerken

Overdracht

Prijs per m2
€ 4.851
Aangeboden sinds
9 januari 2026
Status
Verkocht
Aanvaarding
In overleg

Bouw

Soort woonhuis
Bungalow, geschakelde woning, semi bungalow
Soort bouw
Bestaande bouw
Bouwjaar
2000
Soort dak
Lessenaarsdak
Staat van onderhouden binnen
Goed
Staat van onderhouden buiten
Goed

Oppervlakte en inhoud

Perceeloppervlakte
257 m2
Inhoud van de woning
663 m3
Oppervlakte gebouwgebonden buitenruimten
3 m2
Oppervlakte overige inpandige ruimten
53 m2

Indeling

Aantal kamers
4
Aantal slaapkamers
3
Aantal woonlagen
2
Voorzieningen
Tuin, airconditioning

Buitenruimte

Balkon
Nee
Schuur/berging
Nee

Maandlasten berekenen

De maandlasten voor je woning bestaan uit meer dan alleen de hypotheeklasten. Hieronder vind je een overzicht van de bijkomende kosten en lasten. Zo weet je precies wat je huis per maand gaat kosten. En met de handige vergelijkers kun je ook nog eens snel de beste deals sluiten!

  • Kaart
  • Streetview