Verkocht OV

Kasteelstraat 64 6235 BR Ulestraten

192m2
Wonen
6
Kamers
1060m2
Perceel
1972
Bouwjaar
DEZE WONING WORDT AANGEBODEN DOOR POOTERS MAKELAARDIJ
Aan de Kasteelstraat in het mooie en groene Ulestraten ligt deze verrassend ruime bungalow met een heerlijk lichte woonkamer, vijf volwaardige slaapkamers, twee badkamers en een inpandige garage. De woning ligt op een royaal perceel met een verzorgde tuin rondom. Aan de voorzijde is er parkeergelegenheid op eigen terrein. Geschikte woning voor grote gezinnen maar eventueel ook voor een gastenverblijf, kantoor of hobbyruimte in het souterrain. Dankzij de aanwezigheid van een complete woonlaag op de begane grond is de woning levensloopbestendig. De woning is altijd goed onderhouden maar enige modernisering is wenselijk.

Indeling:
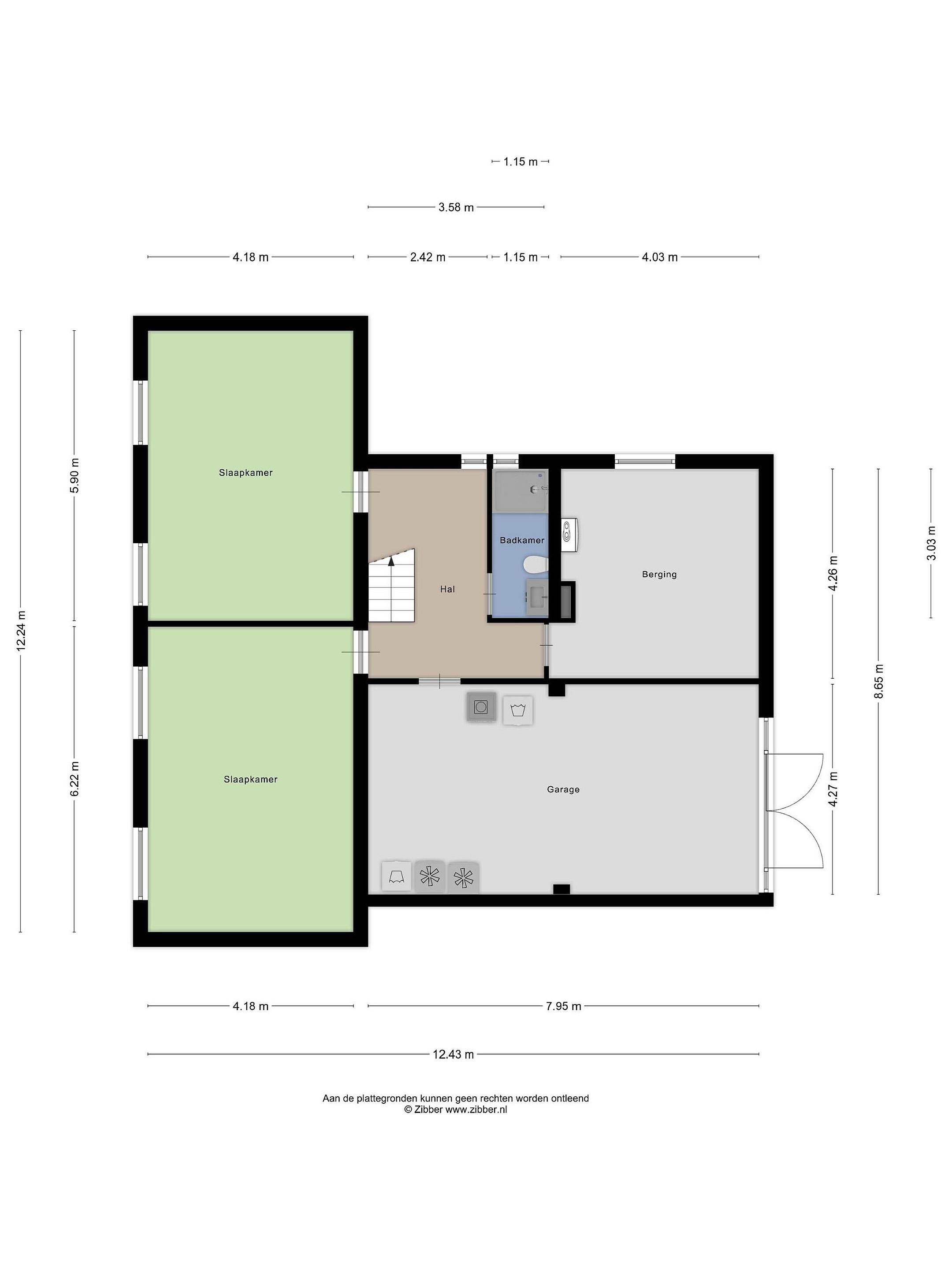
Souterrain:
Via de beuken trap vanuit de keuken betreedt men het souterrain, waar twee slaapkamers, een tweede badkamer, bergruimte en de inpandige garage zich bevinden. Slaapkamer IV(ca.26m2) met marmerenvloer, slaapkamer V(ca.25m2) van vloerbedekking voorzien en beide slaapkamers veel daglichttoetreding door de bovenlichten. De badkamer(ca.3m2), geheel betegeld, voorzien van een douche, zwevend toilet en wastafel in meubel. Naastgelegen de bergruimte(ca.17m2) met de cv-ketel. De inpandige garage(ca.34m2) met verwarming, openslaande glazen deur en tegelvloer. Hier bevinden zich de witgoedaansluitingen en er is een uitstortbak aanwezig.

Begane grond:
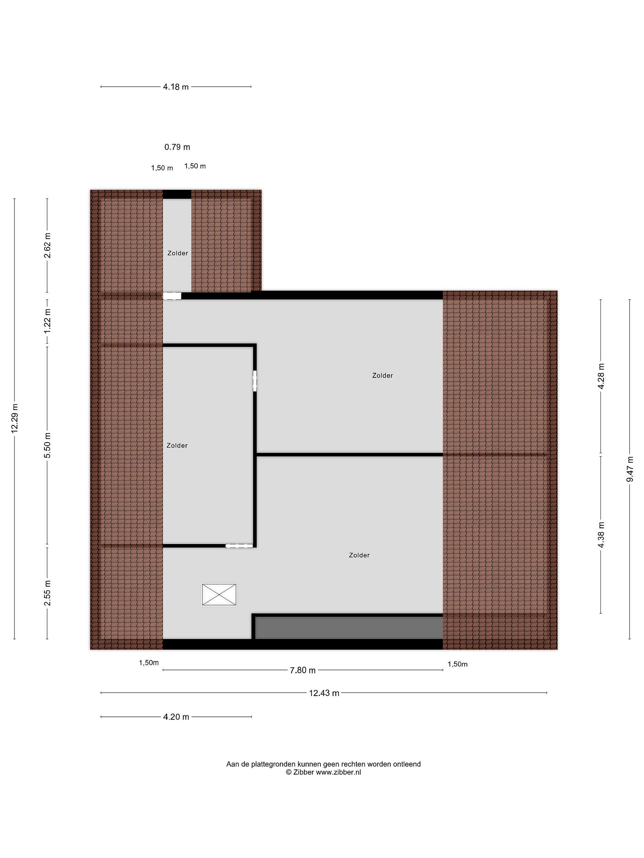
Entree, ruime hal(ca.11m2) die toegang biedt tot de verschillende vertrekken. Aan de rechterzijde bevinden zich de eetkamer en de living (ca.40m2). Het zitgedeelte ligt twee treden lager dan het eetgedeelte. Vanuit de living heeft men middels de schuifpui toegang tot de tuin. Hal, eetkamer en living met travertin tegelvloer en schrotenplafonds. In het midden van de woning bevindt zich de keuken(ca.12m2) met aan de rechterzijde keukenblok over de gehele lengte, betegelde achterwand en boven- en onderkasten met de volgende inbouwapparatuur, dubbele spoelbak, koelkast, maar separate vaatwasser. Links bevindt zich het kookgedeelte met keramische kookplaat, afzuigkap en inbouwoven. Keukenvloer is van witte tegels voorzien. Vanuit de hal links, leiden drie treden naar het slaapgedeelte hier bevinden zich drie slaapkamers, de badkamer en het separate toilet. De grootste slaapkamer I(ca.17m2) bevindt zich aan het einde van de gang met uitzicht op de achtertuin. De geheel betegelde badkamer(ca.6m2) met ligbad en douche, dubbele wastafel in meubel en dubbele spiegeltoiletkast. Slaapkamer II(ca.10m2) met ingebouwde kastenwand thans in gebruik als kantoortje. Slaapkamer III(ca.10m2) aan de voorzijde van de woning gelegen, tevens heeft men vanuit deze slaapkamer toegang tot de bergzolder. Alle drie de slaapkamers zijn van een parketvloer voorzien en een schrotenplafond.

Tuin en Terras:
De tuin rondom de woning biedt veel privacy en diverse terrassen om van de zon te genieten. De achtertuin is op het zuidoosten gelegen met een groot terras aan de achterzijde die vanuit de living en keuken bereikbaar is. Tevens zijn er twee spiksplinternieuwe grote zonneschermen met led verlichting geplaatst waar men heerlijk in de schaduw kan genieten van het buitenleven.

Extra informatie:
- Definitief energielabel B, geldig tot 04-06-2035;
- 16 zonnepanelen, eigendom, geplaatst 2022;
- Cv-ketel Intergas HRE 36/48A, eigendom, bouwjaar 2023 met onderhoudscontract;
- Kunststof kozijnen met HR++ beglazing;
- Meterkast, deels stoppenkast en deels vernieuwd in 2022i.v.m. zonnepanelen;
- Nieuwe elektrische zonneschermen aan de achterzijde van de woning;
- 2 rolluiken met Solarpanelen;
- Boeiboorden en beplating vernieuwd in 2023;
- Houten gevelbekleding voor- en achterzijde geschuurd en geschilderd in 2023/2024;

Ulestraten (Limburgs: Ulesjtraote) is een dorp in de gemeente Meerssen dat ligt in het zuiden van de Nederlandse provincie Limburg. Het dorp ligt aan de rand van het Watervalderbeekdal (zijdal van het Geuldal) en het Centraal Plateau. In het zuiden van het dorp ligt de Wijngaardsberg.

Gemeente Ulestraten
Tot de gemeentelijke herindeling in 1982 was Ulestraten een zelfstandige gemeente met daarin de woonkernen: Ulestraten dorp, Schietecoven, Humcoven, Waterval, Vliek, Genzon, Moorveld, Groot Berghem en Klein Berghem. De voormalige buurtschappen Genzon, Groot Berghem, Klein Berghem en Vliek zijn na 1980 tot de dorpskern van Ulestraten gaan behoren. In Ulestraten wonen ongeveer 2.795 mensen. In de voormalige gemeente lag ook Maastricht Aachen Airport tot aan de gemeentelijke herindeling in 1982.

Ter bescherming van de belangen van zowel koper als verkoper, wordt uitdrukkelijk gesteld dat een koopovereenkomst met betrekking tot deze onroerende zaak eerst dan tot stand komt nadat koper en verkoper de koopovereenkomst hebben getekend ("schriftelijkheidsvereiste"). De termijn die wordt opgenomen voor eventuele (overeengekomen) ontbindende voorwaarden (bv. Financiering) is in de regel 4 tot 6 weken na het sluiten van de mondelinge wilsovereenkomst.

De waarborgsom/bankgarantie is 10% van de koopsom. De koper dient deze 2 weken ná het vervallen van de ontbindende voorwaarden bij de desbetreffende notaris te deponeren.

Koper is te allen tijde gerechtigd voor eigen rekening een bouwkundige keuring te (laten) verrichten dan wel andere adviseurs te raadplegen teneinde een goed inzicht te verkrijgen over de staat van onderhoud.

Bovenstaande vrijblijvende informatie is door Pooters Makelaardij met de nodige zorgvuldigheid samengesteld. Echter aanvaardt Pooters Makelaardij geen enkele aansprakelijkheid voor enige onvolledigheid, onjuistheid of anderszins, dan wel de gevolgen daarvan. Oppervlakten en maten zijn indicatief.
Lees meer

Kenmerken

Overdracht

Prijs per m2
€ 3.307
Aangeboden sinds
17 oktober 2025
Status
Verkocht onder voorbehoud
Aanvaarding
In overleg

Bouw

Soort woonhuis
Bungalow, vrijstaande woning
Soort bouw
Bestaande bouw
Bouwjaar
1972
Soort dak
Zadeldak
Staat van onderhouden binnen
Goed
Staat van onderhouden buiten
Goed

Oppervlakte en inhoud

Perceeloppervlakte
1060 m2
Inhoud van de woning
1175 m3
Oppervlakte gebouwgebonden buitenruimten
7 m2
Oppervlakte overige inpandige ruimten
124 m2

Indeling

Aantal kamers
6
Aantal slaapkamers
5
Aantal woonlagen
3
Voorzieningen
Tuin, ventilatie, rolluiken, kabel-tv, buitenzonwering

Buitenruimte

Balkon
Nee
Schuur/berging
Nee

Maandlasten berekenen

De maandlasten voor je woning bestaan uit meer dan alleen de hypotheeklasten. Hieronder vind je een overzicht van de bijkomende kosten en lasten. Zo weet je precies wat je huis per maand gaat kosten. En met de handige vergelijkers kun je ook nog eens snel de beste deals sluiten!

  • Kaart
  • Streetview