Bergweg 19A 3911 VA Rhenen

260m2
Wonen
6
Kamers
8385m2
Perceel
1958
Bouwjaar
Vrijstaande bungalow op royaal perceel met paardenbak en prachtig uitzicht!

Te midden van een groen en glooiend landschap, aan de voet van de Bergweg en met een vrij, weids uitzicht over de landerijen, ligt deze ruime bungalow met paardenbak. Een unieke kans, want op deze bijzondere locatie – met uitzicht over de weilanden en op loopafstand van de bossen van de Utrechtse Heuvelrug – komt zelden een woning te koop.

Op een royaal perceel van circa 8.385 m2 vindt u deze vrijstaande bungalow met een royale oprijlaan, ruime tuin, paardenbak en panoramisch uitzicht over de omliggende natuur. De woning heeft een gebruiksoppervlakte wonen van ca. 254 m2 en een inhoud van circa 1.015 m3. De bungalow heeft een speels karakter, met enkele hoogteverschillen in de indeling, wat zorgt voor een levendige en ruimtelijke beleving.

De woning dient gemoderniseerd te worden, wat u als koper de unieke mogelijkheid biedt om het geheel naar eigen smaak en inzicht in te richten en af te werken.

Omgeving
De bungalow ligt aan de voet van de Bergweg, in een schilderachtig en groen buitengebied. Hier geniet u van rust, ruimte en natuur, terwijl u toch dichtbij alle voorzieningen bent.

Het historische centrum van Rhenen, met winkels, horeca en dagelijkse voorzieningen, is snel bereikbaar. Voor een uitgebreider aanbod ligt Veenendaal op slechts enkele autominuten afstand. De ligging aan de rand van de Utrechtse Heuvelrug biedt daarnaast volop mogelijkheden voor wandelen, fietsen en paardrijden in de natuur.

Indeling
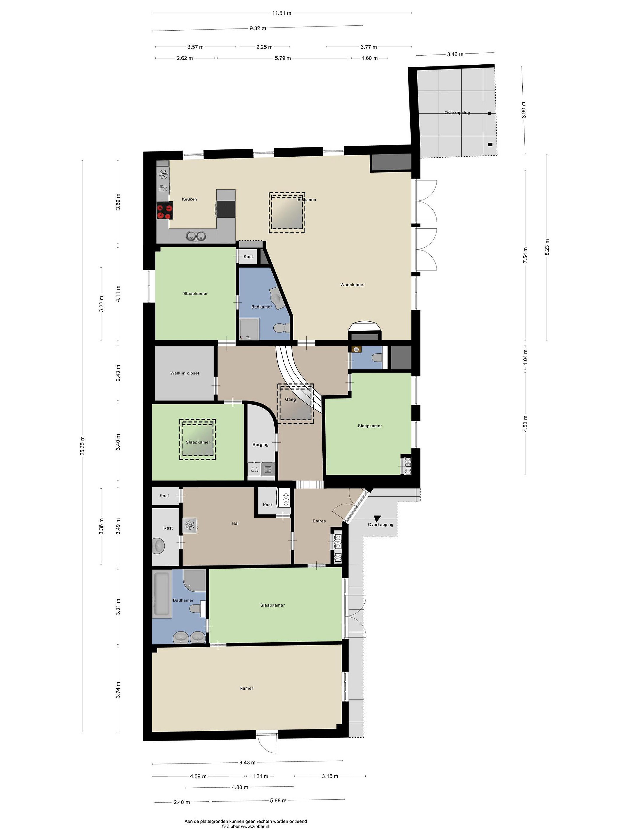
Bij binnenkomst betreedt u de woning via een royale hal die direct de ruimtelijkheid van de bungalow benadrukt. De woning heeft een speels karakter met enkele hoogteverschillen, wat zorgt voor een prettige, dynamische indeling. De royale woonkamer is bijzonder licht door de grote raampartijen die een prachtig uitzicht bieden over de paardenbak en de omliggende landerijen. Een sfeervolle gashaard vormt hier het warme middelpunt, waardoor het zowel overdag als ’s avonds heerlijk vertoeven is. De ruime woonkeuken vormt het hart van het huis en kan geheel naar eigen smaak worden gemoderniseerd, waardoor u hier een sfeervolle leefruimte kunt creëren die past bij uw persoonlijke stijl. De woning beschikt over vier royale slaapkamers en drie badkamers. Tevens is het kantoor ook te gebruiken als slaapkamer. Dankzij de praktische indeling zijn er tevens uitstekende mogelijkheden voor mantelzorg of het realiseren van een gelijkvloerse, levensloopbestendige woonopzet.

Buitenleven & Paardenliefhebbers
De woning is omringd door een grote tuin met diverse zon- en schaduwplekken, waar u volop kunt genieten van rust, privacy en het prachtige uitzicht.
Het royale perceel van circa 8.385 m2 biedt volop ruimte, rust en privacy. Op het terrein bevindt zich een paardenbak, ideaal voor de paardenliefhebber. Vanuit uw eigen erf rijdt u zo de natuur in en kunt u met uw paard direct de uitgestrekte bossen van de Utrechtse Heuvelrug verkennen. De ligging, het uitzicht en de vrijheid die dit perceel biedt, maken het buitenleven hier werkelijk uniek – een plek waar wonen en genieten van natuur en dieren perfect samenkomen.

Kavel
Het perceel van circa 8.385 m2 biedt volop mogelijkheden voor zowel renovatie als nieuwbouw.

Bestemmingsplan
Bestaande burgerwoningen zijn in principe bestemd als woning. Per bestemmingsvlak Wonen is één woning toegestaan dan wel het aangegeven aantal ter plaatse van de aanduiding ‘maximum aantal woningen’. Ter plaatse van de aanduiding ‘maximum aantal wooneenheden’ is het maximaal aangegeven aantal wooneenheden in de woning toegestaan. Uitgangspunt is een inhoudsmaat van maximaal 600 m3. Bij een woning mag maximaal 80 m2 aan aan- en uitbouwen en bijgebouwen worden gebouwd. Vele woningen in het buitengebied zijn voormalige agrarische bedrijven. Bij deze bedrijven waren veelal veel meer schuren aanwezig. Gezien het karakter van het gebied is, op de bouwkavels meer bebouwing mogelijk, het open gebied dient vrij te blijven van bebouwing. Overige bouwwerken, geen gebouwen zijnde mogen een oppervlakte van 10 m2 hebben. Ter plaatse van de aanduiding 'specifieke bouwaanduiding - voormalig agrarisch bedrijf' zijn woningen aangegeven die onder het oude bestemmingsplan nog onder de bestemming Agrarisch vielen, maar nu conform de huidige situatie een woonbestemming hebben gekregen. Het betreffen zogenoemde VABwoningen(Voormalig Agrarische Bedrijven). Nevenfuncties en functiewijzigingen zijn hier wel mogelijk conform de regeling voor agrarische bedrijven. Bestaande legale nevenactiviteiten zijn positief bestemd en opgenomen in de bijlage van de regels. Deze moeten voldoen aan de maximale oppervlaktematen en de nevenactiviteiten moeten in de (voormalige) bedrijfsgebouwen plaatsvinden. De uitoefening van een beroep- en bedrijf aan huis is tevens mogelijk. De omvang mag niet groter zijn dan 25% van de oppervlakte van de woning tot een maximum van 50 m2. Via een omgevingsvergunning voor het afwijken van de gebruiksregels is het mogelijk deze maten te vergroten tot respectievelijk 50% tot een maximum van 100 m2. Het uitoefenen van een bed en breakfast is ook mogelijk binnen de bestemming wonen. Per bouwperceel mogen vijf kamers met maximaal tien slaapplaatsen worden gerealiseerd. Parkeren dient op eigen terrein plaats te vinden en de functie mag niet tot belemmeringen voor omliggende functies leiden. Via een omgevingsvergunning kan de goothoogte van woningen worden vergroot tot maximaal 6 m, waar dit gepast is vanuit landschappelijk en stedenbouwkundig oogpunt. Ook het herbouwen van een woning op een andere locatie is middels een omgevingsvergunning mogelijk. Tevens is het onder andere mogelijk één zwembad en/of één paardenbak per bouwperceel middels een omgevingsvergunning aan te leggen.

Voor meer informatie over het bestemmingsplan kunt u het omgevingsloket raadplegen.

Algemene gegevens
- Type woning: bungalow
- Bouwjaar: 1958
- Aantal kamers: 6
- Aantal slaapkamers: 4
- Aantal badkamers: 3
- Parkeerruimte: voldoende op eigen terrein
- Aanwezig: overkapping/paardenbak/weiland/berging
- Ligging tuin: zuidoost
- Tuin bereik: achterom en via de woning

Technische gegevens
- Warmwatervoorziening: Nefit 9700i AqueaPower Plus GRC45/CW6(2024)
- Verwarmvoorziening: Nefit 9700i AquaPower Plus GRC45/CW6(2024)
- Vloerverwarming: gehele woning
- Zonnepanelen: 28 stuks
- Gashaard
- Voorzieningen: airco
- Mechanische ventilatie: aanwezig
- Isolatie: dak/spouw(deels)
- Dubbel glas: geheel
- Glasvezel kabel, TV kabel
- Kozijnen: hout/kunststof

Er is een vergunning verleend voor de paardenrijbak zoals deze er nu ligt, ook is er een vergunning verleend voor de lichtpalen en het plaatsen van een hekwerk.

WILT U EVEN BINNEN KIJKEN?

Voor meer informatie omtrent deze woning, kunt u contact opnemen met ons kantoor in Rhenen.

U bent van harte welkom! De beste indruk van deze woning krijgt u natuurlijk tijdens een bezichtiging. Wij proberen onze bezichtigingen altijd in samenspraak met verkoper en koper te plannen en nemen ruim de tijd, zodat u op uw gemak de woning kan bekijken en ervaren.
N.B. Aan de samenstelling van deze gegevens is maximale zorg besteed. Aan onvolkomenheden in de vermelde gegevens en tekeningen kunnen geen rechten en aanspraken worden ontleend.
Lees meer

Kenmerken

Overdracht

Prijs per m2
€ 6.519
Aangeboden sinds
6 november 2025
Status
Beschikbaar
Aanvaarding
In overleg

Bouw

Soort woonhuis
Bungalow, vrijstaande woning
Soort bouw
Bestaande bouw
Bouwjaar
1958
Soort dak
Plat dak
Staat van onderhouden binnen
Goed
Staat van onderhouden buiten
Redelijk

Oppervlakte en inhoud

Perceeloppervlakte
8385 m2
Inhoud van de woning
1015 m3
Oppervlakte externe bergruimte
68 m2
Oppervlakte gebouwgebonden buitenruimten
5 m2

Indeling

Aantal kamers
6
Aantal slaapkamers
4
Aantal woonlagen
1
Voorzieningen
Tuin, schuur/berging, ventilatie, glasvezel, airconditioning, dakraam

Buitenruimte

Balkon
Nee
Schuur/berging
Ja

Maandlasten berekenen

De maandlasten voor je woning bestaan uit meer dan alleen de hypotheeklasten. Hieronder vind je een overzicht van de bijkomende kosten en lasten. Zo weet je precies wat je huis per maand gaat kosten. En met de handige vergelijkers kun je ook nog eens snel de beste deals sluiten!

  • Kaart
  • Streetview