Domeinenweg 4 3881 RL Putten

176m2
Wonen
5
Kamers
7350m2
Perceel
1964
Bouwjaar
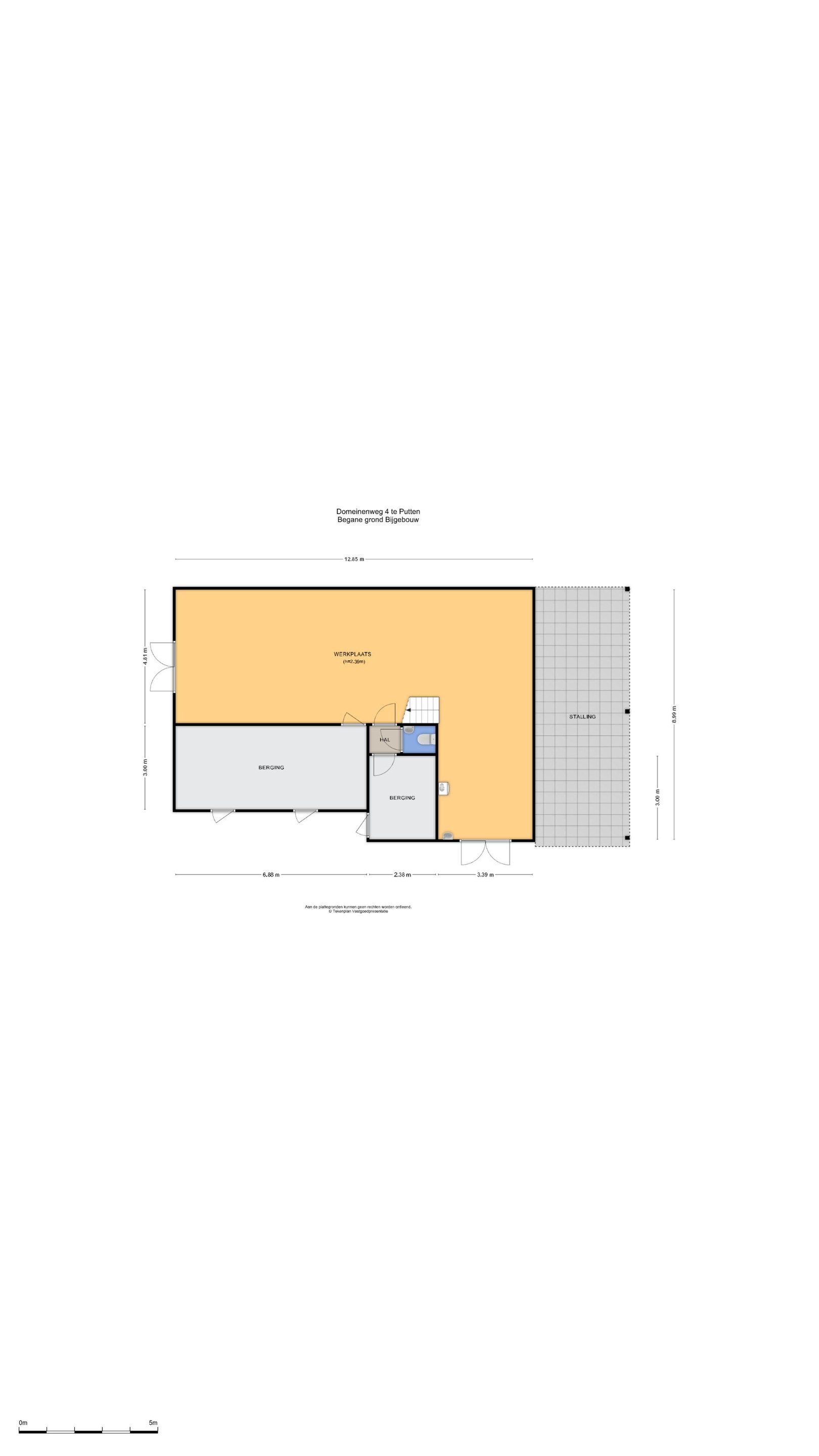
De perfecte locatie! Aan de rand van het uitgestrekte bosgebied van Putten ligt deze unieke vrijstaande BUNGALOW op een royaal perceel van 7.350 m2. Hier geniet je van rust, natuur én ruimte – zowel binnen als buiten. Met een woonoppervlakte van maar liefst 176 m2, een slaapkamer en een badkamer op de begane grond, een aangebouwde veranda en een multifunctioneel bijgebouw van 145 m2 met onder andere twee paardenstallen, is dit een plek die perfect is voor liefhebbers van het buitenleven, dieren of gewoon royaal en uniek wonen.

De rit naar de woning toe is eigenlijk al tot rust komen, kijkend over de weilanden en het binnenrijden van het prachtige bosgebied wat onze Veluwe te bieden heeft. Het is niet eenzaam wonen want er zijn verschillende vrijstaande woningen rondom de woning gesitueerd, maar eenmaal op het perceel ervaar je echt rust en totale privacy. Via een elektrische poort komen we via een lange oprit op het fijn bestrate binnenterrein. Dit is eigenlijk meteen de centrale plek van het perceel want de woning en het bijgebouw zijn enigszins midden op het perceel gesitueerd.

De woning zelf zal je verrassen qua ruimte. En hoe heerlijk dat je vanuit elk raam wel uitzicht hebt op groen en natuur. Het gehele woonprogramma is op de begane grond aanwezig. We komen binnen via een achter portaal. Dan, meteen links is er een ruime berging waar ook de cv-installatie is gesitueerd. De uitgebouwde ruimte met de lagere kap is de gehele woonkamer en keukenruimte. Wat een fijne sfeervolle living met grote raampartijen, openslaande deuren naar de aangebouwde veranda en een geweldige houtkachel; mee te draaien naar de plek waar je lekker gaat vertoeven. Eigenlijk hoef je geen schilderij op te hangen, want je uitzicht door de raamopeningen zijn stuk voor stuk stillevens.
Op de begane grond is er een ruime ouderslaapkamer, een kleedkamer, een 2e slaapkamer en een ruime badkamer aanwezig. Ook is er toegang naar een fijne kelderruimte.
De verdieping is voorzien van nog 2 fijne slaapkamers, een ruime badkamer en bergruimte.

De buitenruimte is wel echt de eyecatcher van het geheel. Een prachtig aangelegde tuin, een groot weiland, een mooi bijgebouw voor verschillende doeleinden te gebruiken en ook nog een heel charmant kippenhok. Hier moet je echt even ronddwalen om de sfeer te proeven. Alles is hier mogelijk waar je van droomt! Het echte buitenleven.
Een boswandeling of een bosrit te paard; hier kan je er dagelijks van genieten want je woont in principe in het bos. Hier ga je alle jaargetijden bewust meemaken en echt genieten van elk seizoen. Ben jij op zoek naar zo’n droom? Je bent van harte welkom een te komen kijken?
Lees meer

Kenmerken

Overdracht

Prijs per m2
€ 7.358
Aangeboden sinds
22 oktober 2025
Status
Beschikbaar
Aanvaarding
In overleg

Bouw

Soort woonhuis
Bungalow, vrijstaande woning
Soort bouw
Bestaande bouw
Bouwjaar
1964
Soort dak
Zadeldak
Staat van onderhouden binnen
Goed
Staat van onderhouden buiten
Goed

Oppervlakte en inhoud

Perceeloppervlakte
7350 m2
Inhoud van de woning
722 m3
Oppervlakte externe bergruimte
145 m2
Oppervlakte gebouwgebonden buitenruimten
20 m2
Oppervlakte overige inpandige ruimten
17 m2

Indeling

Aantal kamers
5
Aantal slaapkamers
4
Aantal woonlagen
4
Voorzieningen
Tuin, schuur/berging, rookkanaal

Buitenruimte

Balkon
Nee
Schuur/berging
Ja

Maandlasten berekenen

De maandlasten voor je woning bestaan uit meer dan alleen de hypotheeklasten. Hieronder vind je een overzicht van de bijkomende kosten en lasten. Zo weet je precies wat je huis per maand gaat kosten. En met de handige vergelijkers kun je ook nog eens snel de beste deals sluiten!

  • Kaart
  • Streetview