Opperbos 19 1447 TN Purmerend

98m2
Wonen
3
Kamers
248m2
Perceel
1988
Bouwjaar
Kapbungalow in 't Groenewoudt (Purmer Zuid) aan water gelegen, een geweldige buitenkans!
Zeer geschikt voor klein gezin of senioren die gelijkvloers willen wonen maar een tuin niet willen missen. Zij die ook nog een garage wensen en willen parkeren in eigen voortuin hoeven niet verder te zoeken want dit aanbod is zeldzaam en van dit type zijn er destijds dan ook maar slechts een viertal gebouwd.
Begane grond
Entree/hal, tuingerichte L-vormige woonkamer met trapkast en toegang tot terras, half open hoekkeuken aan straatzijde met enige inbouwapparatuur. Tussenhal met toilet, betegelde badkamer met ligbad en vaste wastafel, slaapkamer aan de tuinzijde en binnendoor toegang inpandige berging alsmede voormalige garage.

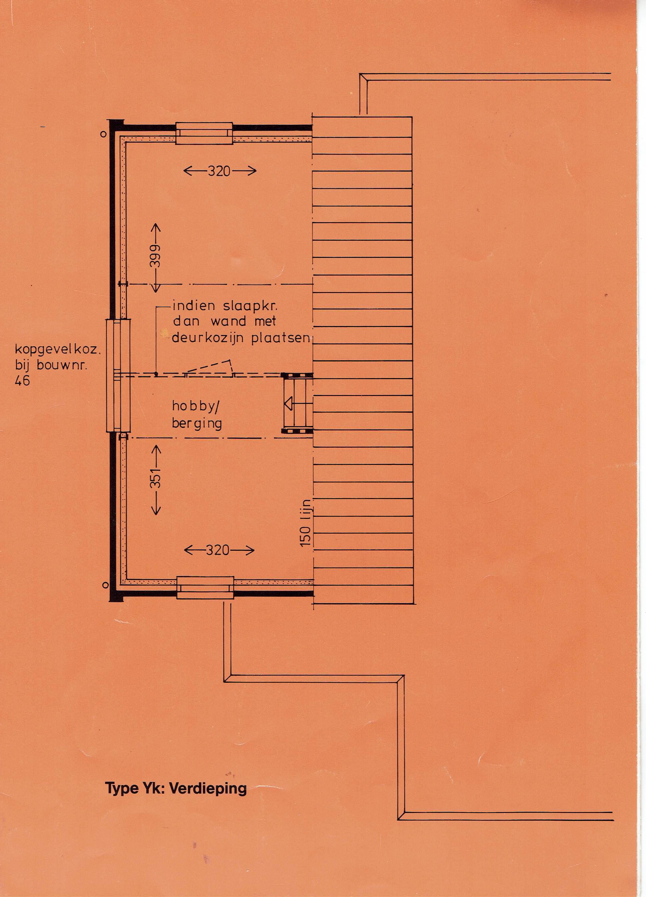
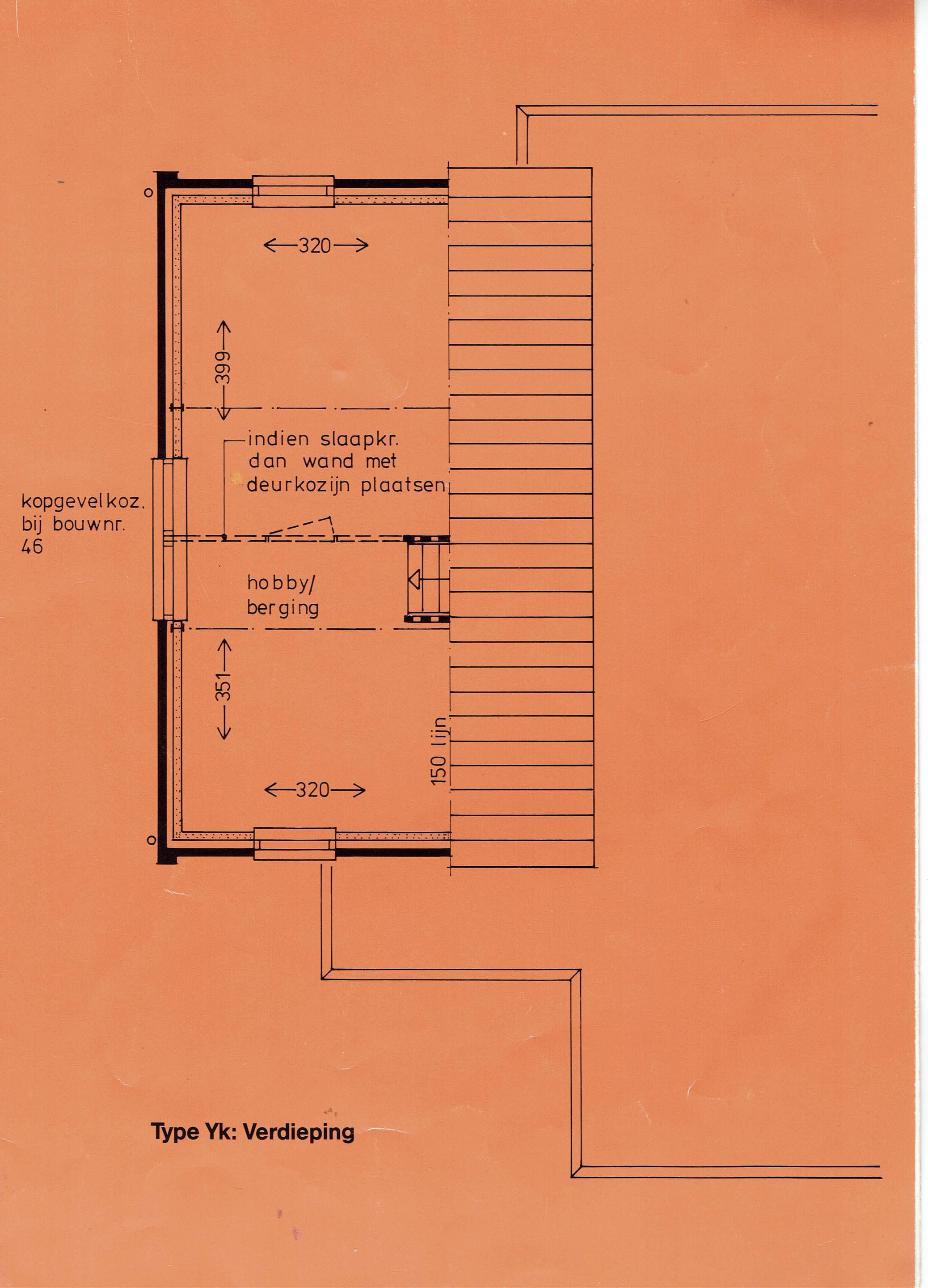
Eerste verdieping
Grote open multifunctionele kapverdieping met hoge nok en mogelijkheid tot realisatie van tweetal slaapkamers met veel bergruimte achter knieschotten of op mogelijke vliering.

Tuin
De voortuin mét parkeermogelijkheid is lommerrijk evenals de achtertuin welke aan brede waterpartij gesitueerd is. Lekker varen of vissen in alle rust behoort hier dus tot de mogelijkheid.

Details
-Gesitueerd op mooie kavel van 248m2 afgekochte erfpacht aan water!
-Parkeren in eigen voortuin
-Inpandige garage
-Slaapkamer en badkamer op begane grond
-Ruime multifunctionele kapverdieping
-Toepassing laminaat vloeren
-Energielabel B
-Op loopafstand van Purmerbos, park De Driegang en winkelcentrum Meerland
-Aanvaarding kan desgewenst spoedig

Lees meer

Kenmerken

Overdracht

Prijs per m2
€ 5.459
Aangeboden sinds
4 september 2025
Status
Beschikbaar
Aanvaarding
In overleg

Bouw

Soort woonhuis
Bungalow, half vrijstaande woning, semi bungalow
Soort bouw
Bestaande bouw
Bouwjaar
1988
Soort dak
Zadeldak
Staat van onderhouden binnen
Redelijk
Staat van onderhouden buiten
Redelijk

Oppervlakte en inhoud

Perceeloppervlakte
248 m2
Inhoud van de woning
400 m3
Oppervlakte externe bergruimte
6 m2

Indeling

Aantal kamers
3
Aantal slaapkamers
2
Aantal woonlagen
2
Voorzieningen
Tuin, schuur/berging, ventilatie, glasvezel, buitenzonwering, dakraam

Buitenruimte

Balkon
Nee
Schuur/berging
Ja

Maandlasten berekenen

De maandlasten voor je woning bestaan uit meer dan alleen de hypotheeklasten. Hieronder vind je een overzicht van de bijkomende kosten en lasten. Zo weet je precies wat je huis per maand gaat kosten. En met de handige vergelijkers kun je ook nog eens snel de beste deals sluiten!

  • Kaart
  • Streetview