Verkocht OV

Mariniersweg 3 3255 VE Oude-Tonge

171m2
Wonen
4
Kamers
1139m2
Perceel
1975
Bouwjaar
Stap binnen in deze unieke bungalow, gelegen op een perceel van maar liefst 1.139 m2. Met een gebruiksoppervlakte wonen van 171,6 m2, een inpandige garage en een ruim souterrain van in totaal 105,1 m2, biedt dit huis alle ruimte en comfort die je zoekt. De woning combineert een praktische indeling met een fraaie tuin rondom, waar rust, privacy en groen centraal staan.

Wonen in Oude-Tonge – natuur, water en strand binnen handbereik

Oude-Tonge is een levendig dorp op Goeree-Overflakkee met alle dagelijkse voorzieningen binnen handbereik: supermarkten, scholen, sportverenigingen en horeca. De ligging is bovendien ideaal voor liefhebbers van natuur en water. Binnen enkele minuten bereik je het Haringvliet, perfect voor watersport en natuurwandelingen. Ook de Grevelingendam ligt om de hoek, waar je kunt genieten van zeilen, kitesurfen of ontspannen aan het water. En voor een dagje zee en duinen rijd je in circa 20 minuten naar het bruisende strand van Ouddorp, één van de mooiste Noordzeestranden van Nederland.

Dankzij de centrale ligging ben je daarnaast binnen een half uur in Rotterdam, waardoor je landelijke rust perfect combineert met de dynamiek van de stad.

Een woning met mogelijkheden, ruimte én karakter, in een omgeving waar water, natuur en stad samenkomen. Plan vandaag nog een bezichtiging en ontdek Mariniersweg 3 zelf!
Begane grond
Royale entreehal met toegang tot de woonkamer en keuken.

Gezellige woonkamer met veel lichtinval en directe verbinding naar het terras.

Ruime woonkeuken, praktisch ingedeeld en voorzien van inbouwapparatuur.

Bijkeuken met extra bergruimte en aansluiting voor witgoed.

Drie volwaardige slaapkamers, allen met een fijne maatvoering.

Badkamer voorzien van ligbad, douche, wastafel en toilet.

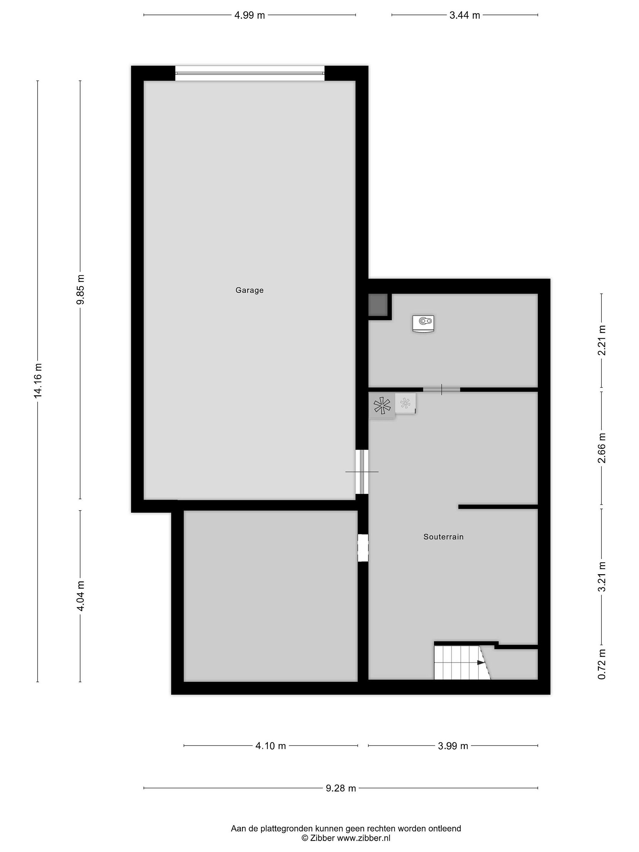
Souterrain & garage

Inpandige garage (ca. 44 m2), bereikbaar via de oprit en binnendoor.

Souterrain met diverse multifunctionele ruimtes, ideaal als werkruimte, hobbyruimte of extra bergruimte.

Tuin
De tuin rondom is fraai aangelegd en biedt altijd een zonnige plek. Aan de achterzijde grenst de woning aan een ruim terras, perfect voor lange zomeravonden. Het royale perceel van 1.069 m2 geeft volop mogelijkheden voor tuinliefhebbers of het creëren van een speelplek.

Details
Vrijstaande bungalow (bouwjaar 2001)

Woonoppervlakte: ca. 171,6 m2

Overige inpandige ruimte (garage + souterrain): ca. 105,1 m2

Perceeloppervlakte: 1.139 m2

Drie slaapkamers op de begane grond

Garage en souterrain, multifunctioneel in te zetten

Fraai aangelegde tuin rondom, ligging op het zuidwesten

Lees meer

Kenmerken

Overdracht

Prijs per m2
€ 4.225
Aangeboden sinds
11 september 2025
Status
Verkocht onder voorbehoud
Aanvaarding
Direct

Bouw

Soort woonhuis
Bungalow, vrijstaande woning
Soort bouw
Bestaande bouw
Bouwjaar
1975
Soort dak
Plat dak
Staat van onderhouden binnen
Uitstekend
Staat van onderhouden buiten
Uitstekend

Oppervlakte en inhoud

Perceeloppervlakte
1139 m2
Inhoud van de woning
1026 m3
Oppervlakte gebouwgebonden buitenruimten
191 m2
Oppervlakte overige inpandige ruimten
105 m2

Indeling

Aantal kamers
4
Aantal slaapkamers
3
Aantal woonlagen
2
Voorzieningen
Tuin, kabel-tv, glasvezel, rookkanaal

Buitenruimte

Balkon
Nee
Schuur/berging
Nee

Maandlasten berekenen

De maandlasten voor je woning bestaan uit meer dan alleen de hypotheeklasten. Hieronder vind je een overzicht van de bijkomende kosten en lasten. Zo weet je precies wat je huis per maand gaat kosten. En met de handige vergelijkers kun je ook nog eens snel de beste deals sluiten!

  • Kaart
  • Streetview