Verkocht

Muurdijk 7 6852 HH Huissen

103m2
Wonen
3
Kamers
213m2
Perceel
1977
Bouwjaar
Levensloopbestendig wonen in het hart van geliefd Huissen.

In een rustige, groene en geliefde woonwijk van het gezellige stadje Huissen ligt deze onder architectuur gebouwde levensloopbestendige hoekbungalow. Een huis waar comfort, rust en gemak samenkomen — perfect voor wie graag gelijkvloers wil wonen, maar wel met de ruimte en vrijheid van een zelfstandige woning.

Comfortabel wonen

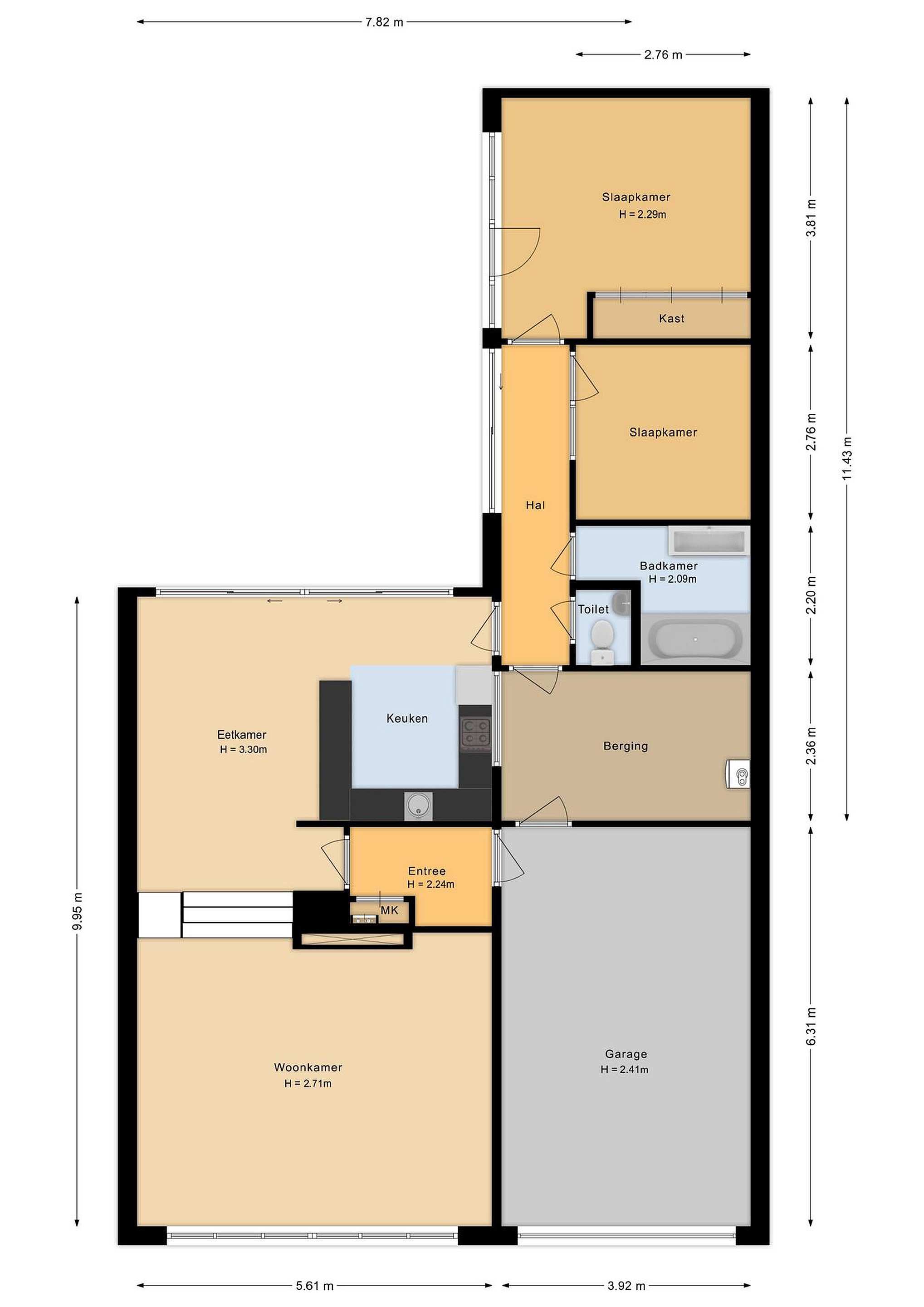
Bij binnenkomst valt direct de ruime, iets verdiept liggende woonkamer op. De grote aluminium schuifpuien aan de achterzijde en de grote ramen aan de voorzijde zorgen voor een prachtige lichtinval en bieden uitzicht op de besloten achtertuin en de straat aan de voorzijde. Hier geniet je van optimale privacy en rust. De ruime keuken is praktisch ingericht en vormt een prettig geheel met de woonkamer. De woning beschikt verder over een badkamer met ligbad en een wastafelmeubel, een separaat toilet en twee slaapkamers, waarvan één met een royale vaste kast met schuifdeuren.
Vanuit zowel de hal als de keuken is de achtertuin te bereiken — een plek waar je op elk moment van de dag heerlijk kunt genieten van de zon of juist de schaduw kunt opzoeken.
De aangebouwde garage met automatische garagedeur biedt directe toegang tot de woning, zodat je altijd droog kunt uitstappen. De woning is voorzien van onderhoudsarme aluminium kozijnen en heeft een energielabel C.

Een ideale ligging

De woning is gelegen in een zeer geliefde bungalowwijk, die bekendstaat om haar rustige karakter, volwassen groen en prettige woonsfeer. Vanuit de woning wandel je zo naar het nabijgelegen park voor een ontspannen ommetje, en ook het winkelcentrum met supermarkten, winkels en voorzieningen ligt op een steenworp afstand.

Het historische centrum van Huissen ligt vlakbij: een charmant en levendig dorpshart met gezellige cafés, goede restaurants en boetiekjes. Huissen maakt deel uit van de gemeente Lingewaard en is ideaal gelegen tussen Arnhem en Nijmegen. Binnen tien minuten rijd je naar het centrum van Arnhem en via de nabijgelegen uitvalswegen zijn ook andere steden in de regio uitstekend bereikbaar.
Daarnaast biedt de omgeving volop natuur en recreatiemogelijkheden. De uiterwaarden van de Rijn en het Lingegebied liggen om de hoek, perfect voor een wandeling, fietstocht of een middag in de natuur. Ook het openbaar vervoer is op loopafstand bereikbaar, wat deze locatie nog aantrekkelijker maakt.

Samengevat

Deze woning combineert comfortabel, gelijkvloers wonen met een gunstige ligging ten opzichte van winkels, natuur en stad. De fijne indeling, onderhoudsarme afwerking en rustige ligging maken dit huis tot een bijzonder aantrekkelijke keuze voor wie zorgeloos wil wonen — nu en in de toekomst.

Koopovereenkomst:
Bij de verkoop wordt de standaard VBO koopovereenkomst gehanteerd. Indien nodig zal er een clausule worden opgenomen waaruit blijkt dat de verkoper niet de bewoner van de woning is geweest. Bij woningen welke ouder zijn dan 20 jaar, worden de asbestclausule en de ouderdomsclausule standaard opgenomen;

De bovengenoemde informatie hebben wij met de grootste zorg en de nodige zorgvuldigheid samengesteld. Onzerzijds wordt er echter geen enkele aansprakelijkheid aanvaard voor enige onvolledigheid, onjuistheid, omissie of anderszins, alsook voor de eventuele gevolgen daarvan. Alle opgegeven maten zijn zorgvuldig en professioneel opgenomen, maar wel indicatief.

Wanneer u geinteresseerd bent in deze woning, dan kunt u zich aanmelden via de site www.blinqmakelaars.nl of Funda.nl.

Bij vragen kunt u telefonisch contact opnemen met ons kantoor met telefoonnummer 026-7114555.
Lees meer

Verkoopgeschiedenis

Aangeboden sinds
22 oktober 2025
Verkoopdatum
7 januari 2026
Looptijd
3 maanden

Kenmerken

Overdracht

Prijs per m2
€ 4.364
Aangeboden sinds
22 oktober 2025
Status
Verkocht
Aanvaarding
In overleg

Bouw

Soort woonhuis
Bungalow, hoek woning
Soort bouw
Bestaande bouw
Bouwjaar
1977
Soort dak
Plat dak
Staat van onderhouden binnen
Goed
Staat van onderhouden buiten
Goed

Oppervlakte en inhoud

Perceeloppervlakte
213 m2
Inhoud van de woning
485 m3
Oppervlakte overige inpandige ruimten
25 m2

Indeling

Aantal kamers
3
Aantal slaapkamers
2
Aantal woonlagen
1
Voorzieningen
Tuin, ventilatie, schuifpui

Buitenruimte

Balkon
Nee
Schuur/berging
Nee

Maandlasten berekenen

De maandlasten voor je woning bestaan uit meer dan alleen de hypotheeklasten. Hieronder vind je een overzicht van de bijkomende kosten en lasten. Zo weet je precies wat je huis per maand gaat kosten. En met de handige vergelijkers kun je ook nog eens snel de beste deals sluiten!

  • Kaart
  • Streetview