Westkreek 50 7325 NC Apeldoorn

110m2
Wonen
4
Kamers
253m2
Perceel
1994
Bouwjaar
Westkreek 50 – Apeldoorn

Gelegen in de rustige en kindvriendelijke wijk Het Woudhuis in Apeldoorn-Oost vindt u deze ruime halfvrijstaande bungalow met garage, drie slaapkamers en een zonnige patio.
De woning is levensloopbestendig opgezet, volledig gelijkvloers en biedt volop mogelijkheden om geheel naar eigen smaak te moderniseren. Dankzij het doordachte ontwerp is de woning zowel uitstekend geschikt voor gezinnen als voor ouderen die comfortabel en gelijkvloers willen wonen.

Indeling:
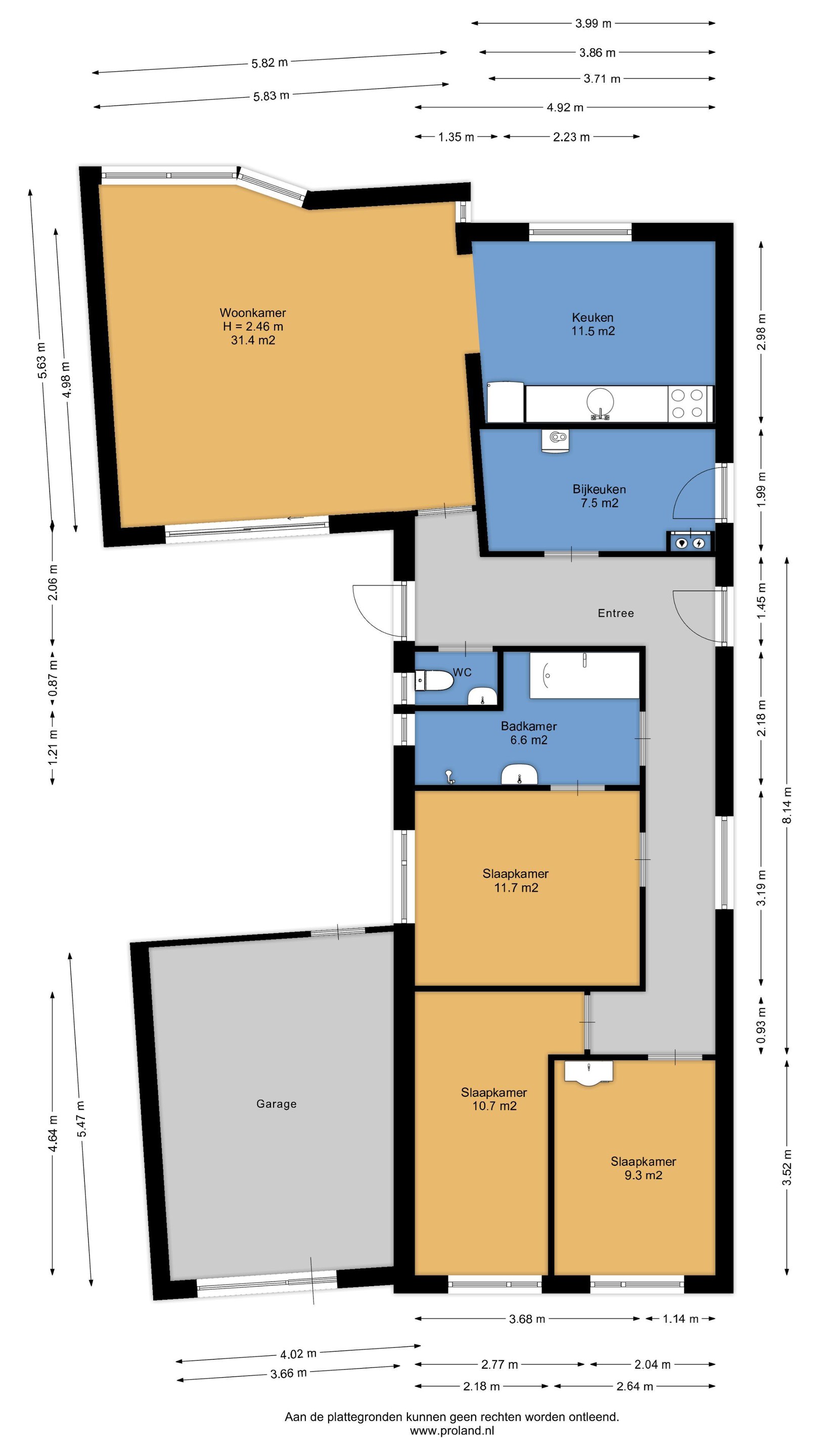
U komt binnen in de hal, die toegang biedt tot de lichte woonkamer, drie slaapkamers, de badkamer, het separate toilet en de inpandige berging.

De woonkamer is ruim van opzet en heeft een heerlijk lichte uitstraling dankzij de grote raampartijen en het hoge plafond. Aan de voorzijde kijkt u vrij uit over een groenstrook met waterpartij, terwijl u aan de achterzijde via een schuifpui direct toegang heeft tot de beschutte patio.

De halfopen keuken grenst aan de woonkamer en is voorzien van een inbouwoven en gaskookplaat.

De woning beschikt over drie ruime slaapkamers, waarvan de hoofdslaapkamer directe toegang heeft tot de badkamer. De badkamer is uitgerust met een ligbad, inloopdouche en wastafel. Het toilet bevindt zich separaat.

Locatie:
De woning ligt in de rustige en kindvriendelijke wijk Het Woudhuis, op korte fietsafstand van winkelcentrum ’t Fort, dat is voorzien van onder andere twee supermarkten, een drogist, bakker, slager en cafetaria. Nabij het winkelcentrum ligt tevens het treinstation Osseveld, en ook uitvalswegen en verder openbaar vervoer zijn goed bereikbaar.

Pluspunten:

-Grote garage voorzien van elektra

-Drie ruime slaapkamers

-Vrij uitzicht aan de voorzijde

-Gelijkvloerse indeling, geschikt voor ouderen of mindervaliden

-Ideaal voor zowel gezinnen als senioren

-Vrij parkeren in de straat

-Nabij winkelcentrum en station

Vraagprijs: € 500.000,- k.k.
Aanvaarding: In overleg

Interesse?
Bel 055 – 760 1777 of mail apeldoorn@iqmakelaars.nl

Wij plannen graag een bezichtiging voor u in!
Lees meer

Kenmerken

Overdracht

Prijs per m2
€ 4.537
Aangeboden sinds
23 oktober 2025
Status
Beschikbaar
Aanvaarding
In overleg

Bouw

Soort woonhuis
Bungalow, half vrijstaande woning, patiowoning
Soort bouw
Bestaande bouw
Bouwjaar
1994
Soort dak
Lessenaarsdak
Staat van onderhouden binnen
Redelijk
Staat van onderhouden buiten
Redelijk

Oppervlakte en inhoud

Perceeloppervlakte
253 m2
Inhoud van de woning
532 m3
Oppervlakte overige inpandige ruimten
21 m2

Indeling

Aantal kamers
4
Aantal slaapkamers
3
Aantal woonlagen
1
Voorzieningen
Tuin, ventilatie, rolluiken, kabel-tv, glasvezel, buitenzonwering, schuifpui

Buitenruimte

Balkon
Nee
Schuur/berging
Nee

Maandlasten berekenen

De maandlasten voor je woning bestaan uit meer dan alleen de hypotheeklasten. Hieronder vind je een overzicht van de bijkomende kosten en lasten. Zo weet je precies wat je huis per maand gaat kosten. En met de handige vergelijkers kun je ook nog eens snel de beste deals sluiten!

  • Kaart
  • Streetview