Kanaalweg 4525 NA Retranchement

0m2
Wonen
0
Kamers
2275m2
Perceel
Bouwjaar
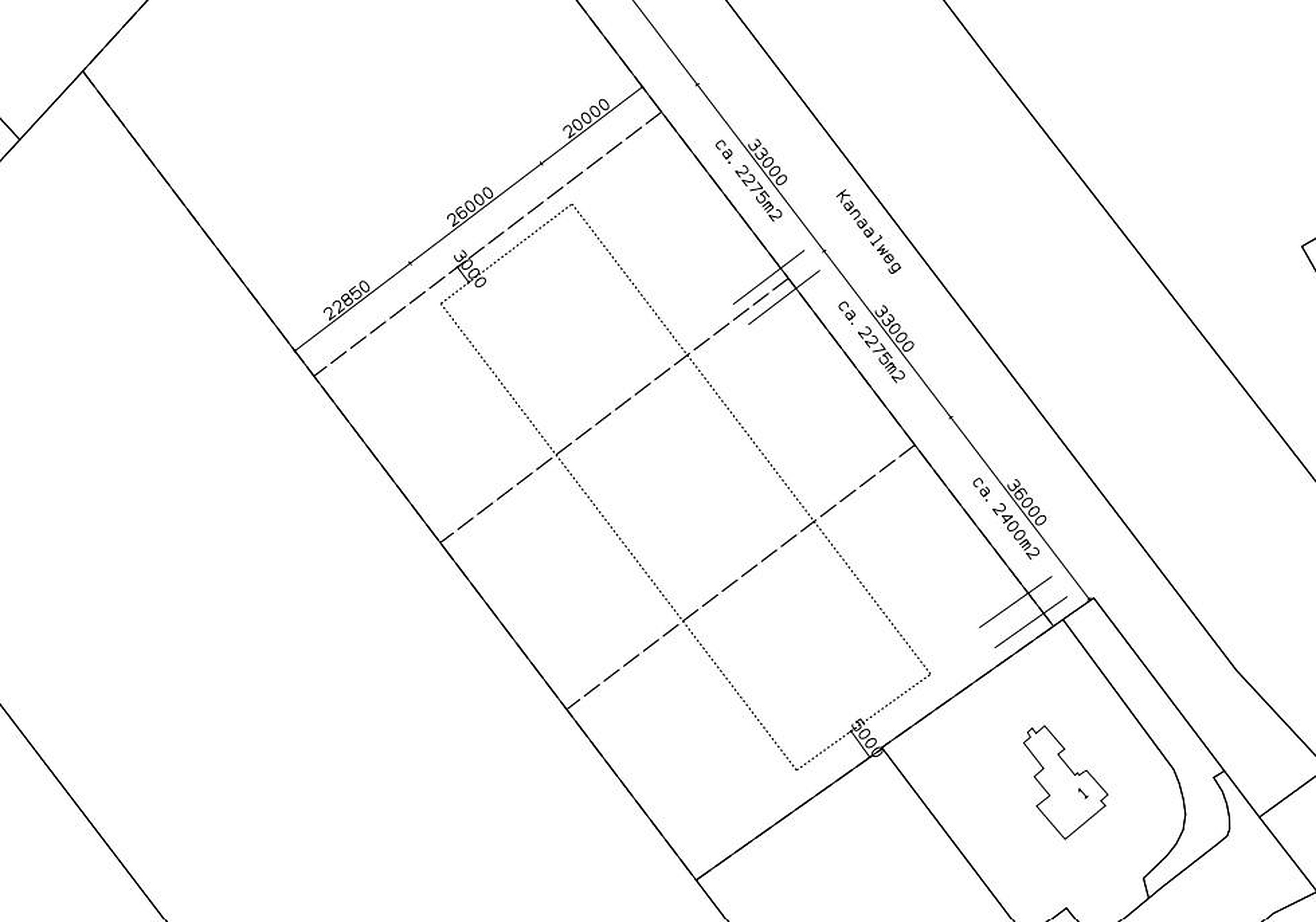
Unieke Kans: 3 excellente bouwkavels zonder bouwverplichting beschikbaar NOG 1 BESCHIKBAAR

Gelegen aan de schilderachtige Kanaalweg in Retranchement, bieden wij twee exclusieve bouwkavels te koop aan. Deze kavels zijn perfect voor diegenen die op zoek zijn naar rust, ruimte en een directe verbinding met de natuur.

Zowel permanente als ook recreatieve bewoning mogelijk.
Prijzen zijn exclusief BTW en vrij op naam.

Hieronder vindt u de details van de beschikbare kavels:

Kavelbeschrijvingen:

- Middelste Kavel

Afmeting kavel: ca 2275 m2

Bebouwingsmogelijkheden:
Maximale inhoud woning: 1.000 m3
Goothoogte: 4,5 meter
Totale maximale hoogte: 10 meter
Bijgebouw: maximaal 90 m2, goothoogte van 3,5 meter, totale hoogte van 8 meter

Bijzonderheden:
Instandhoudingsverplichting voor aangelegde bomen en struiken conform landschappelijk inrichtingsplan
Erfafscheidingen gemarkeerd met rode paaltjes
Bouwvlakken gemarkeerd met gele paaltjes

Bijzonderheden:
Instandhoudingsverplichting voor aangelegde bomen en struiken conform landschappelijk inrichtingsplan
Erfafscheidingen gemarkeerd met rode paaltjes
Bouwvlakken gemarkeerd met gele paaltjes
Landschappelijke Inpassing
De kavels zijn gelegen in een prachtig aangelegd natuurgebied dat niet openbaar toegankelijk is, maar wel zorgt voor een serene en natuurlijke omgeving. Het landschappelijke inrichtingsplan voorziet in diverse natuurlijke elementen zoals:

Rijen knotwilgen aan de westzijde, markeren de overgang naar het agrarische landschap. Deze worden vooraf aangeplant.
Natuurlijke poelen verbonden door een laagte, bieden een dynamisch en seizoensgebonden landschap.
Bramenstruiken aan de noordzijde van de poelen, ideaal voor de boomkikker.
Kleine groepjes bomen bieden schaduw- en schuilplekken voor vogels en andere kleine dieren.
De landschappelijke elementen zijn zorgvuldig gekozen om het gebied visueel aantrekkelijk en ecologisch waardevol te maken, met seizoensgebonden dynamiek die zorgt voor een levendig en afwisselend landschap.

Contactinformatie
Voor meer informatie of een bezichtiging van deze unieke kavels, neem contact op met ons kantoor. Dit is uw kans om te bouwen in een van de meest pittoreske en serene omgevingen van Retranchement.

Deze kavels bieden een zeldzame combinatie van landelijke rust en moderne voorzieningen, ideaal voor natuurliefhebbers en diegenen die op zoek zijn naar een hoogwaardige woonlocatie. Mis deze unieke kans niet!
Lees meer

Kenmerken

Overdracht

Aangeboden sinds
25 juli 2024
Status
Beschikbaar
Aanvaarding
Direct

Bouw

Soort bouw
Bestaande bouw
Bouwjaar
Staat van onderhouden binnen
Uitstekend
Staat van onderhouden buiten
Uitstekend

Oppervlakte en inhoud

Indeling

Aantal kamers
0
Aantal slaapkamers
0
Aantal woonlagen
0
Voorzieningen

Buitenruimte

Balkon
Nee
Schuur/berging
Nee

Maandlasten berekenen

De maandlasten voor je woning bestaan uit meer dan alleen de hypotheeklasten. Hieronder vind je een overzicht van de bijkomende kosten en lasten. Zo weet je precies wat je huis per maand gaat kosten. En met de handige vergelijkers kun je ook nog eens snel de beste deals sluiten!

  • Kaart
  • Streetview