Vlietberg 8A 6576 JB Ooij

0m2
Wonen
0
Kamers
2847m2
Perceel
Bouwjaar
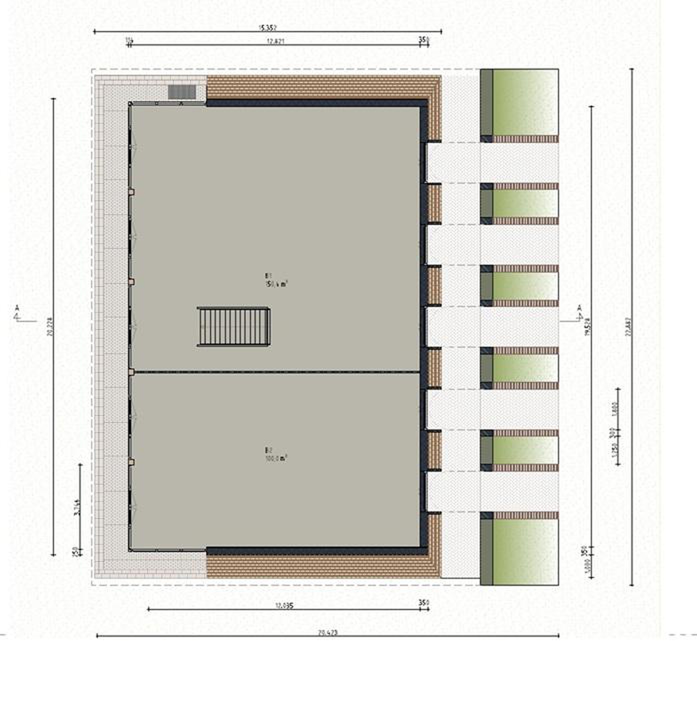
De Vlietberg 8A: Exclusieve Bouwkavel met Goedgekeurd Ontwerp (ca. 600 m2 bruto vloeroppervlakte) op de Vlietberg bij Nijmegen.

Aangeboden wordt een exclusieve bouwkavel op een uitzonderlijke locatie in de Vlietberg bij Nijmegen, op slechts enkele minuten van Nijmegen. Deze kavel biedt een zeldzame kans om een royaal, vrijstaand object te realiseren van ruim 600 m2, gebaseerd op een reeds door de welstandscommissie goedgekeurd architectonisch ontwerp.

Het Goedgekeurde Ontwerp
Voor deze kavel is een volledig uitgewerkt en positief beoordeeld ontwerp beschikbaar voor een gebouw met een bruto vloeroppervlakte (BVO) van circa 600 m2, verdeeld over twee bouwlagen. Het ontwerp is zorgvuldig afgestemd op de landschappelijke omgeving en vormt een concreet vertrekpunt om de ontwikkeling direct op te starten. Het doorlopen van de ontwerpfase en de goedkeuring door de welstandscommissie vertegenwoordigen een aanzienlijke meerwaarde in tijd en kosten.

Bestemming en Mogelijkheden
De huidige bestemming voorziet in een bijeenkomstfunctie. Binnen dit kader biedt de kavel ruimte voor uiteenlopende invullingen. Een nieuwe eigenaar kan in overleg met de gemeente Berg en Dal onderzoeken welke aanvullende functies op termijn mogelijk zijn. De perceelgrootte en de reeds beschikbare ontwerpuitgangspunten maken dit object bijzonder interessant voor uiteenlopende visies en initiatieven.
Extra potentieel
Aan het begin van de Vlietberg is nog circa 1.300 m2 beschikbaar dat in de toekomst kan worden ingericht als parkeervoorziening. Een gedeelte hiervan zou – onder voorwaarden – exclusief toe te kennen zijn aan Vlietberg 8 en 8A. Dit zou de gebruiksmogelijkheden van deze kavels verder versterken.
Verdere informatie is ook te verkrijgen op Vlietbergbeheer.

Combinatiemogelijkheid met Vlietberg 8
Naast Vlietberg 8A wordt ook bouwperceel Vlietberg 8 aangeboden waarop een hoogwaardige vrijstaande woning gerealiseerd kan worden. Voor beide percelen zijn reeds uitgewerkte ontwerpen beschikbaar die door de welstandscommissie zijn goedgekeurd. Gezamenlijke verwerving van beide kavels creëert een unieke propositie voor kopers die wonen en werken of meerdere functies op één toplocatie willen combineren.

Kerngegevens
Type aanbod: bouwkavel
Locatie: Vlietberg 8A, 6576 JB Ooij
Perceeloppervlakte: circa 2840 m2
Percelen: 179 (915 m2), 787 en 785
Goedgekeurd ontwerp: ja, ca. 600 m2 BVO verdeeld over twee lagen
Bestemming: bijeenkomstfunctie
Aanvaarding: in overleg

:"De vermelde informatie is met zorg samengesteld, maar uitsluitend bedoeld ter indicatie. Aan maten, tekeningen, impressies, prijzen en beschikbaarheid kunnen geen rechten worden ontleend. Wijzigingen en typefouten voorbehouden. Gunning voorbehouden"
Vlietberg 8a: perceel is 2840 m2 (nu staat er 964m2, optelsom kavel 787 en 179, maar kavel 785 met 1885 m2 hoort er ook bij.)

Lees meer

Kenmerken

Overdracht

Prijs per m2
€ ∞
Aangeboden sinds
16 september 2025
Status
Beschikbaar
Aanvaarding
In overleg

Bouw

Soort bouw
Bestaande bouw
Bouwjaar
Staat van onderhouden binnen
Uitstekend
Staat van onderhouden buiten
Uitstekend

Oppervlakte en inhoud

Indeling

Aantal kamers
0
Aantal slaapkamers
0
Aantal woonlagen
0
Voorzieningen

Buitenruimte

Balkon
Nee
Schuur/berging
Nee

Maandlasten berekenen

De maandlasten voor je woning bestaan uit meer dan alleen de hypotheeklasten. Hieronder vind je een overzicht van de bijkomende kosten en lasten. Zo weet je precies wat je huis per maand gaat kosten. En met de handige vergelijkers kun je ook nog eens snel de beste deals sluiten!

  • Kaart
  • Streetview