Stuyvesantstraat 375 2593 GL 's-Gravenhage

118m2
Wonen
4
Kamers
0m2
Perceel
1931
Bouwjaar
Volledig en stijlvol gerenoveerde dubbele bovenwoning van 118 m2 verdeeld over drie woonlagen. Beschikt over drie ruime slaapkamers, een riante woonkamer met opstelplaats voor een open keuken van in totaal 45 m2. Dit pareltje is gelegen in het Haagse Bezuidenhout met winkelstraat Theresiastraat en het Haagse Bos in de directe nabijheid. Het appartement beschikt over een zonnig terras op het oosten.


Redenen voor het kopen van dit appartement op een rijtje:
1.) Eigentijds en volledig gerenoveerd.
2.) Keuken aansluitpunten (elektra, aan -en afvoer water) voor kookeiland zijn aanwezig.
3.) Aantrekkelijk energielabel B.
4.) Beschikt over een riant dakterras met fraai uitzicht.
5.) Heeft drie ruime slaapkamers.
6.) Nabij uitvalsweg naar de Randstad, openbaar vervoer opstappunten (o.m. Centraal Station) en andere stedelijke voorzieningen.


INDELING:

Begane grond: Via de gemeenschappelijke Haagse portiektrap ga je naar de eerste etage.

Eerste etage: Voordeur met hal, meterkast en trap naar de tweede etage.

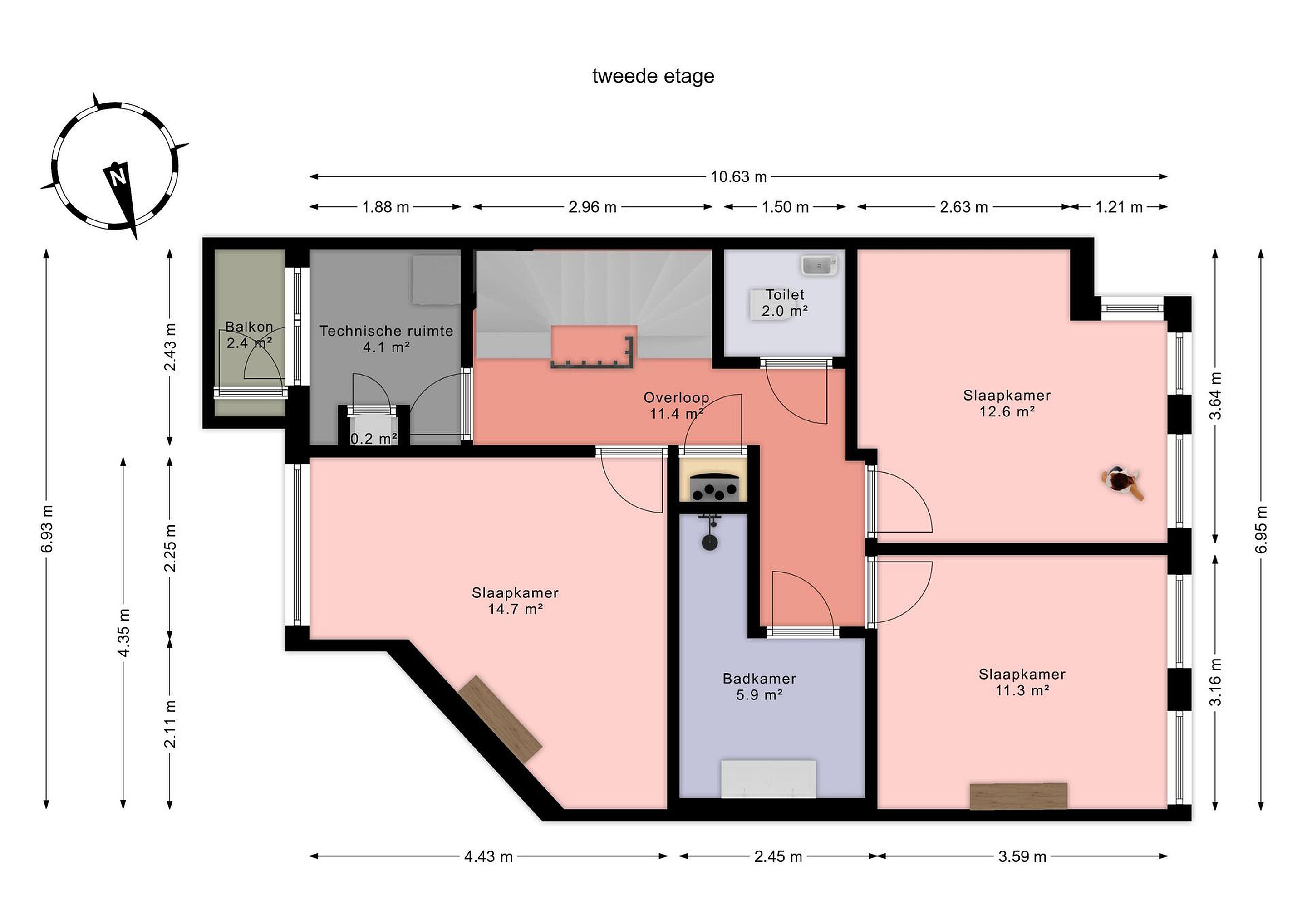
Tweede etage: Je arriveert op de overloop die toegang biedt tot drie ruime slaapkamers van respectievelijk 15 m2, 13 m2 en 11 m2, alsmede een badkamer van 6 m2 voorzien van inloopdouche, wastafel en handdoekradiator. Verder bevinden zich aan deze overloop een separate toiletruimte, een waskamer met wasmachineaansluiting, opstelplaats van de c.v.-ketel en met toegang tot een achterbalkon van 2,4 m2. Aan de overloop bevindt zich ook een kast met opstelplaats voor de mechanische ventilatie. Met de trap ga je naar de derde etage.

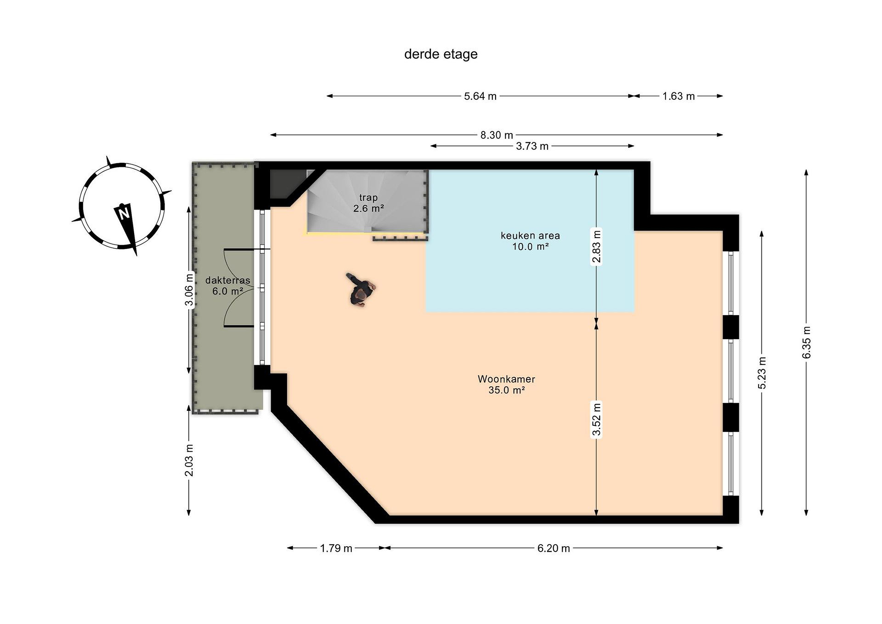
Derde etage: Deze in 2025 nieuw aangelegde woonlaag van 45 m2 beschikt over een riante woonkamer met aansluitpunten voor het zelf plaatsen van een luxe open keuken met een kookeiland. Vanuit de woonkamer is er toegang tot het ruime dakterras van 6 m2 op het oosten met fraai uitzicht. Alle ramen op deze etage zijn voorzien van HR++ glas met draaikiepramen.

Voor een goede indruk van de maatvoering en de situering van deze ruimtes ten opzichte van elkaar, verwijzen we je graag naar de in deze presentatie getoonde 2D en 3D -plattegronden alsmede de Virtual Reality presentatie.



BIJZONDERHEDEN:

* Gelegen op eigen grond.
* Actieve VvE met een maandelijkse bijdrage van €75,00. De VvE beschikt over reserves, jaarrekening, notulen en een gemeenschappelijke opstalverzekering.
* Elektra: Beschikt over een moderne schakelkast voorzien van 12 groepen en 3 aardlekschakelaars.
* Verwarming: De woning wordt verwarmd met combi-ketel van het merk Intergas.
* Isolatie: De muren zijn goed (na)-geïsoleerd in 2025. Het nieuwe dak uit 2025 is ook uitstekend geïsoleerd met PIR. De ramen op de derde etage zijn van het type HR++.
* De eigenaar heeft het appartement niet zelf bewoond, derhalve wordt er een 'niet zelf bewoningsclausule' opgenomen in de koopakte. Er is ook geen Vragenlijst beschikbaar.
* Het appartement wordt 'as-is' opgeleverd, daarom wordt er geen lijst van zaken opgesteld.
* Oplevering: in overleg en kan snel.

BEZICHTIGINGEN:

Kortom, deze woning is zeker de moeite waard om te bezichtigen. Maakt u hiervoor een afspraak met de makelaar. Voor iedere afspraak wordt 30 minuten ingepland, zodat je de persoonlijke aandacht krijgt die je verdient.
Lees meer

Kenmerken

Overdracht

Prijs per m2
€ 5.000
Aangeboden sinds
29 januari 2026
Status
Beschikbaar
Aanvaarding
In overleg

Bouw

Soort appartement
Portiekwoning, dubbel bovenhuis
Soort bouw
Bestaande bouw
Bouwjaar
1931
Soort dak
Plat dak
Staat van onderhouden binnen
Uitstekend
Staat van onderhouden buiten
Goed

Oppervlakte en inhoud

Inhoud van de woning
417 m3
Oppervlakte gebouwgebonden buitenruimten
8 m2

Indeling

Aantal kamers
4
Aantal slaapkamers
3
Aantal woonlagen
3
Voorzieningen
Balkon, ventilatie

Buitenruimte

Balkon
Ja
Schuur/berging
Nee

Maandlasten berekenen

De maandlasten voor je woning bestaan uit meer dan alleen de hypotheeklasten. Hieronder vind je een overzicht van de bijkomende kosten en lasten. Zo weet je precies wat je huis per maand gaat kosten. En met de handige vergelijkers kun je ook nog eens snel de beste deals sluiten!

  • Kaart
  • Streetview