Schalk Burgerstraat 441 2572 TD 's-Gravenhage

74m2
Wonen
3
Kamers
0m2
Perceel
1925
Bouwjaar
OPEN HUIS OP DINSDAG 09 JANUARI VAN 15.00 TOT 16.00

Let op kluswoning zonder CV!

Op de hoek van Schalkburgerstraat en de Durbanstraat gelegen 3-kamer hoekappartement.
De ligging is bijzonder gunstig. Deze woning bevindt zich op fietsafstand van het bruisende centrum van Den Haag en op loopafstand van diverse winkels, waaronder supermarkten en de Haagse markt. Daarnaast is de bereikbaarheid uitstekend, met de dichtstbijzijnde uitvalsweg op slechts 7 minuten rijden. Ook het openbaar vervoer is op loopafstand te vinden. De wijk is een levendige en kindvriendelijke buurt met relatief veel jonge gezinnen. Je vindt hier diverse scholen, speeltuinen en groenvoorzieningen. Dankzij de centrale ligging geniet je van een goede mix van stadse faciliteiten en een rustige woonomgeving.

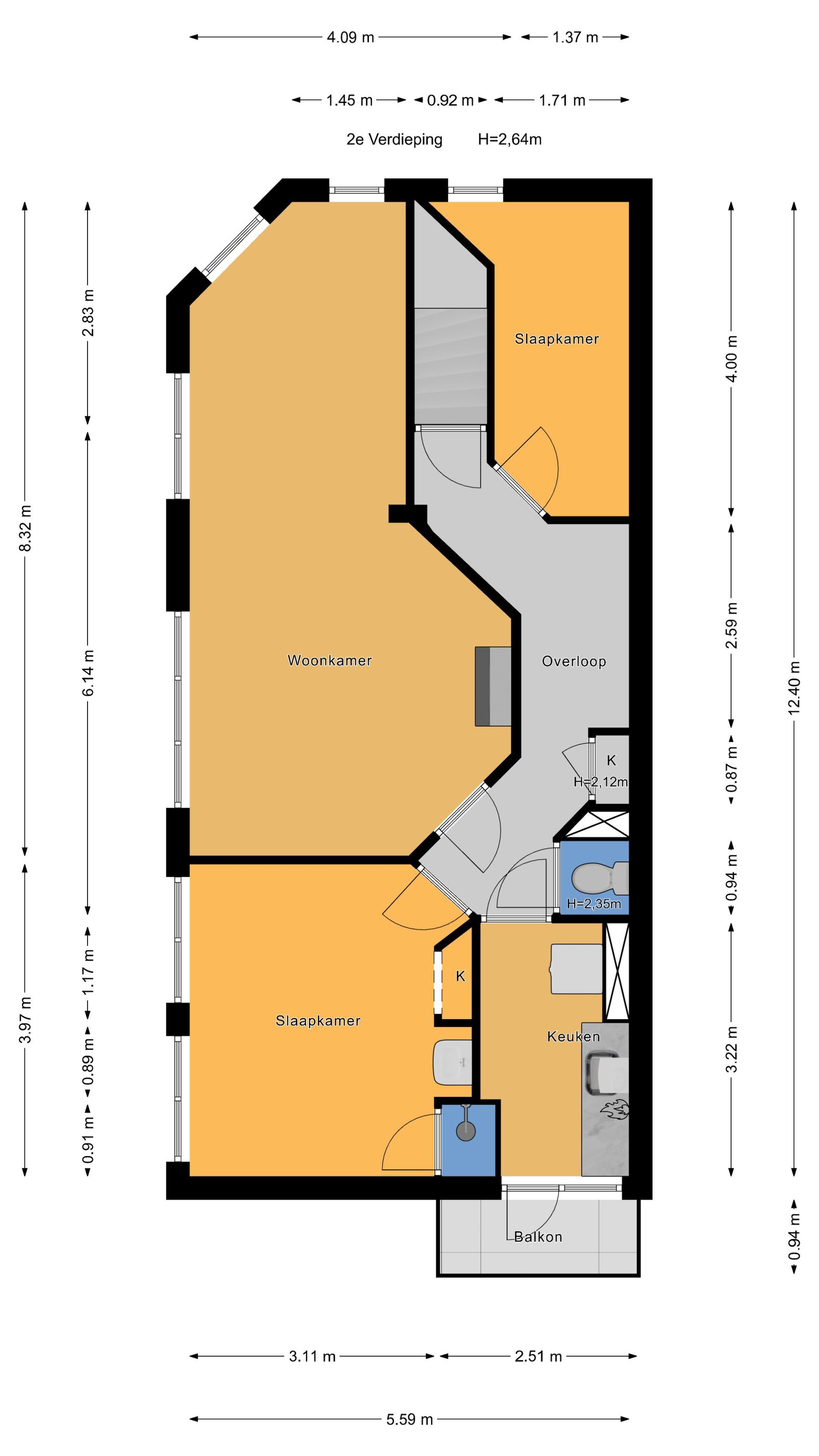
Indeling
Open portiek met trap naar de eerste verdieping. Entree van het appartement met binnentrap naar de tweede verdieping.

De ruime hal geeft toegang tot alle vertrekken.

De lichte woonkamer heeft door de hoekligging grote raampartijen, wat zorgt voor een prettige, open sfeer. Aan de voorzijde is de eerste slaapkamer te vinden en aan de achterzijde de tweede slaapkamer. De achterste slaapkamer beschikt over een wastafel en douche.

De keuken is eenvoudig, maar ruim en heeft toegang tot het achterbalkon.

Bijzonderheden:
- VVE is recent opgericht conform de regels;
- VVE bijdrage € 100,80 per maand;
- Beheerder is Van Driel;
- Energielabel C;
- Volledig dubbel glas;
- Verwarming middels gaskachel. GEEN CV!
- Eeuwigdurend recht van erfpacht; De grondwaarde is € 3.309,00 en de canon bedraagt per halfjaar achteraf € 14,89 + € 16,50 beheerkosten;
- De eerstvolgende canonherziening vindt plaats op 1-1-2027;
- Verkoopvoorwaarden den Braber & Ram;
- Oplevering voorkeur direct;
Lees meer

Kenmerken

Overdracht

Prijs per m2
€ 2.838
Aangeboden sinds
4 december 2025
Status
Beschikbaar
Aanvaarding
In overleg

Bouw

Soort appartement
Portiekwoning, appartement
Soort bouw
Bestaande bouw
Bouwjaar
1925
Soort dak
Plat dak
Staat van onderhouden binnen
Redelijk
Staat van onderhouden buiten
Goed

Oppervlakte en inhoud

Inhoud van de woning
248 m3
Oppervlakte gebouwgebonden buitenruimten
2 m2

Indeling

Aantal kamers
3
Aantal slaapkamers
2
Aantal woonlagen
1
Voorzieningen
Balkon

Buitenruimte

Balkon
Ja
Schuur/berging
Nee

Maandlasten berekenen

De maandlasten voor je woning bestaan uit meer dan alleen de hypotheeklasten. Hieronder vind je een overzicht van de bijkomende kosten en lasten. Zo weet je precies wat je huis per maand gaat kosten. En met de handige vergelijkers kun je ook nog eens snel de beste deals sluiten!

  • Kaart
  • Streetview