Oudemansstraat 81 2522 SE 's-Gravenhage

60m2
Wonen
3
Kamers
0m2
Perceel
1933
Bouwjaar
Koper-/klussers opgelet!

Bent u handig, creatief en niet bang om de handen uit de mouwen te steken? Droomt u ervan een woning volledig naar eigen smaak en stijl te moderniseren? Dan is Oudemansstraat 81 in Den Haag een unieke kans.
Dit charmante 3-kamer appartement op de eerste verdieping wacht op een nieuwe eigenaar die er weer iets moois van maakt. Een woning met karakter, potentie én een aantrekkelijke vraagprijs.

Gelegen in het levendige Laakkwartier, vindt u hier een centrale locatie met winkels, openbaar vervoer, uitvalswegen en het centrum van Den Haag op korte afstand.
Begane grond
Via de open portiek bereikt u de entree van de woning op de eerste verdieping.

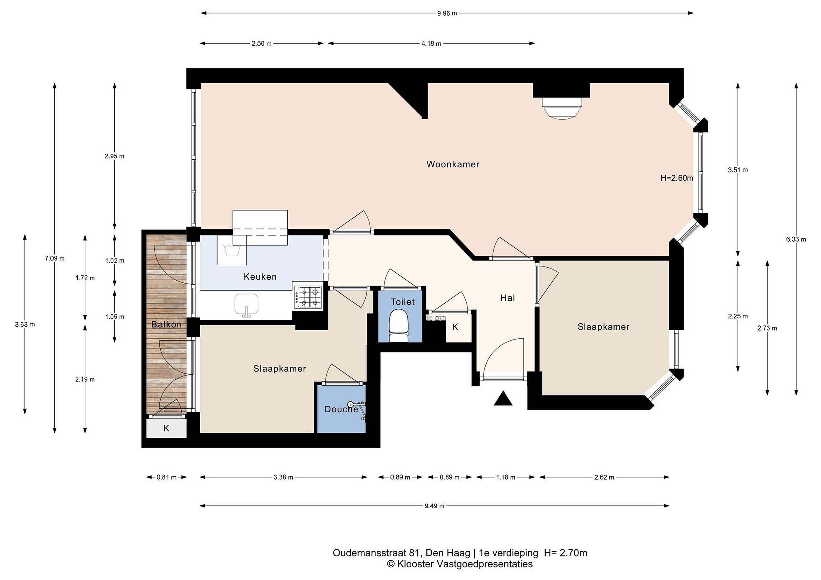
Entree woning, hal v.v. meterkast en separaat toilet. De woonkamer is ruim opgezet en geniet van veel natuurlijk licht. Authentieke details, zoals het prachtige glas-in-lood, zijn behouden gebleven en geven de woning direct sfeer en karakter. De keuken is basic doch netjes uitgevoerd en voorzien van 4-pits gaskookplaat, afzuigkap en wasmachineaansluiting

Vanuit de keuken heeft u toegang tot het balkon aan de achterzijde. Tevens is er een gezellige barverbinding tussen de woonkamer en de keuken, wat zorgt voor een speelse en open uitstraling.

Aan de achterzijde bevindt zich de ruime hoofdslaapkamer, voorzien van een douchegedeelte met mechanische ventilatie. Aan de voorzijde treft u de tweede slaapkamer - ideaal als werk-, kinder- of logeerkamer.

Kortom een woning welke om aandacht vraagt maar absoluut potentie heeft!

Details
- Type woning: Appartement (1e etage)
- Woonoppervlak: ca. 61 m2
- Bouwjaar: 1933
- Gelegen op eigen grond
- Actieve VvE, bijdrage € 150,- per maand (achterzijde wordt momenteel geschilderd)
- Verwarming middels gaskachels
- De woning dient gerenoveerd te worden
- Ouderdoms- en materialenclausule van toepassing
- Gelegen in beschermd stadsgezicht
- Oplevering in overleg

Een kans voor de handige koper
Bent u op zoek naar een betaalbare woning met karakter én toekomstwaarde? Dan is dit appartement absoluut een bezichtiging waard.
Neem contact op en ontdek zelf de mogelijkheden van Oudemansstraat 81.
Wie ziet hier zijn of haar droomproject?

Lees meer

Kenmerken

Overdracht

Prijs per m2
€ 3.300
Aangeboden sinds
2 maart 2026
Status
Beschikbaar
Aanvaarding
In overleg

Bouw

Soort appartement
Portiekwoning, appartement
Soort bouw
Bestaande bouw
Bouwjaar
1933
Staat van onderhouden binnen
Redelijk
Staat van onderhouden buiten
Goed

Oppervlakte en inhoud

Inhoud van de woning
205 m3
Oppervlakte gebouwgebonden buitenruimten
3 m2
Oppervlakte overige inpandige ruimten
0 m2

Indeling

Aantal kamers
3
Aantal slaapkamers
2
Aantal woonlagen
1
Voorzieningen
Balkon

Buitenruimte

Balkon
Ja
Schuur/berging
Nee

Maandlasten berekenen

De maandlasten voor je woning bestaan uit meer dan alleen de hypotheeklasten. Hieronder vind je een overzicht van de bijkomende kosten en lasten. Zo weet je precies wat je huis per maand gaat kosten. En met de handige vergelijkers kun je ook nog eens snel de beste deals sluiten!

  • Kaart
  • Streetview