Hoefkade 1264 2525 HK 's-Gravenhage

79m2
Wonen
3
Kamers
0m2
Perceel
1935
Bouwjaar
Ideale woning voor starters.

Keurig onderhouden (voormalige 4-kamer) appartement tegen over Haagse Markt op de tweede verdieping. Volledig voorzien van dubbelle beglazing, Erfpacht eeuwig durend afgekocht.

Goed om te weten:
-----------------------------
-Bouwjaar 1935
-Energielabel C
-PWV uitgevoerd in 2020
-Inwendig volledig verbouwd
-Woonoppervlakte 79m2
-Erfpacht is eeuwigdurend afgekocht
-Volledig dubbelglas
-Verwarming en warm water via CV-combiketel
-VVE actief
-Achterbalkon in volle breedte
-Oplevering in overleg
-Gelegen nabij alle voorzieningen, scholen, Haagse Markt en het OV
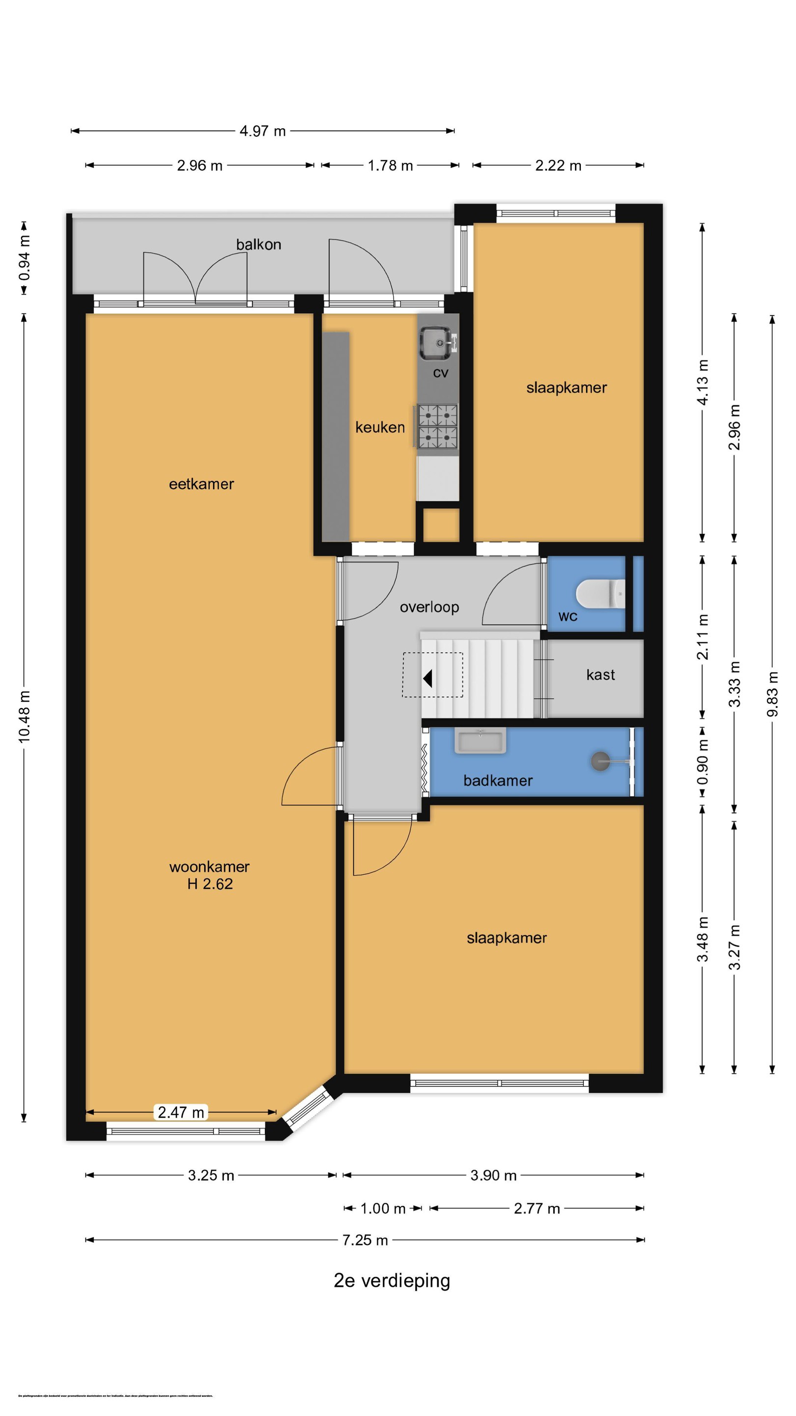
Begane grond
Haagse open portiek: entree appartement hal, meterkast, binnen trap tweede verdieping, overloop, badkamer, slaapkamer aan de voorzijde (3.90 x 3.48) riante woonkamer (10.48 x 3.25) toegang tot balkon. Slaapkamer aan de achterzijde (4.13 x 2.22) Keuken aan de achterzijde gestudeerd voorzien van alle inbouw apparatuur.

Lees meer

Kenmerken

Overdracht

Prijs per m2
€ 3.532
Aangeboden sinds
7 oktober 2025
Status
Beschikbaar
Aanvaarding
In overleg

Bouw

Soort appartement
Portiekwoning, appartement
Soort bouw
Bestaande bouw
Bouwjaar
1935
Soort dak
Plat dak
Staat van onderhouden binnen
Uitstekend
Staat van onderhouden buiten
Goed

Oppervlakte en inhoud

Inhoud van de woning
258 m3
Oppervlakte gebouwgebonden buitenruimten
5 m2

Indeling

Aantal kamers
3
Aantal slaapkamers
2
Aantal woonlagen
1
Voorzieningen
Balkon

Buitenruimte

Balkon
Ja
Schuur/berging
Nee

Maandlasten berekenen

De maandlasten voor je woning bestaan uit meer dan alleen de hypotheeklasten. Hieronder vind je een overzicht van de bijkomende kosten en lasten. Zo weet je precies wat je huis per maand gaat kosten. En met de handige vergelijkers kun je ook nog eens snel de beste deals sluiten!

  • Kaart
  • Streetview