Daltonstraat 23 2561 SP 's-Gravenhage

73m2
Wonen
4
Kamers
0m2
Perceel
1911
Bouwjaar
Bent u een handige starter op zoek naar een woning met potentie? Dan is dit appartement zeker het bekijken waard. De woning biedt een uitstekende kans om uw eigen thuis te realiseren in een populaire wijk van Den Haag. Met drie slaapkamers, een ruime woon-/eetkamer en een balkon aan de achterzijde beschikt het appartement over een prima basis die u geheel naar eigen smaak kunt moderniseren en afwerken.

Het appartement heeft energielabel D, wat mogelijkheden biedt om de woning verder te verduurzamen. De woonkamer is momenteel ingedeeld met een extra slaapkamer aan de achterzijde, welke desgewenst ook getransformeerd kan worden naar eetkamer.

Locatie:
Aantrekkelijke ligging in een rustige buurt met scholen, kinderdagverblijven, supermarkten, stadsdeelkantoor, bibliotheek, recreatievoorzieningen, winkels en de populaire winkelstraten: Fahrenheitstraat en Weimarstraat op loopafstand. Ook bent u binnen 10 minuten fietsen in het centrum van Den Haag. Openbaar vervoer voorzieningen liggen ook op loopafstand.

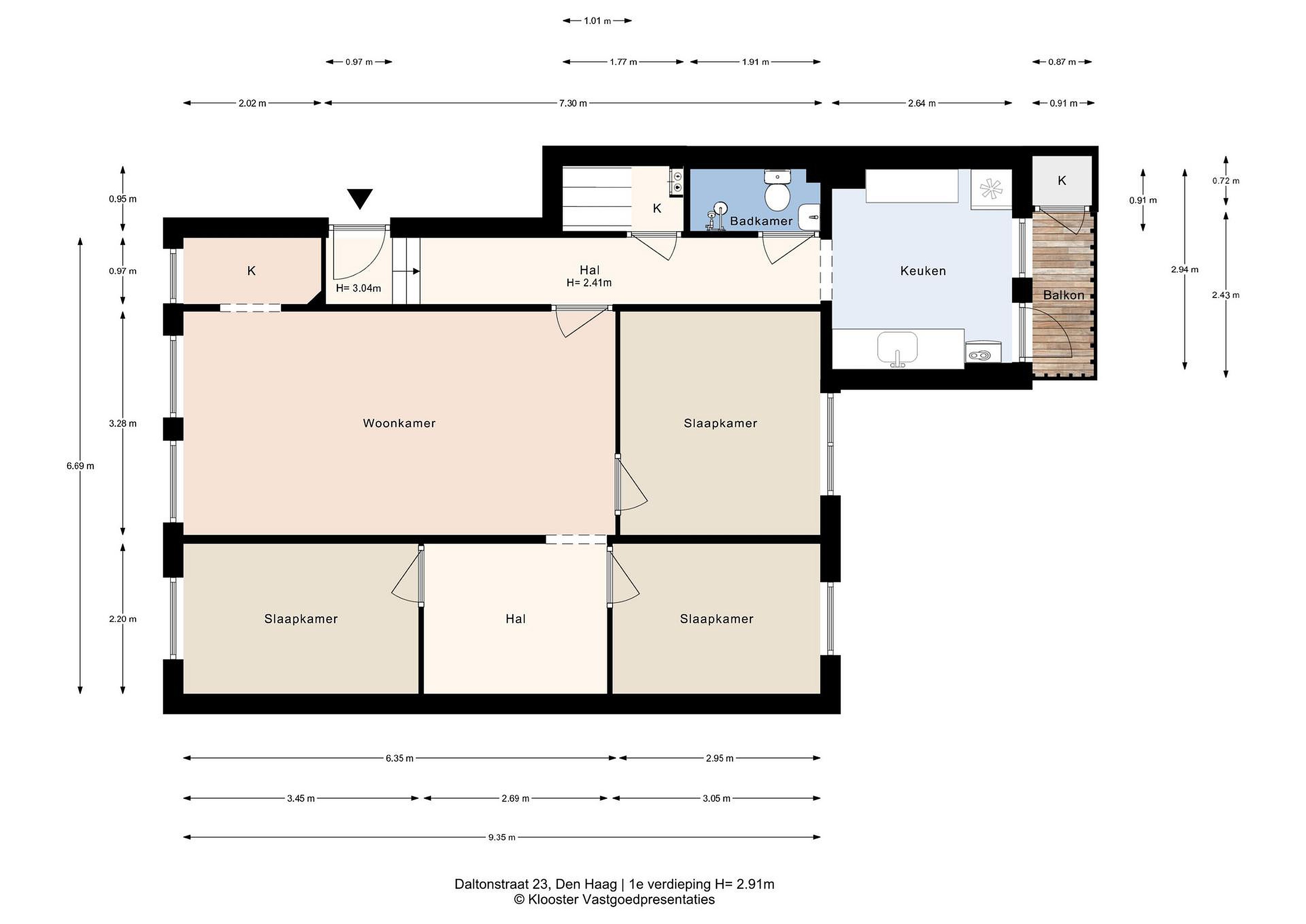
Indeling:
Open portiek;
1e verdieping:
entree appartement, hal, woon,-eetkamer, slaapkamer achter, overloop, slaapkamer voorzijde, slaapkamer achterzijde, trapkast met meterkast, badkamer voorzien van toilet en doucheruimte, keuken voorzien van diverse inbouwapparatuur, losse koelvrieskast, balkon aan de achterzijde.

Bijzonderheden:
- Slaapkamers: 3;
- Balkon georiënteerd op het noordwesten;
- Volledig eigendom;
- Woonoppervlakte ca.74 m2;
- Warm water en verwarming middels combiketel (eigendom);
- Energielabel: D;
- Oplevering in overleg;
- Openbaar vervoer: tram 2 en bus 21;
- Betaald parkeren/ vergunninghouders (dagelijks van 18:00 tot 24:00 uur)
- Beschermd stadsgezicht;
- Standaard nemen wij de koopovereenkomst een asbest, ouderdom- en materialen clausule op.
- Projectnotaris van toepassing;

Vereniging van eigenaars
- Actieve vereniging van eigenaren met een maandelijkse bijdrage van €100,00;
- 1/3e aandeel in de gemeenschap;
- Collectieve opstalverzekering aanwezig;
- Ingeschreven in de kamer van koophandel;



Are you a handy starter looking for a home with potential? Then this apartment is definitely worth a look. The property offers an excellent opportunity to create your own home in a popular neighborhood of The Hague. With three bedrooms, a spacious living/dining room, and a balcony at the rear, the apartment provides a solid foundation that you can fully modernize and finish according to your own taste.

The apartment has energy label D, which offers opportunities to further improve the sustainability of the home. The living room is currently arranged with an additional bedroom at the rear, which can also be converted back into a dining room if desired.

Location:
Attractively located in a quiet neighborhood with schools, daycare centers, supermarkets, a district office, library, recreational facilities, shops, and the popular shopping streets Fahrenheitstraat and Weimarstraat within walking distance. The center of The Hague can also be reached within 10 minutes by bike. Public transport facilities are also within walking distance.

Layout:
Open entrance porch.

1st floor:
Entrance to the apartment, hallway, living/dining room, rear bedroom, landing, front bedroom, rear bedroom, stair cupboard with meter cupboard, bathroom with toilet and shower, kitchen equipped with various built-in appliances and a separate fridge-freezer, balcony at the rear.

Special features:
Bedrooms: 3
Balcony facing northwest
Full ownership (freehold)
Living area approx. 74 m2
Hot water and heating via combi boiler (owned)
Energy label: D
Delivery in consultation
Public transport: tram 2 and bus 21
Paid parking/permit holders (daily from 18:00 to 24:00)
Protected cityscape
The purchase agreement will include standard asbestos, age, and materials clauses
Project notary applicable
Homeowners’ Association (VvE):
Active homeowners’ association with a monthly contribution of €100.00
1/3 share in the community
Collective building insurance in place
Registered with the Chamber of Commerce.
Lees meer

Kenmerken

Overdracht

Prijs per m2
€ 4.472
Aangeboden sinds
11 maart 2026
Status
Beschikbaar
Aanvaarding
In overleg

Bouw

Soort appartement
Portiekwoning, appartement
Soort bouw
Bestaande bouw
Bouwjaar
1911
Soort dak
Plat dak
Staat van onderhouden binnen
Redelijk
Staat van onderhouden buiten
Redelijk

Oppervlakte en inhoud

Inhoud van de woning
270 m3
Oppervlakte gebouwgebonden buitenruimten
2 m2
Oppervlakte overige inpandige ruimten
0 m2

Indeling

Aantal kamers
4
Aantal slaapkamers
3
Aantal woonlagen
1
Voorzieningen
Vve checklist, balkon

Buitenruimte

Balkon
Ja
Schuur/berging
Nee

Maandlasten berekenen

De maandlasten voor je woning bestaan uit meer dan alleen de hypotheeklasten. Hieronder vind je een overzicht van de bijkomende kosten en lasten. Zo weet je precies wat je huis per maand gaat kosten. En met de handige vergelijkers kun je ook nog eens snel de beste deals sluiten!

  • Kaart
  • Streetview