Prins Hendrikkade 109B03 3071 KJ Rotterdam

124m2
Wonen
5
Kamers
0m2
Perceel
1908
Bouwjaar
RUIME 5-KAMERWONING VAN CA. 124 M2 - DERDE EN VIERDE VERDIEPING - TWEE WOONLAGEN - VOLLEDIG NAAR EIGEN SMAAK AF TE MAKEN - NOORDEREILAND ROTTERDAM

Aan de Prins Hendrikkade 109B03 ligt deze royale 5-kamerwoning, verdeeld over de derde en vierde verdieping. Met circa 124 m2 woonoppervlakte biedt deze woning ruimte, flexibiliteit en de mogelijkheid om een eigen woonvisie te realiseren.

LIGGING EN OMGEVING
Het Noordereiland kenmerkt zich door rust, karakter en een sterke verbondenheid met de Maas. U woont hier in een kleinschalige buurt met een dorps gevoel, terwijl het centrum van Rotterdam snel en eenvoudig bereikbaar blijft.

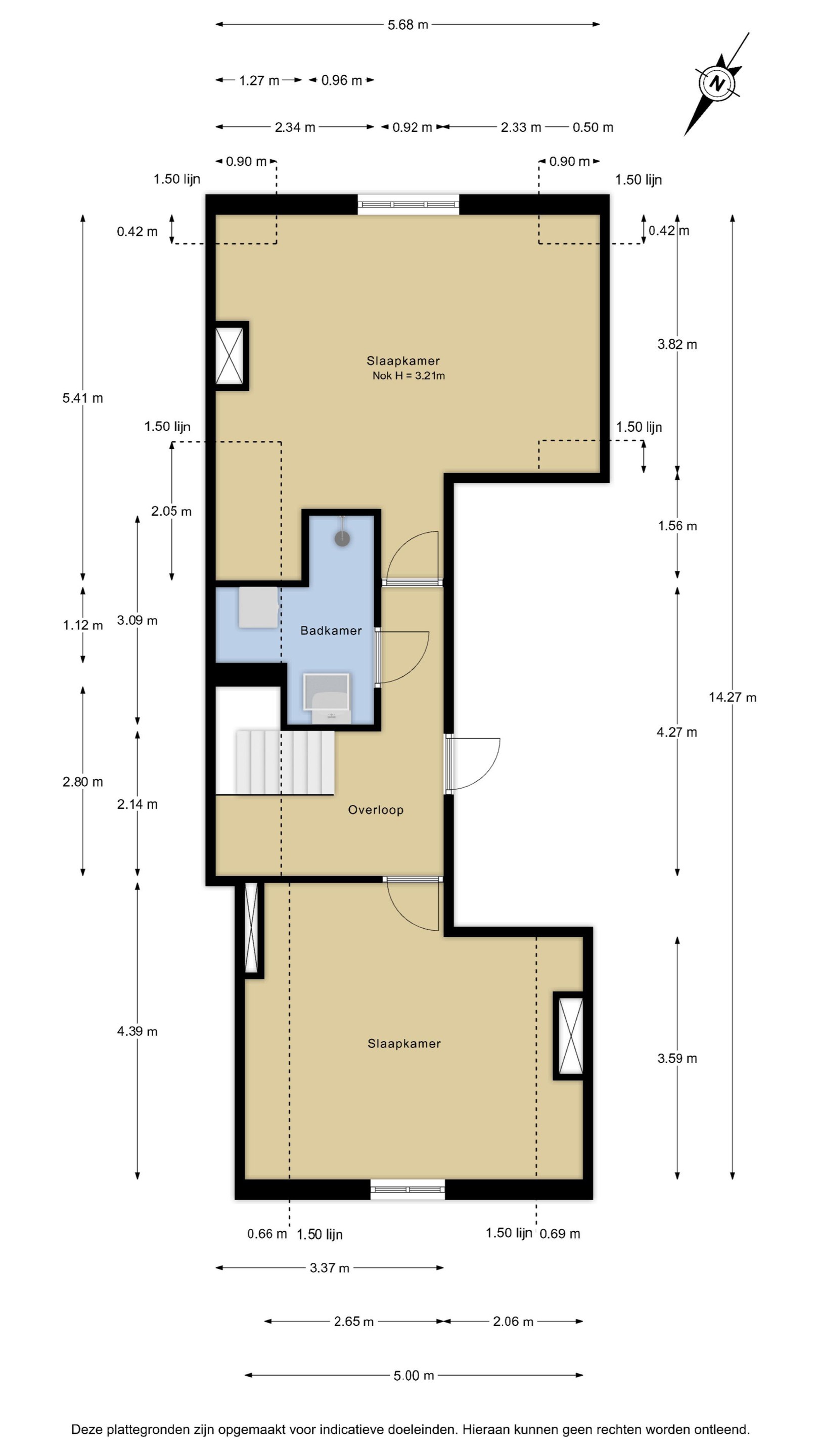
INDELING EN POTENTIE
De woning beschikt over twee volwaardige woonlagen. De indeling biedt meerdere kamers, geschikt voor wonen, werken of hobby’s. De ruimte nodigt uit tot herinrichting en afwerking geheel passend bij uw persoonlijke woonwensen.

WOONVERDIEPING
De woonverdieping biedt plaats aan een ruime leefruimte met mogelijkheden voor een open woonconcept. Door de hoogte en verdiepingsindeling ontstaat een prettige scheiding tussen leven en rust.

SLAAP- EN WERKRUIMTES
De extra kamers op beide verdiepingen bieden flexibiliteit. Denk aan slaapkamers, een thuiskantoor of een logeerkamer. Deze woning groeit mee met veranderende woonbehoeften.

DUURZAAMHEID
De woning beschikt over energielabel F. Dit biedt inzicht in de huidige energieprestatie en ruimte voor verduurzaming en verbetering naar eigen inzicht.

BIJZONDERHEDEN OP EEN RIJ
- Woonoppervlakte ca. 124 m2
- 5 kamers
- Gelegen op de derde en vierde verdieping
- Twee woonlagen
- Volledig naar eigen smaak af te maken
- Energielabel F
- Gelegen op het Noordereiland in Rotterdam

INTERESSE?
Deze woning biedt ruimte, vrijheid en een unieke ligging aan het water. Neem contact op voor een bezichtiging en ontdek hoe u van Prins Hendrikkade 109B03 uw eigen thuis maakt.

GLOBALE INDELING
Ontdek met de plattegronden de indeling en ervaar de mogelijkheden. Laat je inspireren door de sfeervolle foto’s en wandel virtueel door de woning. Krijg een levensechte indruk. Klik, kijk en ontdek hoe deze plek jouw nieuwe thuis kan worden!

ALGEMEEN
Oppervlakte woning ca. 124m2
Inhoud woning ca. 391m3
Oplevering in overleg, kan snel
Bouwjaar omstreeks 1908
Eigen grond
Verwarming en warm water d.m.v. CV-combiketel
Definitief energielabel F (geldig tot14-09-2028)
Projectnotaris van toepassing
Het appartement is gesitueerd in een Beschermd Stadsgezicht
Actieve VvE, maandelijkse bijdrage € 284,64

Ondanks dat deze aanmelding met de nodige zorgvuldigheid is samengesteld, is alle verstrekte informatie nadrukkelijk onder voorbehoud, uitsluitend indicatief, bedoeld als voorbeeld en daardoor niet bindend voor het eindresultaat. Aan deze woninginformatie kunnen geen rechten of verplichtingen worden ontleend, onzerzijds wordt geen enkele aansprakelijkheid aanvaard voor enige onvolledigheid, onjuistheid of anderszins, dan wel de gevolgen daarvan.
Lees meer

Kenmerken

Overdracht

Prijs per m2
€ 3.427
Aangeboden sinds
12 januari 2026
Status
Beschikbaar
Aanvaarding
Direct

Bouw

Soort appartement
Portiekwoning, appartement
Soort bouw
Bestaande bouw
Bouwjaar
1908
Soort dak
Zadeldak
Staat van onderhouden binnen
Goed
Staat van onderhouden buiten
Goed

Oppervlakte en inhoud

Indeling

Aantal kamers
5
Aantal slaapkamers
4
Aantal woonlagen
2
Voorzieningen
Kabel-tv

Buitenruimte

Balkon
Nee
Schuur/berging
Nee

Maandlasten berekenen

De maandlasten voor je woning bestaan uit meer dan alleen de hypotheeklasten. Hieronder vind je een overzicht van de bijkomende kosten en lasten. Zo weet je precies wat je huis per maand gaat kosten. En met de handige vergelijkers kun je ook nog eens snel de beste deals sluiten!

  • Kaart
  • Streetview