Maaskade 135A03 3071 NL Rotterdam

105m2
Wonen
4
Kamers
0m2
Perceel
1899
Bouwjaar
4-KAMERWONING MET PRACHTIG UITZICHT OP DE MAAS

RUIM EN LICHT WONEN OP HET HISTORISCHE NOORDEREILAND
Deze royale 4-kamerwoning biedt een adembenemend uitzicht over De Maas en combineert comfort met een toplocatie in Rotterdam. Drie ruime slaapkamers, een moderne keuken met (diverse) inbouwapparatuur en een keurige badkamer met inloopdouche zorgen voor een aangenaam woonklimaat.

MODERNE VOORZIENINGEN EN STRAK AFGEWERKT
De woning heeft energielabel C. De keuken is voorzien van hoogwaardige inbouwapparatuur. De badkamer is keurig afgewerkt en beschikt over een inloopdouche, een stijlvol wastafelmeubel en een designradiator.

GEWELDIGE LOCATIE OP HET NOORDEREILAND
Het Noordereiland biedt een unieke combinatie van rust en stedelijke dynamiek. De charmante, historische omgeving straalt karakter uit, terwijl het bruisende centrum van Rotterdam op korte afstand ligt. Winkels, restaurants en openbaar vervoer zijn binnen handbereik.

PER DIRECT BESCHIKBAAR – PLAN EEN BEZICHTIGING IN
Wilt u wonen op een van de mooiste plekken van Rotterdam? Neem contact op voor een bezichtiging en ervaar zelf de ruimte, het comfort en het uitzicht.

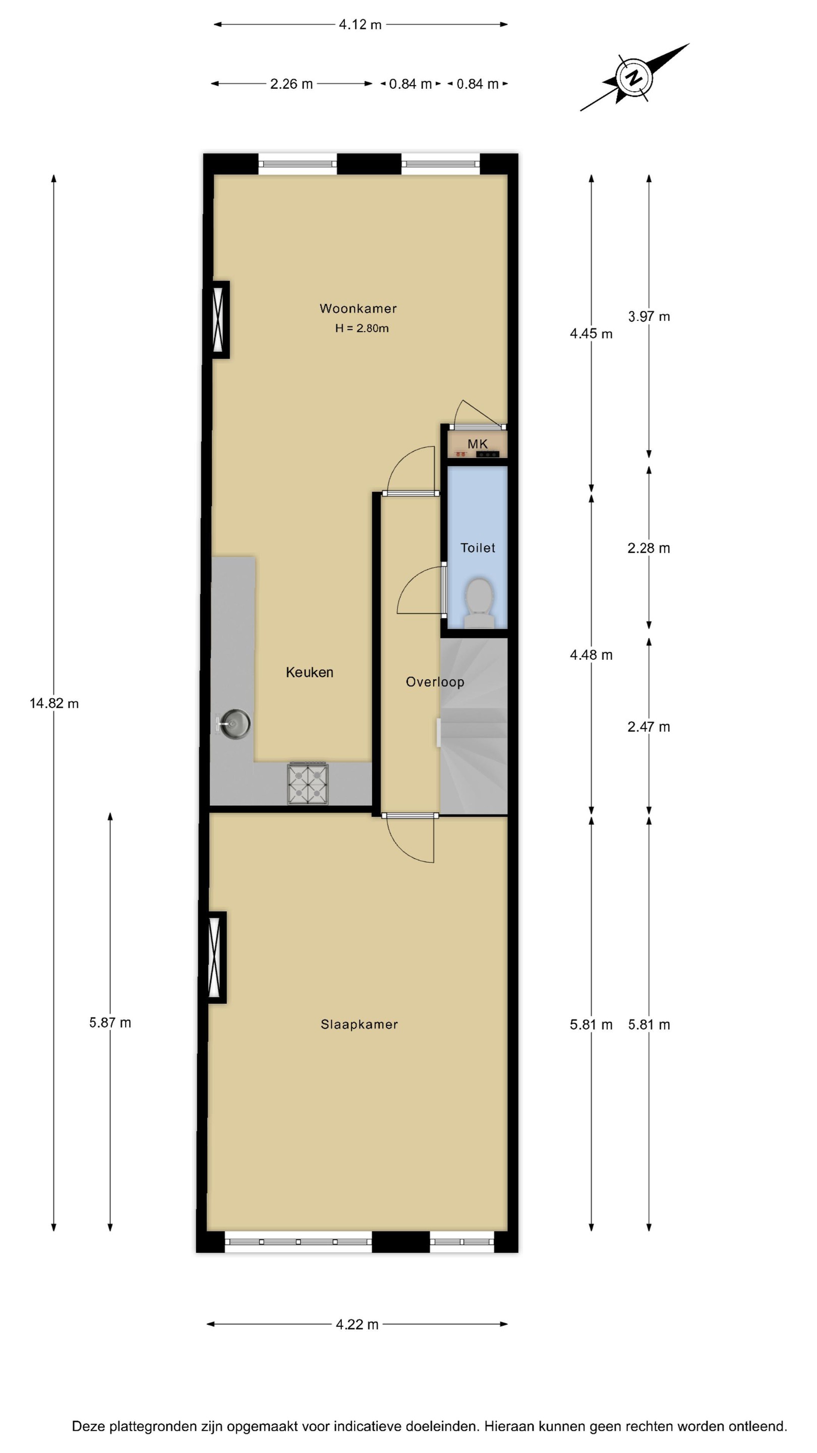
GLOBALE INDELING
Ontdek met de plattegronden de indeling en ervaar de mogelijkheden. Laat je inspireren door de sfeervolle foto’s en wandel virtueel door de woning. Krijg een levensechte indruk. Klik, kijk en ontdek hoe deze plek jouw nieuwe thuis kan worden!

ALGEMEEN
Oppervlakte woning ca. 105m2
Inhoud woning ca. 337m3
Oplevering in overleg, kan snel
Bouwjaar omstreeks 1899
Eigen grond
Verwarming en warm water d.m.v. CV-ketel
Definitief energielabel C
Projectnotaris van toepassing
Het appartement is gesitueerd in een Beschermd Stadsgezicht

Ondanks dat deze aanmelding met de nodige zorgvuldigheid is samengesteld, is alle verstrekte informatie nadrukkelijk onder voorbehoud, uitsluitend indicatief, bedoeld als voorbeeld en daardoor niet bindend voor het eindresultaat. Aan deze woninginformatie kunnen geen rechten of verplichtingen worden ontleend, onzerzijds wordt geen enkele aansprakelijkheid aanvaard voor enige onvolledigheid, onjuistheid of anderszins, dan wel de gevolgen daarvan.
Lees meer

Kenmerken

Overdracht

Prijs per m2
€ 4.524
Aangeboden sinds
10 februari 2026
Status
Beschikbaar
Aanvaarding
Direct

Bouw

Soort appartement
Portiekwoning, appartement
Soort bouw
Bestaande bouw
Bouwjaar
1899
Staat van onderhouden binnen
Goed
Staat van onderhouden buiten
Goed

Oppervlakte en inhoud

Indeling

Aantal kamers
4
Aantal slaapkamers
3
Aantal woonlagen
2
Voorzieningen
Kabel-tv

Buitenruimte

Balkon
Nee
Schuur/berging
Nee

Maandlasten berekenen

De maandlasten voor je woning bestaan uit meer dan alleen de hypotheeklasten. Hieronder vind je een overzicht van de bijkomende kosten en lasten. Zo weet je precies wat je huis per maand gaat kosten. En met de handige vergelijkers kun je ook nog eens snel de beste deals sluiten!

  • Kaart
  • Streetview