Verkocht OV

Hilledijk 212B02 3074 GB Rotterdam

113m2
Wonen
3
Kamers
0m2
Perceel
1929
Bouwjaar
DEZE WONING IS VERKOCHT ONDER VOORBEHOUD!!

Riante bovenwoning in Rotterdam Hillesluis met energielabel B!

Welkom in deze prachtige bovenwoning in het geliefde Rotterdam Hillesluis. Met een woonoppervlakte van 113 m2 en een energielabel B biedt deze woning u alle ruimte en comfort. Gelegen vlakbij het openbaar vervoer, is deze woning ideaal voor zowel stadsbewoners als forenzen.

MODERNE KEUKEN EN COMFORTABEL WONEN
De ruime keuken is voorzien van moderne inbouwapparatuur, waardoor u direct aan de slag kunt met koken. Dankzij de slimme indeling van de woonruimte geniet u van een lichte en open sfeer. U heeft volop mogelijkheden om uw persoonlijke stijl toe te voegen aan deze woning.

FLEXIBELE INDELING EN OPTIES
Deze bovenwoning biedt diverse mogelijkheden. De extra ruimte kan eenvoudig worden omgevormd tot een kantoor of een walk-in closet, afhankelijk van uw behoeften. Dit maakt het wonen in deze woning niet alleen comfortabel, maar ook praktisch.

LEVENSSTIJL EN OMGEVING
Hillesluis is een levendige wijk met een mix van culturele diversiteit en groene ruimtes. U vindt hier een verscheidenheid aan winkels, restaurants en cafés binnen handbereik. De nabijheid van openbaar vervoer zorgt ervoor dat u binnen enkele minuten in het centrum van Rotterdam bent. Dit maakt het wonen in deze buurt bijzonder aantrekkelijk voor gezinnen en professionals.

UW NIEUWE THUIS WACHT OP U
Bent u klaar om uw nieuwe leven in Rotterdam Hillesluis te beginnen? Deze bovenwoning biedt alles wat u nodig heeft. Neem vandaag nog contact met ons op voor een bezichtiging en ontdek de mogelijkheden die deze woning te bieden heeft. Uw nieuwe thuis wacht op u!

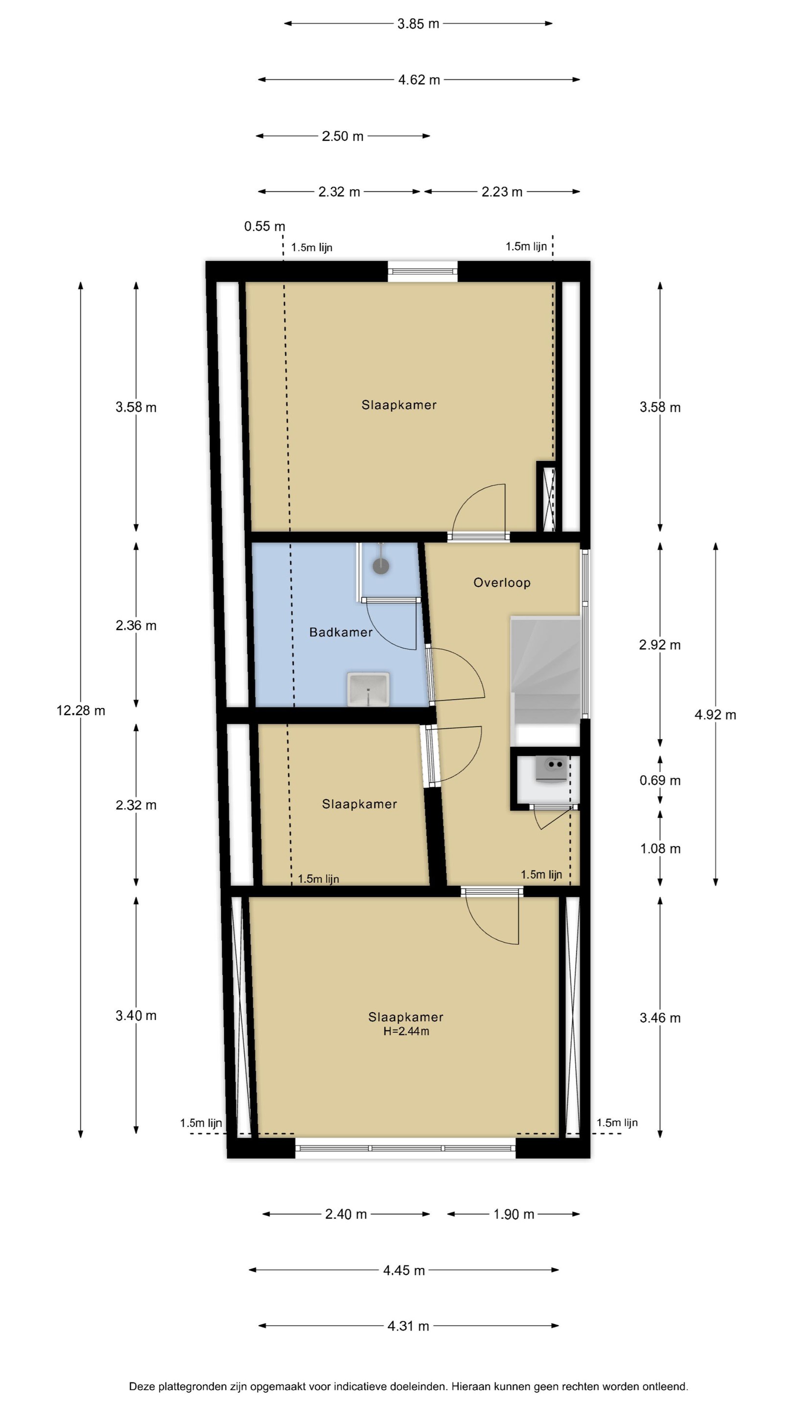
Globale indeling
Voor de indeling verwijzen wij u graag naar de toegevoegde plattegrond.

Algemeen:
Oppervlakte woning ca. 113m2
Oppervlakte buitenruimte ca. 6m2
Inhoud woning ca. 288m3
Oplevering in overleg, kan snel
Bouwjaar omstreeks 1929
Eigen grond
Verwarming en warm water d.m.v. CV-ketel (bouwjaar 2016)
Definitief energielabel B
Projectnotaris van toepassing
VvE is recent opgericht, maandelijkse bijdrage € 215,00

Ondanks dat deze aanmelding met de nodige zorgvuldigheid is samengesteld, is alle verstrekte informatie nadrukkelijk onder voorbehoud, uitsluitend indicatief, bedoeld als voorbeeld en daardoor niet bindend voor het eindresultaat. Aan deze woninginformatie kunnen geen rechten of verplichtingen worden ontleend, onzerzijds wordt geen enkele aansprakelijkheid aanvaard voor enige onvolledigheid, onjuistheid of anderszins, dan wel de gevolgen daarvan.

Lees meer

Kenmerken

Overdracht

Prijs per m2
€ 2.611
Aangeboden sinds
5 januari 2026
Status
Verkocht onder voorbehoud
Aanvaarding
In overleg

Bouw

Soort appartement
Portiekwoning, appartement
Soort bouw
Bestaande bouw
Bouwjaar
1929
Soort dak
Zadeldak
Staat van onderhouden binnen
Goed
Staat van onderhouden buiten
Goed

Oppervlakte en inhoud

Inhoud van de woning
288 m3
Oppervlakte gebouwgebonden buitenruimten
6 m2

Indeling

Aantal kamers
3
Aantal slaapkamers
2
Aantal woonlagen
2
Voorzieningen
Balkon, kabel-tv

Buitenruimte

Balkon
Ja
Schuur/berging
Nee

Maandlasten berekenen

De maandlasten voor je woning bestaan uit meer dan alleen de hypotheeklasten. Hieronder vind je een overzicht van de bijkomende kosten en lasten. Zo weet je precies wat je huis per maand gaat kosten. En met de handige vergelijkers kun je ook nog eens snel de beste deals sluiten!

  • Kaart
  • Streetview