Insulindeweg 1094 PE Amsterdam

50m2
Wonen
3
Kamers
0m2
Perceel
1924
Bouwjaar
Aangeboden wordt dit sfeervol en modern 3-kamerappartement met balkon in Amsterdam Oost.

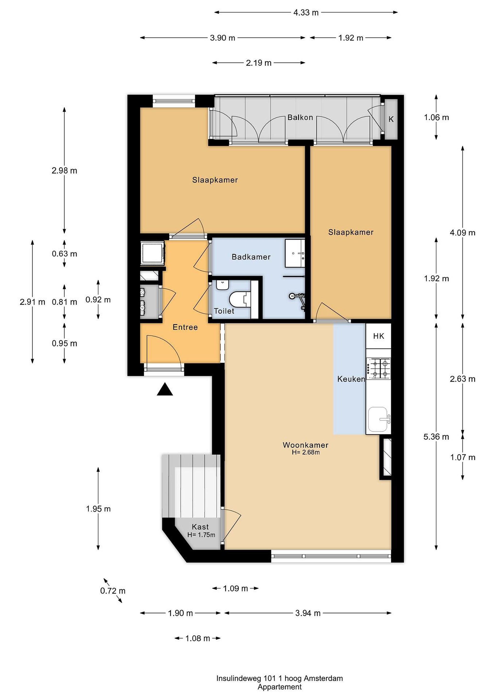
In het bruisende Amsterdam Oost bieden wij dit goed ingedeelde en verzorgde 3-kamerappartement aan, gelegen aan de Insulindeweg 101-1. De woning beschikt over twee volwaardige slaapkamers, een moderne keuken en een stijlvolle badkamer, en is daarmee ideaal voor o.a. starters.

Bij binnenkomst valt direct de prettige lichtinval en de praktische indeling op. De woonkamer biedt voldoende ruimte voor een comfortabele zithoek en een gezellige eethoek. De keuken is modern uitgevoerd en voorzien van diverse inbouwapparatuur. Het appartement beschikt over twee slaapkamers, beide met directe toegang tot het balkon. Hierdoor geniet u vanuit de slaapkamers van extra licht en de mogelijkheid om ’s ochtends direct naar buiten te stappen.

De badkamer is modern en stijlvol afgewerkt en voorzien van een wastafelmeubel en een inloopdouche met glazen wand. Het appartement beschikt bovendien over een aparte, luxe uitgevoerde toiletruimte die extra comfort en privacy biedt. Daarnaast is er een aparte ruimte aanwezig voor de wasmachine en droger, wat zorgt voor extra gemak en een opgeruimde uitstraling in de woning. Het balkon biedt een fijne buitenruimte waar u heerlijk kunt ontspannen en genieten van uw ochtendkoffie of een drankje aan het einde van de dag.

De omgeving
Het appartement is gelegen in Amsterdam Oost, in de karakteristieke Indische Buurt, een van de gewilde woonwijken van de stad. De ligging biedt een uitstekende mix van stedelijke dynamiek en groene rustpunten. In de buurt zijn er meerdere grote en sfeervolle parken, zoals het Flevopark met zijn speelveld, tennisbanen en openluchtzwembad, en het Oosterpark, ideaal voor wandelingen, sport of een picknick in het groen.

Voor uw dagelijkse boodschappen en gezellige buurtactiviteiten hoeft u niet ver weg: de levendige Javastraat biedt een gevarieerd aanbod aan speciaalzaken, delicatessenwinkels, cafés en horeca, terwijl de Dappermarkt één van de oudste en meest geliefde markten van Amsterdam is met verse producten en een breed scala aan kramen.

Ook het winkelgebied Oostpoort en lokale supermarkten bevinden zich op loopafstand. De buurt beschikt over diverse populaire cafés, lunchplekken, restaurants en gezellige terrassen voor een ontspannen brunch tot een avondje uit eten.

Ook op het gebied van openbaar vervoer zijn er voldoende mogelijkheden. De tram- en buslijnen stoppen in de directe omgeving en station Amsterdam Muiderpoort is op loopafstand bereikbaar. Met de fiets bent u binnen ongeveer 10 minuten in het centrum van Amsterdam, en met de auto bereikt u eenvoudig de Ringweg A10 voor regionale verbindingen.

Kortom: een perfecte combinatie van een rustige woonomgeving, groenvoorzieningen en een goede bereikbaarheid, midden in een van de gewildste stadsdelen van Amsterdam.

Bijzonderheden:
-bouwjaar ca.1920-1930 /1924;
-erfpacht voortdurend t/m 30-6-2048, canon variabel;
-huidige canon €.517,19 t/m 31-12-2026;
-er is een aanvraag voor afkoop volgens gunstige voorwaarden;
-woonoppervlak 50m2, balkon 4,2m2, inhoud 172m3;
-CV ketel Intergas HRE d.d. 2018;
-VVE bijdrage €, 150,00 p/m, actieve VVE met 16 leden
-MJOP aanwezig, splitsing 2006;
-Appartement volledig gerenoveerd in 2021;
-Twee slaapkamers, extra berging, aparte ruimte voor de wm/droger;


=====

English:

Offered for sale: this charming and modern 2-bedroom apartment with balcony in Amsterdam East.

Located in vibrant Amsterdam East, this well-designed and well-maintained 2-bedroom apartment is situated at Insulindeweg 101-1. The property features two full-sized bedrooms, a modern kitchen, and a stylish bathroom, making it ideal for first-time buyers, among others.

Upon entering, you will immediately notice the pleasant natural light and practical layout. The living room offers ample space for a comfortable seating area and a cozy dining space. The kitchen is modern in design and equipped with various built-in appliances. The apartment features two bedrooms, both with direct access to the balcony, allowing you to enjoy additional light and the possibility to step outside first thing in the morning.

The bathroom is modern and tastefully finished, equipped with a vanity unit and a walk-in shower with a glass partition. In addition, the apartment has a separate, luxuriously finished toilet, providing extra comfort and privacy. There is also a separate space for a washing machine and dryer, ensuring additional convenience and a tidy living environment. The balcony offers a pleasant outdoor area where you can relax and enjoy your morning coffee or an evening drink.

The Surroundings:

The apartment is located in Amsterdam East, in the characteristic Indische Buurt, one of the city’s most desirable residential areas. The location offers an excellent mix of urban vibrancy and green spaces. Several large and attractive parks are nearby, such as Flevopark with its playing fields, tennis courts and outdoor swimming pool, and Oosterpark, ideal for walking, sports, or a picnic in the greenery.

For daily groceries and neighborhood activities, you do not have to go far. The lively Javastraat offers a wide variety of specialty shops, delicatessens, cafés and restaurants, while the Dapper Market is one of Amsterdam’s oldest and most popular street markets, offering fresh produce and a broad range of stalls.

The Oostpoort shopping area and various supermarkets are also within walking distance. The neighborhood features numerous popular cafés, lunch spots, restaurants and cozy terraces, perfect for everything from a relaxed brunch to an evening out.

Public transport connections are excellent. Tram and bus lines stop in the immediate vicinity, and Amsterdam Muiderpoort railway station is within walking distance. By bike, you can reach Amsterdam’s city center in approximately 10 minutes, and by car, you have easy access to the A10 ring road for regional connections.

In short: a perfect combination of a quiet residential setting, green surroundings, and excellent accessibility, located in one of Amsterdam’s most sought-after districts.


Key Features:

-Built circa 1920–1930 (1924);
-Leasehold in perpetuity until June 30, 2048, variable leasehold ground rent;
-current ground rent €.517,19 t/m 31-12-2026;
-Application submitted for redemption under favorable conditions;
-Living area approx. 50 m2; balcony approx. 4.2 m2; volume approx. 172 m3;
-Intergas HRE central heating boiler (2018);
-Homeowners’ Association (VvE) contribution €150 per month; active association with 16 members;
-Long-term maintenance plan (MJOP) available; building split in 2006;
-Apartment fully renovated in 2021;
-Two bedrooms, additional storage space, and separate laundry area.
Lees meer

Kenmerken

Overdracht

Prijs per m2
€ 7.900
Aangeboden sinds
23 februari 2026
Status
Beschikbaar
Aanvaarding
In overleg

Bouw

Soort appartement
Portiekwoning, appartement
Soort bouw
Bestaande bouw
Bouwjaar
1924
Staat van onderhouden binnen
Goed
Staat van onderhouden buiten
Goed

Oppervlakte en inhoud

Inhoud van de woning
172 m3
Oppervlakte gebouwgebonden buitenruimten
5 m2

Indeling

Aantal kamers
3
Aantal slaapkamers
2
Aantal woonlagen
1
Voorzieningen
Balkon

Buitenruimte

Balkon
Ja
Schuur/berging
Nee

Maandlasten berekenen

De maandlasten voor je woning bestaan uit meer dan alleen de hypotheeklasten. Hieronder vind je een overzicht van de bijkomende kosten en lasten. Zo weet je precies wat je huis per maand gaat kosten. En met de handige vergelijkers kun je ook nog eens snel de beste deals sluiten!

  • Kaart
  • Streetview