Sint Janskruidlaan 152 1187 ED Amstelveen

65m2
Wonen
3
Kamers
0m2
Perceel
2011
Bouwjaar
Comfortabel wonen in een modern gebouw, met een weids uitzicht en een eigen parkeerplaats. ** English below**

Wat mogen wij u aanbieden? Een efficiënt ingedeeld en goed onderhouden, licht drie kamer hoekappartement van circa 65 m2 met een heerlijk balkon en een eigen parkeerplaats. Gelegen op een mooie locatie aan de rand van de Westwijk. Het is hier prettig wonen, rustig maar centraal en toch alle voorzieningen op korte afstand.

Indeling
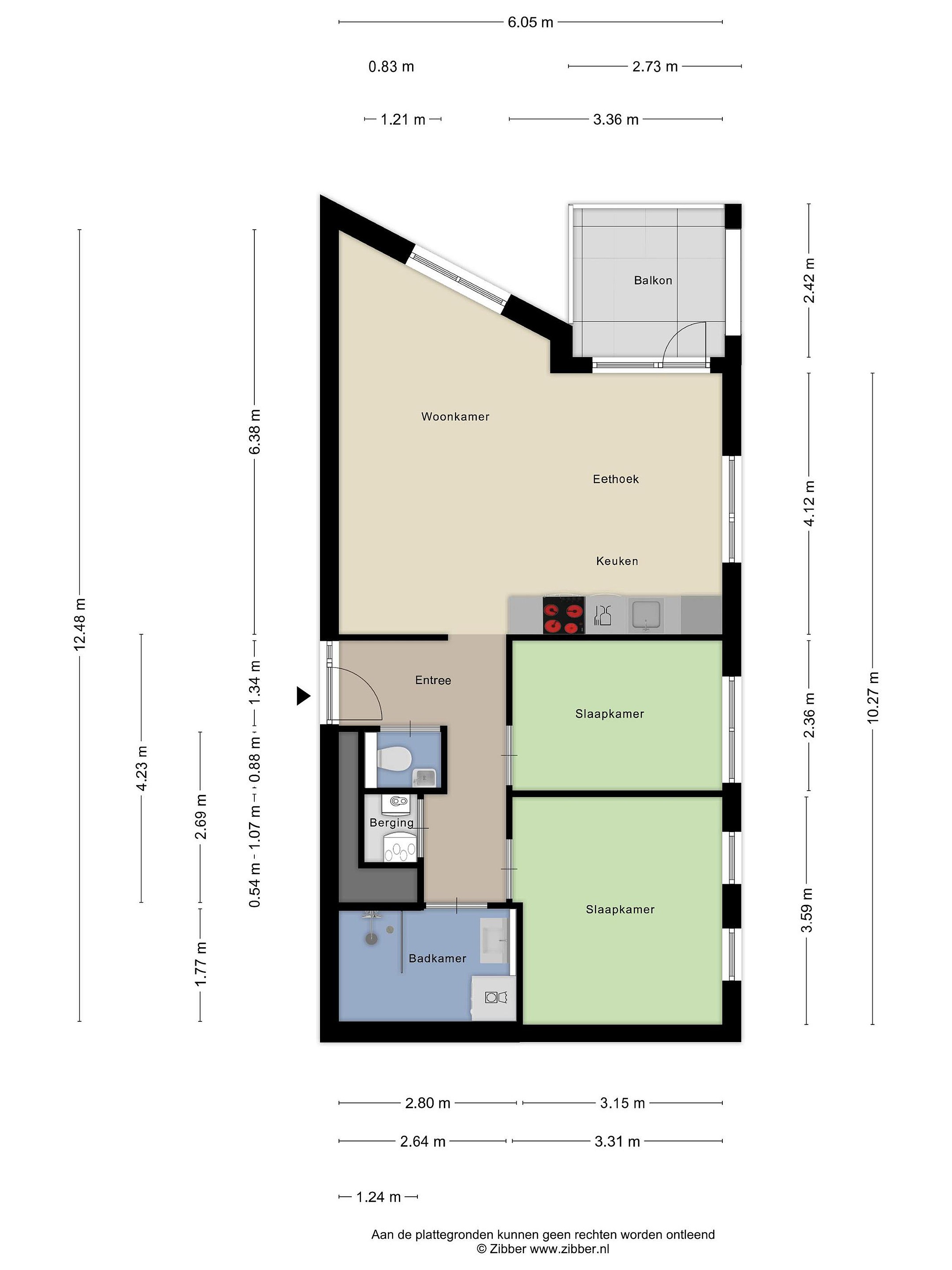
Via de gemeenschappelijke entree op de begane grond bereikt u met de lift of de trap de woning op de tweede verdieping. Entree met hal, meterkast en toegang tot alle vertrekken. Op “de kop” van het gebouw bevindt zich de woonkamer met open keuken en het fijne balkon. Het balkon is op het zuid-westen gelegen. De hoek-ligging zorgt voor veel licht in de woonkamer. Aan de rustige achterzijde liggen de twee slaapkamers en tot slot is er nog de badkamer en het toilet. De gehele woning is voorzien van vloerverwarming.

De bijbehorende parkeerplaats en gemeenschappelijke fietsenberging liggen op de begane grond.

Locatie en bereikbaarheid
De woning ligt in de Westwijk, ruim opgezet met veel openbaar groen. Voor de dagelijkse boodschappen is winkelcentrum Westwijkplein op korte afstand gelegen. Ook het gezellige Oude Dorp en het Stadshart Amstelveen liggen vlakbij, waar u terecht kunt voor winkels, horeca en culturele voorzieningen. Sportfaciliteiten, recreatiemogelijkheden en scholen zijn eveneens volop aanwezig in de omgeving.

Ook qua bereikbaarheid is de ligging ideaal en uitstekend bereikbaar met zowel eigen- als het openbaar vervoer. Onder meer de A-9, A-4, A-2 en N201 zijn eenvoudig en snel bereikbaar. Met de vernieuwde tramlijn zit u binnen no time in Amsterdam en verder zijn er diverse buslijnen in de omgeving.

De foto´s geven uiteraard een goed beeld van de woning weer, maar om echt een indruk van deze woning te krijgen zijn wij van mening dat u het beste kunt komen kijken. Nieuwsgierig of meer informatie? Maak snel een afspraak, wij leiden u met plezier rond en informeren u graag.
**
Comfortable living in a modern building, with panoramic views and private parking.

What can we offer you? An efficiently laid out and well-maintained, bright three-room corner flat of approximately 65 m2 with a lovely balcony and private parking. Located in a beautiful location on the edge of the Westwijk. It is a pleasant place to live, quiet but central and yet with all amenities within easy reach.

Layout
Through the communal entrance on the ground floor, you can reach the flat on the second floor by lift or stairs. Entrance hall with meter cupboard and access to all rooms. At the front of the building is the living room with open kitchen and the lovely balcony. The balcony faces south-west. The corner location provides plenty of light in the living room. At the quiet rear are the two bedrooms and finally there is the bathroom and toilet. The entire property has underfloor heating.

The associated parking space and communal bicycle storage are located on the ground floor.

Location and accessibility
The property is located in the Westwijk neighbourhood, which is spacious with lots of public green spaces. The Westwijkplein shopping centre is a short distance away for your daily shopping needs. The charming Oude Dorp and Stadshart Amstelveen are also nearby, where you will find shops, restaurants and cultural amenities. Sports facilities, recreational opportunities and schools are also plentiful in the area.

The location is also ideal in terms of accessibility and is easily accessible by both private and public transport. The A-9, A-4, A-2 and N201 motorways, among others, are easily and quickly accessible. With the renovated tram line, you can be in Amsterdam in no time, and there are also several bus lines in the area.

The photographs naturally give a good impression of the property, but to really get a feel for it, we believe it is best to come and see it for yourself. Curious or want more information? Make an appointment quickly, we will be happy to show you around and provide you with further details.

Lees meer

Kenmerken

Overdracht

Prijs per m2
€ 6.538
Aangeboden sinds
11 november 2025
Status
Beschikbaar
Aanvaarding
In overleg

Bouw

Soort appartement
Portiekwoning, appartement
Soort bouw
Bestaande bouw
Bouwjaar
2011
Soort dak
Plat dak
Staat van onderhouden binnen
Goed
Staat van onderhouden buiten
Goed

Oppervlakte en inhoud

Inhoud van de woning
214 m3
Oppervlakte gebouwgebonden buitenruimten
6 m2

Indeling

Aantal kamers
3
Aantal slaapkamers
2
Aantal woonlagen
1
Voorzieningen
Balkon, ventilatie, lift

Buitenruimte

Balkon
Ja
Schuur/berging
Nee

Maandlasten berekenen

De maandlasten voor je woning bestaan uit meer dan alleen de hypotheeklasten. Hieronder vind je een overzicht van de bijkomende kosten en lasten. Zo weet je precies wat je huis per maand gaat kosten. En met de handige vergelijkers kun je ook nog eens snel de beste deals sluiten!

  • Kaart
  • Streetview