Verkocht OV

Buitenom 37 2711 JM Zoetermeer

112m2
Wonen
3
Kamers
0m2
Perceel
2006
Bouwjaar
Wonen in het hart van het bruisende Stadshart mét weids uitzicht!

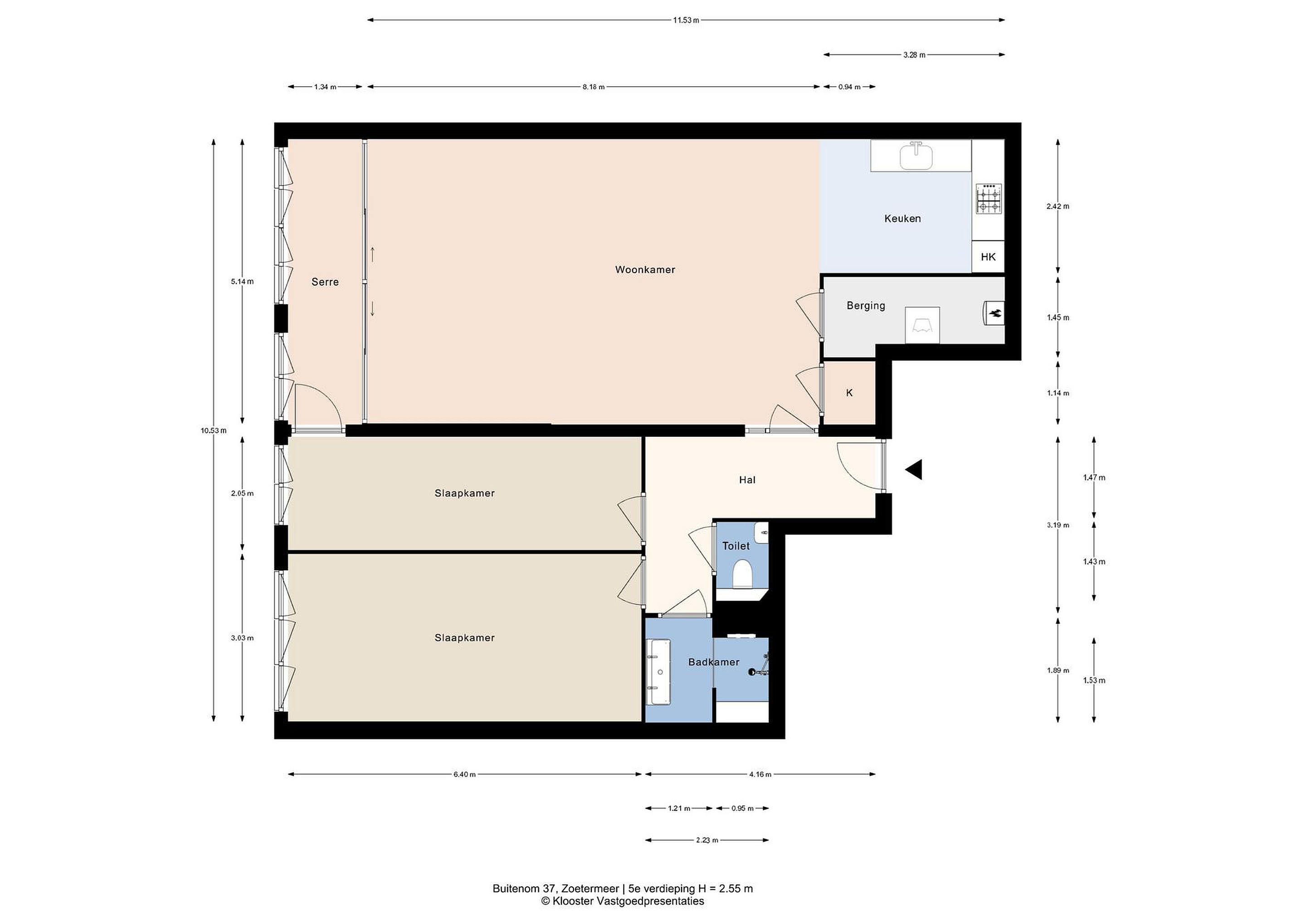
Op de vijfde verdieping van het moderne complex aan de Buitenom ligt dit lichte en ruime 3-kamerappartement van ca. 113 m2. De woning beschikt over een strakke keuken, een moderne badkamer, twee ruime slaapkamers én een inpandige serre/loggia. Hier woon je letterlijk midden in het Stadshart: met een breed aanbod aan winkels, restaurants en lunchspots voor de deur, uitstekende ov-verbindingen én snelle toegang tot de uitvalswegen.

Kom gerust langs en ervaar zelf het comfort en de locatie van deze fijne woning!
Begane grond
Afgesloten portiek, entree woning op de vijfde verdieping, hal v.v. modern toilet met fontein. De woonkamer is ruim opgezet en geeft een heerlijk vrij uitzicht. De open keuken is netjes en v.v. 4 pits gas kookplaat, oven, koel-/vriescombinatie en vaatwasser. Het inpandige balkon is een genot om in te vertoeven. Aan de straatzijde treft u 2 ruime slaapkamers aan. De badkamer is modern uitgerust en v.v. inloopdouche, dubbel wastafelmeubel en handdoekradiator.

Kortom een licht en modern appartement op een fantastische locatie gelegen!

Details
- Type woning: appartement
- Bouwjaar 2006
- Woonoppervlak: ca. 104 m2
- De woning is gelegen op eigen grond
- De VvE is actief, de bijdrage is € 181,48,- per maand
- De woning is volledig geïsoleerd
- Verwarming en warm water middels cv-combi ketel (Nefit CW5, bouwjaar 2015)
- Berging in onderbouw aanwezig
- Mogelijkheid tot het huren van een parkeerplaats in de ondergelegen garage
- Oplevering in overleg

Lees meer

Kenmerken

Overdracht

Prijs per m2
€ 3.897
Aangeboden sinds
29 september 2025
Status
Verkocht onder voorbehoud
Aanvaarding
In overleg

Bouw

Soort appartement
Portiekflat, appartement
Soort bouw
Bestaande bouw
Bouwjaar
2006
Soort dak
Plat dak
Staat van onderhouden binnen
Uitstekend
Staat van onderhouden buiten
Uitstekend

Oppervlakte en inhoud

Inhoud van de woning
350 m3
Oppervlakte externe bergruimte
5 m2

Indeling

Aantal kamers
3
Aantal slaapkamers
2
Aantal woonlagen
1
Voorzieningen
Schuur/berging, lift, schuifpui

Buitenruimte

Balkon
Nee
Schuur/berging
Ja

Maandlasten berekenen

De maandlasten voor je woning bestaan uit meer dan alleen de hypotheeklasten. Hieronder vind je een overzicht van de bijkomende kosten en lasten. Zo weet je precies wat je huis per maand gaat kosten. En met de handige vergelijkers kun je ook nog eens snel de beste deals sluiten!

  • Kaart
  • Streetview