Verkocht

Govert Flinckplantsoen 24 2251 HJ Voorschoten

60m2
Wonen
3
Kamers
0m2
Perceel
1965
Bouwjaar
In een kleinschalig appartementencomplex in Voorschoten bevindt zich op de bovenste etage dit
lichte 3-kamer appartement met vrij uitzicht. Het appartement ligt in een groene omgeving nabij de Vliet, recreatiegebied Vlietland en het gezellige dorpscentrum met haar winkels en horecagelegenheden. Het appartement is verder voorzien van 2 balkons (ZO en NW) en grotendeels dubbele beglazing met kunststofkozijnen.



Begane grond
Begane grond:
Centrale entree met brievenbussen en bellentableau. Via de af te sluiten toegangsdeur komt u binnen in de entreehal die toegang biedt tot het trappenhuis en de bergingen. Via het trappenhuis bereikt u het appartement.

Appartement:
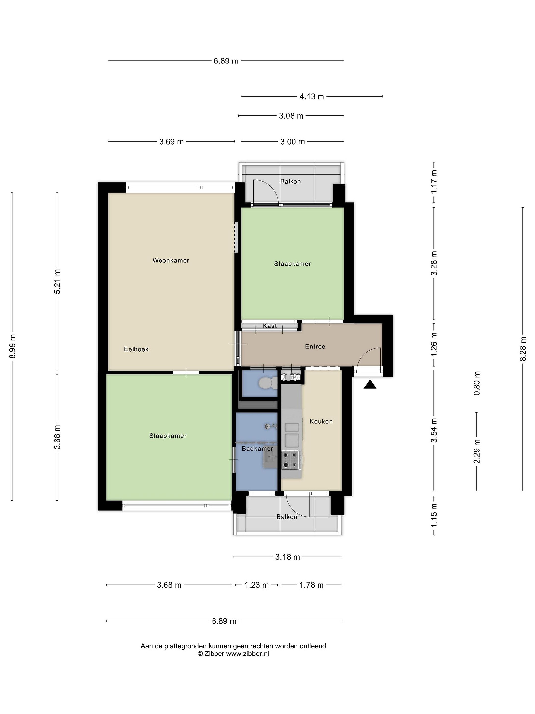
Entree appartement, hal, keuken met toegang naar het balkon aan de achterzijde, slaapkamer met toegang tot het balkon aan de voorzijde, toilet, woonkamer met vrij uitzicht en toegangsdeur naar slaapkamer, slaapkamer met badkamer ensuit. De badkamer is voorzien van douche en wastafelmeubel.

Details
- Bouwjaar ca. 1965
- Woonoppervlakte: ca. 60 m2
- Vrij uitzicht
- Goede groene ligging
- Grotendeels dubbelglas met kunststofkozijnen
- Bijdrage VVE € 247,95,- per maand, incl. voorschot stookkosten
- Berging op begane grond
- Oplevering: in overleg
- Ouderdoms-/materiaalclausule van toepassing

Lees meer

Verkoopgeschiedenis

Aangeboden sinds
30 oktober 2025
Verkoopdatum
2 maart 2026
Looptijd
4 maanden

Kenmerken

Overdracht

Prijs per m2
€ 5.317
Aangeboden sinds
30 oktober 2025
Status
Verkocht
Aanvaarding
In overleg

Bouw

Soort appartement
Portiekflat, appartement
Soort bouw
Bestaande bouw
Bouwjaar
1965
Soort dak
Plat dak
Staat van onderhouden binnen
Redelijk
Staat van onderhouden buiten
Goed

Oppervlakte en inhoud

Inhoud van de woning
199 m3
Oppervlakte externe bergruimte
5 m2
Oppervlakte gebouwgebonden buitenruimten
7 m2

Indeling

Aantal kamers
3
Aantal slaapkamers
2
Aantal woonlagen
1
Voorzieningen
Vve checklist, balkon, schuur/berging, glasvezel

Buitenruimte

Balkon
Ja
Schuur/berging
Ja

Maandlasten berekenen

De maandlasten voor je woning bestaan uit meer dan alleen de hypotheeklasten. Hieronder vind je een overzicht van de bijkomende kosten en lasten. Zo weet je precies wat je huis per maand gaat kosten. En met de handige vergelijkers kun je ook nog eens snel de beste deals sluiten!

  • Kaart
  • Streetview