Verkocht

Vinckenhofstraat 35 5913 EA Venlo

79m2
Wonen
3
Kamers
0m2
Perceel
1963
Bouwjaar
Dit ruime en goed onderhouden appartement is gelegen op een geliefde locatie in Venlo en combineert comfortabel wonen met een prachtig uitzicht. Het appartement bevindt zich op de 3e verdieping van een verzorgd appartementencomplex en beschikt over twee slaapkamers, een zeer royale woonkamer en een eigen berging in het souterrain. In 2023 is het appartement grotendeels gemoderniseerd met o.a. een lichte, neutrale PVC-vloer, wat zorgt voor een frisse en eigentijdse uitstraling. Dankzij de grote raampartijen aan zowel de voor- als achterzijde geniet u van veel natuurlijke lichtinval en een vrij uitzicht over de stad. Alle dagelijkse voorzieningen, groen en uitvalswegen bevinden zich in de directe omgeving, waardoor dit appartement een ideale woonplek is voor wie centraal en comfortabel wil wonen.

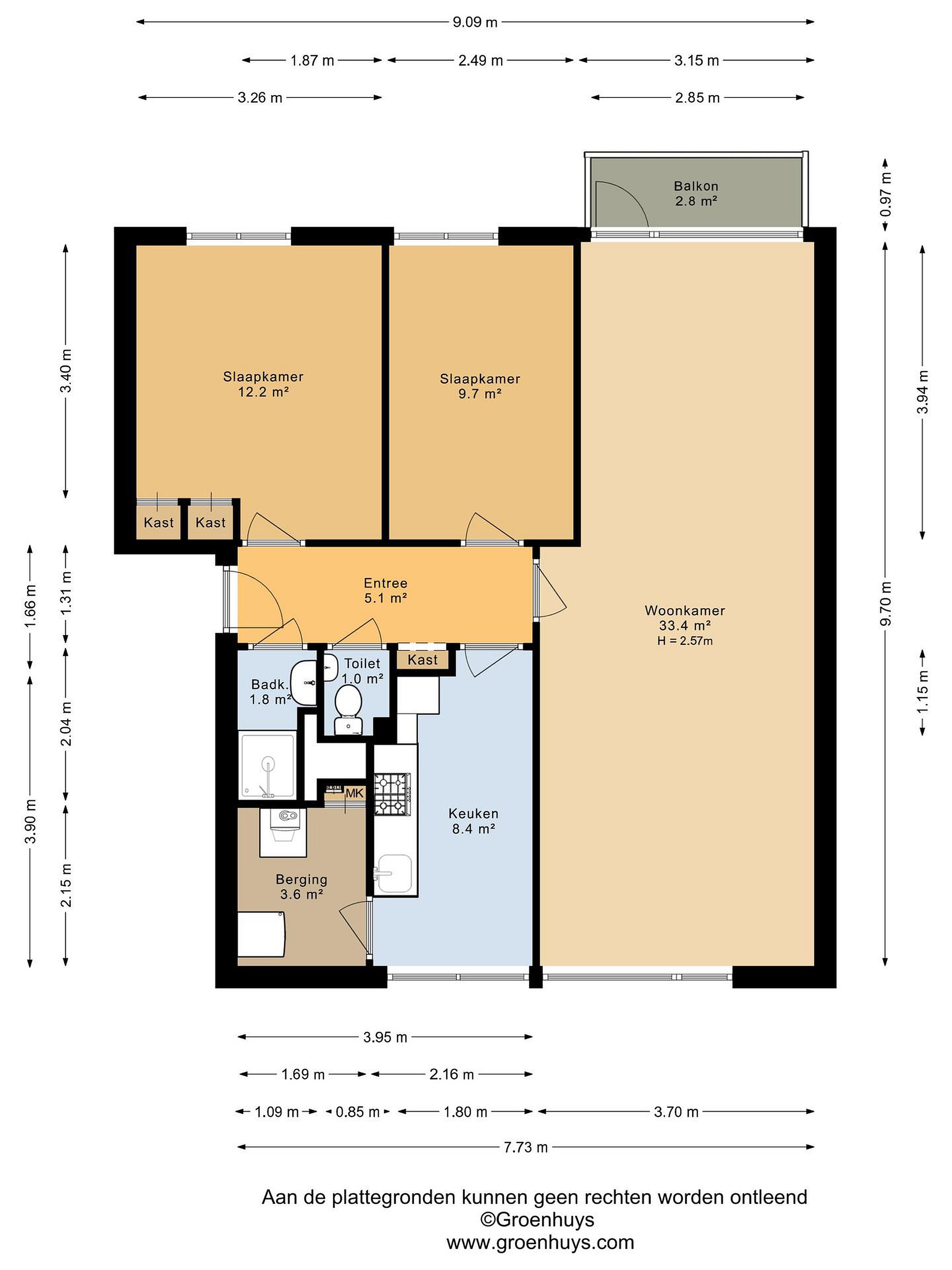
Indeling:

Begane grond:
Centrale entree met brievenbussen en beltableau. Vanuit de hal is er toegang tot het souterrain waar zich de grote eigen berging (ca. 21m2) bevindt.

3e verdieping:
Het appartement is gelegen op de 3e verdieping. De entree/ hal met garderobenis geeft toegang tot de badkamer, de aparte toiletruimte, de keuken, de woonkamer en 2 slaapkamers. Nagenoeg het gehele appartement is in 2023 voorzien van een lichte, neutrale PVC-vloer.
Slaapkamer 1 is ca. 12m2 groot en voorzien van een nieuw kunststof kozijn met HR++ glas. Tevens is deze slaapkamer nog voorzien van de originele muurkast.
Slaapkamer 2 is ca. 10m2 groot.
De geheel betegelde badkamer is voorzien van een douchecabine en wastafel met spiegelkast. De toiletruimte heeft een staand closet en fonteintje.
De keuken (ca. 8,5m2) is voorzien van een tegelvloer en is ingericht met een 4-pitsgasfornuis, afzuigkap, oven, vaatwasser en een inbouwkoelkast. Vanuit de keuken is er toegang tot de ruime bijkeuken (ca. 3,6m2). Hier bevinden zich de witgoedaansluitingen en de combi CV-ketel (Nefit 2017, eigendom).
De zeer ruime woonkamer heeft aan de voor- en achterzijde een groot raampartij voor veel lichtinval en aan weerszijden een mooi uitzicht over Venlo. De woonkamer is ca. 33,5m2 groot. Aan de achterzijde is er middels een loopdeur toegang tot het balkon. Het balkon (ca. 3m2) is georiënteerd op het oosten.

Algemeen:
Bouwjaar 1963, inhoud ca. 253m3, gebruiksoppervlakte wonen ca. 79m2, externe bergruimte ca. 21m2.
- Grotendeels voorzien van houten kozijnen met dubbelglas, één raam is voorzien van kunststof kozijnen met HR++-glas.
- In 2023 is het appartement voorzien van een PVC-vloer.
- Combi CV-ketel Nefit 2017 - eigendom.
- Servicekosten bedragen ca. € 185,- per maand. Hier is onder meer inbegrepen de opstalverzekering en reservering groot onderhoud.

Het appartement is gelegen in een geliefde woonomgeving met alle dagelijkse voorzieningen zoals een supermarkt en slager op loopafstand. Verder bevinden zich in de directe nabijheid een basisschool en het Burgemeester Bergerpark. Het centrum van Venlo en natuurgebied de Grote Heide is gelegen op 5 minuten fietsafstand. De uitvalswegen A67/A73 zijn met 5 autominuten te bereiken.

Vraagprijs: € 259.000,- k.k.
Lees meer

Verkoopgeschiedenis

Aangeboden sinds
14 januari 2026
Verkoopdatum
12 maart 2026
Looptijd
2 maanden

Kenmerken

Overdracht

Prijs per m2
€ 3.278
Aangeboden sinds
14 januari 2026
Status
Verkocht
Aanvaarding
In overleg

Bouw

Soort appartement
Portiekflat, appartement
Soort bouw
Bestaande bouw
Bouwjaar
1963
Soort dak
Plat dak
Staat van onderhouden binnen
Goed
Staat van onderhouden buiten
Goed

Oppervlakte en inhoud

Inhoud van de woning
253 m3
Oppervlakte externe bergruimte
21 m2
Oppervlakte gebouwgebonden buitenruimten
3 m2

Indeling

Aantal kamers
3
Aantal slaapkamers
2
Aantal woonlagen
1
Voorzieningen
Vve checklist, balkon, schuur/berging

Buitenruimte

Balkon
Ja
Schuur/berging
Ja

Maandlasten berekenen

De maandlasten voor je woning bestaan uit meer dan alleen de hypotheeklasten. Hieronder vind je een overzicht van de bijkomende kosten en lasten. Zo weet je precies wat je huis per maand gaat kosten. En met de handige vergelijkers kun je ook nog eens snel de beste deals sluiten!

  • Kaart
  • Streetview