Verkocht

Azuurweg 298 5044 KH Tilburg

69m2
Wonen
3
Kamers
0m2
Perceel
1965
Bouwjaar
Starters opgelet! Een instap klaar driekamerappartement gelegen op de eerste verdieping aan de Azuurweg in Tilburg. Bent u op zoek naar sfeer, dan bent u hier aan het juiste adres.

Dit instapklare appartement is gelegen in de gewilde buurt Wandelbos Noord, op loopafstand van het prachtige Wandelbos met een grote speeltuin, kinderboerderij en restaurant De Zeven Geitjes. Voor de dagelijkse boodschappen zijn de winkelcentra Paletplein en Westermarkt vlakbij. Daarnaast is het appartement gunstig gelegen ten opzichte van de uitvalswegen, zoals de N282 richting Breda en de N261 richting Waalwijk. Het treinstation 'Universiteit' ligt op korte afstand, met een snelle verbinding naar Den Bosch en Breda binnen 30 minuten.


Bouwjaar: 1965
Inhoud: circa 272 m3
Woonoppervlakte: circa 70 m2
Balkon: circa 8 m2
Berging: circa 12 m2
Verwarming: Blokverwarming
Energielabel: C


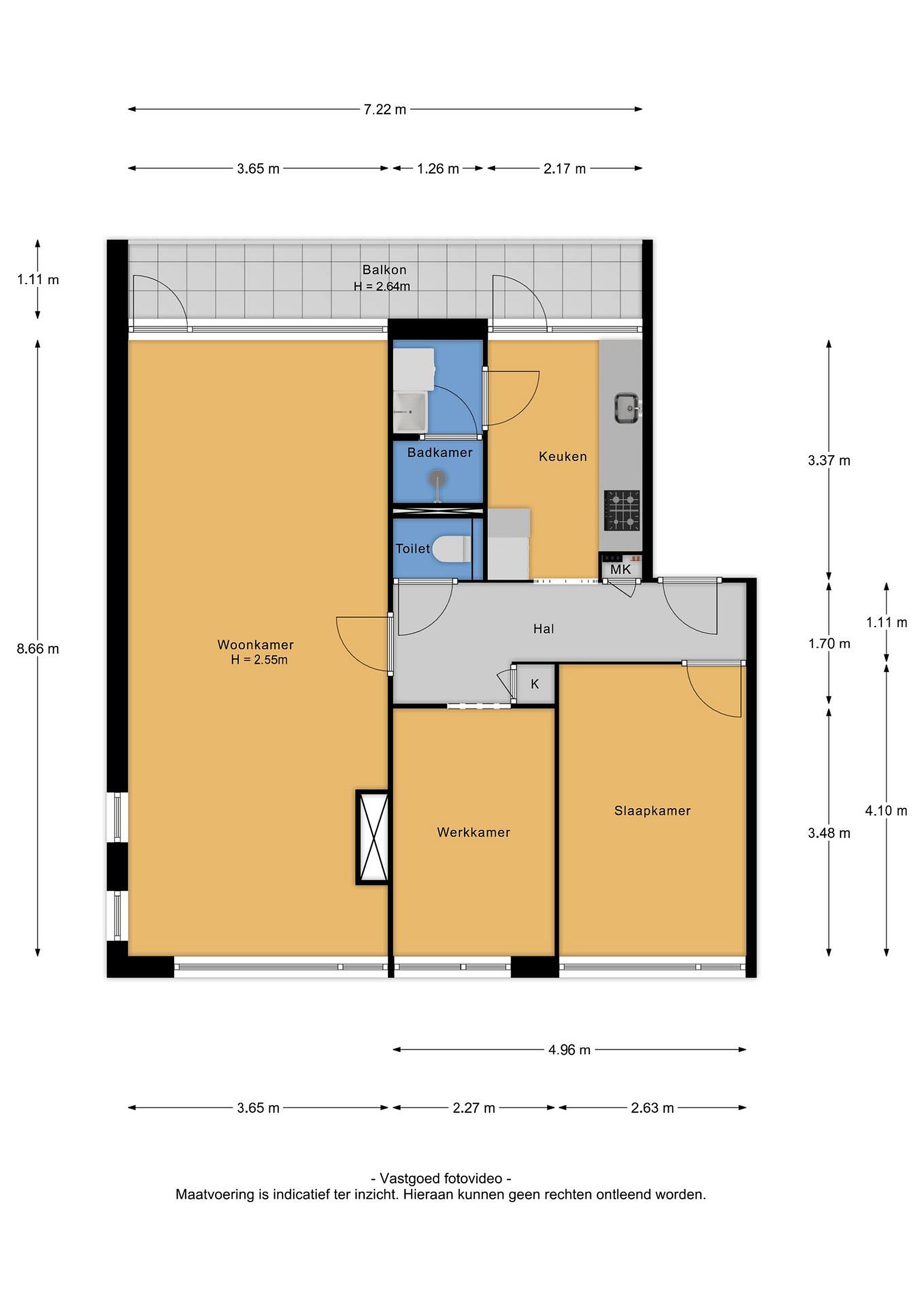
Indeling:

Entree is uitsluitend toegankelijk voor bewoners en bezoekers met toegang via de intercominstallatie. In de hal bevinden zich de brievenbussen, de trapopgang en de ruime berging. Daarnaast is er gelegenheid tot vrij parkeren voor de deur op het parkeerterrein en bijbehorende parkeerplaatsen.

Het appartement zelf is gelegen op de eerste verdieping. Bij binnenkomst heeft u direct toegang tot alle ruimtes via de hal die voorzien is van een mooie houten laminaatvloer.

Woonkamer en keuken:
Dit appartement beschikt over een ruime woonkamer, voorzien van een houten pvc vloer. Dankzij de grote raam partijen is de woonkamer licht en kijkt u heerlijk weg. De keuken is zeer praktisch met een apothekerskast, inclusief alle inbouwapparatuur zoals nieuwe koelkast, inductie kookplaat, combi-oven, rvs afzuigkap en v.i. vaatwasser. Het balkon is ook bereikbaar via de keuken. Buitendeur is voorzien van een schuif hordeur. De woonkamer is tevens voorzien van airconditioning uit 2024 en een elektrische inbouwkachel die voor een heerlijke sfeer zorgt. De muren zijn voorzien van strak stucwerk.

Slaapkamers en badkamer:
Aan de achterzijde van het appartement bevinden zich twee ruime en lichte slaapkamers, beide zeer netjes afgewerkt met draai-/kiepramen en nette pvc vloer. 1 slaapkamer die nu dienst doet als kantoor is voorzien van infrarood verwarming.
De nette en praktische badkamer is voorzien van een luxe betegelde douche en een op maat gemaakt wastafelmeubel en spiegel met ingebouwde verlichting en verwarming.

Balkon:
Vanuit de woonkamer en de keuken kunt u het grote balkon bereiken. Het balkon is voorzien van een elektrisch zonnescherm in donkergroene stof en een ijzeren beveiliging voor kat of hond.

Berging:
In het souterrain vind je een zeer ruime berging van circa 12 m2 – ideaal voor het opslaan van spullen. Voorzien van elektra en opbergkasten. Deze berging is bovendien ruimer dan de andere bergingen in het complex.

Bijzonderheden:
- Ideale ligging
- Strak stucwerk
- Instap klaar appartement
- Airconditioning 2024
- Balkon ideaal voor katten en honden
- Moderne keuken
- Mooie badkamer
- Zeer ruime berging
- Vrij uitzicht
- Vrij parkeren
- Service kosten € 270,98 per maand inclusief water
- * NEN 2580 meetnorm

Wil je deze mooie woning bezichtigen? Bel of mail ons dan voor een afspraak:

Tel: 013-7620220
Mail: info@mtbmakelaardij.nl

* De NEN 2580 meetnorm is een eenduidige meetnorm, waarbij met bepaalde richtlijnen rekening gehouden wordt. Zo wordt o.a. een zolder zonder vaste trap of met een lichtoppervlakte (bv dakraam) kleiner dan 0,5 m2 niet tot de woonoppervlakte gerekend. Hierdoor kan de woonoppervlakte soms kleiner lijken dan de daadwerkelijke vloeroppervlakte en kleiner lijken dan bij vergelijkbare woningen waar de makelaar de meetnorm niet toe heeft gepast. Ondanks het feit dat de meetnorm verplicht is, hanteren niet alle makelaars consequent de norm. MTB Makelaardij laat haar woningen inmeten door een erkend bedrijf. Het meetrapport van deze woning is dan ook, indien gewenst, ter inzage.



Lees meer

Verkoopgeschiedenis

Aangeboden sinds
3 oktober 2025
Verkoopdatum
8 december 2025
Looptijd
2 maanden

Kenmerken

Overdracht

Prijs per m2
€ 4.023
Aangeboden sinds
3 oktober 2025
Status
Verkocht
Aanvaarding
In overleg

Bouw

Soort appartement
Portiekflat, appartement
Soort bouw
Bestaande bouw
Bouwjaar
1965
Soort dak
Plat dak
Staat van onderhouden binnen
Uitstekend
Staat van onderhouden buiten
Uitstekend

Oppervlakte en inhoud

Inhoud van de woning
225 m3
Oppervlakte externe bergruimte
12 m2
Oppervlakte gebouwgebonden buitenruimten
8 m2

Indeling

Aantal kamers
3
Aantal slaapkamers
2
Aantal woonlagen
1
Voorzieningen
Vve checklist, balkon, schuur/berging, glasvezel, airconditioning

Buitenruimte

Balkon
Ja
Schuur/berging
Ja

Maandlasten berekenen

De maandlasten voor je woning bestaan uit meer dan alleen de hypotheeklasten. Hieronder vind je een overzicht van de bijkomende kosten en lasten. Zo weet je precies wat je huis per maand gaat kosten. En met de handige vergelijkers kun je ook nog eens snel de beste deals sluiten!

  • Kaart
  • Streetview