Onder optie

Lange Wolstraat 4006 4524 CA Sluis

45m2
Wonen
1
Kamers
0m2
Perceel
2024
Bouwjaar
33 MODERNE APPARTEMENTEN

De appartementen zijn zeer centraal gelegen op een bruisende locatie in Sluis. Ze zijn zeer energiezuinig.

MODERN
Een frisse en hedendaagse uitstraling, goed doordachte ruimtes en van vele moderne gemakken voorzien. Een tijdloze architectuur met witgekaleide muren en onderhoudsarme materialen.

ENERGIE
Gebruik van een warmtepomp, zonnepanelen en hoge isolatiewaarden maken Woolridge 2 bijna energieneutraal. Dat scheelt flink in de energierekening!

DIVERS
Een divers aantal appartementen met uiteenlopende oppervlaktes. Speciaal gebouwd voor wie een fijne plek zoekt voor zichzelf, voor jonge koppels die beginnen aan hun toekomst, maar ook voor wie dat te grote huis liever inruilt voor een interessante plek in een levendig stadje.

Begane grond
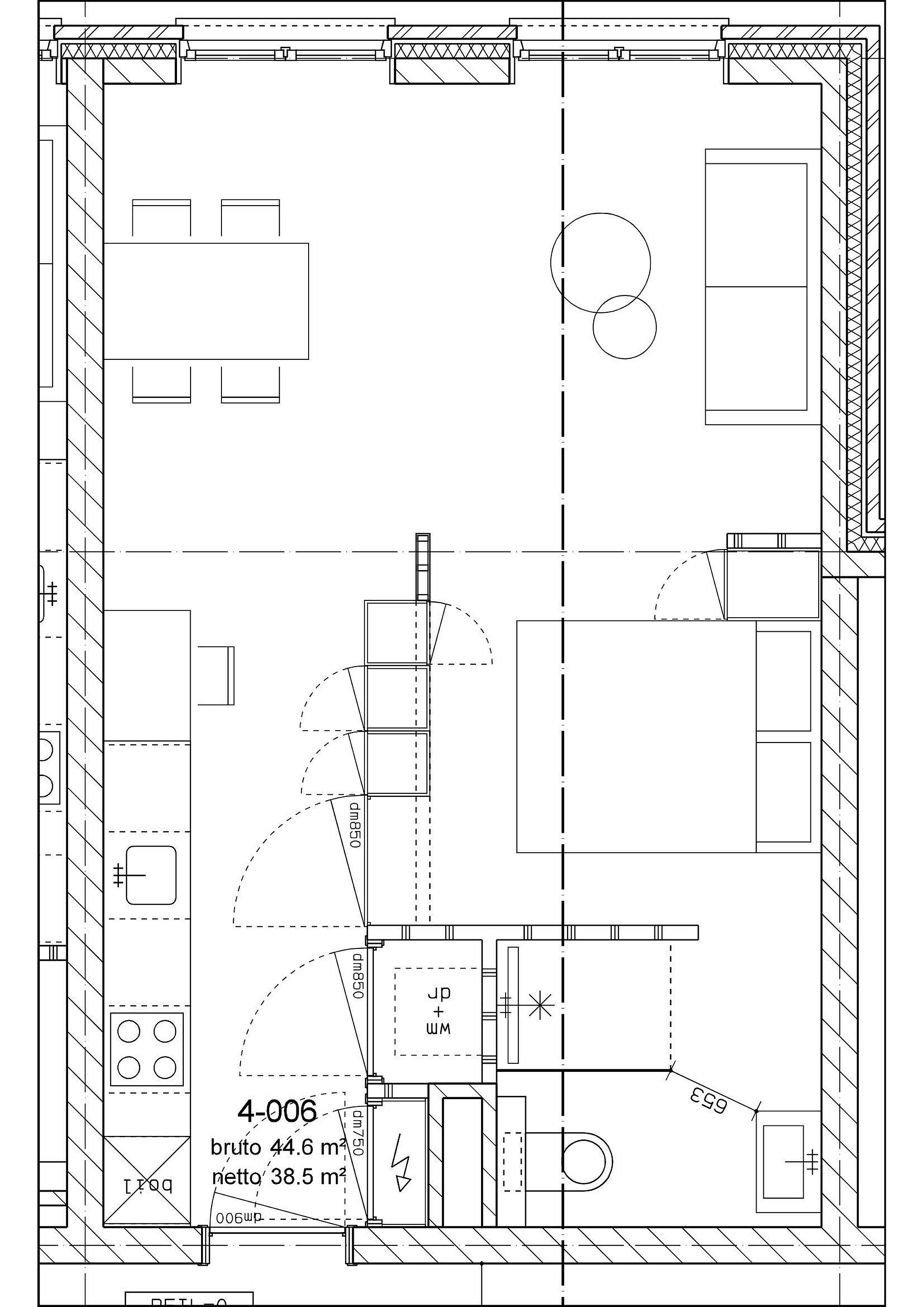
Bij binnenkomst sta je oog in oog met de moderne keuken, die is uitgerust met hedendaagse apparatuur, zoals een vaatwasser, combimagnetron, koelkast en inductiekookplaat met afzuigkap, waardoor koken een plezier wordt. Door te kiezen voor een zwarte mengkraan en spoelbak krijgt de keuken een hotelwaardige uitstraling. Naast het keukenblok is er een kast voorzien voor plaatsing van witgoed.

Tegenover de keuken is een smaakvol ingerichte badkamer, waar zwarte elementen de boventoon voeren. Bovendien is de badkamer voorzien van alle gemakken zoals een inloopdouche, zwevend toilet, elektrische handdoekradiator, wastafelmeubel met waskom en spiegel.

De verdere inrichting kan geheel naar eigen inzicht en smaak worden uitgevoerd. Er zijn diverse opties waar gebruik van gemaakt kan worden.

Dit knusse appartement ligt op de begane grond aan de achterzijde van de Lange Wolstraat in Sluis. Aan lichtinval geen gebrek door de hoge ramen voorzien van draai-/kiepsystemen.

Neem vandaag nog contact met ons op om de mogelijkheden te bespreken. Wensen en dromen zijn er om gerealiseerd te worden. Wij helpen je daar graag bij!

Details
- Nieuwbouwproject geschikt voor jong tot oud
- Terras achter de woning
- Energiezuinig (volledig gasloos)
- Zonnepanelen individueel per appartement
- Volledig ingerichte keuken en badkamer
- Vele opties voor verdere personalisatie
- Lift aanwezig
- Centrale ligging in het centrum van Sluis
- Voorzieningen zoals apotheek, supermarkt, huisartsenpraktijk, tandarts, restaurants en winkels op loopafstand
- Openbaar vervoer op loopafstand

Lees meer

Kenmerken

Overdracht

Aangeboden sinds
5 september 2025
Status
Beschikbaar
Aanvaarding
In overleg

Bouw

Soort appartement
Portiekflat, appartement
Soort bouw
Nieuwbouw
Bouwjaar
2024
Staat van onderhouden binnen
Uitstekend
Staat van onderhouden buiten
Uitstekend

Oppervlakte en inhoud

Indeling

Aantal kamers
1
Aantal slaapkamers
0
Aantal woonlagen
1
Voorzieningen
Schuur/berging, ventilatie, lift

Buitenruimte

Balkon
Nee
Schuur/berging
Ja

Maandlasten berekenen

De maandlasten voor je woning bestaan uit meer dan alleen de hypotheeklasten. Hieronder vind je een overzicht van de bijkomende kosten en lasten. Zo weet je precies wat je huis per maand gaat kosten. En met de handige vergelijkers kun je ook nog eens snel de beste deals sluiten!

  • Kaart
  • Streetview