Verkocht

Maasboulevard 185 3114 HD Schiedam

89m2
Wonen
3
Kamers
0m2
Perceel
1995
Bouwjaar
Wonen met uitzicht over de Nieuwe Maas

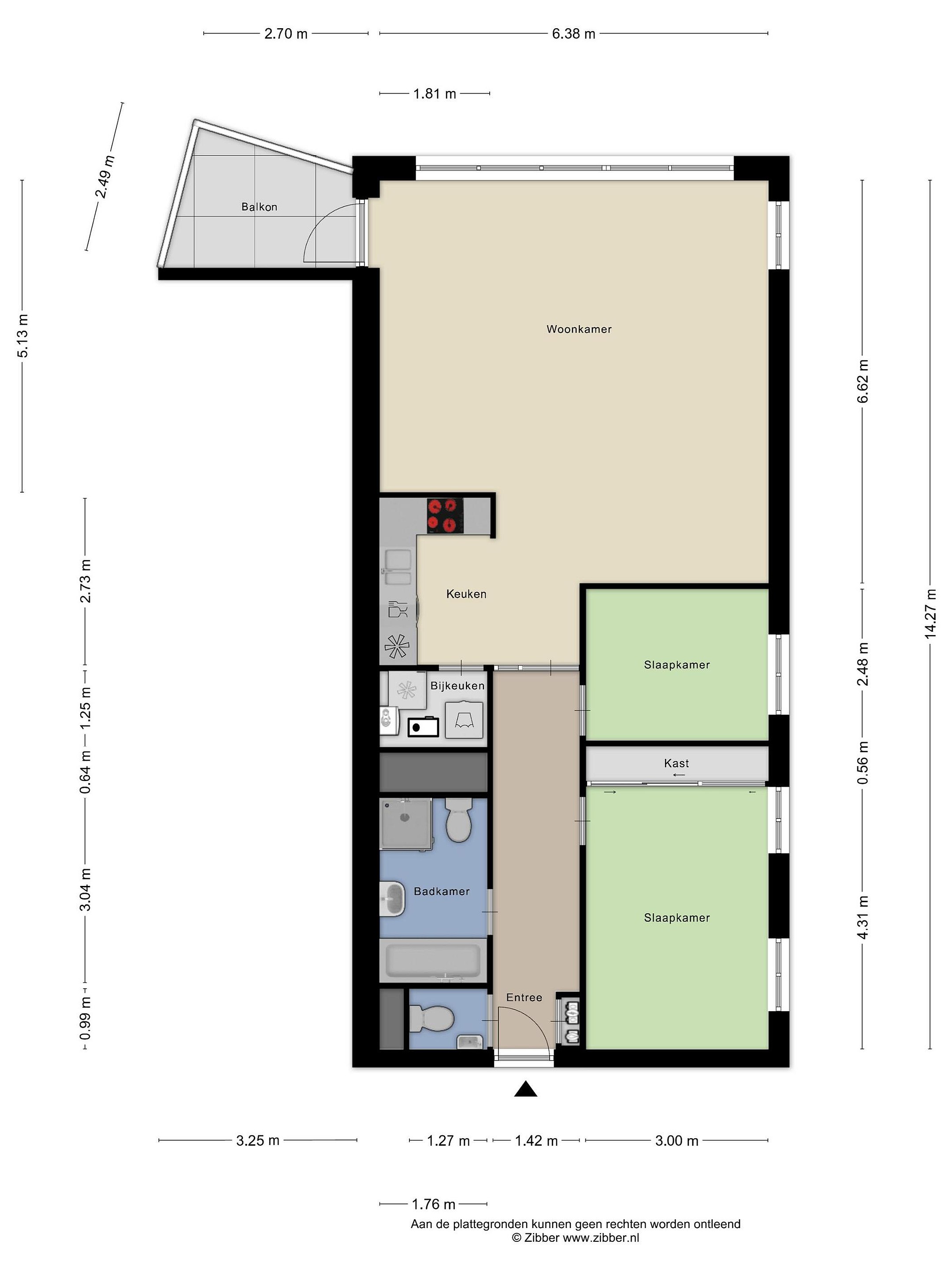
Aan de Maasboulevard in Schiedam ligt dit nette 3-kamerappartement op de tiende verdieping van toren “Maaszicht”. Vanuit de woonkamer en het balkon heeft u een prachtig uitzicht over de Nieuwe Maas en het aangrenzende park.

Een lichte woning met een praktische indeling, eigen parkeerplaats in de afgesloten parkeergarage en berging in de onderbouw.

Ruim en licht wonen
De woonkamer vormt het hart van het appartement. De grote ramen zorgen voor veel daglicht en bieden vrij uitzicht over de Nieuwe Maas en het park. Het balkon ligt op het zuidwesten.

Praktische indeling
De keuken in hoekopstelling is voorzien van diverse inbouwapparaten, waaronder een koelkast, combi-oven, inductiekookplaat, vaatwasser en afzuigkap. Aangrenzend bevindt zich een bijkeuken met wasmachineaansluiting, de CV installatie en de mechanische ventilatie.
Er zijn twee slaapkamers: een ruime hoofdslaapkamer en een tweede kamer die goed te gebruiken is als werkkamer, logeerkamer of hobbyruimte. De badkamer beschikt over een douche, ligbad, wastafel en 2e toilet. Er is tevens een separaat toilet.

Ligging
Het appartementencomplex “Maaszicht” ligt direct aan Park Maasboulevard en de Nieuwe Maas, op korte afstand van winkels, openbaar vervoer en het centrum van Schiedam. Via de nabijgelegen uitvalswegen zijn ook Rotterdam en Vlaardingen goed bereikbaar.

Details
- Woonoppervlakte: ca. 89 m2
- Balkon: ca. 6 m2 (zuidwest)
- Berging in de onderbouw: ca. 6 m2
- Eigen parkeerplaats in de afgesloten parkeergarage
- Erfpacht afgekocht tot 31 oktober 2042 (lopend tot 2091)
- Actieve VvE
- Servicekosten: € 161,34 per maand
- CV-combiketel 2011
- In de koopovereenkomst zal een niet zelfbewoningsclausule opgenomen worden.

Biedlogboek
Vanaf 1 januari 2023 zijn makelaars wettelijk verplicht een biedlogboek bij te houden bij de verkoop van bestaande woningen (en wanneer de koper en/of de verkoper een particulier is). Biedingen kunt u per die datum, en indien gewenst, nog steeds mondeling met ons bespreken maar dient u daarna digitaal aan ons te bevestigen via Eerlijk Bieden.

Toelichtingsclausule BBMI/NEN2580
De meetinstructie is gebaseerd op de BBMI/NEN2580. De meetinstructie is bedoeld om een meer eenduidige manier van meten toe te passen voor het geven van een indicatie van de gebruiksoppervlakte. De meetinstructie sluit verschillen in meetuitkomsten niet volledig uit, door bijvoorbeeld interpretatieverschillen, afrondingen of beperkingen bij het uitvoeren van de meting.

Rechtsgeldige koopovereenkomst pas ná ondertekening
Een mondelinge overeenstemming tussen de particuliere verkoper en de particuliere koper is niet rechtsgeldig. Met andere woorden: er is geen koop. Er is pas sprake van een rechtsgeldige koop als de particuliere verkoper en de particuliere koper de koopovereenkomst hebben ondertekend. Dit vloeit voort uit artikel 7:2 Burgerlijk Wetboek. Een bevestiging van de mondelinge overeenstemming per e-mail of een toegestuurd concept van de koopovereenkomst wordt overigens niet gezien als een ‘ondertekende koopovereenkomst’.

Deze informatie is met zorg samengesteld, maar voor de juistheid ervan kan door Moerman & De Jong Makelaars geen aansprakelijkheid worden aanvaard, noch kan aan de vermelde gegevens enig recht worden ontleend. Nadrukkelijk is vermeld dat deze informatieverstrekking niet als een aanbieding of offerte mag worden beschouwd.





Lees meer

Verkoopgeschiedenis

Aangeboden sinds
9 maart 2026
Verkoopdatum
27 maart 2026
Looptijd
18 dagen

Kenmerken

Overdracht

Prijs per m2
€ 4.775
Aangeboden sinds
9 maart 2026
Status
Verkocht
Aanvaarding
In overleg

Bouw

Soort appartement
Portiekflat, appartement
Soort bouw
Bestaande bouw
Bouwjaar
1995
Soort dak
Plat dak
Staat van onderhouden binnen
Goed
Staat van onderhouden buiten
Goed

Oppervlakte en inhoud

Inhoud van de woning
295 m3
Oppervlakte externe bergruimte
6 m2
Oppervlakte gebouwgebonden buitenruimten
6 m2

Indeling

Aantal kamers
3
Aantal slaapkamers
2
Aantal woonlagen
1
Voorzieningen
Vve checklist, balkon, schuur/berging, lift

Buitenruimte

Balkon
Ja
Schuur/berging
Ja

Maandlasten berekenen

De maandlasten voor je woning bestaan uit meer dan alleen de hypotheeklasten. Hieronder vind je een overzicht van de bijkomende kosten en lasten. Zo weet je precies wat je huis per maand gaat kosten. En met de handige vergelijkers kun je ook nog eens snel de beste deals sluiten!

  • Kaart
  • Streetview