Verkocht OV

Hoogstraat 135C 3111 HE Schiedam

48m2
Wonen
2
Kamers
0m2
Perceel
1983
Bouwjaar
Instapklaar, in 2019 gemoderniseerd appartement, gelegen in het historische stadscentrum van Schiedam met tal van gezellige barretjes en restaurantjes om de hoek en toch voorzien van een rustig gelegen balkon op het westen aan gezamenlijke binnentuin.

De woning is in 2019 onder andere voorzien van een nieuwe keuken en een nieuwe badkamer, laminaatvloer en CV ketel.

Er is een eigen berging op de begane grond en mogelijkheid om de fiets te stallen in de binnentuin.

Zie jij jezelf al wonen aan de Hoogstraat 135c? Neem dan snel contact op met Moerman & De Jong Makelaars voor een bezichtiging!
Begane grond
Eerste verdieping:
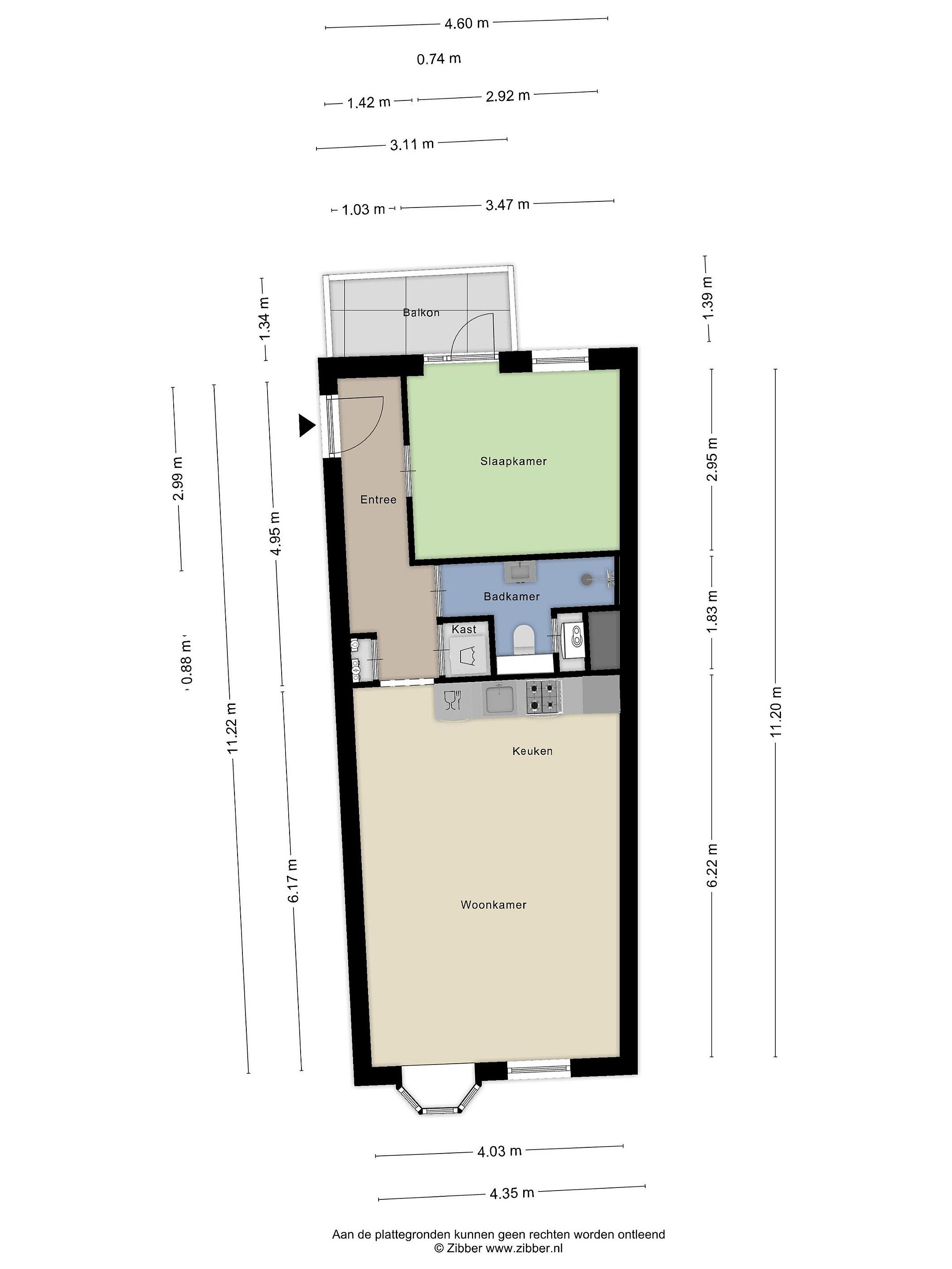
Entree/hal voorzien van meterkast en grote kast met wasmachineaansluiting.
De sfeervolle woonkamer is gelegen aan de Hoogstraat-zijde en voorzien van laminaatvloer, een leuke erker en een open keuken welke is voorzien van een nette keukeninrichting en diverse inbouwapparatuur.
De slaapkamer is gelegen aan de achterzijde en voorzien van een laminaatvloer. Vanuit de slaapkamer is er toegang tot het balkon.
Moderne, geheel betegelde badkamer met inloopdouche, wastafelmeubel en toilet.


Details
- Bouwjaar 1983
- Woonoppervlak 48 m2
- Eigen berging in de onderbouw
- Verwarming en warm water middels CV combiketel - 2019
- Geheel voorzien van dubbel glas (grotendeels HR glas)
- Geheel voorzien van een laminaatvloer
- Energielabel B
- Vve bijdrage € 112,73 per maand
- In de koopovereenkomst zullen een ouderdomsclausule, asbestclausule en niet zelfbewoningsclausule opgenomen worden.
- Oplevering kan op korte termijn

Biedlogboek
Vanaf 1 januari 2023 zijn makelaars wettelijk verplicht een biedlogboek bij te houden bij de verkoop van bestaande woningen (en wanneer de koper en/of de verkoper een particulier is). Biedingen kunt u per die datum, en indien gewenst, nog steeds mondeling met ons bespreken maar dient u daarna digitaal aan ons te bevestigen via Eerlijk Bieden.

Toelichtingsclausule BBMI/NEN2580
De meetinstructie is gebaseerd op de BBMI/NEN2580. De meetinstructie is bedoeld om een meer eenduidige manier van meten toe te passen voor het geven van een indicatie van de gebruiksoppervlakte. De meetinstructie sluit verschillen in meetuitkomsten niet volledig uit, door bijvoorbeeld interpretatieverschillen, afrondingen of beperkingen bij het uitvoeren van de meting.

Rechtsgeldige koopovereenkomst pas ná ondertekening
Een mondelinge overeenstemming tussen de particuliere verkoper en de particuliere koper is niet rechtsgeldig. Met andere woorden: er is geen koop. Er is pas sprake van een rechtsgeldige koop als de particuliere verkoper en de particuliere koper de koopovereenkomst hebben ondertekend. Dit vloeit voort uit artikel 7:2 Burgerlijk Wetboek. Een bevestiging van de mondelinge overeenstemming per e-mail of een toegestuurd concept van de koopovereenkomst wordt overigens niet gezien als een ‘ondertekende koopovereenkomst’.

Deze informatie is met zorg samengesteld, maar voor de juistheid ervan kan door Moerman & De Jong Makelaars geen aansprakelijkheid worden aanvaard, noch kan aan de vermelde gegevens enig recht worden ontleend. Nadrukkelijk is vermeld dat deze informatieverstrekking niet als een aanbieding of offerte mag worden beschouwd.









Lees meer

Kenmerken

Overdracht

Prijs per m2
€ 4.990
Aangeboden sinds
12 september 2025
Status
Verkocht onder voorbehoud
Aanvaarding
In overleg

Bouw

Soort appartement
Portiekflat, appartement
Soort bouw
Bestaande bouw
Bouwjaar
1983
Soort dak
Zadeldak
Staat van onderhouden binnen
Goed
Staat van onderhouden buiten
Goed

Oppervlakte en inhoud

Inhoud van de woning
158 m3
Oppervlakte externe bergruimte
6 m2
Oppervlakte gebouwgebonden buitenruimten
4 m2

Indeling

Aantal kamers
2
Aantal slaapkamers
1
Aantal woonlagen
1
Voorzieningen
Vve checklist, balkon, schuur/berging

Buitenruimte

Balkon
Ja
Schuur/berging
Ja

Maandlasten berekenen

De maandlasten voor je woning bestaan uit meer dan alleen de hypotheeklasten. Hieronder vind je een overzicht van de bijkomende kosten en lasten. Zo weet je precies wat je huis per maand gaat kosten. En met de handige vergelijkers kun je ook nog eens snel de beste deals sluiten!

  • Kaart
  • Streetview