Ruygeplaat 155 3181 ZS Rozenburg

62m2
Wonen
3
Kamers
0m2
Perceel
1967
Bouwjaar
Starters opgelet! Instapklaar geheel gerenoveerd gasloos 3-kamerappartement met 2 balkons.

Op zoek naar een fris en licht 3-kamer appartement met uitzicht op groen? Dan is dit recent volledig gerenoveerde appartement op de tweede verdieping aan de Ruygeplaat 155 in Rozenburg misschien wel precies wat je zoekt.

Deze woning is volledig voorzien van kunststof kozijnen met dubbel glas, heeft aan beide zijden een balkon én beschikt over een eigen berging op de begane grond. Ideaal voor starters die op zoek zijn naar comfort, licht en een groene woonomgeving.

In de nabije omgeving zijn er diverse voorzieningen zoals winkels, openbaar vervoer, scholen en sportverenigingen. Parkeren kan gewoon gratis voor de deur. En doordat het appartement op de tweede verdieping ligt, heb je zowel een vrij uitzicht als veel privacy.

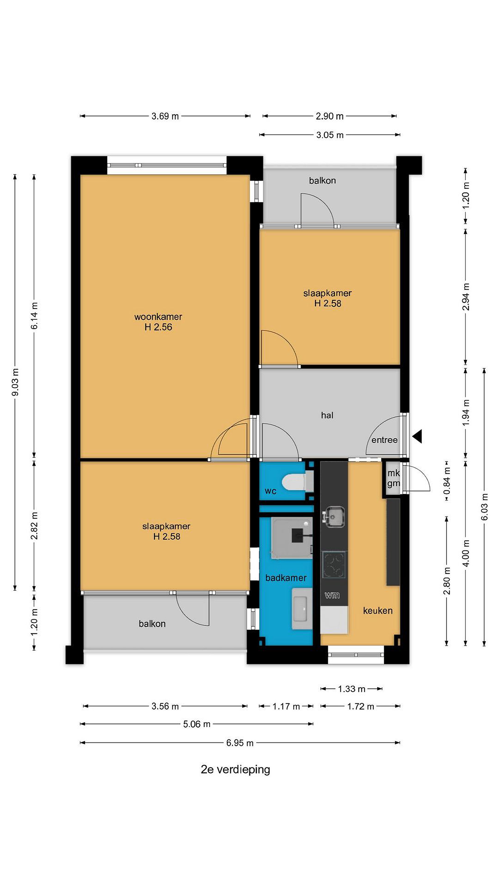
Voor de exacte indeling en indicatieve maatvoering verwijzen wij je graag naar de plattegronden achter de fotoreportage.

Indeling:

Begane grond:
Bellenplateau met ingang complex.

Tweede verdieping:
Bij binnenkomst stap je in een nette hal met toegang tot alle vertrekken. De woonkamer is ruim opgezet, met genoeg plek voor een zit- en eethoek en een groot raam dat zorgt voor veel daglicht én uitzicht op het groene park aan de voorzijde. Een mooie doorgelegde laminaatvloer zorgt ervoor dat alles op elkaar afgestemd is.

Aansluitend aan de woonkamer ligt één van de twee balkons: hier kun je in de ochtend heerlijk in het zonnetje (zuidoosten) zitten.

Aan de voorzijde bevindt zich het tweede balkon op het noordwesten, waar je juist later op de dag nog even kunt genieten.

De dit jaar compleet vernieuwde moderne keuken is praktisch ingericht en voorzien van inbouwapparatuur, waaronder een inductiekookplaat met ingebouwde afzuiging, combi-oven, vaatwasser, en een koel/vriescombinatie. Het geheel is volledig afgewerkt met een betegelde muur, kunststof aanrechtblad en verlaagd plafond met spotjes. Tevens is hier de wasmachineopstelling.

De grootste slaapkamer bevindt zich aan de voorzijde van het appartement, met directe toegang tot het balkon. Deze kamer is ruim genoeg voor een tweepersoonsbed én kledingkast.

De tweede slaapkamer ligt aan de achterzijde en is bijvoorbeeld perfect als werkkamer, kinderkamer of inloopkast te gebruiken.

Vanuit de grote slaapkamer bereik je de volledig vernieuwde badkamer.
Hier is alles aanwezig wat je nodig hebt: een ruime massage/regen douche, wastafelmeubel, design radiator en spiegel met verlichting.
De muren zijn betegeld met kunststof tegels. Dit geeft de hele badkamer een chique indruk.

Modern, separaat en volledig betegeld toilet.

Op de begane grond van het complex beschik je over een eigen afgesloten berging.

De ligging van het appartement is rustig, aan een groene parkstrook met veel bomen en grasvelden.

Bijzonderheden:
- Woonoppervlakte : 62,4m2
- Volledig gerenoveerd
- Bouwjaar: 1967
- Twee balkons aanwezig
- 80 liter elektrische boiler ( eigendom )
- Drempelloos gelegd laminaat
- Eigen berging op begane grond
- Geheel v.v. kunststof kozijnen met dubbele beglazing
- Maandelijkse bijdrage VvE € 132,33
- Voorschot stookkosten € 125,00 per maand
- De gehele inboedel is ter overname
- Koper aanvaardt de objectinformatie met aanvullende clausules
- Oplevering: in overleg, kan desgewenst snel

Je kunt een bezichtiging aanvragen door op funda het formulier in te vullen. Er wordt dan contact met je opgenomen om een afspraak in te plannen.

De vermelde informatie is van algemene aard en is niet meer dan een uitnodiging om de woning te bezichtigen of om in onderhandeling te treden. Hoewel deze tekst en plattegrond met zorg zijn samengesteld zijn wij niet aansprakelijk voor eventuele onjuistheden. De toegepaste Meetinstructie sluit verschillen in meetuitkomsten niet volledig uit, door bijvoorbeeld interpretatieverschillen, afrondingen of beperkingen bij het uitvoeren van de meting. Aan de inhoud van deze informatie kunnen geen rechten worden ontleend.
Lees meer

Kenmerken

Overdracht

Prijs per m2
€ 4.407
Aangeboden sinds
12 maart 2026
Status
Beschikbaar
Aanvaarding
In overleg

Bouw

Soort appartement
Portiekflat, appartement
Soort bouw
Bestaande bouw
Bouwjaar
1967
Soort dak
Plat dak
Staat van onderhouden binnen
Goed
Staat van onderhouden buiten
Goed

Oppervlakte en inhoud

Inhoud van de woning
199 m3
Oppervlakte externe bergruimte
7 m2
Oppervlakte gebouwgebonden buitenruimten
7 m2
Oppervlakte overige inpandige ruimten
0 m2

Indeling

Aantal kamers
3
Aantal slaapkamers
2
Aantal woonlagen
1
Voorzieningen
Vve checklist, balkon, schuur/berging, glasvezel

Buitenruimte

Balkon
Ja
Schuur/berging
Ja

Maandlasten berekenen

De maandlasten voor je woning bestaan uit meer dan alleen de hypotheeklasten. Hieronder vind je een overzicht van de bijkomende kosten en lasten. Zo weet je precies wat je huis per maand gaat kosten. En met de handige vergelijkers kun je ook nog eens snel de beste deals sluiten!

  • Kaart
  • Streetview