Schiekade 127G 3033 BL Rotterdam

81m2
Wonen
2
Kamers
0m2
Perceel
1996
Bouwjaar
WONEN OP LOOPAFSTAND VAN HOFPLEIN, COOLSINGEL EN CENTRAAL STATION.

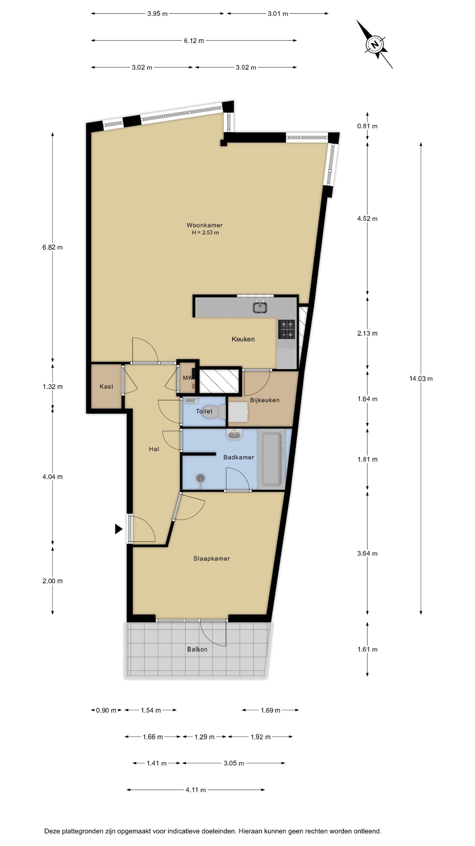
Deze 3-kamerwoning van circa 81m2 op de 7e verdieping heeft een groot balkon en een ruime berging in de onderbouw. Het complex beschikt over een representatieve, afgesloten centrale entree met twee liften. De woningentree is direct aan de overdekte lifthal gelegen waaraan slechts 2 woningen liggen.

LOCATIE EN BEREIKBAARHEID
Stap naar buiten en u ziet het bruisende Hofplein. Het centrum van Rotterdam ligt letterlijk om de hoek. Steek de weg over en ontdek de Hofbogen met hippe winkels, verrassende Food & Drinks en een levendige sfeer. Tramhalte direct voor de deur, en via de Proveniersstraat wandelt u binnen enkele minuten naar het Centraal Station. Met de auto rijdt u via de Schieweg direct de A20 op.

PARKEREN EN EXTRA FACILITEITEN
Aan de achterzijde van het complex ligt een parkeergarage. Een parkeerplaats is, indien beschikbaar, separaat te koop. Aan de overzijde van de straat vindt u de exclusieve David Lloyd clubs voor sport en ontspanning.

BUURT EN OMGEVING
Flaneer langs de groene, statige Provenierssingel en Spoorsingel. Binnen 3 fietsminuten bereikt u het Schouwburgplein en de bekende Meent met zijn winkels, horeca en culturele hotspots. Hier combineert u het gemak van het stadscentrum met de kwaliteit van de woonomgeving.

INTERESSE? PLAN EEN BEZICHTIGING
Profiteer van deze gunstige centrumligging in Rotterdam en ontdek hoe deze woning uw stadsleven kan verrijken. Neem vandaag nog contact op voor een bezichtiging en ervaar zelf het comfort en de dynamiek van deze locatie.

GLOBALE INDELING:
Ontdek met de plattegronden de indeling en ervaar de mogelijkheden. Laat je inspireren door de sfeervolle foto’s en wandel virtueel door de woning. Krijg een levensechte indruk. Klik, kijk en ontdek hoe deze plek jouw nieuwe thuis kan worden!

ALGEMEEN:
Oppervlakte woning ca. 81m2
Inhoud woning ca. 256m3
Oppervlakte buitenruimte ca. 7m2
Oppervlakte berging ca. 6m2
Oplevering per direct
Bouwjaar omstreeks 1996
Eigen grond
Verwarming en warm water: stadsverwarming
Definitief energielabel B
Actieve VvE, maandelijkse bijdrage thans € 160,54 (woning) en € 7,85 (berging) per 2026
Projectnotaris van toepassing

Ondanks dat deze aanmelding met de nodige zorgvuldigheid is samengesteld, is alle verstrekte informatie nadrukkelijk onder voorbehoud, uitsluitend indicatief, bedoeld als voorbeeld en daardoor niet bindend voor het eindresultaat. Aan deze woninginformatie kunnen geen rechten of verplichtingen worden ontleend, onzerzijds wordt geen enkele aansprakelijkheid aanvaard voor enige onvolledigheid, onjuistheid of anderszins, dan wel de gevolgen daarvan.
Lees meer

Kenmerken

Overdracht

Prijs per m2
€ 4.444
Aangeboden sinds
4 maart 2026
Status
Beschikbaar
Aanvaarding
Direct

Bouw

Soort appartement
Portiekflat, corridorflat
Soort bouw
Bestaande bouw
Bouwjaar
1996
Soort dak
Plat dak
Staat van onderhouden binnen
Goed
Staat van onderhouden buiten
Goed

Oppervlakte en inhoud

Inhoud van de woning
256 m3
Oppervlakte externe bergruimte
6 m2
Oppervlakte gebouwgebonden buitenruimten
7 m2

Indeling

Aantal kamers
2
Aantal slaapkamers
1
Aantal woonlagen
1
Voorzieningen
Balkon, schuur/berging, kabel-tv, lift

Buitenruimte

Balkon
Ja
Schuur/berging
Ja

Maandlasten berekenen

De maandlasten voor je woning bestaan uit meer dan alleen de hypotheeklasten. Hieronder vind je een overzicht van de bijkomende kosten en lasten. Zo weet je precies wat je huis per maand gaat kosten. En met de handige vergelijkers kun je ook nog eens snel de beste deals sluiten!

  • Kaart
  • Streetview