Verkocht OV

Maaskade 86A03 3071 NE Rotterdam

104m2
Wonen
4
Kamers
0m2
Perceel
1885
Bouwjaar
LICHTE 4-KAMERWONING VAN CA. 104 M2 - TWEE WOONLAGEN - ENERGIELABEL A - DRIE SLAAPKAMERS - BALKON AAN ACHTERZIJDE - NOORDEREILAND ROTTERDAM

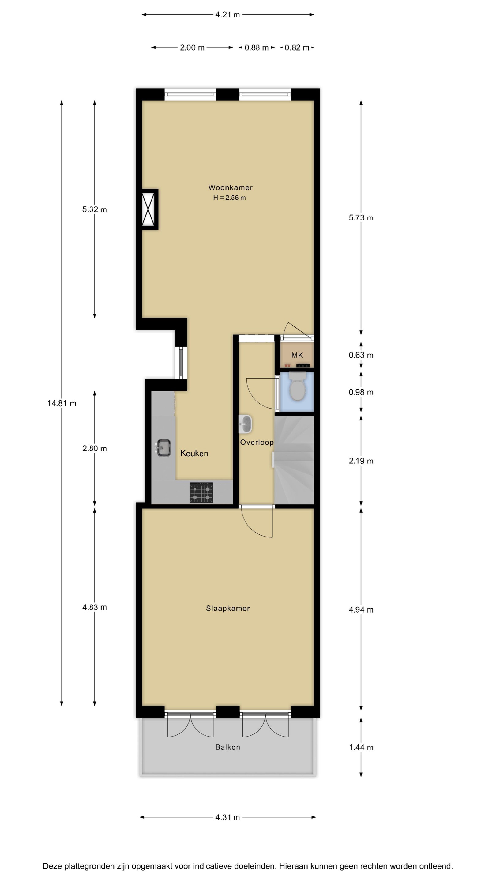
Aan de Maaskade 86A03 ligt deze verzorgde 4-kamerwoning, verdeeld over de derde en vierde verdieping. De woning biedt circa 104 m2 woonoppervlakte, een balkon van circa 6 m2 en een praktische indeling met volop leefruimte.

LIGGING EN OMGEVING
Het Noordereiland staat bekend om zijn rustige, dorpse sfeer midden in de stad. U woont hier tussen de Maasarmen, met uitzicht, water en groen binnen handbereik. Het centrum van Rotterdam ligt op korte afstand, net als openbaar vervoer, horeca en culturele voorzieningen.

INDELING
De woning spreidt zich uit over twee verdiepingen, wat zorgt voor een duidelijke scheiding tussen wonen en slapen. De ruimtes voelen licht en ruim aan door de ligging en de grote raampartijen.

WOONVERDIEPING
De woonverdieping beschikt over een comfortabele woonkamer met verbinding naar het balkon aan de achterzijde via de slaapkamer. De nette keuken sluit hier praktisch op aan en beschikt over diverse inbouwapparatuur. Op deze verdieping bevindt zich tevens een toilet.

SLAAPVERDIEPING
Op de bovenverdieping liggen tweeruime slaapkamers, geschikt voor slapen, werken of hobby’s. De badkamer beschikt over een wastafel en een douchecabine. Ook deze verdieping heeft een separaat toilet, wat extra comfort en privacy biedt.

BUITENRUIMTE
Het balkon aan de achterzijde van circa 6 m2 vormt een fijne plek om buiten te zitten. Hier geniet u van rust en beschutting, terwijl de stad altijd dichtbij blijft.

DUURZAAM EN COMFORTABEL
De woning beschikt over energielabel A. Dit label draagt bij aan lage energielasten en een prettig woonklimaat, passend bij modern en toekomstgericht wonen.

BIJZONDERHEDEN OP EEN RIJ
- Woonoppervlakte ca. 104 m2
- 4 kamers, waarvan 3 slaapkamers
- Verdiept wonen op de derde en vierde verdieping
- Balkon ca. 6 m2 aan de achterzijde
- Keuken met inbouwapparatuur
- Badkamer met douche en wastafel
- Toilet op beide verdiepingen
- Energielabel A
- Gelegen op het Noordereiland in Rotterdam, het Noordereiland is een beschermd stadsgezicht

INTERESSE?
Deze woning combineert ruimte, comfort en een unieke ligging. Neem contact op voor een bezichtiging en ervaar zelf de sfeer en mogelijkheden van Maaskade 86A03.

ALGEMEEN
Oppervlakte woning ca. 104m2
Inhoud woning ca. 380m3
Oplevering in overleg, kan snel
Bouwjaar omstreeks 1885
Eigen grond
Verwarming en warm water d.m.v. CV-ketel
Definitief energielabel A
Projectnotaris van toepassing
Het appartement is gesitueerd in een Beschermd Stadsgezicht
Verkoop onder voorbehoud definitieve splitsing
VvE zal geactiveerd worden door Verkoper na splitsing, maandelijkse bijdrage € 199,68

Ondanks dat deze aanmelding met de nodige zorgvuldigheid is samengesteld, is alle verstrekte informatie nadrukkelijk onder voorbehoud, uitsluitend indicatief, bedoeld als voorbeeld en daardoor niet bindend voor het eindresultaat. Aan deze woninginformatie kunnen geen rechten of verplichtingen worden ontleend, onzerzijds wordt geen enkele aansprakelijkheid aanvaard voor enige onvolledigheid, onjuistheid of anderszins, dan wel de gevolgen daarvan.
Lees meer

Kenmerken

Overdracht

Prijs per m2
€ 4.567
Aangeboden sinds
12 januari 2026
Status
Verkocht onder voorbehoud
Aanvaarding
Direct

Bouw

Soort appartement
Portiekflat, appartement
Soort bouw
Bestaande bouw
Bouwjaar
1885
Soort dak
Zadeldak
Staat van onderhouden binnen
Goed
Staat van onderhouden buiten
Goed

Oppervlakte en inhoud

Inhoud van de woning
380 m3
Oppervlakte gebouwgebonden buitenruimten
6 m2

Indeling

Aantal kamers
4
Aantal slaapkamers
3
Aantal woonlagen
3
Voorzieningen
Balkon, kabel-tv

Buitenruimte

Balkon
Ja
Schuur/berging
Nee

Maandlasten berekenen

De maandlasten voor je woning bestaan uit meer dan alleen de hypotheeklasten. Hieronder vind je een overzicht van de bijkomende kosten en lasten. Zo weet je precies wat je huis per maand gaat kosten. En met de handige vergelijkers kun je ook nog eens snel de beste deals sluiten!

  • Kaart
  • Streetview